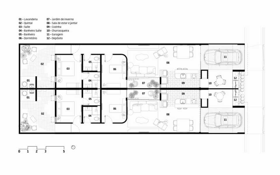
波西米亚住宅 / Costa Matoso 建筑学院 • 2025-06-03 上午8:14 • 住宅室内设计, 住宅建筑设计, 室内设计 波西米亚住宅通过开放式设计将客厅、餐厅和厨房融为一体 建筑师:Costa Matoso 面积:85m² 地点:巴西 建成时间:2024年 项目介绍 波西米亚住宅(House Boêmia)由Costa Matoso设计,是一座85平方米的半独立式住宅,于2024年完工。该项目在狭长的5×25米地块上巧妙布局,通过开放式设计将客厅、餐厅和厨房融为一体。特色设计包括与厨房相连的户外烧烤区、隐藏式储物空间以及工业风与家庭温馨感的结合。建筑采用混凝土砌块和陶瓷砖混合结构,黑色铝制门窗确保通风,蓝色马赛克厨房地砖与墙面形成色彩呼应。后院设有带遮盖的洗衣区和草坪空间,兼顾功能性与生活情趣。 本文来自 © 建筑学院, 发布于 © 建筑学院官方网站。 未经授权,禁止转载或摘编。 编辑版本版权归 © 建筑学院官方网站 所有, 设计、图纸及照片版权归设计方 © 建筑学院 ↗ 所有。 查看作者在建筑学院发布的更多作品: 建筑学院 @ 建筑学院官方网站 半独立住宅多功能存储家庭聚会小户型设计工业风格空间优化 建筑学院编辑 下载原图 收藏 0 关于作者 建筑学院编辑 关注私信 9.0K 文章 202 评论 12 粉丝 建筑学院(ArchCollege)是中国领先的建筑师移动垂直社区,成立于2012年,超过 70% 的年轻建筑师正在使用我们的产品。我们致力于通过建筑设计新媒体与在线教育平台,连接教育、行业与科技,为建筑师提供灵感与成长支持,陪伴并见证每一位青年建筑师的专业进阶与时代探索。 风帆之家 / Wiki World+先进建筑实验室AaL 上一篇 2025-05-30 上午2:55 鸟巢之家 /TIMM + Whyte Architects 下一篇 2025-06-06 下午12:19 发表回复 请登录后评论...登录后才能评论 提交