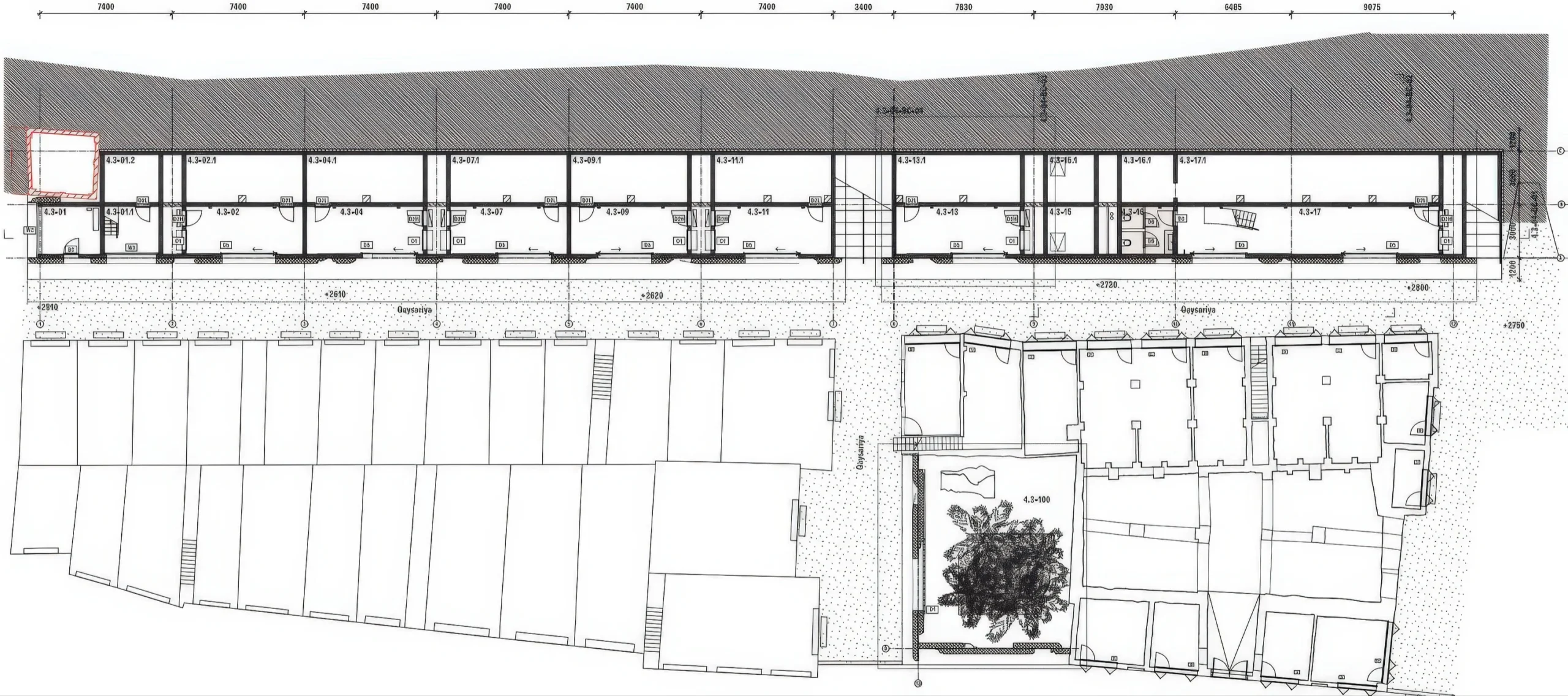
清雅亚苏克苏克区 / Qaysariyah Suq | 安妮·霍尔特罗普|Anne Holtrop 安妮·霍尔特罗普|Anne Holtrop • 2026-03-10 下午12:53 • 商业与综合建筑, 商业建筑设计 雅亚苏克苏克区位于巴林穆哈拉格,由安妮·霍尔特罗普设计,通过创新混凝土预制技术延续传统珊瑚石建筑形式,将历史珍珠贸易市场改造为现代商业空间,展现传统与现代的完美融合。 设计: 安妮·霍尔特罗普|Anne Holtrop 类型: 商业建筑设计 功能: 文化中心 风格: 当代建筑 材料: 混凝土 尺度: 中型建筑 地点:穆哈拉格 时间: 2020年 项目概述 清雅亚苏克苏克区位于巴林穆哈拉格,是一座历史商业建筑改造项目。该项目包括Qaysariyah Suq市场和Amarat Fahkro建筑群,设计于2014年,2020年完工,旨在保护和复兴巴林珍珠贸易历史文化遗产。 设计理念 安妮·霍尔特罗普的设计理念源于对传统珊瑚石建筑形式的尊重与延续。设计团队通过现代混凝土技术重现传统建造工艺,采用沙模铸造的无约束边缘预制构件,每个构件都具有独特的形态特征,体现了传统工艺与现代技术的对话。 空间与功能 清雅亚苏克苏克区包含地面层和夹层商业空间,延续了传统市场的空间组织模式。新建的商铺采用预制混凝土构件建造,而Amarat建筑则通过现场浇筑混凝土修复损毁的墙体和屋顶,保持了原有建筑的空间尺度和流线特征。 材料与技术 项目主要采用预制混凝土和现场浇筑混凝土技术。预制构件通过在沙模中铸造形成无约束边缘,每个构件尺寸和重量各异,最大构件达到6280公斤。这种技术既延续了传统珊瑚石板材的建筑形式,又实现了现代建造的精确性。 项目特色与启发 清雅亚苏克苏克区的独特之处在于将传统建造智慧与现代技术完美结合,为历史建筑保护与更新提供了创新范例。该项目对建筑师在文化遗产保护、材料创新和建造技术整合方面具有重要参考价值。 设计团队 安妮·霍尔特罗普建筑事务所以其对材料、工艺和建造过程的深入研究而闻名。团队擅长将传统建造技术与当代建筑语言相结合,在清雅亚苏克苏克区项目中展现了卓越的材料创新和历史文脉回应能力。 项目概述 清雅亚苏克苏克区位于巴林穆哈拉格,是一座历史商业建筑改造项目。该项目包括Qaysariyah Suq市场和Amarat Fahkro建筑群,设计于2014年,2020年完工,旨在保护和复兴巴林珍珠贸易历史文化遗产。 设计理念 安妮·霍尔特罗普的设计理念源于对传统珊瑚石建筑形式的尊重与延续。设计团队通过现代混凝土技术重现传统建造工艺,采用沙模铸造的无约束边缘预制构件,每个构件都具有独特的形态特征,体现了传统工艺与现代技术的对话。 空间与功能 清雅亚苏克苏克区包含地面层和夹层商业空间,延续了传统市场的空间组织模式。新建的商铺采用预制混凝土构件建造,而Amarat建筑则通过现场浇筑混凝土修复损毁的墙体和屋顶,保持了原有建筑的空间尺度和流线特征。 材料与技术 项目主要采用预制混凝土和现场浇筑混凝土技术。预制构件通过在沙模中铸造形成无约束边缘,每个构件尺寸和重量各异,最大构件达到6280公斤。这种技术既延续了传统珊瑚石板材的建筑形式,又实现了现代建造的精确性。 项目特色与启发 清雅亚苏克苏克区的独特之处在于将传统建造智慧与现代技术完美结合,为历史建筑保护与更新提供了创新范例。该项目对建筑师在文化遗产保护、材料创新和建造技术整合方面具有重要参考价值。 设计团队 安妮·霍尔特罗普建筑事务所以其对材料、工艺和建造过程的深入研究而闻名。团队擅长将传统建造技术与当代建筑语言相结合,在清雅亚苏克苏克区项目中展现了卓越的材料创新和历史文脉回应能力。 本文来自 © 安妮·霍尔特罗普|Anne Holtrop, 发布于 © 建筑学院官方网站。 未经授权,禁止转载或摘编。 编辑版本版权归 © 建筑学院官方网站 所有, 设计、图纸及照片版权归设计方 © 安妮·霍尔特罗普|Anne Holtrop ↗ 所有。 查看作者在建筑学院发布的更多作品: 安妮·霍尔特罗普|Anne Holtrop @ 建筑学院官方网站 Qaysariyah Suq传统与现代融合商业建筑改造安妮·霍尔特罗普穆哈拉格建筑 安妮·霍尔特罗普|Anne Holtrop事务所 & 设计师 下载原图 收藏 0 关于作者 安妮·霍尔特罗普|Anne Holtrop事务所 & 设计师 关注私信 23 文章 0 评论 0 粉丝 安妮·霍尔特罗普(Anne Holtrop)作为备受瞩目的当代建筑师,其事务所Studio Anne Holtrop以对材料与空间的独特探索闻名。霍尔特罗普于2009年成立个人工作室,目前事务所活跃于巴林穆哈拉格与荷兰阿姆斯特丹。其代表作包括巴林国家展馆(2015米兰世博会)、穆哈拉格绿色角落建筑及西雅迪珍珠博物馆。他善于从地质与材料本质出发,通过创新的建造方式塑造极具诗意的建筑空间,曾荣获夏洛特·科勒奖(2007年)、雅科夫·切尔尼霍夫国际奖(2016年)及阿迦汗建筑奖(2019年)。 奥斯特鲁姆的套房和别墅 / Suites and Villas, Estremoz | 阿尔瓦罗·西扎|Álvaro Siza 上一篇 2026-03-01 下午9:01 钢屋案例研究 / Steel House Case Study | Roger Boltshauser 下一篇 2026-03-15 下午9:32 猜你喜欢 ChungHa Building 商业中心 / ChungHa Building Commercial Center | MVRDV 建筑事务所 2025-11-19 公共建筑设计 石岐珍珠博物馆 / Siyadi Pearl Museum | 安妮·霍尔特罗普|Anne Holtrop 2026-01-07 公共建筑设计 马可拉比亚之家橱窗 / Shop Windows for Maison Margiela Hankyu | 安妮·霍尔特罗普|Anne Holtrop 2025-12-12 商业空间设计 Trail House / Trail House | 安妮·霍尔特罗普|Anne Holtrop 2026-03-13 住宅建筑设计 Batara 展馆与模型 / Batara Pavilion and Model | 安妮·霍尔特罗普|Anne Holtrop 2026-03-09 室内设计 曼萨中央邮政局 / Manama Central Post Office | 安妮·霍尔特罗普|Anne Holtrop 2026-03-12 公共建筑设计 发表回复 请登录后评论...登录后才能评论 提交