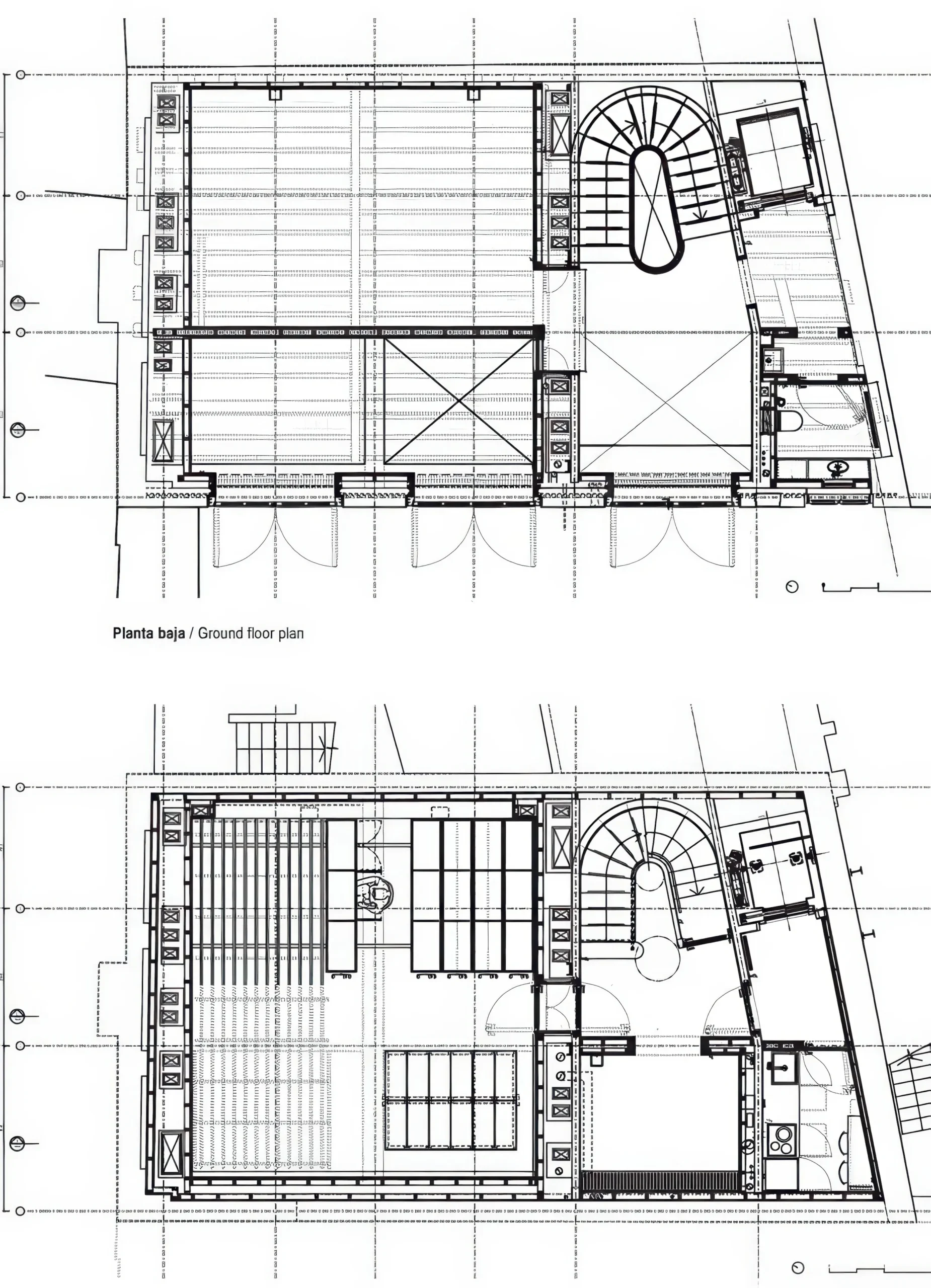
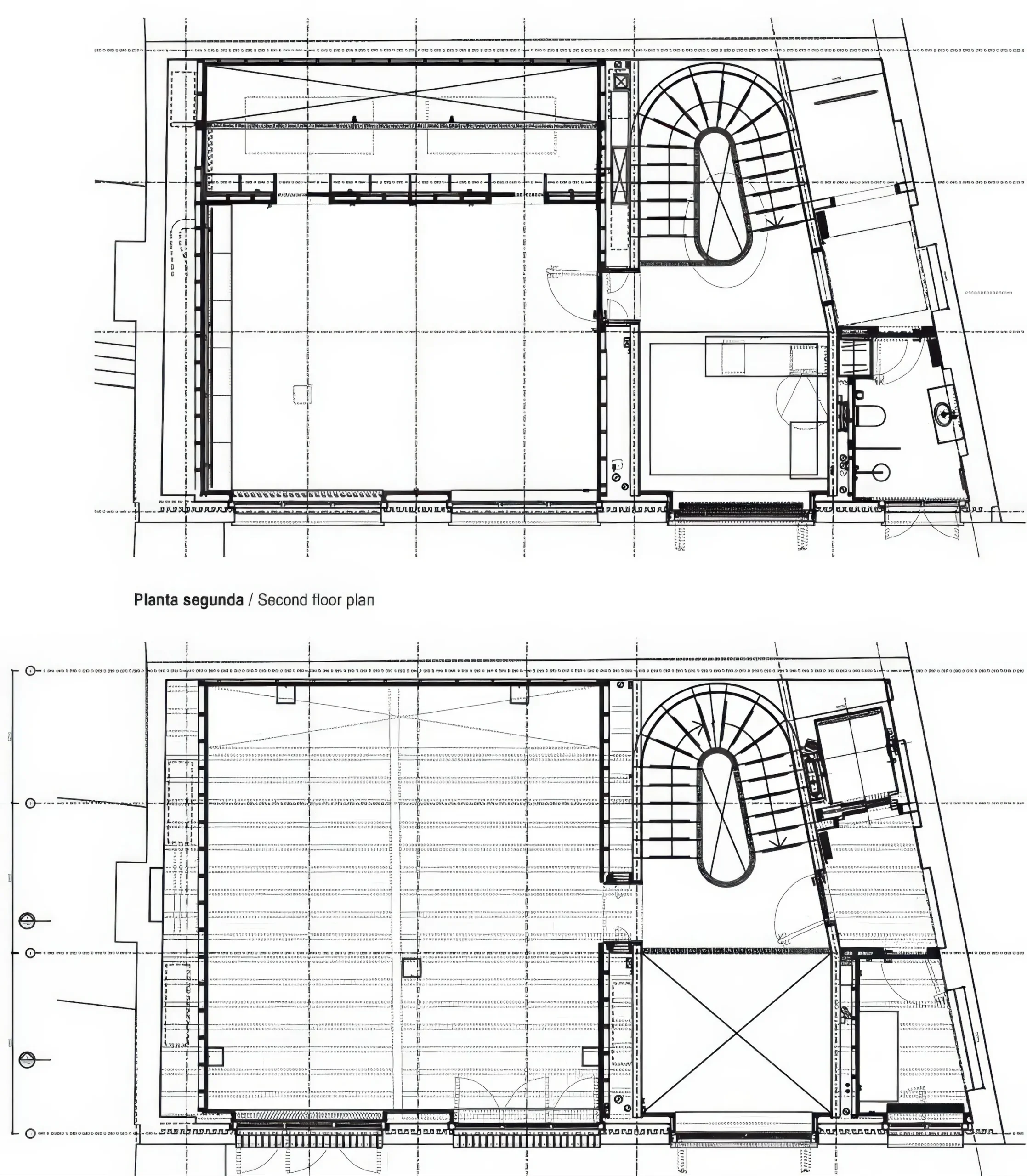
A Mews Collection | 6a 建筑事务所 6a 建筑事务所|6a architects • 2025-10-22 下午10:08 • 建筑师设计, 建筑设计, 文化建筑设计 A Mews Collection 是6a建筑事务所在伦敦设计的艺术收藏空间项目,将19世纪仓库改造为融合存储与展示功能的建筑。通过双层高度空间和预制混凝土楼梯,创造新旧交融的艺术体验,体现了伦敦历史环境中的当代建筑设计策略。 设计: 6a 建筑事务所|6a architects 类型: 文化建筑设计 功能: 美术馆 风格: 当代建筑 材料: 混凝土 木材 玻璃 砖材 尺度: 小型建筑 地点:伦敦 时间: 2010年 项目简介 A Mews Collection 位于英国伦敦市中心,是一座由废弃仓库改造而成的艺术收藏与展示建筑。项目建筑面积约500平方米,设计于2013年,保留了19世纪建筑的历史特征。 设计理念 设计灵感来源于附近的约翰·索恩爵士博物馆,通过交错的体量和双层高度空间组织,模糊了新旧、公共与私密的界限。设计团队注重在私人收藏空间中创造非机构化的艺术体验。 空间与功能 建筑包含地下层艺术档案存储、地面层和一层展示画廊、二层居住套间。空间通过预制混凝土楼梯连接,双层高度空间和采光井将自然光引入建筑深处,形成连续的空间序列。 材料与技术 采用浅色预制混凝土、原有砖石结构和木材等材料。通过深层挖掘技术扩展地下存储空间,滑动式艺术存储架和圆形天窗等细节处理柔化了建筑的直角几何形态。 设计团队 6a建筑事务所是伦敦知名建筑设计工作室,专注于文化、艺术和教育类建筑项目,擅长在历史环境中创造精致的当代建筑干预。 项目简介 A Mews Collection 位于英国伦敦市中心,是一座由废弃仓库改造而成的艺术收藏与展示建筑。项目建筑面积约500平方米,设计于2013年,保留了19世纪建筑的历史特征。 设计理念 设计灵感来源于附近的约翰·索恩爵士博物馆,通过交错的体量和双层高度空间组织,模糊了新旧、公共与私密的界限。设计团队注重在私人收藏空间中创造非机构化的艺术体验。 空间与功能 建筑包含地下层艺术档案存储、地面层和一层展示画廊、二层居住套间。空间通过预制混凝土楼梯连接,双层高度空间和采光井将自然光引入建筑深处,形成连续的空间序列。 材料与技术 采用浅色预制混凝土、原有砖石结构和木材等材料。通过深层挖掘技术扩展地下存储空间,滑动式艺术存储架和圆形天窗等细节处理柔化了建筑的直角几何形态。 设计团队 6a建筑事务所是伦敦知名建筑设计工作室,专注于文化、艺术和教育类建筑项目,擅长在历史环境中创造精致的当代建筑干预。 本文来自 © 6a 建筑事务所|6a architects, 发布于 © 建筑学院官方网站。 未经授权,禁止转载或摘编。 编辑版本版权归 © 建筑学院官方网站 所有, 设计、图纸及照片版权归设计方 © 6a 建筑事务所|6a architects ↗ 所有。 查看作者在建筑学院发布的更多作品: 6a 建筑事务所|6a architects @ 建筑学院官方网站 6a建筑事务所A Mews Collection伦敦双层高度空间艺术画廊预制混凝土 6a 建筑事务所|6a architects事务所 & 设计师 下载原图 收藏 0 关于作者 6a 建筑事务所|6a architects事务所 & 设计师 关注私信 20 文章 1 评论 0 粉丝 6a architects(6a建筑事务所)是英国知名的建筑设计团队,以其对文化、艺术及教育类建筑的深刻理解而闻名。他们的作品擅长运用精巧的材料与细致的构造,在历史与现代的对话中创造宁静而富有感染力的空间。其代表作包括South London Gallery、MK Gallery改造及剑桥大学校园建筑等。 皮亚诺在建方案:越南河内歌剧院 上一篇 2025-10-18 下午5:58 布隆伯格学生活动中心 / BIG 下一篇 2025-10-23 上午10:24 猜你喜欢 南伦敦美术馆 South London Gallery | 6a 建筑事务所|6a architects 2025-10-28 公共建筑设计 罗马尼工作室 / Romney’s Studio | +6a 建筑事务所|6a architects 2025-12-11 公共建筑设计 复杂交错的立面与室内空间,伦敦“空间之谜”公寓楼 2018-05-30 住宅建筑设计 城市如何更宜行走,看上海、伦敦、奥胡斯的新实践 2017-10-12 建筑设计 英国纳粹大屠杀纪念馆 United Kingdom Holocaust Memorial | 卡鲁索·圣约翰建筑事务所|Caruso St John 2025-12-09 公共建筑设计 保罗·史密斯商店前脸 | 6a 建筑事务所 2025-10-31 公共建筑设计 发表回复 请登录后评论...登录后才能评论 提交