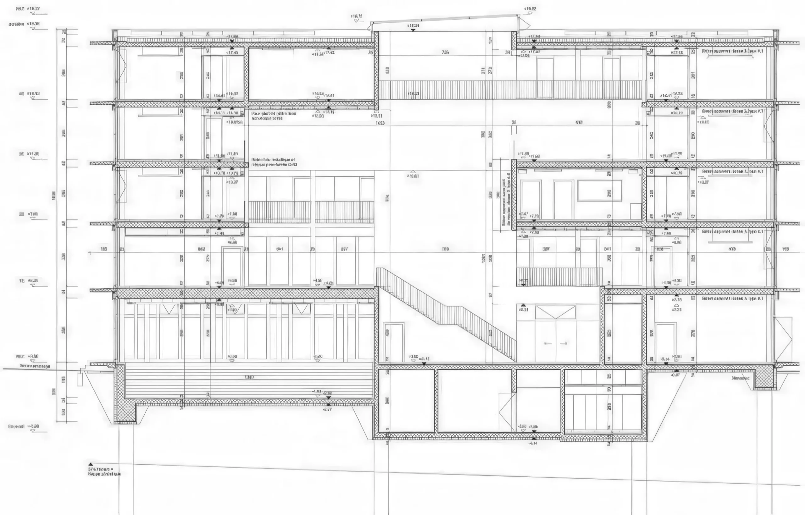
国际体育科学研究所 International Sports Sciences Institute | Karamuk Kuo 建筑事务所|Karamuk Kuo Karamuk Kuo 建筑事务所 • 2025-10-26 上午8:45 • 公共建筑设计, 建筑设计, 文化建筑设计 国际体育科学研究所位于瑞士洛桑大学校园内,是一座集学术研究、专业组织于一体的体育科学建筑。该项目由Karamuk Kuo建筑事务所设计,采用立方体形态,巧妙融合四个不同机构的功能需求,通过创新的空间组织策略和可持续设计手法,打造出兼具集体认同感与生态雄心的标志性建筑。 设计: Karamuk Kuo 建筑事务所 类型: 文化建筑设计 功能: 学校 风格: 当代建筑 材料: 混凝土 钢材 木材 玻璃 尺度: 微型建筑与装置 地点:瑞士 时间: 2017年 项目简介 国际体育科学研究所位于瑞士洛桑大学校园内,是一座集学术研究、专业组织于一体的体育科学建筑。建筑面积约8000平方米,设计于2013年,建成于2017年,为四个体育相关机构提供共享空间。 设计理念 设计团队采用”两个相互依存系统”的概念,将建筑分为超理性工作环和多孔服务核心两部分。这种策略既解决了四个不同机构的统一身份问题,又在有限预算内实现了建筑的生态雄心和代表性特征。 空间与功能 建筑包含个人办公室、共享办公区、会议室、物理测试实验室、教室以及大型公共空间如礼堂和自助餐厅。中央多孔核心形成动态交流空间,通过错落的混凝土平台和连接楼梯创造丰富的空间体验。 材料与技术 优先采用天然材料和裸露构造,混凝土结构提供坚固中性背景。建筑结合低技术和高技术策略,优化自然采光与通风,外挑楼板提供遮阳,天窗可开启面板实现热量排放,实现极低能耗。 设计团队 Karamuk Kuo建筑事务所是一家专注于文化、教育和研究建筑的瑞士事务所,以其创新的空间策略和对材料表达的敏锐把握而闻名,作品强调建筑与环境的对话。 项目简介 国际体育科学研究所位于瑞士洛桑大学校园内,是一座集学术研究、专业组织于一体的体育科学建筑。建筑面积约8000平方米,设计于2013年,建成于2017年,为四个体育相关机构提供共享空间。 设计理念 设计团队采用”两个相互依存系统”的概念,将建筑分为超理性工作环和多孔服务核心两部分。这种策略既解决了四个不同机构的统一身份问题,又在有限预算内实现了建筑的生态雄心和代表性特征。 空间与功能 建筑包含个人办公室、共享办公区、会议室、物理测试实验室、教室以及大型公共空间如礼堂和自助餐厅。中央多孔核心形成动态交流空间,通过错落的混凝土平台和连接楼梯创造丰富的空间体验。 材料与技术 优先采用天然材料和裸露构造,混凝土结构提供坚固中性背景。建筑结合低技术和高技术策略,优化自然采光与通风,外挑楼板提供遮阳,天窗可开启面板实现热量排放,实现极低能耗。 设计团队 Karamuk Kuo建筑事务所是一家专注于文化、教育和研究建筑的瑞士事务所,以其创新的空间策略和对材料表达的敏锐把握而闻名,作品强调建筑与环境的对话。 本文来自 © Karamuk Kuo 建筑事务所, 发布于 © 建筑学院官方网站。 未经授权,禁止转载或摘编。 编辑版本版权归 © 建筑学院官方网站 所有, 设计、图纸及照片版权归设计方 © Karamuk Kuo 建筑事务所 ↗ 所有。 查看作者在建筑学院发布的更多作品: Karamuk Kuo 建筑事务所 @ 建筑学院官方网站 Karamuk Kuo体育建筑国际体育科学研究所洛桑混凝土结构 Karamuk Kuo 建筑事务所事务所 & 设计师 下载原图 收藏 0 关于作者 Karamuk Kuo 建筑事务所事务所 & 设计师 关注私信 13 文章 0 评论 0 粉丝 Raven Row 当代艺术与展览中心 | 6a 建筑事务所 上一篇 2025-10-25 上午8:30 碳质森林 Carboniferous Forest | AMID.cero9 建筑事务所|AMID.cero9 下一篇 2025-10-26 上午8:45 猜你喜欢 白色方块-科尔比学院体育娱乐中心 Harold Alfond / Hopkins Architects + Sasaki 2021-08-12 体育建筑 学生宿舍和可逆式停车场,帕拉西斯 Student Residence and Reversible Car Park, Palaiseau | 布鲁瑟建筑事务所|Bruther 2025-11-20 公共建筑设计 OpenAsia 集团总部,两个核心筒吊起的桥梁办公楼 / G8A Architecture & UrbanPlanning 2019-08-09 办公建筑设计 六个视角的楼阁 Pavilion of Six Views | 建筑事务所 MARKLEE 2025-10-28 公共建筑设计 ICTA-ICP 研究中心 | Harquitectes 建筑师事务所 2025-10-29 公共建筑设计 Bülach公共工程仓库 / Bülach Public Works Depot | Karamuk Kuo 建筑事务所 2025-11-07 公共建筑设计 发表回复 请登录后评论...登录后才能评论 提交