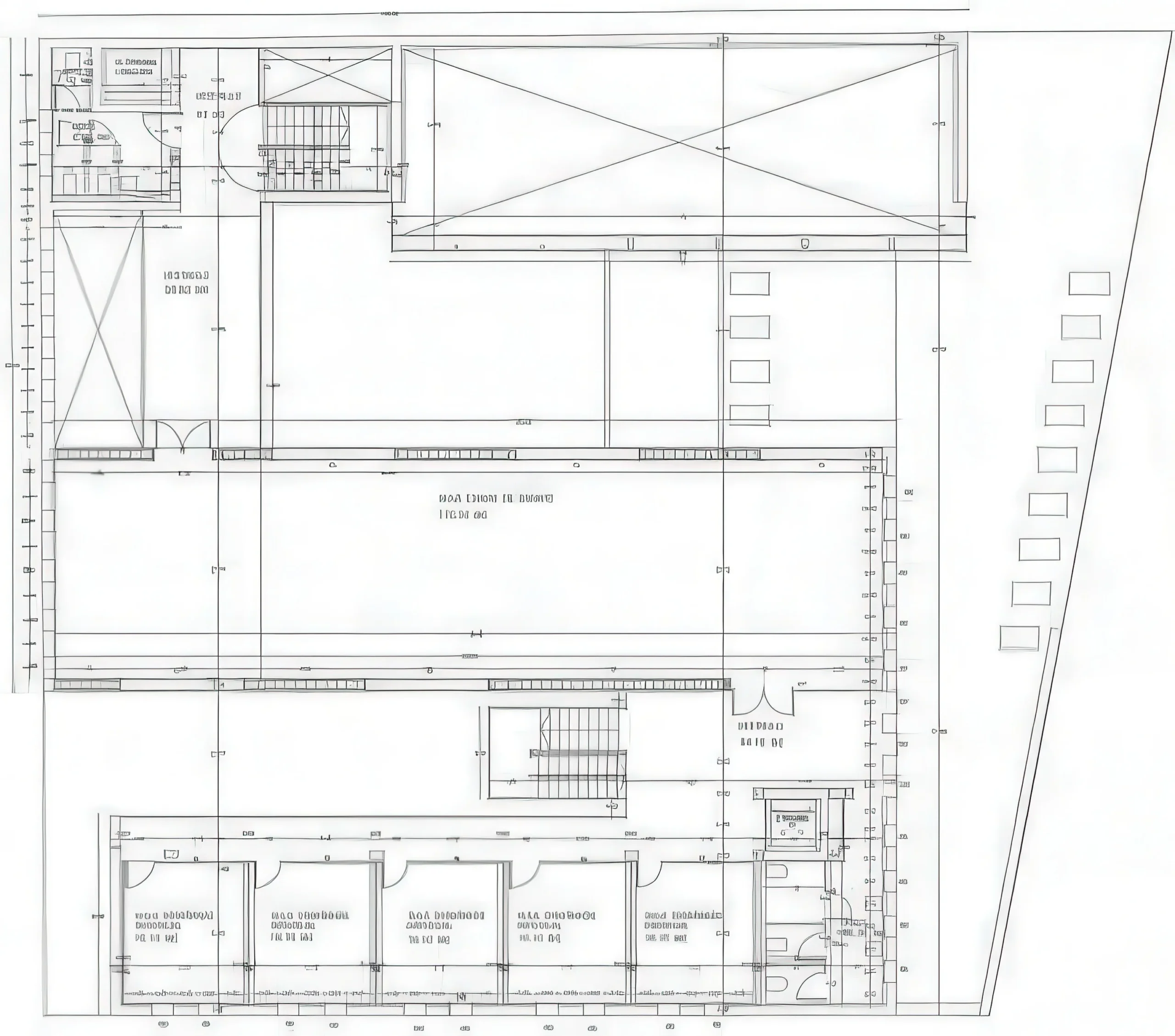
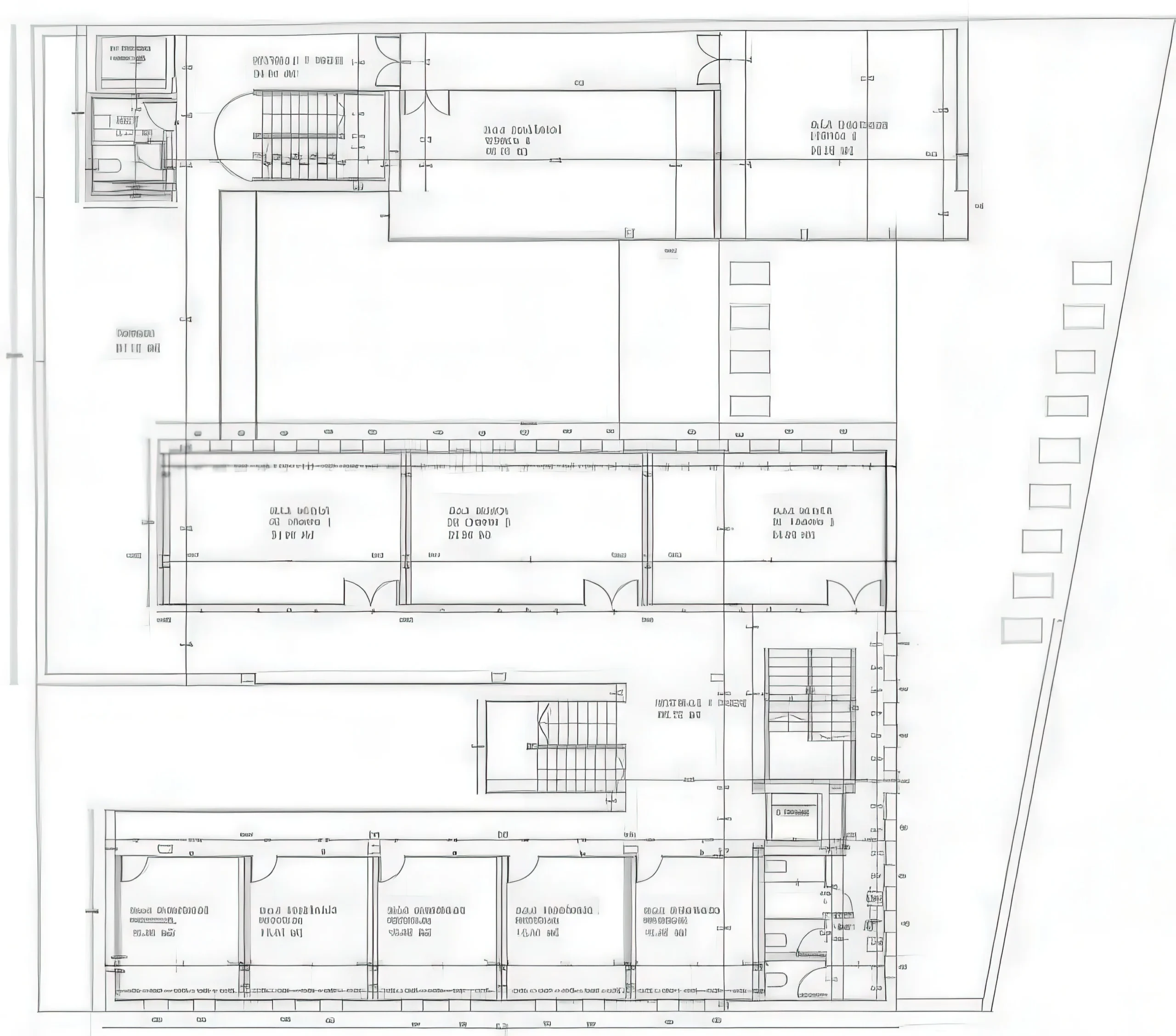
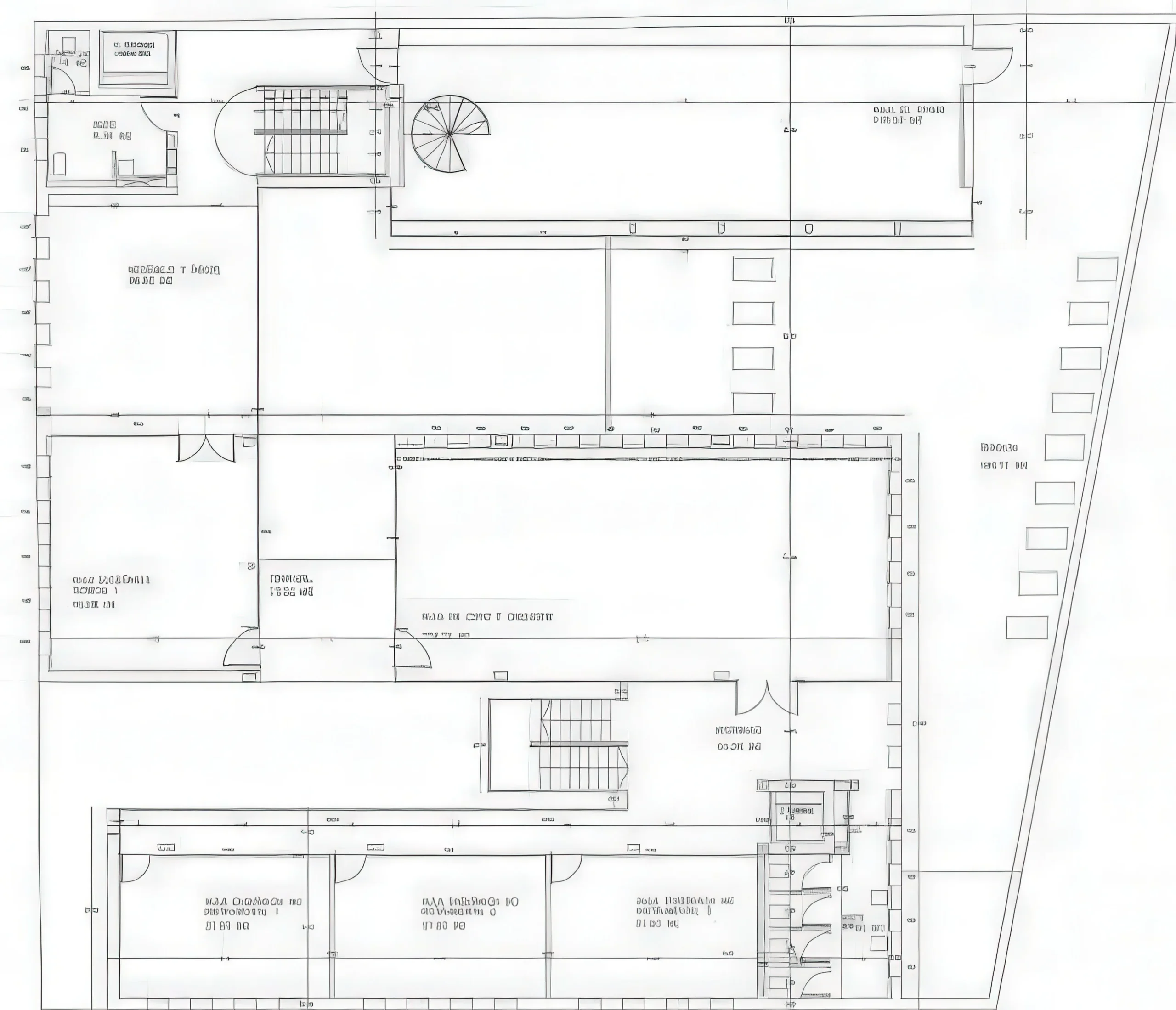
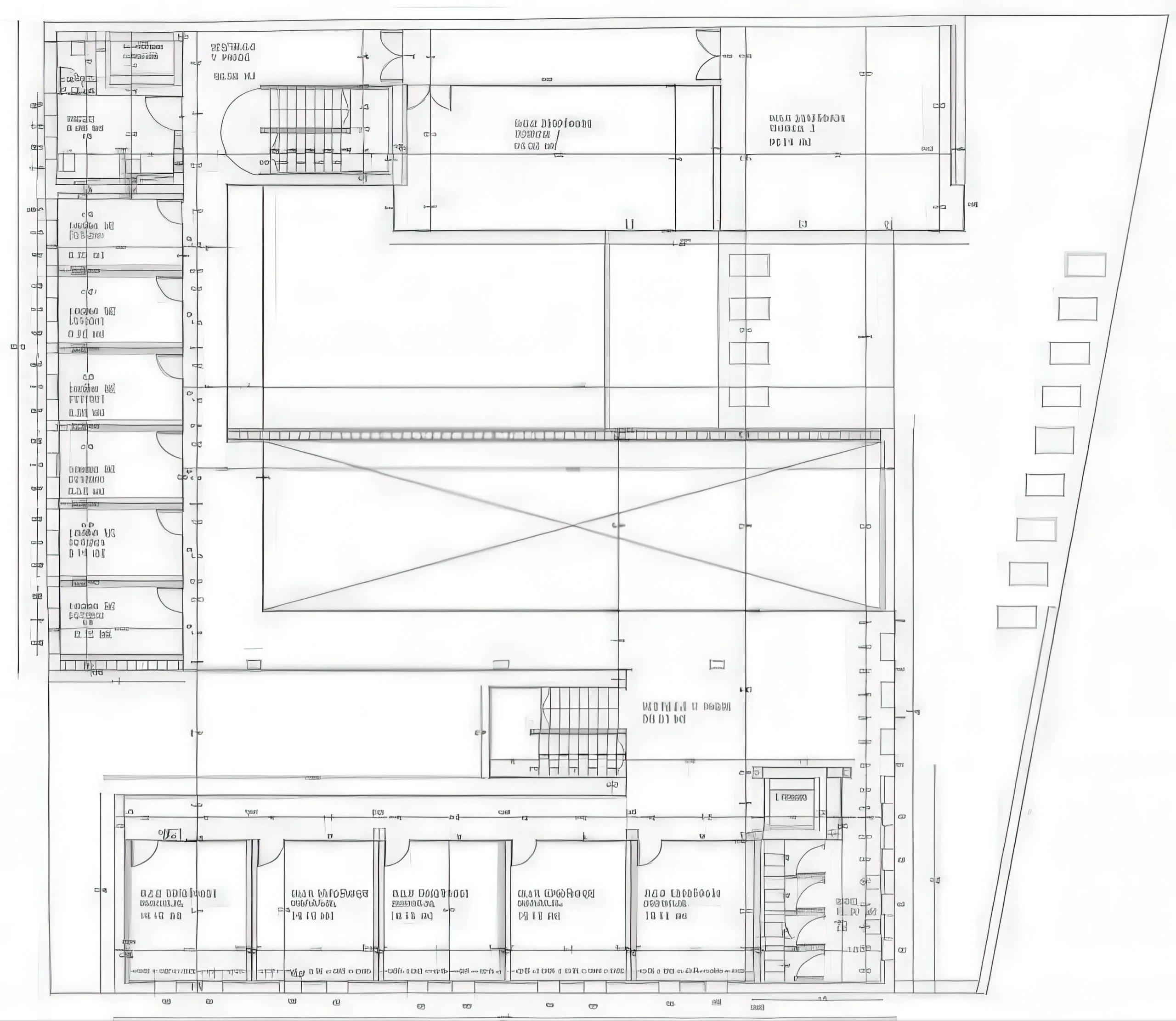
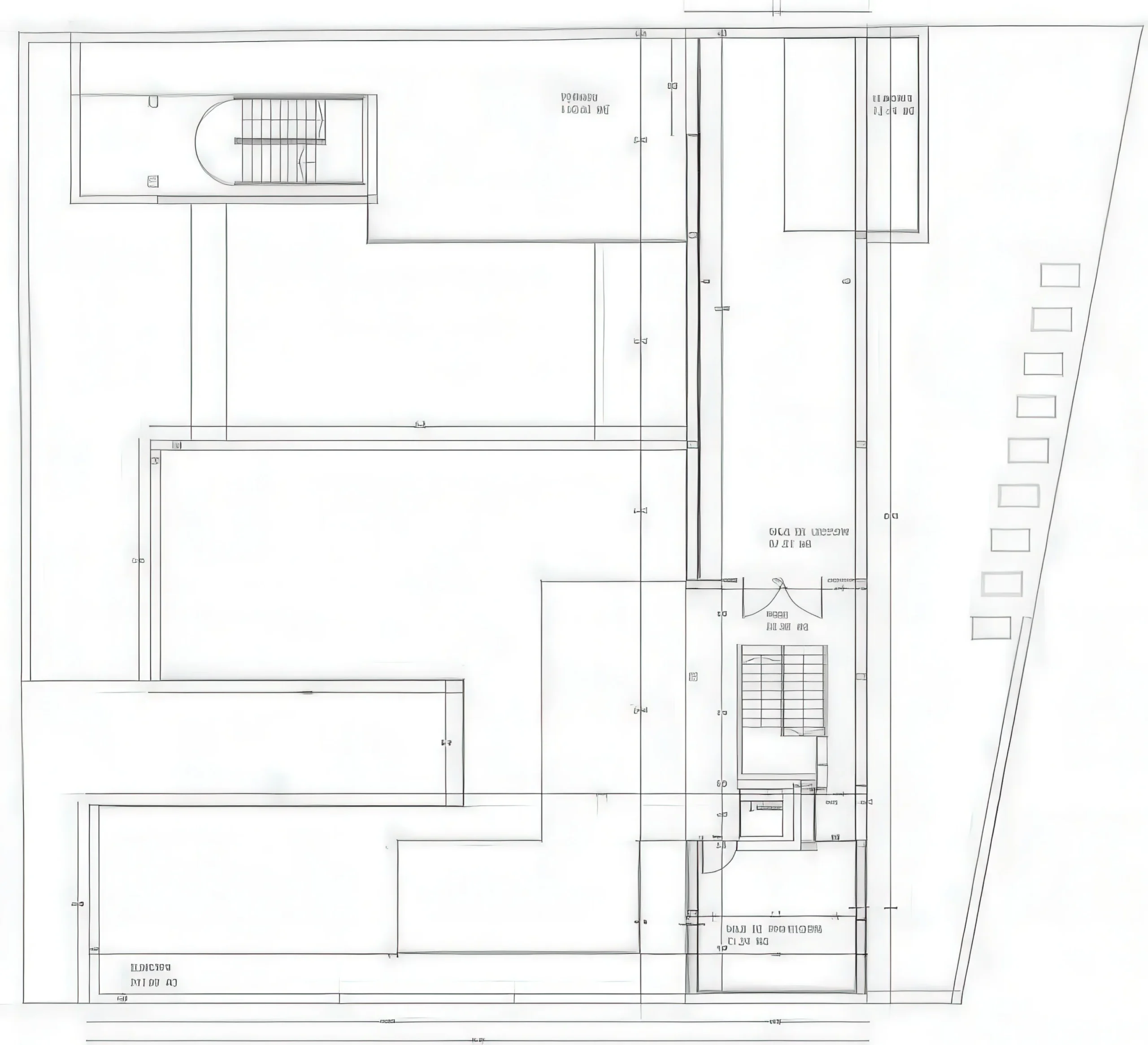
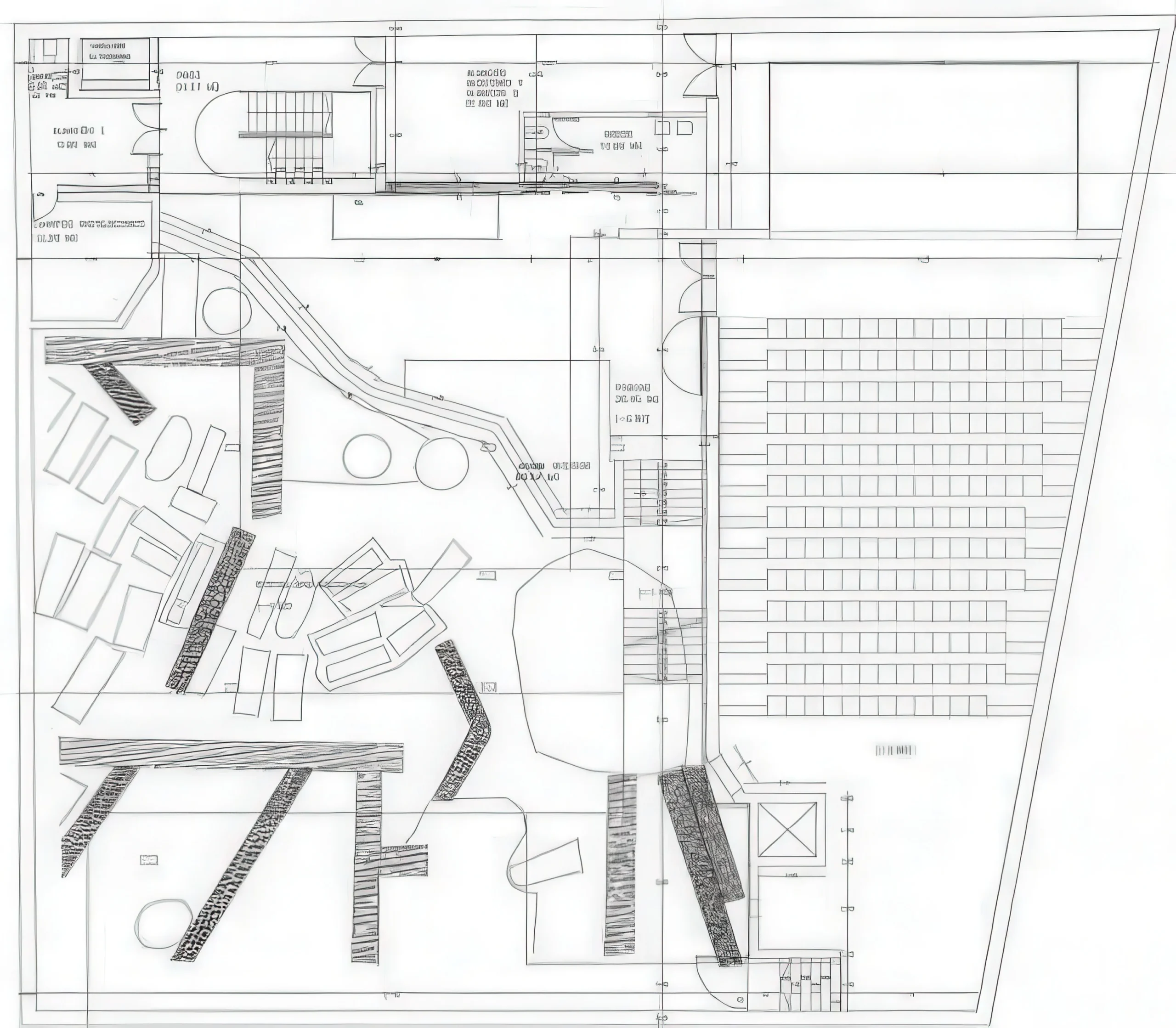
巴塞罗那音乐和舞蹈学院 Ibiza and Formentera Music and Dance Conservatory | 阿尔弗雷多·帕亚|Alfredo Payá 阿尔弗雷多·帕亚|Alfredo Payá • 2025-10-29 上午1:22 • 公共建筑设计, 建筑师设计, 建筑设计, 文化建筑设计 巴塞罗那音乐和舞蹈学院位于西班牙伊维萨岛,是一座集音乐与舞蹈教育于一体的文化建筑。由阿尔弗雷多·帕亚设计,项目通过三个独立体块的巧妙组合,创造出一个融合公共广场、花园与室内空间的复合场所。建筑采用混凝土与玻璃材料,营造出地中海气候下的开放流动空间体验。 设计: 阿尔弗雷多·帕亚|Alfredo Payá 类型: 文化建筑设计 功能: 文化中心 风格: 当代建筑 材料: 混凝土 木材 玻璃 金属板 尺度: 中型建筑 地点:西班牙 时间: 2002年 项目简介 巴塞罗那音乐和舞蹈学院位于西班牙伊维萨岛,是一座集音乐学校、舞蹈学校和公共空间于一体的文化教育建筑。项目通过竞赛获得一等奖,设计采用三个独立体块组合而成,包含图书馆、多功能厅和礼堂等公共设施。 设计理念 设计团队以”相遇之地”为核心理念,创造了一个介于城市与建筑、音乐与舞蹈、花园与室内之间的对话空间。建筑采用分离体块通过桥梁连接的方式,形成动态的空间序列,灵感来源于保罗·克利的艺术创作。 空间与功能 建筑由音乐学校、舞蹈学校和公共空间三个主要部分组成。交通空间被设计为可供练习和表演的动态区域,与阶梯花园和室外走廊相连。空间组织采用螺旋形、缠绕和交叉的动线,模拟在田野漫步、海滩聚会或公园休憩的体验。 材料与技术 建筑外部采用带孔洞的混凝土墙体,内部面向花园的部分使用大面积玻璃幕墙。桥梁结构采用穿孔金属板包裹的大型梁,其他部分包括清水混凝土板、铝制地板和窗框,以及轻质隔墙。水平面设计为屋顶花园,种植仙人掌、龙舌兰、棕榈树和芳香植物。 设计团队 阿尔弗雷多·帕亚是西班牙知名建筑师,其事务所专注于文化建筑和公共空间设计,作品以对场地文脉的深刻理解和创新的空间组织方式著称,在建筑与环境的对话中寻求独特的表达方式。 项目简介 巴塞罗那音乐和舞蹈学院位于西班牙伊维萨岛,是一座集音乐学校、舞蹈学校和公共空间于一体的文化教育建筑。项目通过竞赛获得一等奖,设计采用三个独立体块组合而成,包含图书馆、多功能厅和礼堂等公共设施。 设计理念 设计团队以”相遇之地”为核心理念,创造了一个介于城市与建筑、音乐与舞蹈、花园与室内之间的对话空间。建筑采用分离体块通过桥梁连接的方式,形成动态的空间序列,灵感来源于保罗·克利的艺术创作。 空间与功能 建筑由音乐学校、舞蹈学校和公共空间三个主要部分组成。交通空间被设计为可供练习和表演的动态区域,与阶梯花园和室外走廊相连。空间组织采用螺旋形、缠绕和交叉的动线,模拟在田野漫步、海滩聚会或公园休憩的体验。 材料与技术 建筑外部采用带孔洞的混凝土墙体,内部面向花园的部分使用大面积玻璃幕墙。桥梁结构采用穿孔金属板包裹的大型梁,其他部分包括清水混凝土板、铝制地板和窗框,以及轻质隔墙。水平面设计为屋顶花园,种植仙人掌、龙舌兰、棕榈树和芳香植物。 设计团队 阿尔弗雷多·帕亚是西班牙知名建筑师,其事务所专注于文化建筑和公共空间设计,作品以对场地文脉的深刻理解和创新的空间组织方式著称,在建筑与环境的对话中寻求独特的表达方式。 本文来自 © 阿尔弗雷多·帕亚|Alfredo Payá, 发布于 © 建筑学院官方网站。 未经授权,禁止转载或摘编。 编辑版本版权归 © 建筑学院官方网站 所有, 设计、图纸及照片版权归设计方 © 阿尔弗雷多·帕亚|Alfredo Payá ↗ 所有。 查看作者在建筑学院发布的更多作品: 阿尔弗雷多·帕亚|Alfredo Payá @ 建筑学院官方网站 伊维萨岛巴塞罗那音乐和舞蹈学院文化建筑混凝土建筑阿尔弗雷多·帕亚 阿尔弗雷多·帕亚|Alfredo Payá事务所 & 设计师 下载原图 收藏 0 关于作者 阿尔弗雷多·帕亚|Alfredo Payá事务所 & 设计师 关注私信 18 文章 0 评论 0 粉丝 阿尔弗雷多·帕亚(Alfredo Payá)是西班牙知名建筑师,1988年在阿利坎特成立工作室,后于2005年创立noame 29事务所。其作品深植于地中海地域文脉,强调消除公共与私有、室内与室外之间的界限。帕亚秉持“设计建筑使它像一座山”而非“设计一座像山的建筑”的深层概念性理念,避免表面隐喻。他注重建筑的物质一致性而非具体材料选择,代表作包括迈格莫山住宅、阿里坎特大学博物馆及32间公共住宅等,融合环境、气候与功能,展现其将建筑延伸至周边环境的独特哲学。 Celosia 社会住房公寓 | MVRDV 建筑事务所 上一篇 2025-10-28 下午12:50 爱琴海天堂岛 The Aegean Paradise | AMID.cero9 建筑事务所 下一篇 2025-10-29 上午8:50 猜你喜欢 浙江自然博物院 / 大卫·奇普菲尔德建筑事务所 2020-02-17 公共建筑设计 木偶剧场一号馆 / Puppet Theater | MOS 建筑事务所 2025-11-03 公共建筑设计 旧城新馆-安康图书馆改造 / UUA建筑师事务所 2020-11-02 建筑设计 被动式设计,Jami’Al-Hurriyah 清真寺 / AGo Architects 2022-11-08 建筑设计 北京密云儿童活动中心—北京服装厂改造项目 | REDe Architects + 末广建筑 2021-03-17 建筑设计 神圣而纯洁的精神空间:拉加雷斯教堂 / FCC Arquitectura 2019-08-27 建筑设计 发表回复 请登录后评论...登录后才能评论 提交