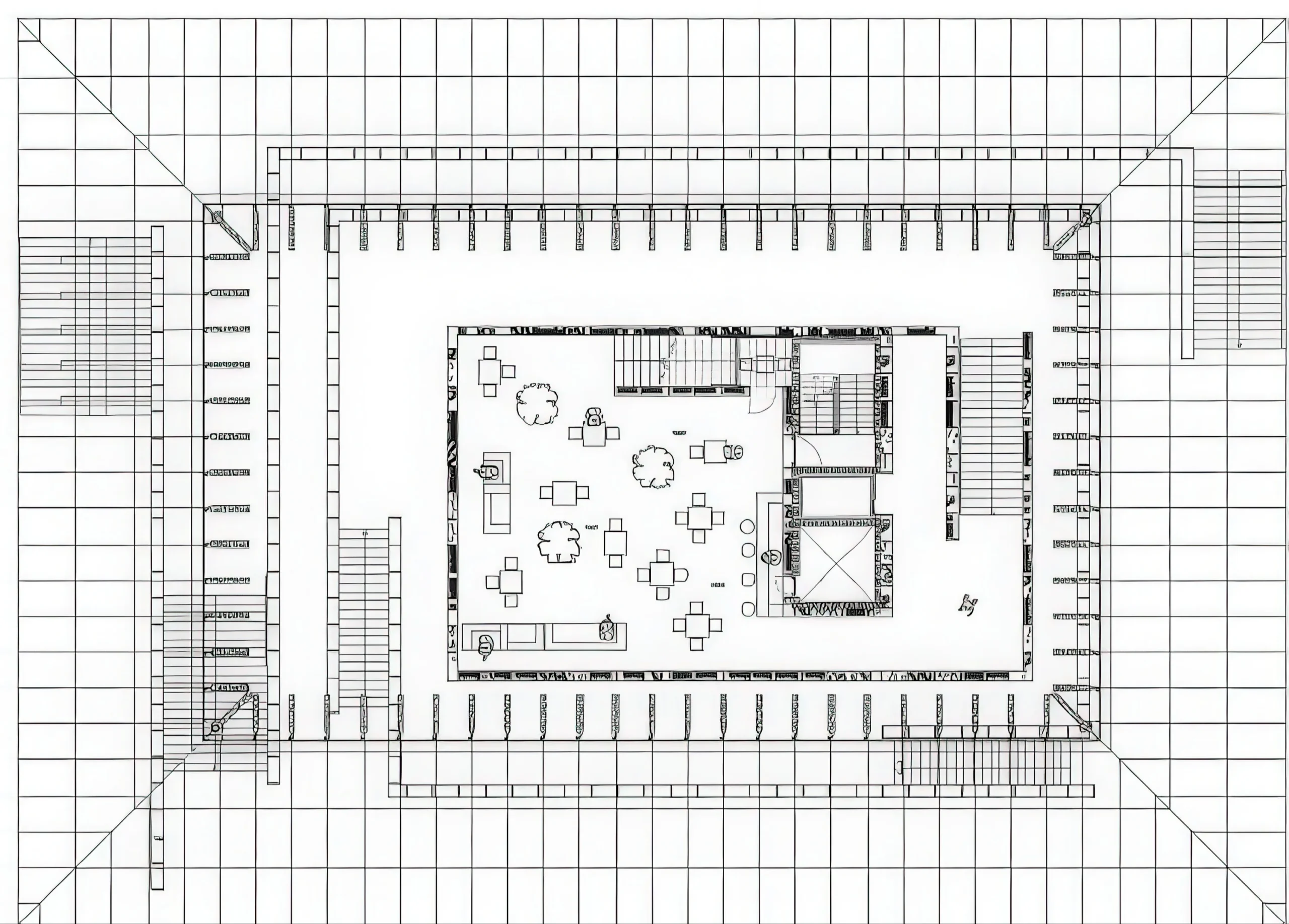
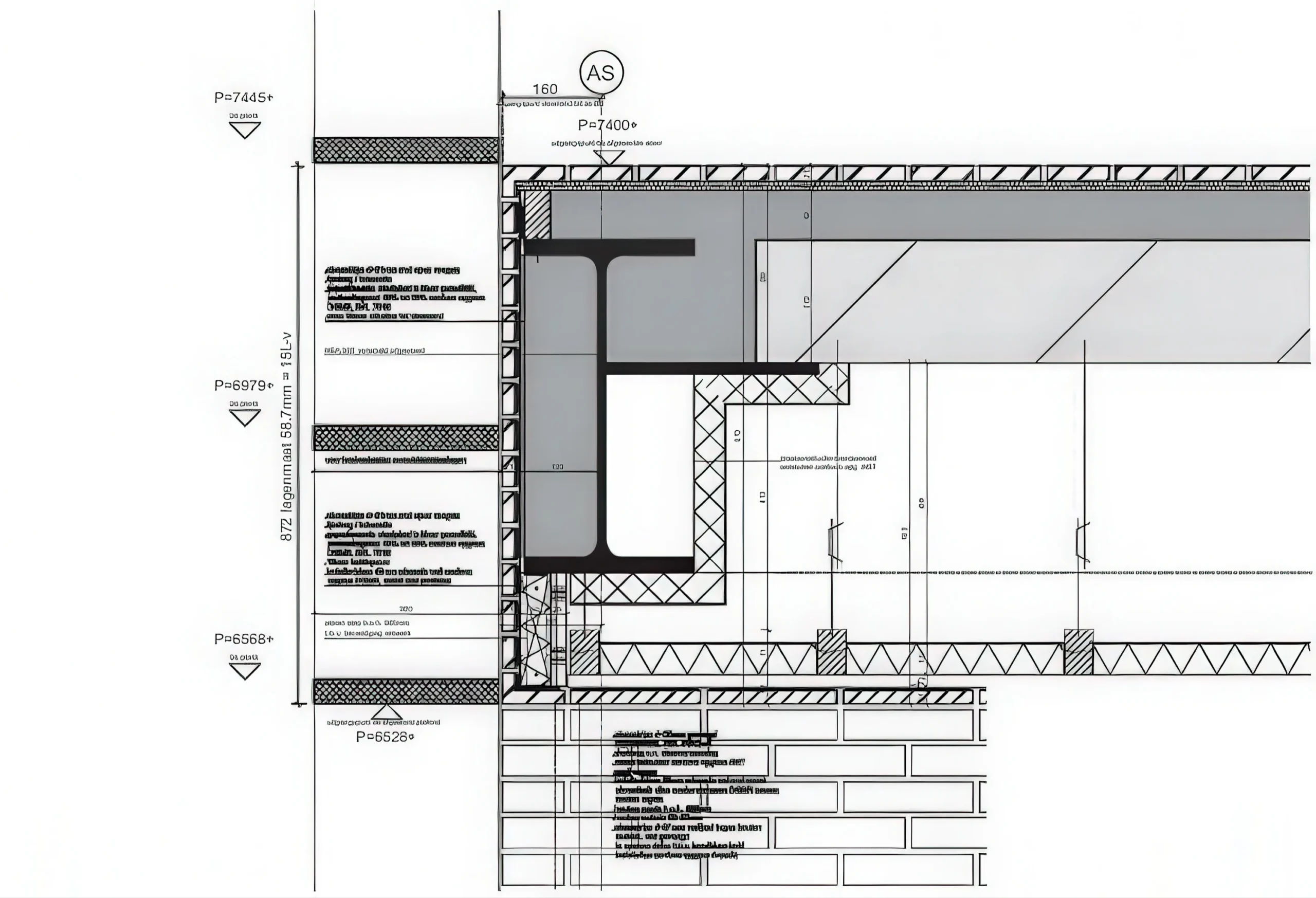
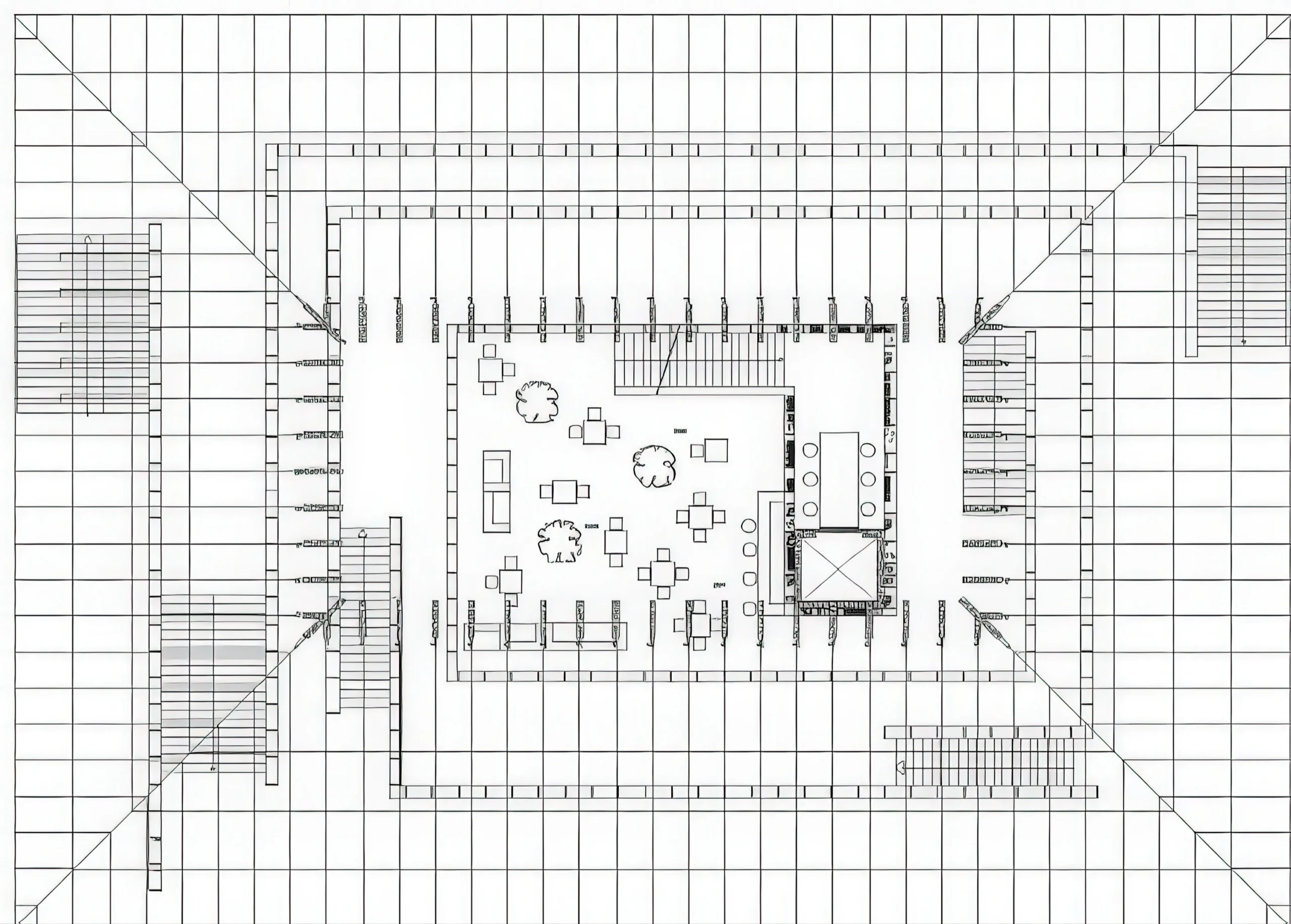
斯皮肯塞公共图书馆 Public Library in Spijkenisse | MVRDV 建筑事务所|MVRDV MVRDV • 2025-10-31 下午12:50 • 公共建筑设计, 建筑师设计, 建筑设计, 文化建筑设计 设计: MVRDV 类型: 文化建筑设计 功能: 文化中心 风格: 现代主义 材料: 混凝土 木材 砖材 再生材料 尺度: 中型建筑 地点:荷兰 时间: 2012年 项目简介 斯皮肯塞公共图书馆位于荷兰斯皮肯塞市中心市场广场,毗邻历史教堂,是一座综合性文化建筑。项目建筑面积9300平方米,设计建成于2012年,融合图书馆、教育、商业等多重功能。 设计理念 MVRDV以”书山”为核心概念,将图书馆设计为阅读的象征性广告。建筑外观参考传统荷兰农场形式,通过玻璃穹顶创造透明开放的阅读环境,回应城市从农业村庄到新城的转型历程。 空间与功能 建筑采用金字塔式空间组织,底层为非图书馆功能区域,上层为书山平台。480米连续环形路径连接各层书架,顶部设咖啡馆提供城市全景。空间分区明确,商业功能置于砖材包裹的基座,图书馆功能位于玻璃穹顶之下。 材料与技术 项目运用砖材、玻璃、木材和再生材料。玻璃穹顶采用木桁架结构,实现自然通风与采光。可持续系统包括地下冷热储存、地暖、双层玻璃等创新技术组合,营造舒适室内环境。 设计团队 MVRDV是荷兰知名建筑事务所,以概念性设计和创新空间策略著称,专注于城市密度、可持续性和社会功能整合,在全球完成众多标志性建筑项目。 项目简介 斯皮肯塞公共图书馆位于荷兰斯皮肯塞市中心市场广场,毗邻历史教堂,是一座综合性文化建筑。项目建筑面积9300平方米,设计建成于2012年,融合图书馆、教育、商业等多重功能。 设计理念 MVRDV以”书山”为核心概念,将图书馆设计为阅读的象征性广告。建筑外观参考传统荷兰农场形式,通过玻璃穹顶创造透明开放的阅读环境,回应城市从农业村庄到新城的转型历程。 空间与功能 建筑采用金字塔式空间组织,底层为非图书馆功能区域,上层为书山平台。480米连续环形路径连接各层书架,顶部设咖啡馆提供城市全景。空间分区明确,商业功能置于砖材包裹的基座,图书馆功能位于玻璃穹顶之下。 材料与技术 项目运用砖材、玻璃、木材和再生材料。玻璃穹顶采用木桁架结构,实现自然通风与采光。可持续系统包括地下冷热储存、地暖、双层玻璃等创新技术组合,营造舒适室内环境。 设计团队 MVRDV是荷兰知名建筑事务所,以概念性设计和创新空间策略著称,专注于城市密度、可持续性和社会功能整合,在全球完成众多标志性建筑项目。 本文来自 © MVRDV, 发布于 © 建筑学院官方网站。 未经授权,禁止转载或摘编。 编辑版本版权归 © 建筑学院官方网站 所有, 设计、图纸及照片版权归设计方 © MVRDV ↗ 所有。 查看作者在建筑学院发布的更多作品: MVRDV @ 建筑学院官方网站 MVRDV文化建筑斯皮肯塞公共图书馆玻璃穹顶荷兰斯皮肯塞 MVRDV事务所 & 设计师 下载原图 收藏 0 关于作者 MVRDV事务所 & 设计师 关注私信 19 文章 0 评论 0 粉丝 沙迦国际艺术博览会 Pavilion Pavilion for Sharjah Biennial 11 | AMID.cero9 建筑事务所|AMID.cero9 上一篇 2025-10-31 上午8:50 垂直村庄,蒙彼利埃。 Vertical Village, Montpellier | MVRDV 建筑事务所 下一篇 2025-10-31 下午12:50 猜你喜欢 素胚瓷片,曲线勾勒,上海申窑艺术中心(一期)/ 刘宇扬建筑事务所 2019-04-24 建筑设计 言子书院 / 华南理工大学建筑设计研究院 2023-11-27 建筑设计 雪峰文学馆 / 同济院 麟和建筑工作室 2023-09-02 建筑设计 Snøhetta 赢得中国邢台大剧院设计竞赛,“天圆地方”致敬东方哲学 2019-12-12 建筑设计 鹿特丹博伊曼斯· 范· 伯宁恩博物馆 / MVRDV 2020-09-30 公共建筑设计 城市混合,埃姆登 Urban Hybrid, Emmen | MVRDV 建筑事务所|MVRDV 2025-10-30 公共建筑设计 发表回复 请登录后评论...登录后才能评论 提交