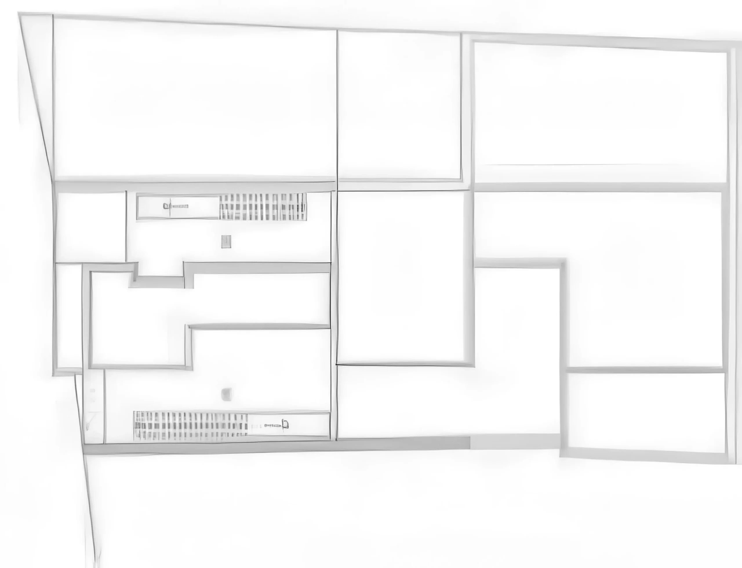
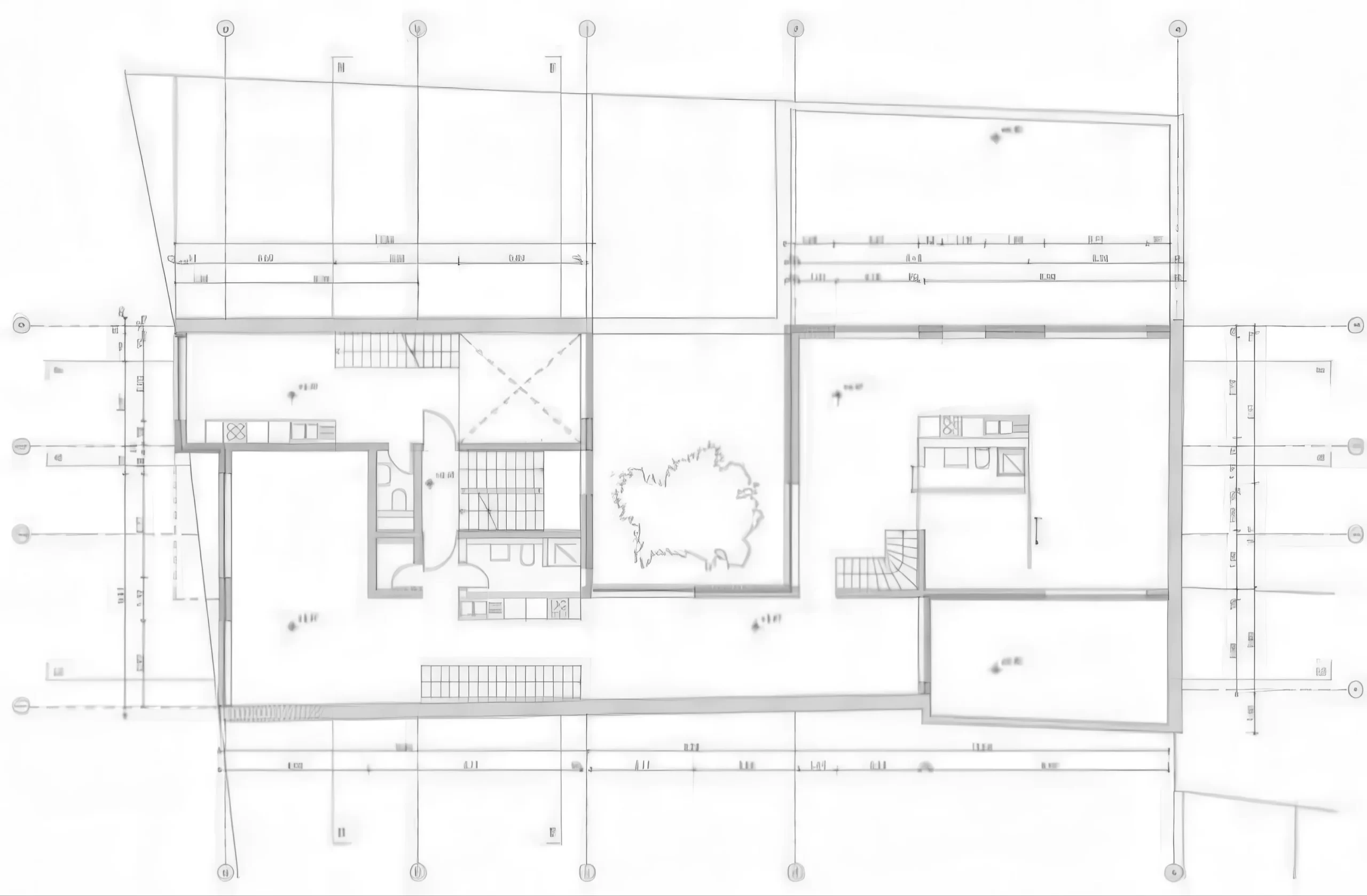
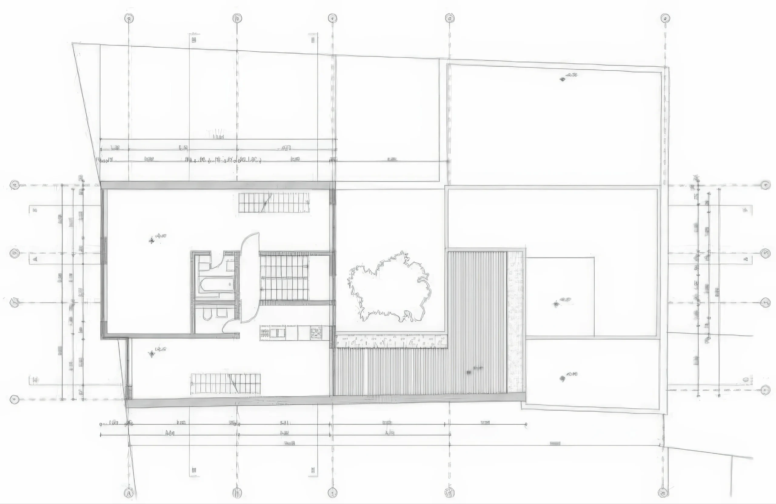
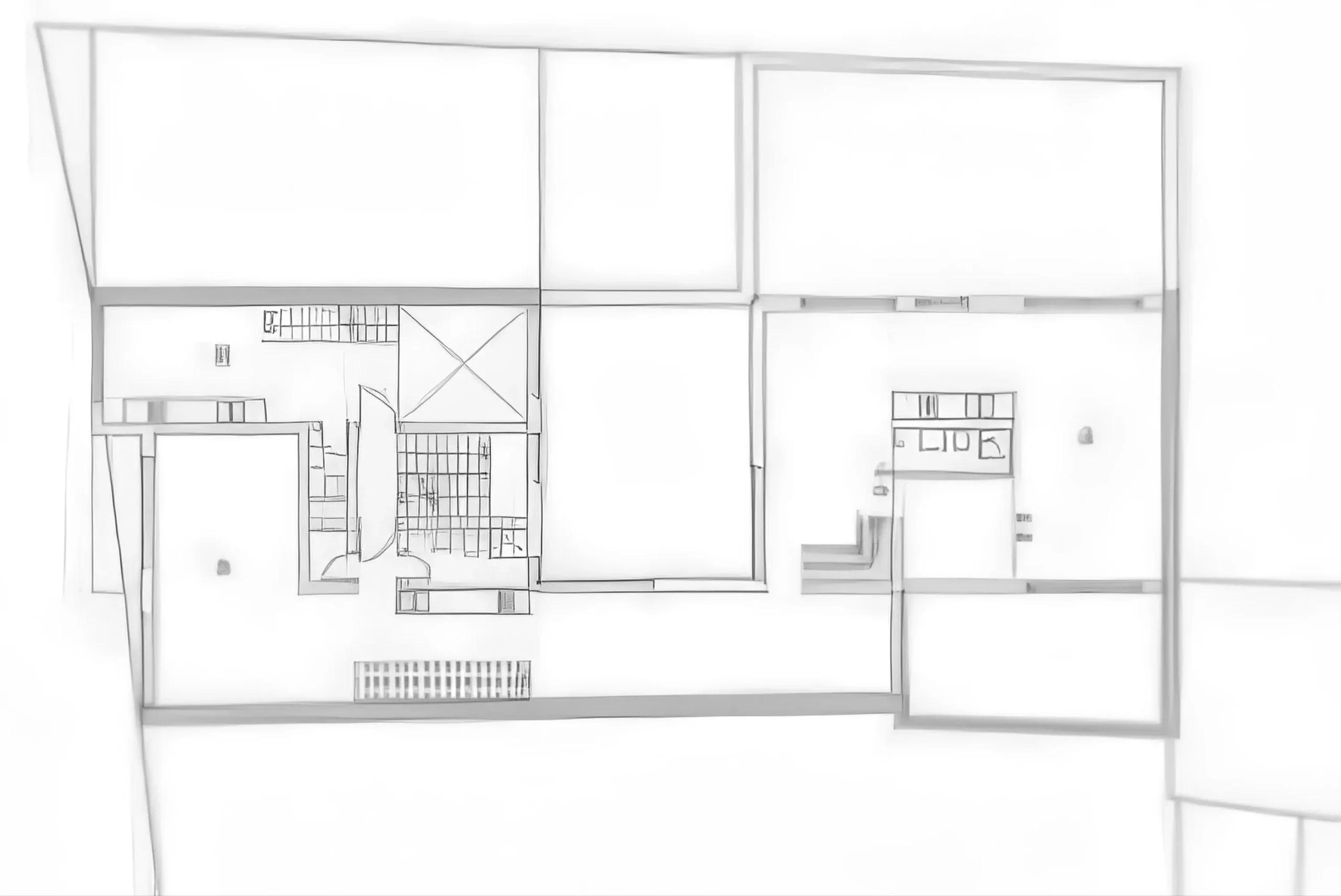
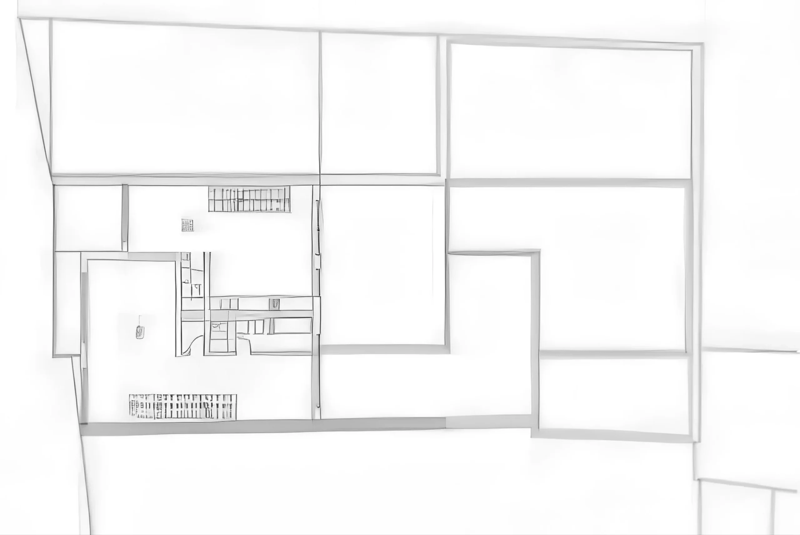
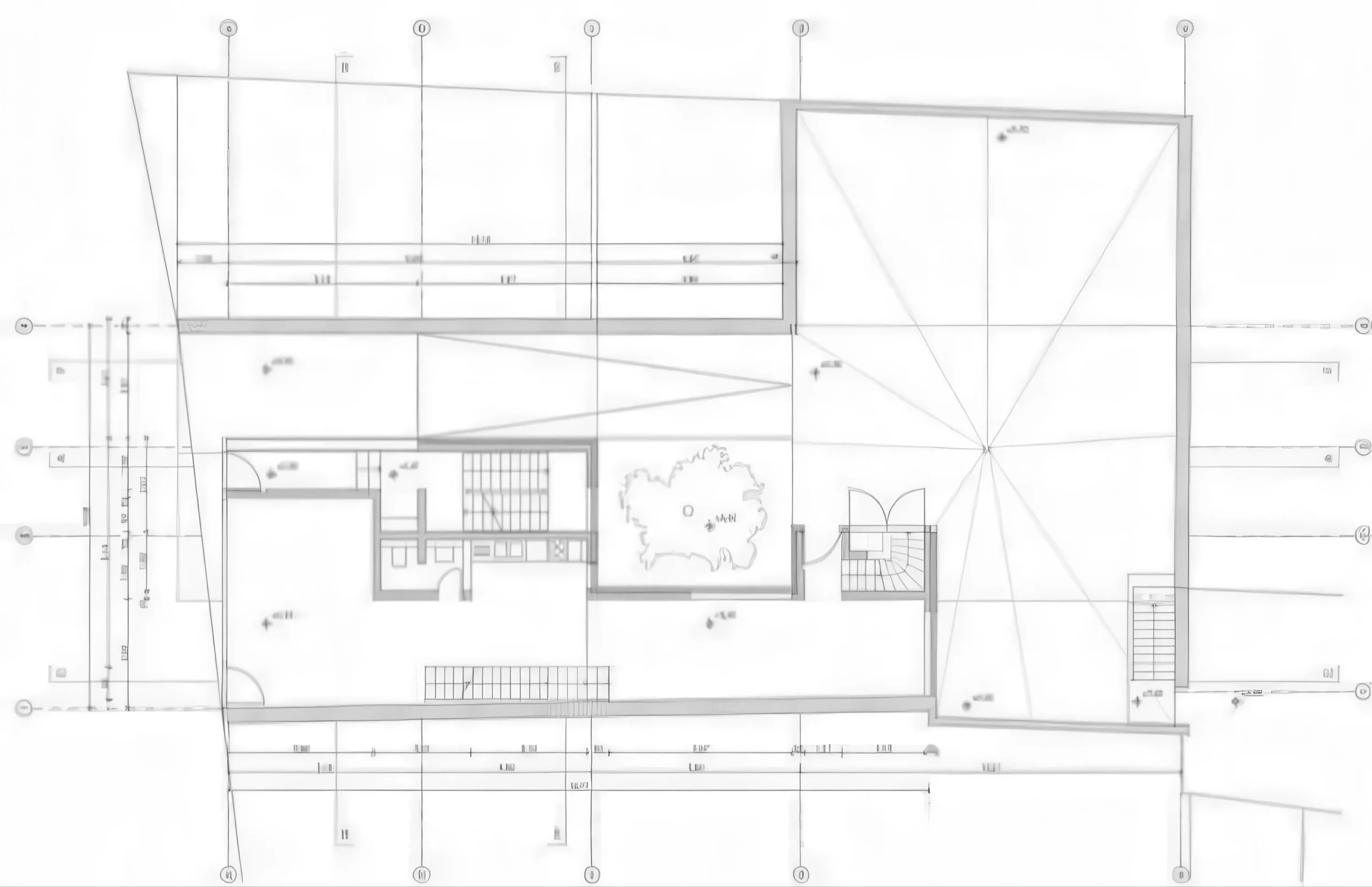
圣瓦伦霍夫公寓和办公大楼 / Stavenhof Apartment and Office Building | 布兰德胡伯建筑事务所|Brandlhuber 布兰德胡伯建筑事务所|Brandlhuber • 2025-11-01 上午8:50 • 公共建筑设计, 建筑师设计, 建筑设计, 文化建筑设计 圣瓦伦霍夫公寓和办公大楼由布兰德胡伯建筑事务所设计,位于德国科隆历史悠久的北部城区。该项目通过几何化的四单元组织回应场地限制,为每个单元提供灵活空间与私人屋顶花园,展现当代城市建筑的创新解决方案。 设计: 布兰德胡伯建筑事务所|Brandlhuber 类型: 文化建筑设计 功能: 公寓住宅 风格: 当代建筑 材料: 混凝土 钢材 陶瓷 尺度: 中型建筑 地点:德国 时间: 2023年 项目概述 圣瓦伦霍夫公寓和办公大楼位于德国科隆历史城区北部,是一座集居住与办公功能于一体的混合用途建筑。项目占地狭小,在密集的城市肌理中通过四单元几何组织创造灵活空间,设计充分回应了场地南侧20米高防火墙的限制条件。 设计理念 布兰德胡伯建筑事务所以几何化的体量组织回应城市密度与规范限制,设计概念源于对历史城区小尺度地块与战后建筑肌理的理解。建筑通过立方体雕塑般的体量变化,在严格遵守退界要求的同时,为每个单元创造独特的空间体验与光线条件。 空间与功能 圣瓦伦霍夫项目的四个独立单元围绕中央交通核组织,每个单元在高度与深度上形成独特体量。空间布局仅预装卫生间与厨房,保留开放式平面供用户自由组织。各单元通过垂直分离获得私人屋顶花园,在密集城区中创造珍贵的户外空间。 材料与技术 建筑采用钢筋混凝土结构,外立面全覆盖灰蓝色陶瓷面砖,色调参考科隆天空的平均颜色。这些由日本制造商专门开发的陶瓷砖具有一定的透气性,能在密封表面实现适度湿度调节,体现了材料选择的细致考量。 项目特色与启发 圣瓦伦霍夫公寓和办公大楼展示了在高密度历史城区中实现个性化空间的创新策略。布兰德胡伯建筑事务所在严格规范限制下,通过体量变化与材料选择,为当代城市建筑提供了灵活适应性与空间品质兼顾的设计范例。 设计团队 布兰德胡伯建筑事务所以创新城市建筑策略著称,擅长在复杂城市环境中创造具有社会意义的建筑解决方案。事务所在住宅与混合功能建筑领域具有丰富经验,圣瓦伦霍夫项目体现了其对城市密度与居住品质的深入思考。 项目概述 圣瓦伦霍夫公寓和办公大楼位于德国科隆历史城区北部,是一座集居住与办公功能于一体的混合用途建筑。项目占地狭小,在密集的城市肌理中通过四单元几何组织创造灵活空间,设计充分回应了场地南侧20米高防火墙的限制条件。 设计理念 布兰德胡伯建筑事务所以几何化的体量组织回应城市密度与规范限制,设计概念源于对历史城区小尺度地块与战后建筑肌理的理解。建筑通过立方体雕塑般的体量变化,在严格遵守退界要求的同时,为每个单元创造独特的空间体验与光线条件。 空间与功能 圣瓦伦霍夫项目的四个独立单元围绕中央交通核组织,每个单元在高度与深度上形成独特体量。空间布局仅预装卫生间与厨房,保留开放式平面供用户自由组织。各单元通过垂直分离获得私人屋顶花园,在密集城区中创造珍贵的户外空间。 材料与技术 建筑采用钢筋混凝土结构,外立面全覆盖灰蓝色陶瓷面砖,色调参考科隆天空的平均颜色。这些由日本制造商专门开发的陶瓷砖具有一定的透气性,能在密封表面实现适度湿度调节,体现了材料选择的细致考量。 项目特色与启发 圣瓦伦霍夫公寓和办公大楼展示了在高密度历史城区中实现个性化空间的创新策略。布兰德胡伯建筑事务所在严格规范限制下,通过体量变化与材料选择,为当代城市建筑提供了灵活适应性与空间品质兼顾的设计范例。 设计团队 布兰德胡伯建筑事务所以创新城市建筑策略著称,擅长在复杂城市环境中创造具有社会意义的建筑解决方案。事务所在住宅与混合功能建筑领域具有丰富经验,圣瓦伦霍夫项目体现了其对城市密度与居住品质的深入思考。 本文来自 © 布兰德胡伯建筑事务所|Brandlhuber, 发布于 © 建筑学院官方网站。 未经授权,禁止转载或摘编。 编辑版本版权归 © 建筑学院官方网站 所有, 设计、图纸及照片版权归设计方 © 布兰德胡伯建筑事务所|Brandlhuber ↗ 所有。 查看作者在建筑学院发布的更多作品: 布兰德胡伯建筑事务所|Brandlhuber @ 建筑学院官方网站 Stavenhof公寓办公大楼布兰德胡伯科隆建筑 布兰德胡伯建筑事务所|Brandlhuber事务所 & 设计师 下载原图 收藏 0 关于作者 布兰德胡伯建筑事务所|Brandlhuber事务所 & 设计师 关注私信 8 文章 0 评论 0 粉丝 布兰德胡伯建筑事务所(Brandlhuber+)由阿尔诺·布兰德胡伯(Arno Brandlhuber)于2006年在柏林创立。事务所以其协作性、研究驱动的实践而闻名,工作涵盖建筑、研究项目、展览、出版物及政治介入。其标志性项目“Antivilla”(由废弃内衣工厂改造而成)体现了其对现有建筑改造、可持续性及成本效益的独特探索,并擅长运用混凝土等材料创造灵活、开放的空间。 克鲁贝什霍姆学校第一分校 School No. 1, Krabbesholm Højskole | MOS 建筑事务所 上一篇 2025-10-31 下午12:50 东京冰咖啡店 / Iced Coffee Shop, Tokyo | 长谷川豪建筑事务所 下一篇 2025-11-01 上午8:50 猜你喜欢 科隆壁板公寓和办公楼 / Kölner Brett, Apartment and Office Building | 布兰德胡伯建筑事务所|Brandlhuber 2025-11-09 住宅室内设计 格塞尔斯特大街,工作室与庭院式住宅 Geisselstrasse, Atelier and Courtyard House | 布兰德胡伯建筑事务所|Brandlhuber 2025-10-30 公共建筑设计 发表回复 请登录后评论...登录后才能评论 提交