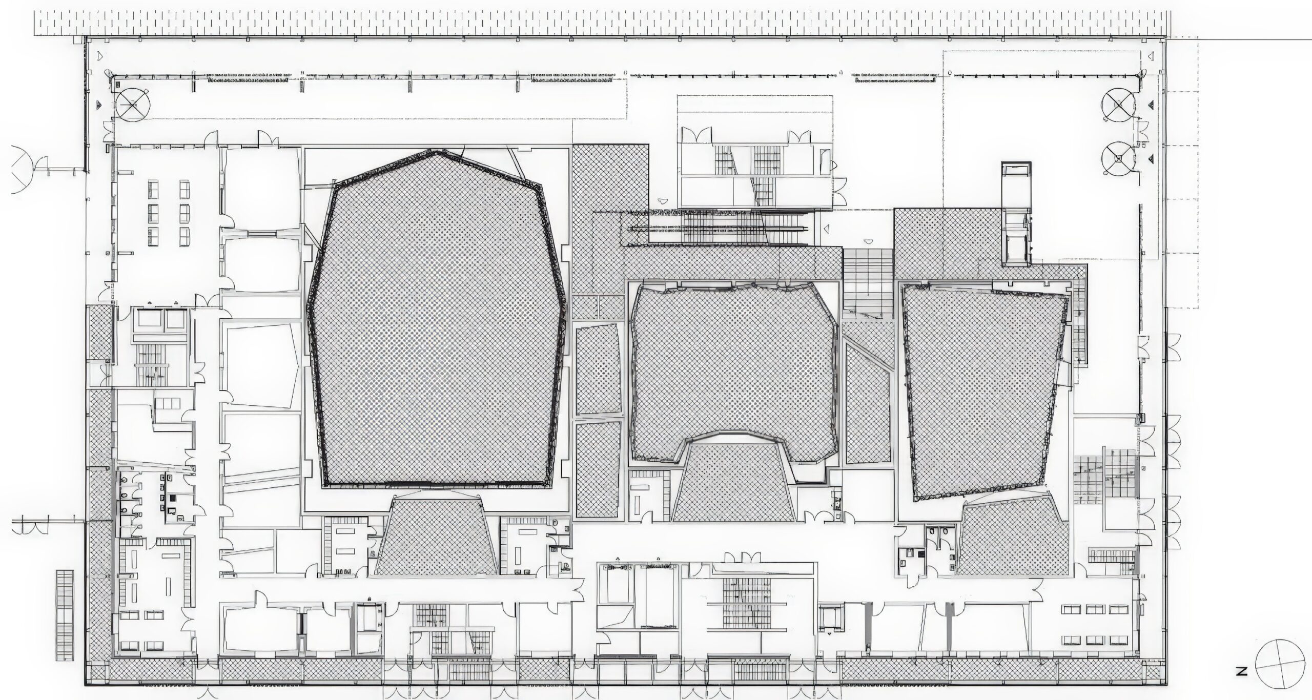
丹麦广播音乐会馆,哥本哈根 Danish Radio Concert House, Copenhagen | 让·努维尔建筑事务所|Jean Nouvel 让·努维尔建筑事务所|Jean Nouvel • 2025-11-05 上午8:50 • 公共建筑设计, 建筑师设计, 建筑设计, 文化建筑设计 丹麦广播音乐会馆位于哥本哈根,是一座标志性文化建筑。让·努维尔建筑事务所通过神秘几何体量设计,创造了一个充满变化的建筑外观。建筑内部包含音乐厅、排练室、商业空间和餐厅,形成丰富的城市文化生活节点。半透明立面在夜间成为多媒体投影屏幕,展现强烈的艺术表现力。 设计: 类型: 文化建筑设计 功能: 独立住宅 风格: 当代建筑 材料: 混凝土 钢材 木材 玻璃 尺度: 大型建筑 地点:丹麦 时间: 2020年 项目简介 丹麦广播音乐会馆位于丹麦哥本哈根,是一座大型文化建筑,建筑面积未公开,设计于21世纪初建成。 设计理念 设计团队以”神秘”为核心概念,通过几何体量回应不确定的城市环境。建筑作为平行六面体,在不同光线条件下呈现变化,夜间成为图像投影载体,创造丰富的城市界面。 空间与功能 建筑内部组织复杂多样,包含主音乐厅、排练室、商业街、餐厅和酒吧。内部街道沿城市运河布置,形成流动的公共空间。音乐家区域围绕庭院布置,公共区域通过皮拉内西式空间连接各功能。 材料与技术 采用半透明立面材料作为光线过滤器,木质面板包裹音乐厅体量。建筑注重细节设计,包括门、照明、天花板和楼梯,体现对使用者的尊重。 设计团队 让·努维尔建筑事务所是国际知名建筑设计机构,以创新性和艺术性著称,擅长将建筑与当地文化语境结合,创造独特的空间体验。 项目简介 丹麦广播音乐会馆位于丹麦哥本哈根,是一座大型文化建筑,建筑面积未公开,设计于21世纪初建成。 设计理念 设计团队以”神秘”为核心概念,通过几何体量回应不确定的城市环境。建筑作为平行六面体,在不同光线条件下呈现变化,夜间成为图像投影载体,创造丰富的城市界面。 空间与功能 建筑内部组织复杂多样,包含主音乐厅、排练室、商业街、餐厅和酒吧。内部街道沿城市运河布置,形成流动的公共空间。音乐家区域围绕庭院布置,公共区域通过皮拉内西式空间连接各功能。 材料与技术 采用半透明立面材料作为光线过滤器,木质面板包裹音乐厅体量。建筑注重细节设计,包括门、照明、天花板和楼梯,体现对使用者的尊重。 设计团队 让·努维尔建筑事务所是国际知名建筑设计机构,以创新性和艺术性著称,擅长将建筑与当地文化语境结合,创造独特的空间体验。 本文来自 © 让·努维尔建筑事务所|Jean Nouvel, 发布于 © 建筑学院官方网站。 未经授权,禁止转载或摘编。 编辑版本版权归 © 建筑学院官方网站 所有, 设计、图纸及照片版权归设计方 © 让·努维尔建筑事务所|Jean Nouvel ↗ 所有。 查看作者在建筑学院发布的更多作品: 让·努维尔建筑事务所|Jean Nouvel @ 建筑学院官方网站 丹麦广播音乐会馆哥本哈根文化建筑玻璃立面让·努维尔 让·努维尔建筑事务所|Jean Nouvel事务所 & 设计师 下载原图 收藏 0 关于作者 让·努维尔建筑事务所|Jean Nouvel事务所 & 设计师 关注私信 17 文章 0 评论 0 粉丝 让·努维尔是法国当代建筑大师,2008年普利兹克奖得主。其事务所以语境主义设计哲学著称,擅长运用钢、玻璃与光线,使每座建筑都能独特回应其所在地的历史、文化与环境。代表作包括巴黎阿拉伯世界研究所与阿布扎比卢浮宫,前者荣获阿卡汗奖。其作品拒绝自我复制,在全球范围内以光影实验和在地叙事拓展了建筑边界。 奥利维尔多杜罗之家 House in Oliveira do Douro | 德莫拉建筑事务所|De Mora 上一篇 2025-11-05 上午8:50 花园餐厅 Garden Restaurant | 石上纯也建筑事务所|Junya Ishigami 下一篇 2025-11-05 上午8:50 猜你喜欢 恰在水域之间——私人画廊与住宅 2018-07-27 建筑设计 艺术、里昂 Arts, Reims | 大卫·奇珀菲尔德建筑事务所|David Chipperfield 2025-11-18 公共建筑设计 杭州剧院和美术馆 Hangzhou Performing Arts Center and Art Museum | Steven Holl 2025-10-26 公共建筑设计 静谧中透着古典法则之美:水镜之馆 / DC.AD + Victor Vicente 2019-12-23 公共建筑设计 “共生”——北京爱马思艺术中心 / 建筑营设计工作室 2019-10-25 公共建筑设计 让·努维尔新作上海“恒基·旭辉天地”落成开业 2021-05-14 商业建筑设计 发表回复 请登录后评论...登录后才能评论 提交