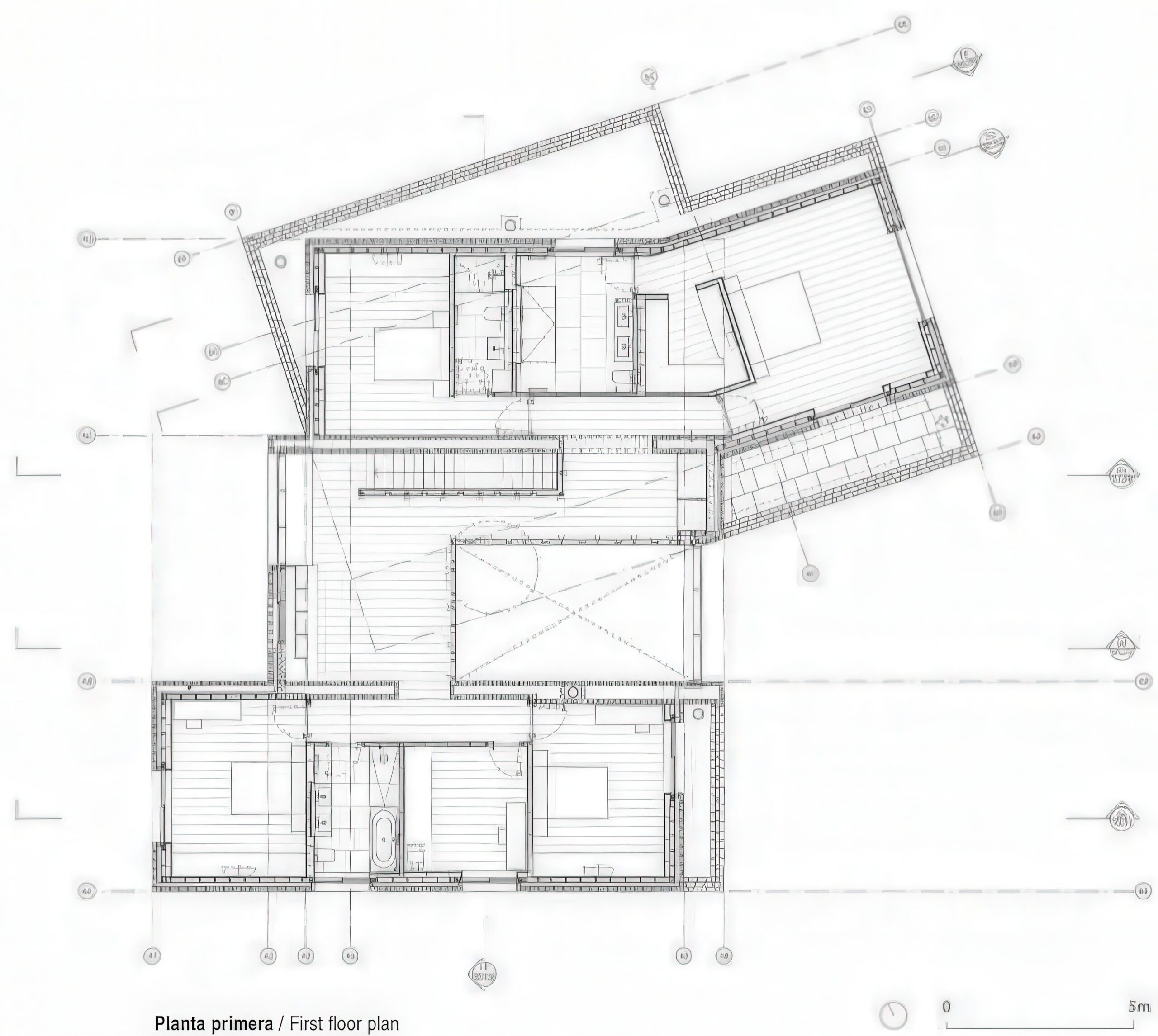
高格大厦 Highgate House | 卡莫迪·格罗克建筑事务所|Carmody Groarke 卡莫迪·格罗克建筑事务所|Carmody Groarke • 2025-11-06 下午12:50 • 公共建筑设计, 建筑师设计, 建筑设计, 文化建筑设计 高格大厦是卡莫迪·格罗克建筑事务所在伦敦设计的一座独立住宅。项目取代了原有的爱德华时代住宅,通过创新的空间组织和材料运用,在尊重郊区文脉的同时创造了现代家庭生活空间。设计巧妙处理了公共与私密的关系,10米高的中央大厅成为空间核心,砖材的雕塑性使用赋予建筑独特的物理质感。 设计: 卡莫迪·格罗克建筑事务所|Carmody Groarke 类型: 文化建筑设计 功能: 独立住宅 风格: 当代建筑 材料: 木材 石材 砖材 尺度: 小型建筑 地点:伦敦 时间: 2014年 项目简介 高格大厦位于伦敦海格特区,是一座独立住宅项目,建筑面积未明确,设计建成于当代。项目取代原有爱德华时代住宅,为现代家庭生活重新设计。 设计理念 设计团队探索建筑在尊重环境与创造新生活模式间的平衡。通过比例、尺度和材料的精心处理,既呼应周边郊区建筑文脉,又引入现代空间体验。中央大厅作为空间核心,强化了内外空间的层次关系。 空间与功能 建筑围绕10米高中央大厅组织空间,底层为开放式生活区,上层为传统卧室空间。前后立面处理形成鲜明对比:前立面采用三个紧凑山墙呼应周边建筑,后立面设置大面积窗户和露台连接花园。 材料与技术 砖材作为承重结构和饰面材料统一使用,随机砌筑形成纯粹表面。辅以花岗岩基座、白色洞石地面和黑色洞石泳池区。黑色熏橡木楼梯和白色抛光石膏天花板强化了中央大厅的垂直尺度感。 设计团队 卡莫迪·格罗克建筑事务所是英国知名建筑设计事务所,以对材料、工艺和空间体验的深入研究著称,在文化、住宅和商业建筑领域均有杰出作品。 项目简介 高格大厦位于伦敦海格特区,是一座独立住宅项目,建筑面积未明确,设计建成于当代。项目取代原有爱德华时代住宅,为现代家庭生活重新设计。 设计理念 设计团队探索建筑在尊重环境与创造新生活模式间的平衡。通过比例、尺度和材料的精心处理,既呼应周边郊区建筑文脉,又引入现代空间体验。中央大厅作为空间核心,强化了内外空间的层次关系。 空间与功能 建筑围绕10米高中央大厅组织空间,底层为开放式生活区,上层为传统卧室空间。前后立面处理形成鲜明对比:前立面采用三个紧凑山墙呼应周边建筑,后立面设置大面积窗户和露台连接花园。 材料与技术 砖材作为承重结构和饰面材料统一使用,随机砌筑形成纯粹表面。辅以花岗岩基座、白色洞石地面和黑色洞石泳池区。黑色熏橡木楼梯和白色抛光石膏天花板强化了中央大厅的垂直尺度感。 设计团队 卡莫迪·格罗克建筑事务所是英国知名建筑设计事务所,以对材料、工艺和空间体验的深入研究著称,在文化、住宅和商业建筑领域均有杰出作品。 本文来自 © 卡莫迪·格罗克建筑事务所|Carmody Groarke, 发布于 © 建筑学院官方网站。 未经授权,禁止转载或摘编。 编辑版本版权归 © 建筑学院官方网站 所有, 设计、图纸及照片版权归设计方 © 卡莫迪·格罗克建筑事务所|Carmody Groarke ↗ 所有。 查看作者在建筑学院发布的更多作品: 卡莫迪·格罗克建筑事务所|Carmody Groarke @ 建筑学院官方网站 伦敦卡莫迪·格罗克独立住宅砖材高格大厦 卡莫迪·格罗克建筑事务所|Carmody Groarke事务所 & 设计师 下载原图 收藏 0 关于作者 卡莫迪·格罗克建筑事务所|Carmody Groarke事务所 & 设计师 关注私信 15 文章 0 评论 0 粉丝 卡莫迪·格罗克(Carmody Groarke)是一家位于伦敦的建筑事务所,由凯文·卡莫迪(Kevin Carmody)和安迪·格罗克(Andy Groarke)于2006年共同创立。该事务所以其在国际范围内开展的一系列艺术、文化和遗产项目而闻名。他们善于通过精巧的建筑介入,对特定的场地文脉与历史做出深刻而细腻的当代回应,其作品范围涵盖大型公共装置、美术馆、酒店以及私人住宅等多个领域,形成了独特的设计语言。 气球 Balloon | 石上纯也建筑事务所|Junya Ishigami 上一篇 2025-11-06 下午12:50 瓦德塞登庄园音乐厅 Waddesdon Manor Pavilion | 卡莫迪·格罗克建筑事务所|Carmody Groarke 下一篇 2025-11-06 下午12:50 猜你喜欢 神户“帽盒”之家,旋转45度的平面 2020-02-25 建筑设计 庄重而透明,优雅而自然——印度红色“树屋” / PG Associates 2020-06-12 建筑设计 曲线屋 / Daisuke Ibano, Ryosuke Fujii 2022-12-23 建筑设计 印度洋上的一顶渔夫帽——海景3号房子 / Alexis Dornier 2019-10-15 建筑设计 仿佛重峦叠嶂的“山峰”:屋顶阁楼 2019-05-21 住宅建筑设计 嵌入场地的巨石:Cerro la Cruz住宅 / Turner Arquitectos 2020-01-06 建筑设计 发表回复 请登录后评论...登录后才能评论 提交