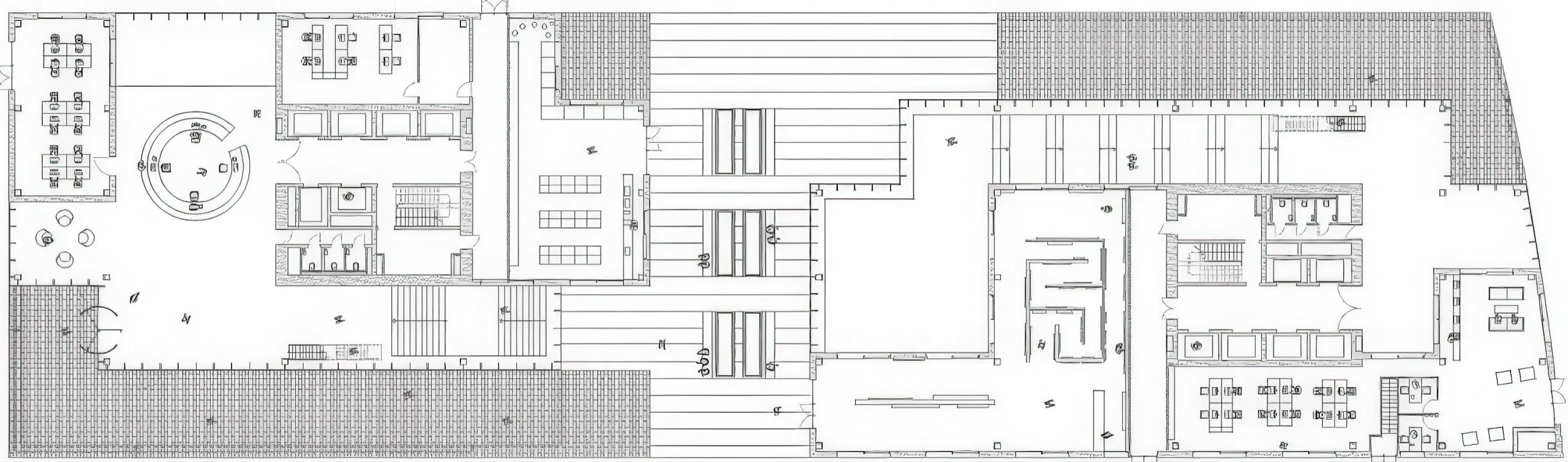
DNB总部大厦,中央大楼 / DNB Headquarters, Central Building | MVRDV 建筑事务所 MVRDV • 2025-11-09 上午8:50 • 公共建筑设计, 建筑师设计, 建筑设计, 文化建筑设计 DNB总部大厦中央大楼由MVRDV建筑事务所设计,位于挪威奥斯陆,是一座现代化办公建筑。项目通过像素化设计概念整合银行分散的办公空间,创造高效协作环境,同时建立清晰的机构身份认同。 设计: MVRDV 类型: 文化建筑设计 功能: 办公楼 风格: 当代建筑 材料: 钢材 玻璃 砖材 尺度: 大型建筑 地点:奥斯陆 时间: 2013年 项目概述 DNB总部大厦中央大楼位于挪威奥斯陆,是一座大型办公建筑,由MVRDV建筑事务所设计。项目将挪威银行原先分散在城市各处的办公空间集中整合,创造协同效应和明确的机构身份。建筑采用创新的像素化设计策略,提供超过2000个灵活工作空间。 设计理念 设计核心是将银行的社会性和民主性特征转化为建筑语言,通过6×6米的工作单元像素网格系统,实现空间的高度适应性和灵活性。像素化设计既保证了建筑效率,又能针对城市文脉做出具体回应,将通用性转化为独特性。 空间与功能 建筑包含17层办公空间,通过一条连续的内部路径连接所有公共区域。这条蜿蜒上升的路线设有木质楼梯和桥梁,连接着非正式会议区、阅读室、休息区和壁炉等社交空间。顶层设有可容纳140人的全景餐厅、行政休息室、董事会会议室,以及拥有250个工作站的交易大厅。 材料与技术 建筑采用钢结构框架外包砖材表皮,所有外部露台、墙壁和天花板均使用砖材覆盖,既符合挪威环保标准,又赋予建筑人性化尺度。高性能玻璃幕墙系统适应挪威寒冷冬季,同时提供自然通风。 项目特色与启发 DNB总部大厦中央大楼展示了如何通过创新的像素化设计策略,将大型办公建筑转化为促进员工交流和协作的活力空间。项目在标准化与个性化、效率与人性化之间找到了平衡,为当代办公建筑设计提供了重要参考。 设计团队 MVRDV建筑事务所是荷兰知名建筑设计事务所,以创新性和研究导向的设计方法著称。事务所在城市规划、建筑设计和景观设计领域具有丰富经验,擅长通过数据驱动和概念性思考创造独特的建筑解决方案。 项目概述 DNB总部大厦中央大楼位于挪威奥斯陆,是一座大型办公建筑,由MVRDV建筑事务所设计。项目将挪威银行原先分散在城市各处的办公空间集中整合,创造协同效应和明确的机构身份。建筑采用创新的像素化设计策略,提供超过2000个灵活工作空间。 设计理念 设计核心是将银行的社会性和民主性特征转化为建筑语言,通过6×6米的工作单元像素网格系统,实现空间的高度适应性和灵活性。像素化设计既保证了建筑效率,又能针对城市文脉做出具体回应,将通用性转化为独特性。 空间与功能 建筑包含17层办公空间,通过一条连续的内部路径连接所有公共区域。这条蜿蜒上升的路线设有木质楼梯和桥梁,连接着非正式会议区、阅读室、休息区和壁炉等社交空间。顶层设有可容纳140人的全景餐厅、行政休息室、董事会会议室,以及拥有250个工作站的交易大厅。 材料与技术 建筑采用钢结构框架外包砖材表皮,所有外部露台、墙壁和天花板均使用砖材覆盖,既符合挪威环保标准,又赋予建筑人性化尺度。高性能玻璃幕墙系统适应挪威寒冷冬季,同时提供自然通风。 项目特色与启发 DNB总部大厦中央大楼展示了如何通过创新的像素化设计策略,将大型办公建筑转化为促进员工交流和协作的活力空间。项目在标准化与个性化、效率与人性化之间找到了平衡,为当代办公建筑设计提供了重要参考。 设计团队 MVRDV建筑事务所是荷兰知名建筑设计事务所,以创新性和研究导向的设计方法著称。事务所在城市规划、建筑设计和景观设计领域具有丰富经验,擅长通过数据驱动和概念性思考创造独特的建筑解决方案。 本文来自 © MVRDV, 发布于 © 建筑学院官方网站。 未经授权,禁止转载或摘编。 编辑版本版权归 © 建筑学院官方网站 所有, 设计、图纸及照片版权归设计方 © MVRDV ↗ 所有。 查看作者在建筑学院发布的更多作品: MVRDV @ 建筑学院官方网站 DNB HeadquartersMVRDV办公建筑设计奥斯陆办公建筑 MVRDV事务所 & 设计师 下载原图 收藏 0 关于作者 MVRDV事务所 & 设计师 关注私信 19 文章 0 评论 0 粉丝 哥伦比亚大学新博士生楼 / New Doctorate’s Building, National University of Colombia | 霍尔 Steven Holl 上一篇 2025-11-08 上午8:50 穆拉赫宣言城市 Cité Manifeste, Mulhouse | 拉卡东与瓦萨尔建筑师事务所|Lacaton & Vassal 下一篇 2025-11-09 下午12:50 猜你喜欢 印度浦那“未来之塔” / MVRDV 2018-12-04 住宅建筑设计 外媒速递 | 结构师发发威,建筑真的可以很美,美过MVRDV! 2017-11-30 建筑设计 垂直村庄,蒙彼利埃。 Vertical Village, Montpellier | MVRDV 建筑事务所 2025-10-31 公共建筑设计 MVRDV“地拉那金字塔”正式动工,阿尔巴尼亚粗野主义纪念碑改造 2021-02-27 公共建筑设计 原来水泥也能如此夺目!—MVRDV为宝格丽设计的新外观 2018-08-10 建筑设计 Celosía 社会住房公寓 / Celosía Social Housing Apartments | MVRDV + Blanca Lleó Arquitectos 2025-12-21 住宅建筑设计 发表回复 请登录后评论...登录后才能评论 提交