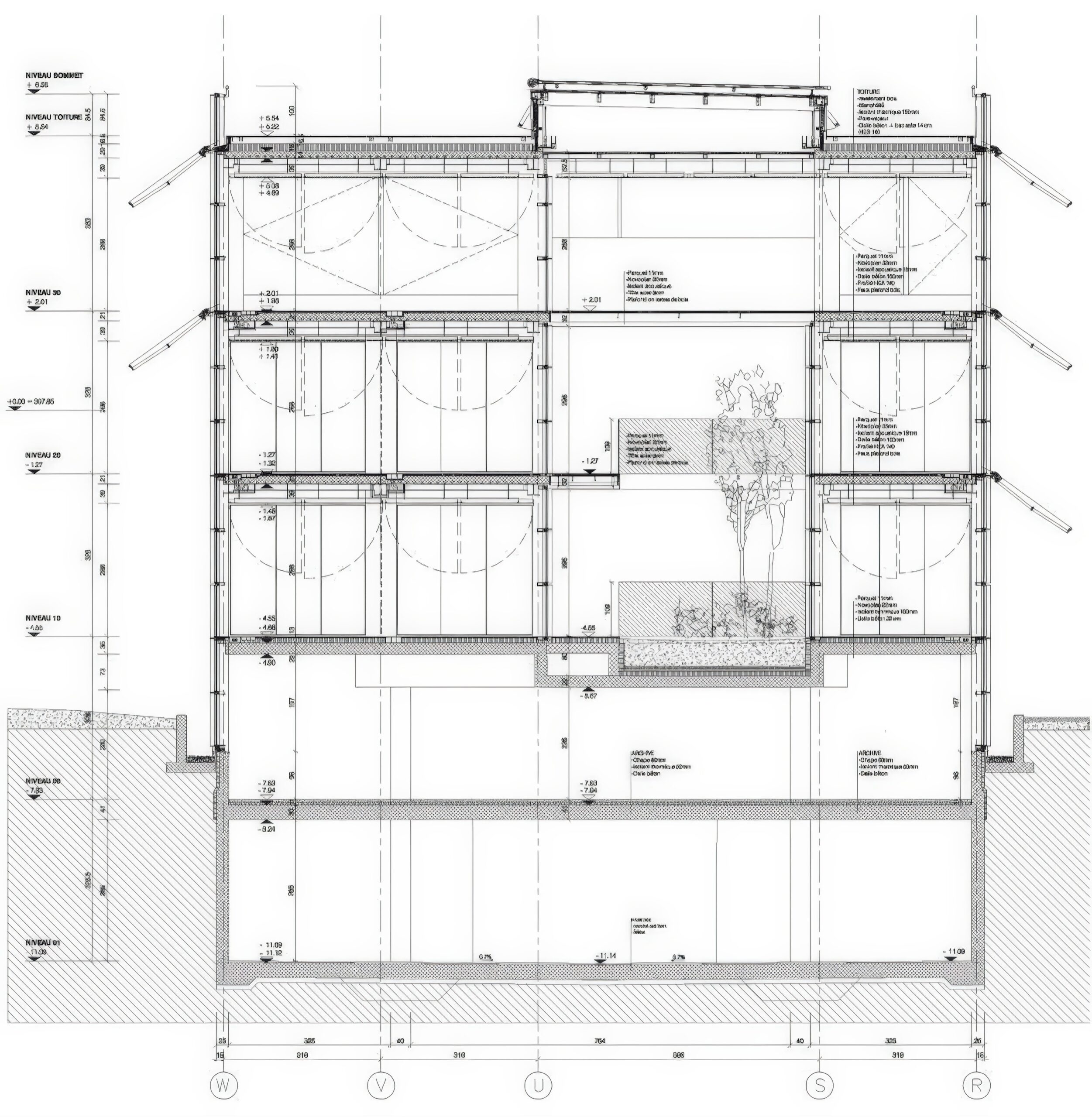
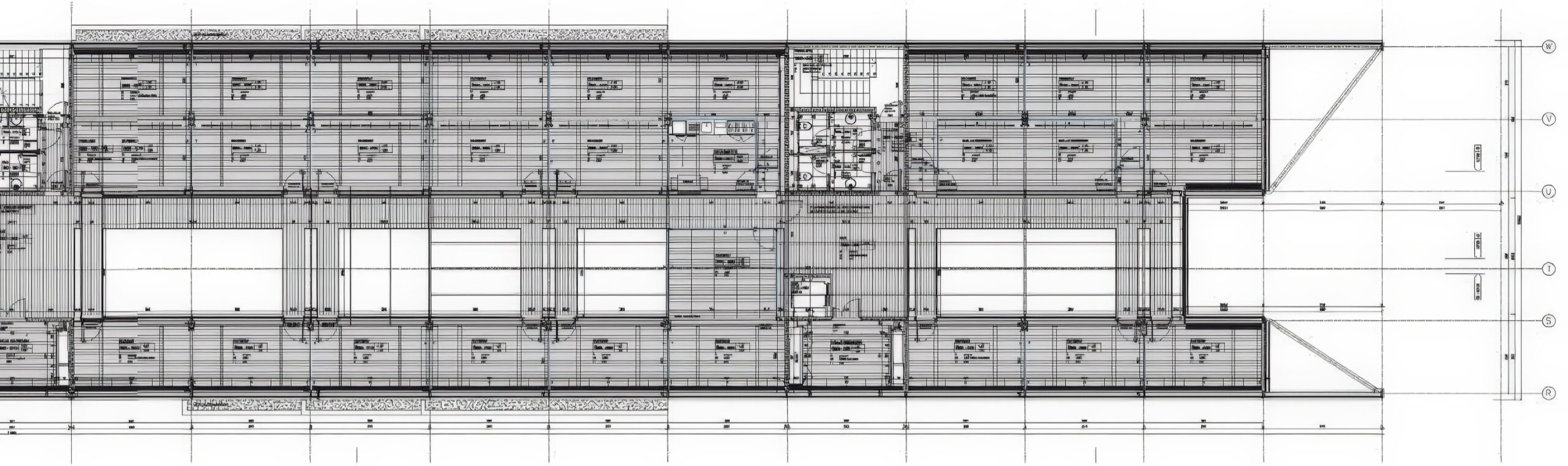
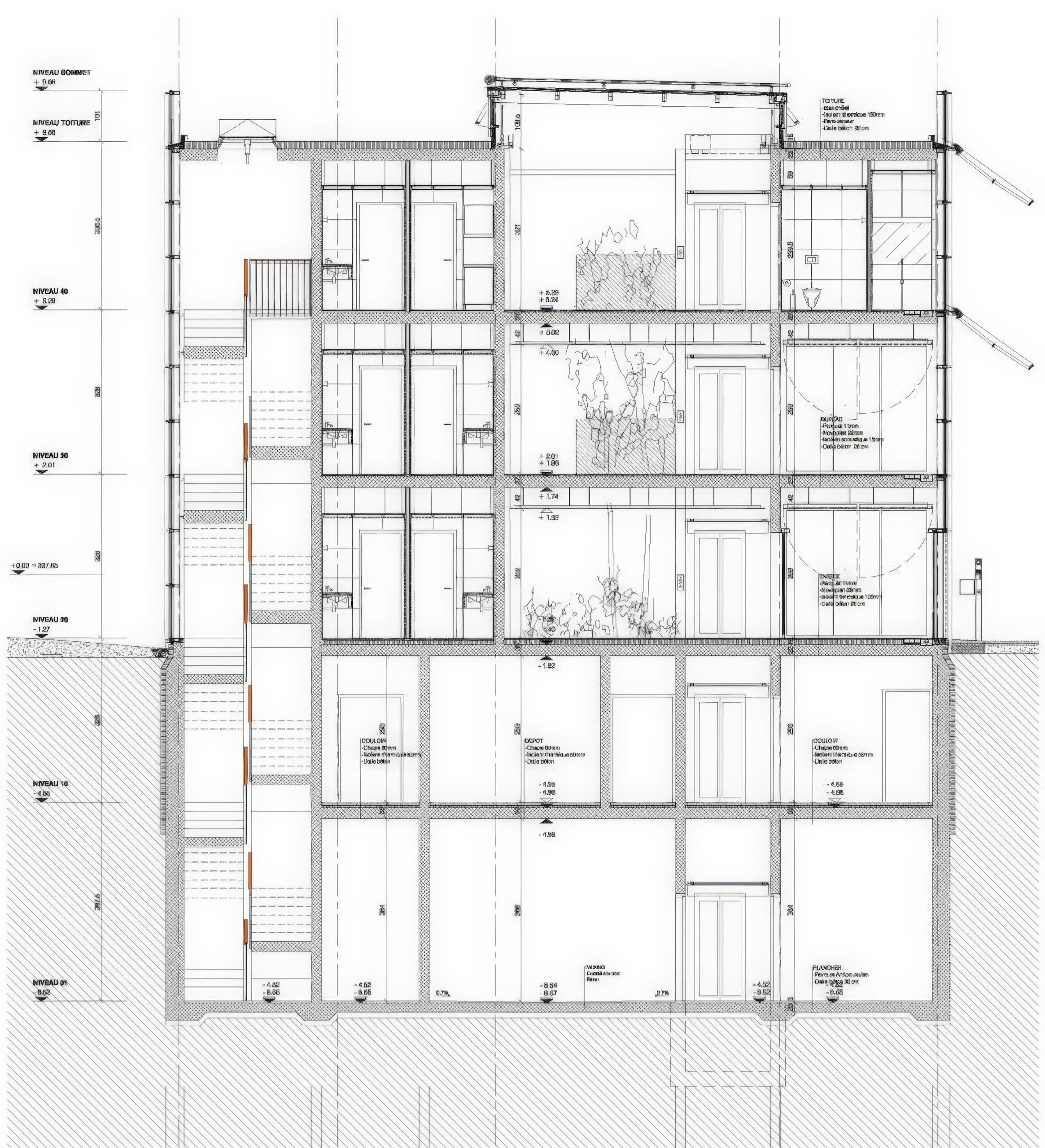
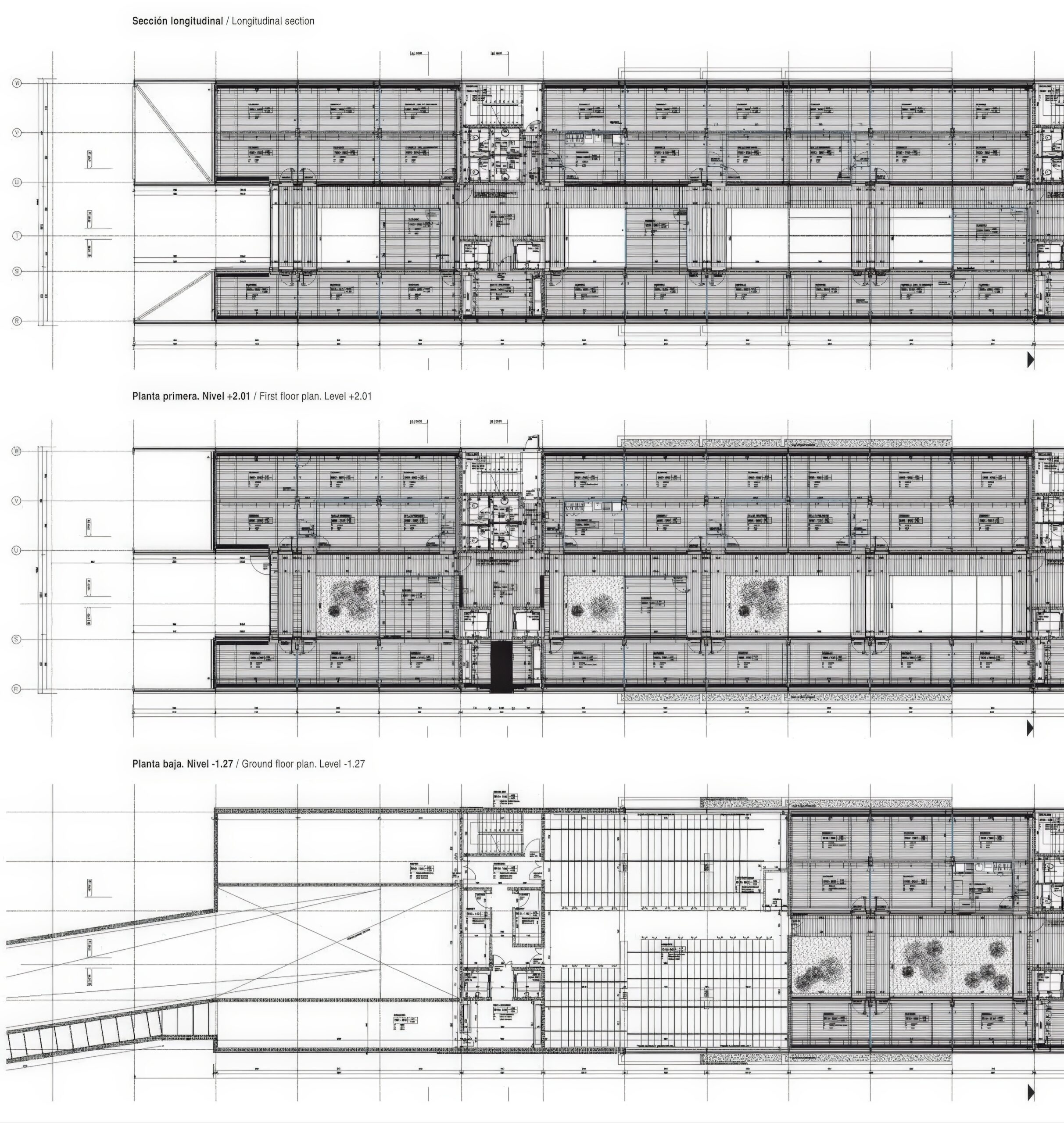
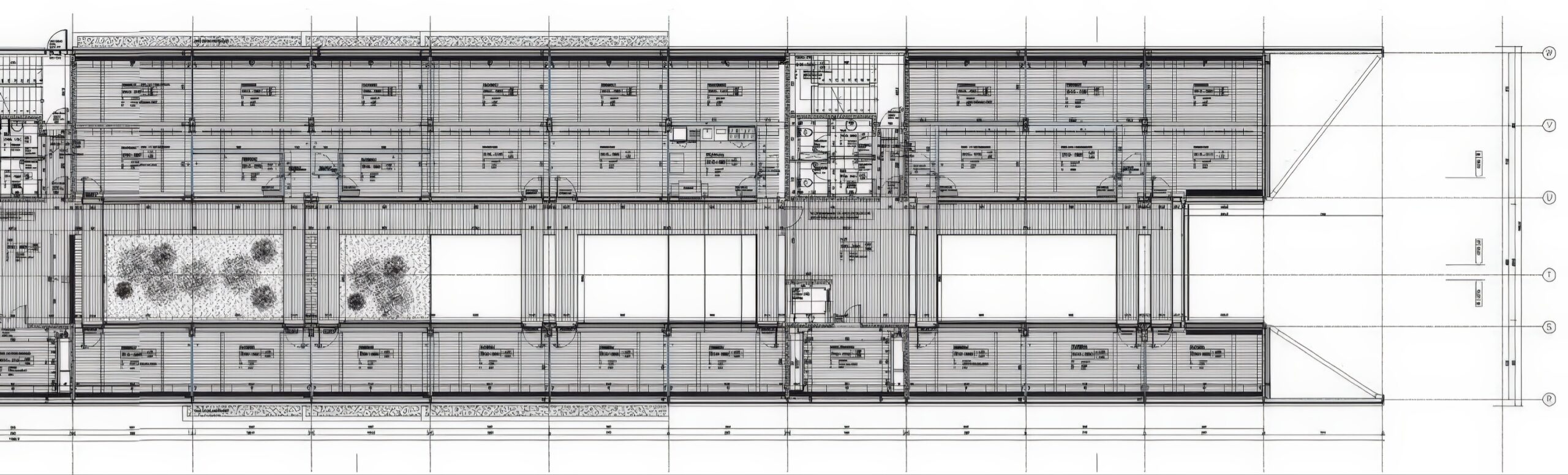
瑞士罗希尔总部,日内瓦 Richemont Headquarters, Geneva | 让·努维尔建筑事务所|Jean Nouvel 让·努维尔建筑事务所|Jean Nouvel • 2025-11-13 上午8:50 • 建筑设计 瑞士罗希尔总部位于日内瓦湖畔,是一座现代化的办公建筑群。项目由让·努维尔建筑事务所设计,巧妙融合了玻璃幕墙与自然景观,创造出透明与反射的视觉体验。设计通过分层玻璃和植被的运用,实现了建筑与环境的和谐共生,展现了当代建筑的精湛技艺。 设计: 让·努维尔建筑事务所|Jean Nouvel 类型: 建筑设计 功能: 办公楼 风格: 当代建筑 材料: 钢材 木材 玻璃 尺度: 大型建筑 地点:日内瓦 时间: 2000年 项目简介 瑞士罗希尔总部位于瑞士日内瓦,是一座办公建筑群,设计规模包括多个建筑体量环绕线性庭院。项目设计于21世纪初,建成后成为该地区标志性的企业总部。 设计理念 设计团队以”隐形建筑”为核心理念,通过分层玻璃和植被的运用,实现建筑与自然景观的相互渗透。灵感来源于场地的百年雪松和森林景观,强调透明、反射和轻盈的建筑表达。 空间与功能 办公空间始终位于两个景观之间,采用超清玻璃隔断,部分丝印树木阴影图案。最长建筑环绕两个线性庭院,其他建筑与之对话,共享材料词汇和透明干扰。历史别墅经过考古修复,与新建筑形成诗意对比。 材料与技术 主要采用分层玻璃系统,包括超清玻璃、丝印玻璃、喷砂玻璃等。地板和天花板使用抛光清漆木材增强反射。施工注重细节,实现建筑轻盈表达和可持续性。 设计团队 让·努维尔建筑事务所是国际知名建筑事务所,以创新设计和材料运用著称,擅长将建筑与环境融合,作品遍布全球,曾获普利兹克奖等重要奖项。 项目简介 瑞士罗希尔总部位于瑞士日内瓦,是一座办公建筑群,设计规模包括多个建筑体量环绕线性庭院。项目设计于21世纪初,建成后成为该地区标志性的企业总部。 设计理念 设计团队以”隐形建筑”为核心理念,通过分层玻璃和植被的运用,实现建筑与自然景观的相互渗透。灵感来源于场地的百年雪松和森林景观,强调透明、反射和轻盈的建筑表达。 空间与功能 办公空间始终位于两个景观之间,采用超清玻璃隔断,部分丝印树木阴影图案。最长建筑环绕两个线性庭院,其他建筑与之对话,共享材料词汇和透明干扰。历史别墅经过考古修复,与新建筑形成诗意对比。 材料与技术 主要采用分层玻璃系统,包括超清玻璃、丝印玻璃、喷砂玻璃等。地板和天花板使用抛光清漆木材增强反射。施工注重细节,实现建筑轻盈表达和可持续性。 设计团队 让·努维尔建筑事务所是国际知名建筑事务所,以创新设计和材料运用著称,擅长将建筑与环境融合,作品遍布全球,曾获普利兹克奖等重要奖项。 本文来自 © 让·努维尔建筑事务所|Jean Nouvel, 发布于 © 建筑学院官方网站。 未经授权,禁止转载或摘编。 编辑版本版权归 © 建筑学院官方网站 所有, 设计、图纸及照片版权归设计方 © 让·努维尔建筑事务所|Jean Nouvel ↗ 所有。 查看作者在建筑学院发布的更多作品: 让·努维尔建筑事务所|Jean Nouvel @ 建筑学院官方网站 办公建筑日内瓦玻璃建筑瑞士罗希尔总部让·努维尔 让·努维尔建筑事务所|Jean Nouvel事务所 & 设计师 下载原图 收藏 0 关于作者 让·努维尔建筑事务所|Jean Nouvel事务所 & 设计师 关注私信 17 文章 0 评论 0 粉丝 让·努维尔是法国当代建筑大师,2008年普利兹克奖得主。其事务所以语境主义设计哲学著称,擅长运用钢、玻璃与光线,使每座建筑都能独特回应其所在地的历史、文化与环境。代表作包括巴黎阿拉伯世界研究所与阿布扎比卢浮宫,前者荣获阿卡汗奖。其作品拒绝自我复制,在全球范围内以光影实验和在地叙事拓展了建筑边界。 水网编织的未来聚落 | CROX闊合 上一篇 2025-11-12 下午12:59 开罗住宅 House in Keremma | 拉卡东与瓦萨尔建筑师事务所|Lacaton & Vassal 下一篇 2025-11-13 下午12:50 猜你喜欢 Next Hydroponic Plant Next Hydroponic Plant | 曼努埃尔·塞万提斯|Manuel Cervantes 2025-12-04 公共建筑设计 城市活力触媒,台州Z中心 | gad 作品 2021-03-16 办公建筑设计 Dreamnext 展厅工作坊 / KYWC Architects x 首尔国立大学 2021-06-15 公共建筑设计 诺曼底办公室大楼 Office Building, Nantes | 拉卡东与瓦萨尔建筑师事务所|Lacaton & Vassal 2025-11-10 公共建筑设计 W‐Mission 总部 / Behet Bondzio Lin Architekten 2024-06-26 办公建筑设计 弥漫着清简艺术气息的设计工作室 / Khosla建筑工作室 2019-09-24 办公建筑设计 发表回复 请登录后评论...登录后才能评论 提交