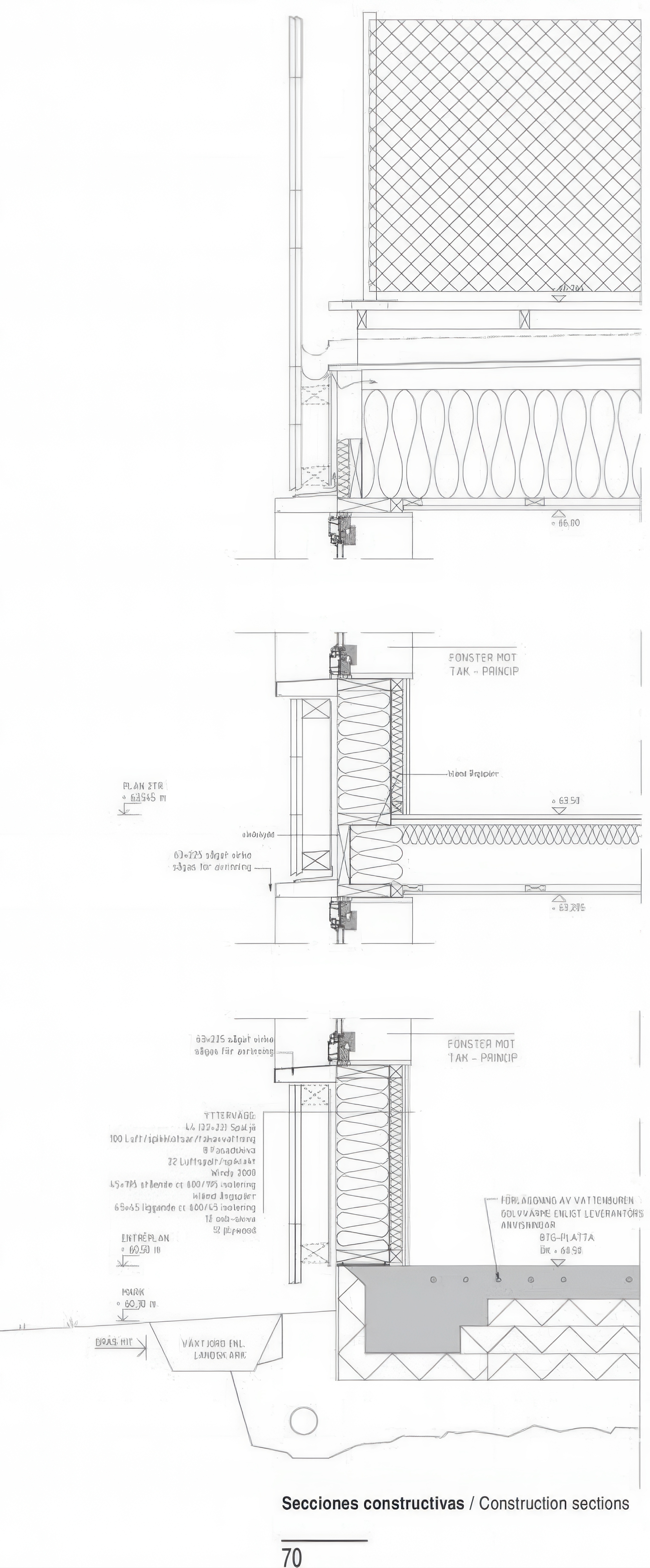
胡萨罗之家 Husarö House | 谭姆与维德高德建筑事务所|Tham & Videgård 谭姆与维德高德建筑事务所|Tham & Videgård • 2025-11-16 上午8:50 • 公共建筑设计, 建筑师设计, 建筑设计, 文化建筑设计 胡萨罗之家是谭姆与维德高德建筑事务所在斯德哥尔摩群岛设计的独立住宅。项目坐落于松林环绕的高地,享有壮丽海景。建筑采用双坡屋顶形式,通过木结构体系创造开放流动的空间体验,黑色折叠金属板外立面与自然环境形成鲜明对比。 设计: 谭姆与维德高德建筑事务所|Tham & Videgård 类型: 文化建筑设计 功能: 独立住宅 风格: 当代建筑 材料: 木材 玻璃 金属板 尺度: 小型建筑 地点:斯德哥尔摩 时间: 2010年 项目简介 胡萨罗之家位于瑞典斯德哥尔摩群岛,是一座独立住宅项目,建筑面积约200平方米,于2010年设计建成。 设计理念 设计团队以场地特有的光线条件、海景视野和平坦基岩为出发点,在有限预算下采用结构理性主义策略,通过简洁的几何形态回应自然环境。 空间与功能 建筑分为两层:底层为开放式社交区域,包含客厅、餐厅;上层为私密空间,设有卧室和游戏区。独立的核心筒容纳厨房、卫生间和楼梯,组织起流畅的空间序列。 材料与技术 主要采用胶合木梁结构体系,外立面为黑色折叠金属板,内部采用木材饰面。弯曲胶合板形成的拱顶系统赋予空间方向性,大型推拉门窗最大限度引入自然光线。 设计团队 谭姆与维德高德建筑事务所是瑞典知名建筑事务所,以精致的住宅设计和对自然环境的敏感回应著称,作品注重材料表达和空间品质。 项目简介 胡萨罗之家位于瑞典斯德哥尔摩群岛,是一座独立住宅项目,建筑面积约200平方米,于2010年设计建成。 设计理念 设计团队以场地特有的光线条件、海景视野和平坦基岩为出发点,在有限预算下采用结构理性主义策略,通过简洁的几何形态回应自然环境。 空间与功能 建筑分为两层:底层为开放式社交区域,包含客厅、餐厅;上层为私密空间,设有卧室和游戏区。独立的核心筒容纳厨房、卫生间和楼梯,组织起流畅的空间序列。 材料与技术 主要采用胶合木梁结构体系,外立面为黑色折叠金属板,内部采用木材饰面。弯曲胶合板形成的拱顶系统赋予空间方向性,大型推拉门窗最大限度引入自然光线。 设计团队 谭姆与维德高德建筑事务所是瑞典知名建筑事务所,以精致的住宅设计和对自然环境的敏感回应著称,作品注重材料表达和空间品质。 本文来自 © 谭姆与维德高德建筑事务所|Tham & Videgård, 发布于 © 建筑学院官方网站。 未经授权,禁止转载或摘编。 编辑版本版权归 © 建筑学院官方网站 所有, 设计、图纸及照片版权归设计方 © 谭姆与维德高德建筑事务所|Tham & Videgård ↗ 所有。 查看作者在建筑学院发布的更多作品: 谭姆与维德高德建筑事务所|Tham & Videgård @ 建筑学院官方网站 斯德哥尔摩群岛木结构独立住宅胡萨罗之家谭姆与维德高德 谭姆与维德高德建筑事务所|Tham & Videgård事务所 & 设计师 下载原图 收藏 0 关于作者 谭姆与维德高德建筑事务所|Tham & Videgård事务所 & 设计师 关注私信 12 文章 0 评论 0 粉丝 谭姆与维德高德建筑事务所(Tham & Videgård Arkitekter)是成立于瑞典斯德哥尔摩的知名建筑事务所,由波勒·谭姆与马丁·维德高德于1999年创立。他们以其深刻的实践哲学著称,坚信“建筑必须被建造出来”以供体验与评估。其作品涵盖博物馆、学校及住宅,以独特的材料运用、清晰的形体表达以及对文脉的敏锐回应而闻名。代表作包括卡尔马艺术博物馆、镜立方树屋及瑞典皇家理工学院建筑学院等。 Vault House / Vault House | MARKLEE 建筑事务所 上一篇 2025-11-15 下午12:50 花园别墅 Garden House | 谭姆与维德高德建筑事务所|Tham & Videgård 下一篇 2025-11-16 下午12:50 猜你喜欢 1014号房屋,格兰多尔斯 House 1014, Granollers | Harquitectes 建筑师事务所|Harquitectes 2025-10-26 公共建筑设计 三角饭团之家,Musubi 住宅 / Craig Steely Architecture 2022-05-04 建筑设计 柳河町住宅 / 笠井太雅+郑爱香建筑事务所 / KACH 2022-03-30 建筑设计 翩然出挑,温暖而质朴:泰国 Nakhon Chai Si 住宅 / Junsekino Architect and Design 2019-12-05 建筑设计 清风徐来,光影婆娑:越南“自呼吸”墙宅 2020-07-01 建筑设计 森林住宅,如巨石般厚重 / Marte Marte Architects 2021-01-04 建筑设计 发表回复 请登录后评论...登录后才能评论 提交