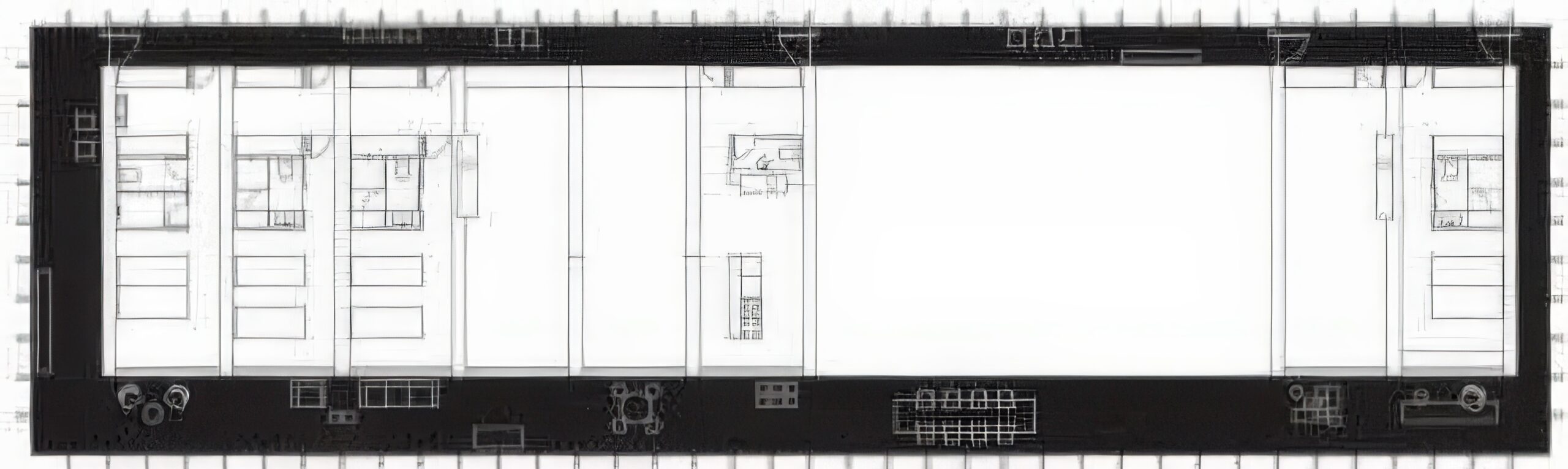
边界的房子 Boundary House | 何塞·玛丽亚·桑切斯·加西亚|José María Sánchez García 何塞·玛丽亚·桑切斯·加西亚|José María Sánchez García • 2025-11-22 下午12:50 • 公共建筑设计, 建筑师, 建筑设计, 文化建筑设计 边界的房子是位于西班牙卡塞雷斯市卡萨斯德唐安东尼奥的一座独立住宅,由何塞·玛丽亚·桑切斯·加西亚设计。项目通过精确的边界定义与空间序列化,探索了室内外空间的过渡关系。环绕建筑的外围步道既是主要流线,也是遮阳空间,创造了独特的居住体验。 设计: 何塞·玛丽亚·桑切斯·加西亚|José María Sánchez García 类型: 文化建筑设计 功能: 独立住宅 风格: 当代建筑 材料: 混凝土 钢材 玻璃 尺度: 小型建筑 地点:西班牙 时间: 2016年 项目简介 边界的房子位于西班牙卡塞雷斯市卡萨斯德唐安东尼奥,是一座独立住宅项目,建筑面积约200平方米,设计于2016年。 设计理念 设计团队通过序列化空间与精确边界定义,探索了室内外空间的过渡关系。项目将庭院视为另一个房间而非室内空间的延伸,外围步道作为主要流线重新定义了传统走廊的概念。 空间与功能 建筑由一系列比例相同的房间围绕中央庭院布置,外围步道环绕整个建筑周长。室内房间高度3.5米,外围步道高度2.2米,形成垂直与水平空间的对比。庭院作为共享空间,遵循与室内相同的几何规则。 材料与技术 房间采用混凝土箱体结构直接置于地面上,外围步道采用轻质结构,介于悬挑与梁之间。材料选择强化了序列与边界的双重性,创造了阳光充足的压缩外部空间与光线柔和的阴影内部空间。 设计团队 何塞·玛丽亚·桑切斯·加西亚建筑事务所专注于探索建筑边界、空间序列与材料表达,作品以精确的几何控制和空间体验著称。 项目简介 边界的房子位于西班牙卡塞雷斯市卡萨斯德唐安东尼奥,是一座独立住宅项目,建筑面积约200平方米,设计于2016年。 设计理念 设计团队通过序列化空间与精确边界定义,探索了室内外空间的过渡关系。项目将庭院视为另一个房间而非室内空间的延伸,外围步道作为主要流线重新定义了传统走廊的概念。 空间与功能 建筑由一系列比例相同的房间围绕中央庭院布置,外围步道环绕整个建筑周长。室内房间高度3.5米,外围步道高度2.2米,形成垂直与水平空间的对比。庭院作为共享空间,遵循与室内相同的几何规则。 材料与技术 房间采用混凝土箱体结构直接置于地面上,外围步道采用轻质结构,介于悬挑与梁之间。材料选择强化了序列与边界的双重性,创造了阳光充足的压缩外部空间与光线柔和的阴影内部空间。 设计团队 何塞·玛丽亚·桑切斯·加西亚建筑事务所专注于探索建筑边界、空间序列与材料表达,作品以精确的几何控制和空间体验著称。 本文来自 © 何塞·玛丽亚·桑切斯·加西亚|José María Sánchez García, 发布于 © 建筑学院官方网站。 未经授权,禁止转载或摘编。 编辑版本版权归 © 建筑学院官方网站 所有, 设计、图纸及照片版权归设计方 © 何塞·玛丽亚·桑切斯·加西亚|José María Sánchez García ↗ 所有。 查看作者在建筑学院发布的更多作品: 何塞·玛丽亚·桑切斯·加西亚|José María Sánchez García @ 建筑学院官方网站 何塞·玛丽亚·桑切斯·加西亚卡塞雷斯混凝土独立住宅边界的房子 何塞·玛丽亚·桑切斯·加西亚|José María Sánchez García事务所 & 设计师 下载原图 收藏 0 关于作者 何塞·玛丽亚·桑切斯·加西亚|José María Sánchez García事务所 & 设计师 关注私信 5 文章 0 评论 0 粉丝 西班牙建筑师何塞·玛丽亚·桑切斯·加西亚,以其极简主义与地形深刻对话的建筑闻名。他的作品擅长运用混凝土等原生材料,创造与景观浑然一体的震撼力。其代表作“梅里达表演艺术工作室”被誉为经典,通过精准的切割与光影塑造,展现了功能、诗意与环境的完美融合。他的事务所持续探索建筑与场所的精神联结,是当代西班牙建筑的重要实践之一。 蒙彼利埃市政厅 City Hall, Montpellier | 让·努维尔建筑事务所|Jean Nouvel 上一篇 2025-11-22 上午8:50 带植物的房子 House with Plants | 石上纯也建筑事务所|Junya Ishigami 下一篇 2025-11-22 下午8:50 猜你喜欢 混凝土日光住宅,展现梁柱结构之美 / HYLA Architects 2019-09-29 建筑设计 印度卵石形屋 / Greyscale Design Studio 2021-04-10 建筑设计 Indigo Slam:混凝土几何“雕塑” 2020-04-13 建筑设计 京都圣石之家,日式庭院造景 / 中村拓志 & NAP事务所 2021-04-25 建筑设计 飞动的曲线映入乡村天际线:印度红砖之屋 / iStudio architecture 2019-08-28 建筑设计 阿尔布雷克的旅店 Tourist Inn in Alburquerque | 何塞·玛丽亚·桑切斯·加西亚|José María Sánchez García 3天前 公共建筑设计 发表回复 请登录后评论...登录后才能评论 提交