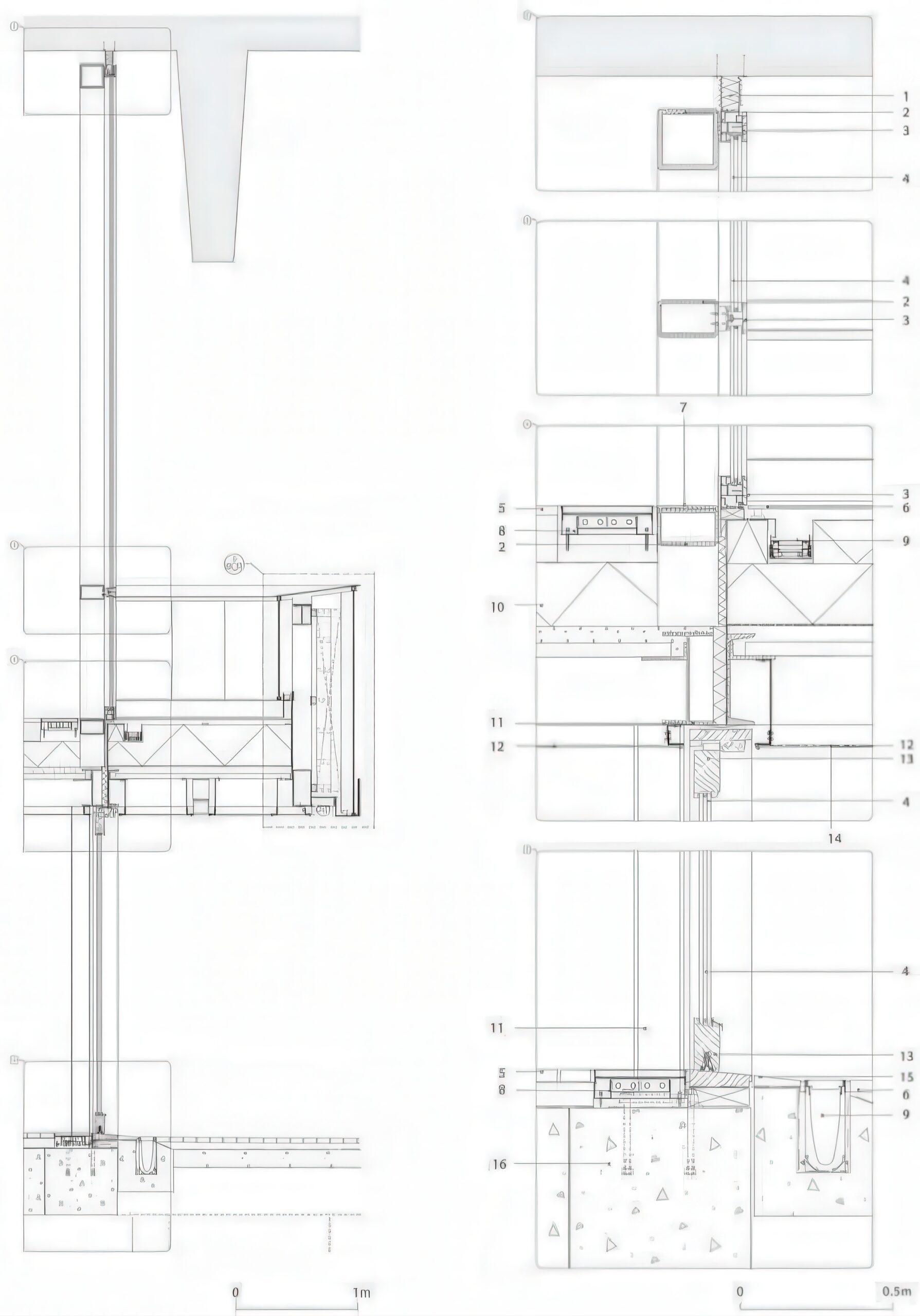
英国电影协会(BFI)南岸 British Film Institute [BFI] Southbank | 卡莫迪·格罗克建筑事务所|Carmody Groarke英国电影协会(BFI)南岸 British Film Institute [BFI] Southbank | 卡莫迪·格罗克建筑事务所|Carmody Groarke 卡莫迪·格罗克建筑事务所|Carmody Groarke • 2025-11-27 上午8:50 • 公共建筑设计, 建筑师, 建筑设计, 文化建筑设计 设计: 卡莫迪·格罗克建筑事务所|Carmody Groarke 类型: 文化建筑设计 功能: 文化中心 风格: 当代建筑 材料: 混凝土 钢材 玻璃 尺度: 中型建筑 地点:英国 时间: 2016年 项目简介 英国电影协会(BFI)南岸位于英国伦敦泰晤士河南岸,是一座文化建筑综合体,原建于1950年代国家电影剧院旧址。项目在2016年设计竞赛中获胜,通过改造提升了公共空间和接待功能。 设计理念 设计旨在为这一重要文化机构建立新的身份标识,通过大型悬挑雨篷形成醒目入口,以低技策略但精心照明的纤维玻璃材质,与滑铁卢桥的粗野主义形成对比,强化文化存在感。 空间与功能 项目增设了底层玻璃幕墙公共空间,模糊室内外界限;新增上层VIP室和露台,提供350米长的泰晤士河景观视野;内部空间刻意采用暗色调,增强电影院氛围。 材料与技术 主要使用高纹理铸造玻璃纤维制作雨篷,搭配铝幕墙系统、滑动玻璃门和钢材次级结构。采用绝缘移动接缝和周边加热等技术,提升可持续性与舒适度。 设计团队 卡莫迪·格罗克建筑事务所是一家英国建筑事务所,以文化、艺术和公共建筑项目著称,注重材料创新与场地文脉的当代诠释。 项目简介 英国电影协会(BFI)南岸位于英国伦敦泰晤士河南岸,是一座文化建筑综合体,原建于1950年代国家电影剧院旧址。项目在2016年设计竞赛中获胜,通过改造提升了公共空间和接待功能。 设计理念 设计旨在为这一重要文化机构建立新的身份标识,通过大型悬挑雨篷形成醒目入口,以低技策略但精心照明的纤维玻璃材质,与滑铁卢桥的粗野主义形成对比,强化文化存在感。 空间与功能 项目增设了底层玻璃幕墙公共空间,模糊室内外界限;新增上层VIP室和露台,提供350米长的泰晤士河景观视野;内部空间刻意采用暗色调,增强电影院氛围。 材料与技术 主要使用高纹理铸造玻璃纤维制作雨篷,搭配铝幕墙系统、滑动玻璃门和钢材次级结构。采用绝缘移动接缝和周边加热等技术,提升可持续性与舒适度。 设计团队 卡莫迪·格罗克建筑事务所是一家英国建筑事务所,以文化、艺术和公共建筑项目著称,注重材料创新与场地文脉的当代诠释。 本文来自 © 卡莫迪·格罗克建筑事务所|Carmody Groarke, 发布于 © 建筑学院官方网站。 未经授权,禁止转载或摘编。 编辑版本版权归 © 建筑学院官方网站 所有, 设计、图纸及照片版权归设计方 © 卡莫迪·格罗克建筑事务所|Carmody Groarke ↗ 所有。 查看作者在建筑学院发布的更多作品: 卡莫迪·格罗克建筑事务所|Carmody Groarke @ 建筑学院官方网站 伦敦卡莫迪·格罗克文化建筑玻璃纤维英国电影协会南岸 卡莫迪·格罗克建筑事务所|Carmody Groarke事务所 & 设计师 下载原图 收藏 0 关于作者 卡莫迪·格罗克建筑事务所|Carmody Groarke事务所 & 设计师 关注私信 15 文章 0 评论 0 粉丝 卡莫迪·格罗克(Carmody Groarke)是一家位于伦敦的建筑事务所,由凯文·卡莫迪(Kevin Carmody)和安迪·格罗克(Andy Groarke)于2006年共同创立。该事务所以其在国际范围内开展的一系列艺术、文化和遗产项目而闻名。他们善于通过精巧的建筑介入,对特定的场地文脉与历史做出深刻而细腻的当代回应,其作品范围涵盖大型公共装置、美术馆、酒店以及私人住宅等多个领域,形成了独特的设计语言。 曼彻斯特科学与工业博物馆特别展览馆 Special Exhibition Gallery,Museum of Science and Industry, Manchester | 卡莫迪·格罗克建筑事务所|Carmody Groarke 上一篇 2025-11-27 上午12:50 新昌小球中心Sports Mall / line+ 下一篇 2025-11-27 下午12:36 猜你喜欢 木木艺术社区改造 / B.L.U.E.建筑设计事务所 2020-04-10 建筑设计 漂浮的堡垒—拉姆利瑟艺术博物馆 2018-07-26 建筑设计 湖南美术馆 / 华建集团上海建筑设计研究院 2019-12-11 建筑设计 世界上最有“情绪”的剧院 / Bolles + Wilson 2018-08-12 建筑设计 极简笔墨勾勒出的留白:邢窑博物馆 / 言川建筑 2019-06-02 建筑设计 大阪中之岛美术馆 / 远藤克彦建筑研究所 2022-12-04 建筑设计 发表回复 请登录后评论...登录后才能评论 提交