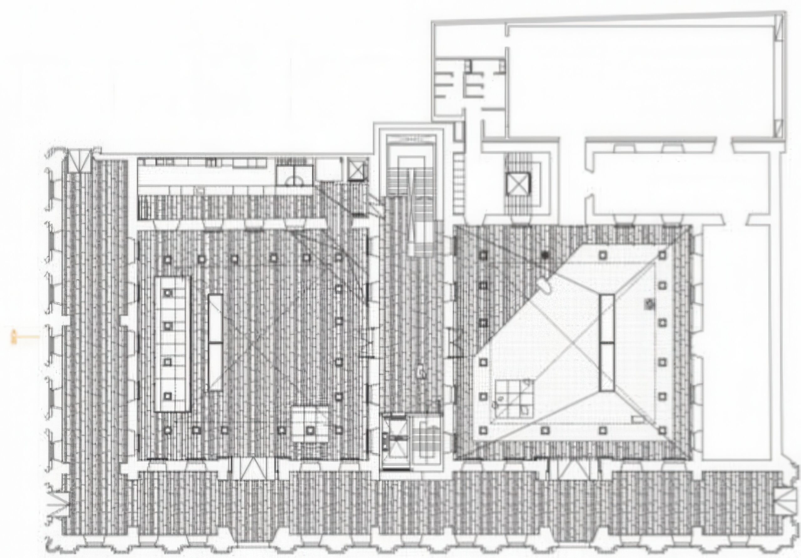
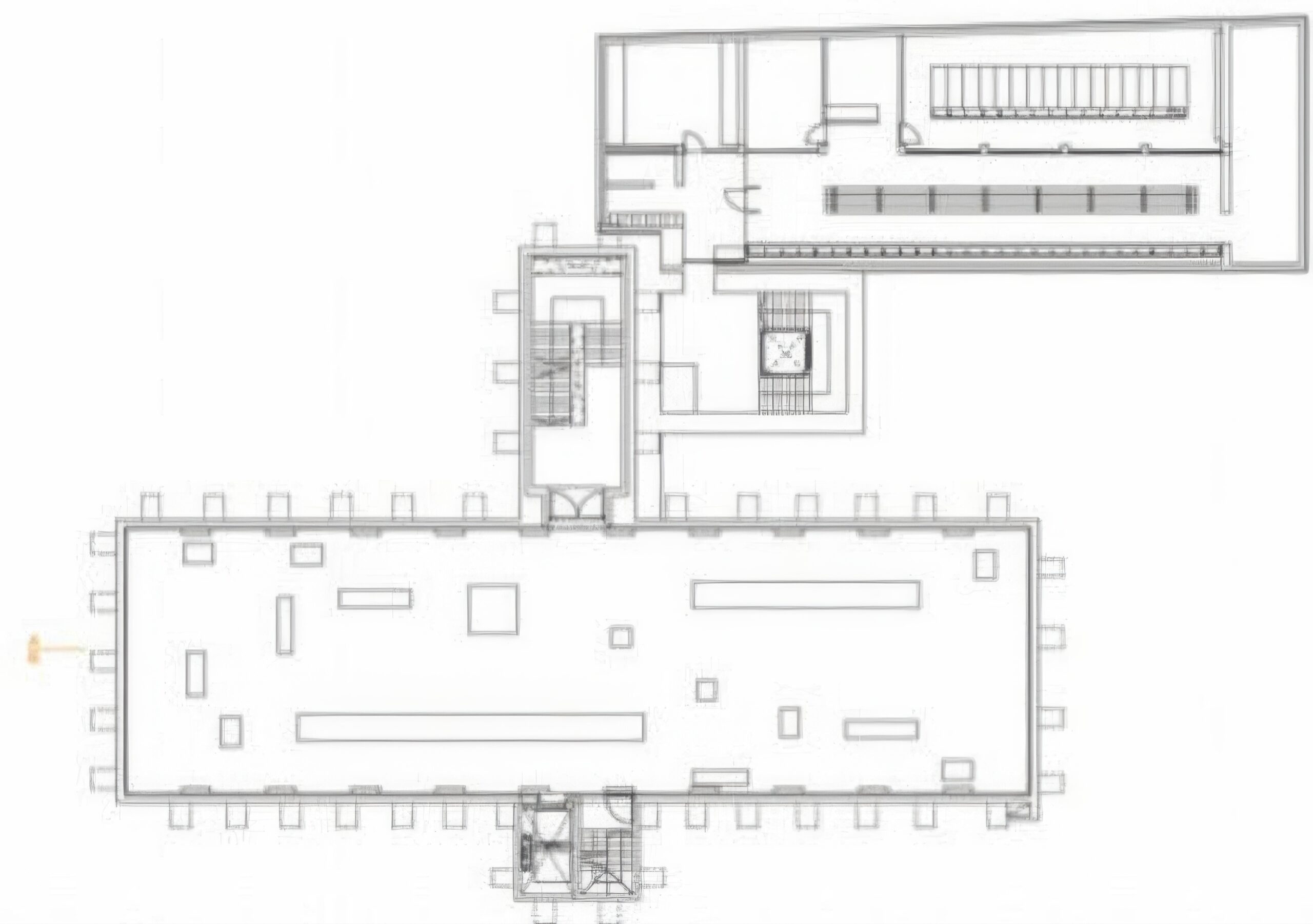
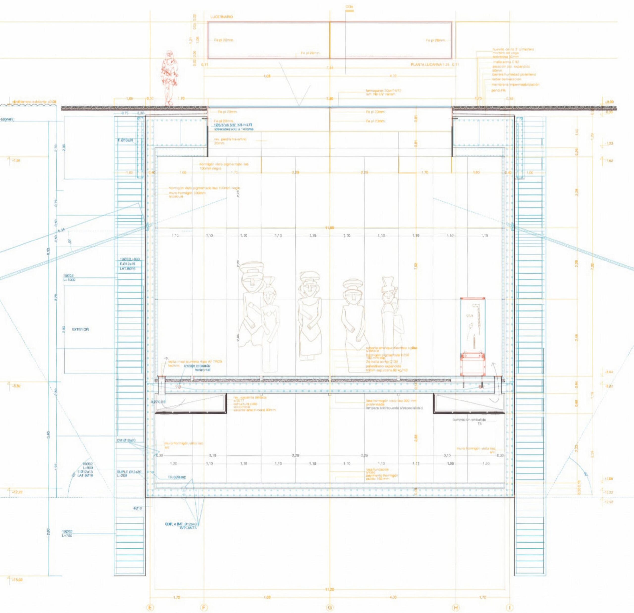
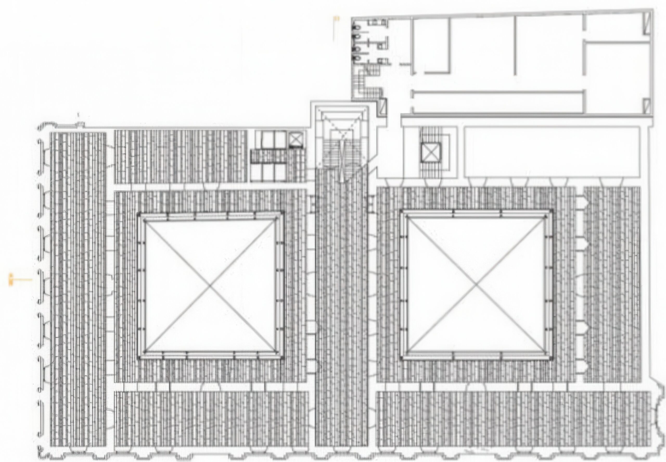
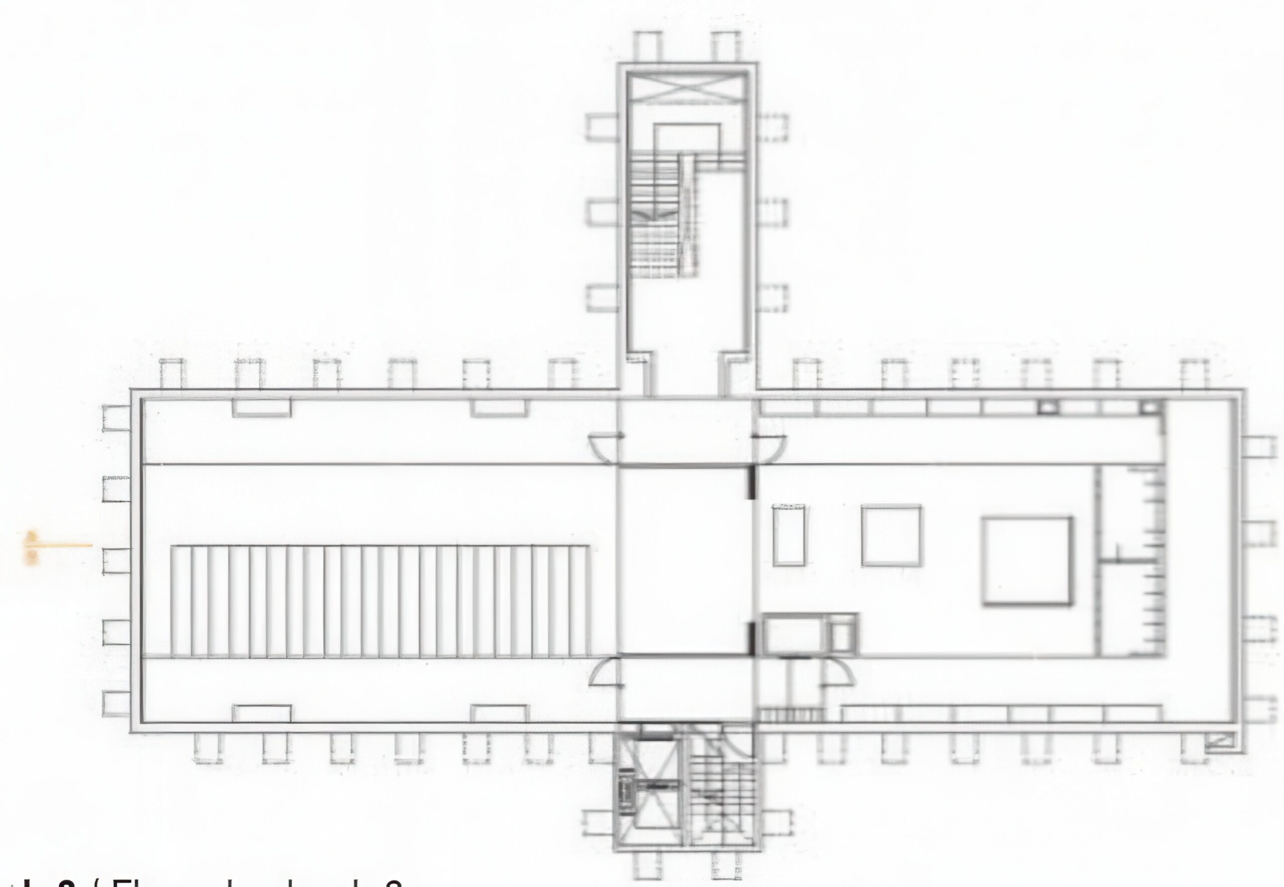
哥伦比亚艺术 Columbian Art | 斯米里扬·拉迪奇|Smiljan Radić 斯米里扬·拉迪奇|Smiljan Radić • 2025-12-08 上午12:50 • 公共建筑设计, 建筑师, 建筑设计, 文化建筑设计 智利前哥伦布艺术博物馆改造项目由斯米里扬·拉迪奇设计,位于智利圣地亚哥。该项目通过扩建地下两层展厅与储藏空间约1000平方米,重新组织了博物馆的空间结构。设计特色包括北庭院ETFE膜结构屋顶、南庭院考古式铺装,以及”智利前智利”主题展厅的自然采光策略,为这座文化建筑注入了新的空间体验。 设计: 斯米里扬·拉迪奇|Smiljan Radić 类型: 文化建筑设计 功能: 博物馆 风格: 当代建筑 材料: 钢材 玻璃 石材 金属板 尺度: 中型建筑 地点:智利 时间: 2014年 项目简介 智利前哥伦布艺术博物馆改造项目位于智利圣地亚哥,是一座文化建筑改造工程。项目通过扩建地下两层空间,新增约1000平方米的展览与储藏面积,设计完成于近期,旨在重新定义博物馆的空间组织与参观体验。 设计理念 斯米里扬·拉迪奇以”智利前智利”展厅为契机,重新构思博物馆的空间叙事。设计通过对比手法:北庭院采用ETFE膜结构创造室内化公共空间,南庭院保留露天特质并呼应考古现场,形成内外空间的对话与张力。 空间与功能 博物馆围绕两个庭院组织,首层设有公共画廊。新建的”智利前智利”展厅(38×11×7米)横贯地下层,通过两端天窗引入自然光,营造半明半暗的展览氛围。庭院间的门厅整合了通往四个楼层的垂直交通,北庭院容纳票务、咖啡厅与商店功能。 材料与技术 项目采用ETFE透明自支撑膜结构覆盖北庭院,配合低辐射涂层与钢支撑系统;南庭院使用直径2英寸的卵石铺装在沙基上,模拟考古发掘现场。地下展厅运用精准的灯光控制突出展品,上层空间则重新开放原有窗户引入自然光照。 设计团队 斯米里扬·拉迪奇是智利知名建筑师,以其对材料、光线与空间的诗意探索著称。事务所擅长文化建筑与艺术空间设计,作品常融合地域特色与当代建构技术,在智利及国际建筑界享有声誉。 项目简介 智利前哥伦布艺术博物馆改造项目位于智利圣地亚哥,是一座文化建筑改造工程。项目通过扩建地下两层空间,新增约1000平方米的展览与储藏面积,设计完成于近期,旨在重新定义博物馆的空间组织与参观体验。 设计理念 斯米里扬·拉迪奇以”智利前智利”展厅为契机,重新构思博物馆的空间叙事。设计通过对比手法:北庭院采用ETFE膜结构创造室内化公共空间,南庭院保留露天特质并呼应考古现场,形成内外空间的对话与张力。 空间与功能 博物馆围绕两个庭院组织,首层设有公共画廊。新建的”智利前智利”展厅(38×11×7米)横贯地下层,通过两端天窗引入自然光,营造半明半暗的展览氛围。庭院间的门厅整合了通往四个楼层的垂直交通,北庭院容纳票务、咖啡厅与商店功能。 材料与技术 项目采用ETFE透明自支撑膜结构覆盖北庭院,配合低辐射涂层与钢支撑系统;南庭院使用直径2英寸的卵石铺装在沙基上,模拟考古发掘现场。地下展厅运用精准的灯光控制突出展品,上层空间则重新开放原有窗户引入自然光照。 设计团队 斯米里扬·拉迪奇是智利知名建筑师,以其对材料、光线与空间的诗意探索著称。事务所擅长文化建筑与艺术空间设计,作品常融合地域特色与当代建构技术,在智利及国际建筑界享有声誉。 本文来自 © 斯米里扬·拉迪奇|Smiljan Radić, 发布于 © 建筑学院官方网站。 未经授权,禁止转载或摘编。 编辑版本版权归 © 建筑学院官方网站 所有, 设计、图纸及照片版权归设计方 © 斯米里扬·拉迪奇|Smiljan Radić ↗ 所有。 查看作者在建筑学院发布的更多作品: 斯米里扬·拉迪奇|Smiljan Radić @ 建筑学院官方网站 ETFE膜结构圣地亚哥文化建筑改造斯米里扬·拉迪奇智利前哥伦布艺术博物馆 斯米里扬·拉迪奇|Smiljan Radić事务所 & 设计师 下载原图 收藏 0 关于作者 斯米里扬·拉迪奇|Smiljan Radić事务所 & 设计师 关注私信 19 文章 0 评论 0 粉丝 斯米里扬·拉迪奇(Smiljan Radić)是智利最具代表性的当代建筑师之一,以其独特的形式探索、材料创新及与自然环境的深刻对话而闻名。他1965年生于圣地亚哥,毕业于智利天主教大学,1995年创立个人事务所。拉迪克的作品多聚焦于中小型建筑,擅长通过手工生产与非工业材料展现建筑的"脆弱性"与临时感。其最广为人知的作品是2014年为伦敦蛇形画廊设计的展馆,被形容为"栖息于新石器时代遗址的外星太空舱"。其他重要项目包括Mestizo餐厅、VIK酒庄及铜屋二号等,其设计常融入巨石、粗糙混凝土等元素,在景观中创造既原始又诗意的空间体验。 巴西贝萨雷斯保护区两座房子 | 曼努埃尔·塞万提斯|Manuel Cervantes 上一篇 2025-12-07 下午5:00 黄色水塔house Yellow Water House | 斯米里扬·拉迪奇|Smiljan Radić 下一篇 2025-12-08 上午8:50 猜你喜欢 Art Collection Siedle / COLECCION DE ARTE SIEDLE | 布兰德胡伯建筑事务所|Brandlhuber 2025-12-25 公共建筑设计 维克葡萄酒窖 Vik Wine Cellar | 斯米里扬·拉迪奇|Smiljan Radić 2025-12-08 公共建筑设计 维多利亚与阿尔伯特会员室 Victoria & Albert Members’ Room | 卡莫迪·格罗克建筑事务所|Carmody Groarke 2025-11-08 公共建筑设计 贝耶勒基金会 Beyeler Foundation | 斯米里扬·拉迪奇|Smiljan Radić 2025-11-07 公共建筑设计 麦昆阿历山大系列项目 Alexander McQueen Project | 斯米里扬·拉迪奇|Smiljan Radić 2025-12-11 室内设计 隐藏的房子 Hidden House | 斯米里扬·拉迪奇|Smiljan Radić 2025-12-07 公共建筑设计 发表回复 请登录后评论...登录后才能评论 提交