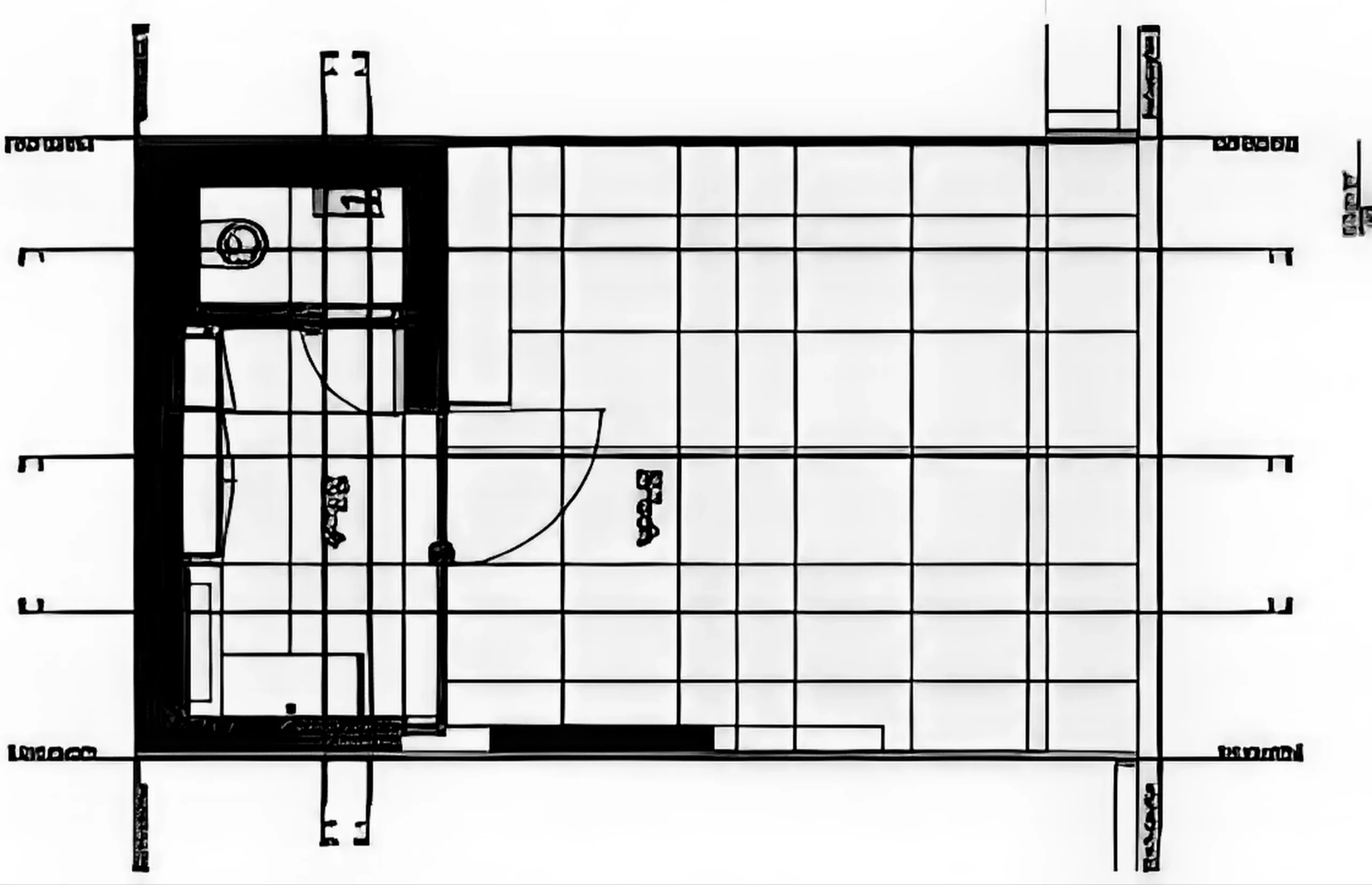
Taifong Golf Club 接待馆群 / Taifong Golf Club Reception Pavilions | 阿尔瓦罗·西扎|Álvaro Siza 阿尔瓦罗·西扎|Alvaro Siza • 2026-01-02 下午4:30 • 公共建筑设计, 建筑师, 建筑设计, 文化建筑设计 Taifong Golf Club 接待馆群由葡萄牙建筑师阿尔瓦罗·西扎设计,位于台湾彰化县。项目包括接待馆、嘉卿馆、茶室和门卫室,采用分散式体量布局与裸露混凝土材料,完美融入高尔夫球场环境,展现西扎独特的空间塑造与光影控制能力。 设计: 阿尔瓦罗·西扎|Alvaro Siza 类型: 文化建筑设计 功能: 社区中心 风格: 当代建筑 材料: 混凝土 玻璃 尺度: 微型建筑与装置 地点:彰化县 时间: 2020年 项目概述 Taifong Golf Club 接待馆群项目位于台湾彰化县,由葡萄牙建筑师阿尔瓦罗·西扎设计,包含接待馆、嘉卿馆、茶室和门卫室等多个功能建筑。项目设计始于2010年,建设完成于2020年,通过分散式体量布局与高尔夫球场环境和谐共存。 设计理念 西扎的设计理念强调建筑与自然环境的融合,通过碎片化的体量组合回应高尔夫球场的开阔景观。建筑既保持各自独特的身份特征,又作为整体环境的一部分,体现了西扎对场地文脉的深刻理解与尊重。 空间与功能 接待馆群的空间组织采用分散式布局,各建筑根据功能需求形成不同几何形态。嘉卿馆内部空间根据高尔夫运动及相关文化活动需求进行分区,流线设计充分考虑会员、嘉宾和访客的不同使用模式,创造丰富的空间体验。 材料与技术 项目主要采用裸露混凝土作为建筑表皮,通过精确的模板工艺实现细腻的表面质感。建筑结构顺应地形起伏,利用平台高差营造多层次观景视野,材料与光影的精心控制塑造出独特的空间氛围。 项目特色与启发 Taifong Golf Club 接待馆群展现了西扎在复杂地形环境中处理建筑体量与空间关系的卓越能力,为高尔夫俱乐部建筑提供了新的设计范式,对当代休闲建筑的设计实践具有重要参考价值。 设计团队 阿尔瓦罗·西扎是葡萄牙著名建筑师,1992年普利兹克奖得主,以其对现代主义建筑的深刻理解和独特的地域性表达闻名于世。西扎的建筑作品强调与环境的对话,注重材料质感和空间体验的营造。 项目概述 Taifong Golf Club 接待馆群项目位于台湾彰化县,由葡萄牙建筑师阿尔瓦罗·西扎设计,包含接待馆、嘉卿馆、茶室和门卫室等多个功能建筑。项目设计始于2010年,建设完成于2020年,通过分散式体量布局与高尔夫球场环境和谐共存。 设计理念 西扎的设计理念强调建筑与自然环境的融合,通过碎片化的体量组合回应高尔夫球场的开阔景观。建筑既保持各自独特的身份特征,又作为整体环境的一部分,体现了西扎对场地文脉的深刻理解与尊重。 空间与功能 接待馆群的空间组织采用分散式布局,各建筑根据功能需求形成不同几何形态。嘉卿馆内部空间根据高尔夫运动及相关文化活动需求进行分区,流线设计充分考虑会员、嘉宾和访客的不同使用模式,创造丰富的空间体验。 材料与技术 项目主要采用裸露混凝土作为建筑表皮,通过精确的模板工艺实现细腻的表面质感。建筑结构顺应地形起伏,利用平台高差营造多层次观景视野,材料与光影的精心控制塑造出独特的空间氛围。 项目特色与启发 Taifong Golf Club 接待馆群展现了西扎在复杂地形环境中处理建筑体量与空间关系的卓越能力,为高尔夫俱乐部建筑提供了新的设计范式,对当代休闲建筑的设计实践具有重要参考价值。 设计团队 阿尔瓦罗·西扎是葡萄牙著名建筑师,1992年普利兹克奖得主,以其对现代主义建筑的深刻理解和独特的地域性表达闻名于世。西扎的建筑作品强调与环境的对话,注重材料质感和空间体验的营造。 本文来自 © 阿尔瓦罗·西扎|Alvaro Siza, 发布于 © 建筑学院官方网站。 未经授权,禁止转载或摘编。 编辑版本版权归 © 建筑学院官方网站 所有, 设计、图纸及照片版权归设计方 © 阿尔瓦罗·西扎|Alvaro Siza ↗ 所有。 查看作者在建筑学院发布的更多作品: 阿尔瓦罗·西扎|Alvaro Siza @ 建筑学院官方网站 Taifong Golf Club台湾建筑西扎建筑高尔夫俱乐部设计 阿尔瓦罗·西扎|Alvaro Siza事务所 & 设计师 下载原图 收藏 0 关于作者 阿尔瓦罗·西扎|Alvaro Siza事务所 & 设计师 关注私信 36 文章 0 评论 2 粉丝 阿尔瓦罗·西扎(Álvaro Siza)是葡萄牙著名建筑师,1992年普利兹克奖得主。他以融合葡萄牙建筑传统与国际现代主义的“诗意现代主义”风格闻名,代表作包括勒萨德帕梅拉游泳池等。 卡森内萨尼总体规划 / Caserma Sani Masterplan | Dogma 上一篇 2026-01-02 下午4:23 国际当代雕塑博物馆 MIEC / International Museum of Contemporary Sculpture [MIEC] | 阿尔瓦罗·西扎|Álvaro Siza 下一篇 2026-01-02 下午4:44 猜你喜欢 Taifong Golf Club 接待馆群 / Taifong Golf Club Reception Pavilions | 阿尔瓦罗·西扎|Álvaro Siza 2026-01-05 公共建筑设计 Taifong Golf Club 接待馆群 / Taifong Golf Club Reception Pavilions | 阿尔瓦罗·西扎|Álvaro Siza 2026-03-09 公共建筑设计 发表回复 请登录后评论...登录后才能评论 提交