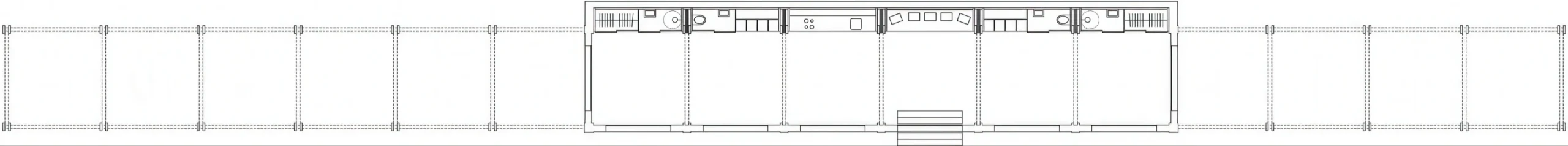
LOVELESS / LOVELESS | Dogma Dogma • 2026-01-10 下午9:33 • 住宅室内设计, 住宅建筑设计, 公寓住宅设计, 室内设计, 建筑师, 建筑设计, 独立住宅, 独立住宅设计 LOVELESS 是由 Dogma 建筑事务所设计的理论研究项目,探讨最小住宅的历史演变与当代意义。该项目通过批判性分析从修道院单元到现代微型住宅的演变,提出将住宅视为基本空间而非私有财产的理念,重新思考居住与集体生活的关系。 设计: Dogma 类型: 独立住宅设计 功能: 独立住宅 风格: 当代建筑 材料: 混合材料 尺度: 小型建筑 地点:比利时 时间: 2019年 项目概述 LOVELESS 是 Dogma 建筑事务所开展的理论研究项目,聚焦最小住宅的历史与当代实践。项目通过跨时空分析,探讨从修道院单元、酒店住宅到现代共居模式的演变,旨在重新定义住宅作为基本生活空间的社会意义。 设计理念 项目批判传统最小住宅仅作为家庭单元的简化,提出将住宅视为脱离私有财产逻辑的通用空间。设计理念强调集体生活与家务劳动的社会化,回应当代城市居住危机与社会不平等问题。 空间与功能 LOVELESS 提出最小住宅单元与集体服务设施相结合的空间模式。个体居住单元仅提供睡眠与个人活动所需最小空间,而厨房、清洁、育儿等家务功能则集中设置,形成共享社区服务体系。 材料与技术 作为理论研究,项目未指定具体材料,但强调建筑应通过标准化、模块化设计实现空间效率,支持居住单元的灵活组合与社区服务的集中配置。 项目特色与启发 LOVELESS 重新诠释了最小住宅的社会价值,为建筑师、规划师提供了应对当代居住危机的理论框架,启发对住宅产权、家庭结构与城市资源分配的系统性思考。 设计团队 Dogma 是由 Pier Vittorio Aureli 与 Martino Tattara 创立的建筑研究团体,专注于建筑与城市政治经济学交叉领域的研究与实践,通过理论写作、教学与设计项目探讨城市居住与集体形式的关系。 项目概述 LOVELESS 是 Dogma 建筑事务所开展的理论研究项目,聚焦最小住宅的历史与当代实践。项目通过跨时空分析,探讨从修道院单元、酒店住宅到现代共居模式的演变,旨在重新定义住宅作为基本生活空间的社会意义。 设计理念 项目批判传统最小住宅仅作为家庭单元的简化,提出将住宅视为脱离私有财产逻辑的通用空间。设计理念强调集体生活与家务劳动的社会化,回应当代城市居住危机与社会不平等问题。 空间与功能 LOVELESS 提出最小住宅单元与集体服务设施相结合的空间模式。个体居住单元仅提供睡眠与个人活动所需最小空间,而厨房、清洁、育儿等家务功能则集中设置,形成共享社区服务体系。 材料与技术 作为理论研究,项目未指定具体材料,但强调建筑应通过标准化、模块化设计实现空间效率,支持居住单元的灵活组合与社区服务的集中配置。 项目特色与启发 LOVELESS 重新诠释了最小住宅的社会价值,为建筑师、规划师提供了应对当代居住危机的理论框架,启发对住宅产权、家庭结构与城市资源分配的系统性思考。 设计团队 Dogma 是由 Pier Vittorio Aureli 与 Martino Tattara 创立的建筑研究团体,专注于建筑与城市政治经济学交叉领域的研究与实践,通过理论写作、教学与设计项目探讨城市居住与集体形式的关系。 本文来自 © Dogma, 发布于 © 建筑学院官方网站。 未经授权,禁止转载或摘编。 编辑版本版权归 © 建筑学院官方网站 所有, 设计、图纸及照片版权归设计方 © Dogma ↗ 所有。 查看作者在建筑学院发布的更多作品: Dogma @ 建筑学院官方网站 LOVELESS城市居住最小住宅集体住宅 Dogma事务所 & 设计师 下载原图 收藏 0 关于作者 Dogma事务所 & 设计师 关注私信 19 文章 0 评论 1 粉丝 DOGMA建筑事务所致力于通过设计回应居住与城市的社会性议题,其工作涵盖合作住房、社会住宅及城市转型规划。他们在深圳、巴塞尔、苏黎世、墨西哥城等地均有建成实践,并以《Living and Working》一书荣获2022年DAM建筑图书奖。访问 dogma.name 可查阅其完整作品与理论研究。 LOVELESS / LOVELESS | Dogma 上一篇 2026-01-10 下午9:26 Nadir Afonso Foundation / Nadir Afonso Foundation | 阿尔瓦罗·西扎|Álvaro Siza 下一篇 2026-01-11 下午10:22 猜你喜欢 LOVELESS / LOVELESS | Dogma 2026-01-29 概念建筑 LOVELESS / LOVELESS | Dogma 2026-01-10 住宅室内设计 32社交住宅于圣维泽德拉斯帕利戈 / 32 Social Dwellings in San Vicente del Raspeig | 阿尔弗雷多·帕亚|Alfredo Payá 2026-04-13 住宅建筑设计 发表回复 请登录后评论...登录后才能评论 提交