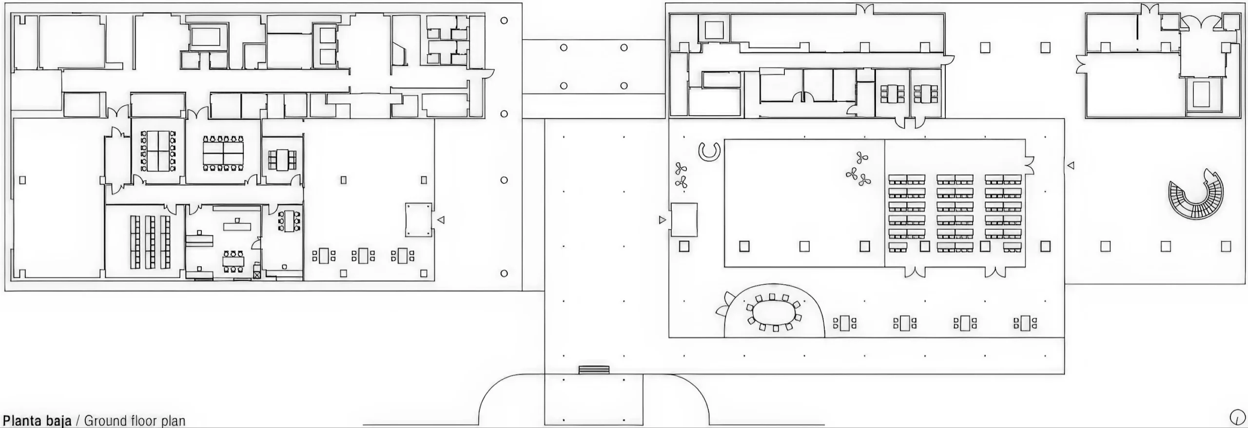
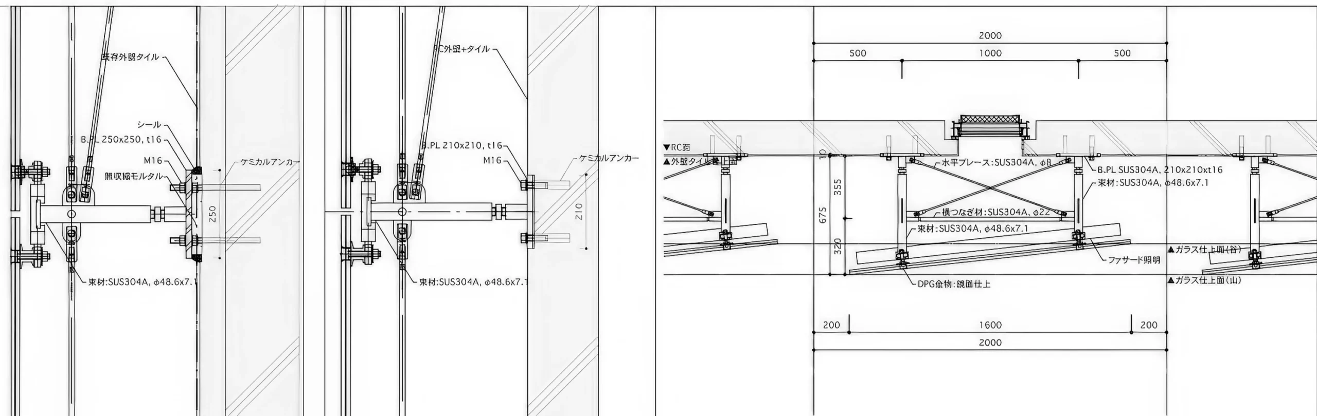
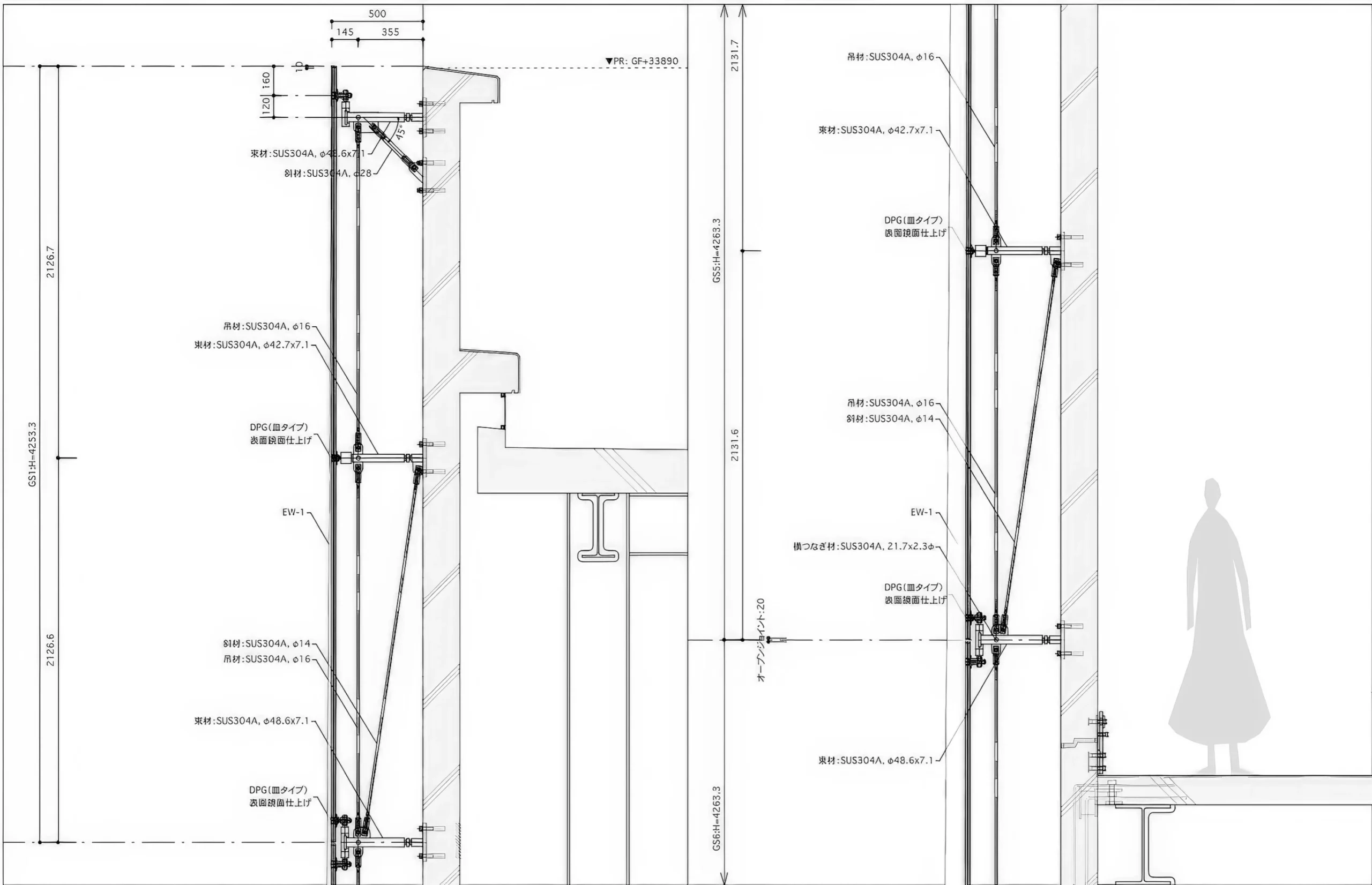
尼康株式会社横浜研究センター / Nichia Corporation Yokohama Research Centre | SANAA SANAA • 2026-02-10 上午11:55 • 公共建筑设计, 办公建筑设计, 建筑设计 尼康株式会社横浜研究センター由SANAA设计,位于日本横滨工业区,通过创新的玻璃幕墙和混凝土板设计,将两栋研究建筑视觉整合,创造出一个连接室内外的入口空间,展现了当代工业建筑的精致美学。 设计: SANAA 类型: 建筑设计 功能: 办公楼 风格: 当代建筑 材料: 混凝土 玻璃 石材 尺度: 中型建筑 地点:横滨 时间: 2018年 项目概述 尼康株式会社横浜研究センター位于日本横滨海滨工业区,是一个企业研发建筑群。项目包含两栋建筑,首栋建于2006年,后期增建新楼,SANAA事务所于2018-2021年间完成了外立面改造、入口大厅重塑及整体景观设计。 设计理念 SANAA以”视觉整合”为核心概念,旨在通过统一的建筑语言将两栋独立建筑融为一体。设计通过大跨度混凝土悬挑板和反射玻璃幕墙,在灰色工业区中创造出一处明亮、轻盈且具有启发性的建筑形象。 空间与功能 项目通过一个低矮的混凝土板连接两栋建筑,板下铺设石灰华地坪,内部部分区域去除楼板形成双层高空间,容纳会议厅和入口大厅。低层高区域设置玻璃围合的会议空间,面向前景花园,创造了灵活多样的交流场所。 材料与技术 主要采用混凝土、玻璃和石灰华。外立面使用印有2.4毫米铬点的玻璃面板,这些面板略微向天空倾斜,反射周围城市景观,创造出不断变化的光影效果。混凝土颜色与石灰华地坪相呼应,体现材料的一致性。 项目特色与启发 尼康株式会社横浜研究センター展示了工业建筑也能具备精致美学和人性化空间。SANAA通过巧妙的光线处理和材料运用,为研发环境注入了艺术品质,为工业区更新提供了创新范例。 设计团队 SANAA是由妹岛和世与西泽立卫创立的国际知名建筑事务所,以极简、透明和轻盈的设计风格著称,擅长通过精细的材料处理和空间组织创造独特的建筑体验。 项目概述 尼康株式会社横浜研究センター位于日本横滨海滨工业区,是一个企业研发建筑群。项目包含两栋建筑,首栋建于2006年,后期增建新楼,SANAA事务所于2018-2021年间完成了外立面改造、入口大厅重塑及整体景观设计。 设计理念 SANAA以”视觉整合”为核心概念,旨在通过统一的建筑语言将两栋独立建筑融为一体。设计通过大跨度混凝土悬挑板和反射玻璃幕墙,在灰色工业区中创造出一处明亮、轻盈且具有启发性的建筑形象。 空间与功能 项目通过一个低矮的混凝土板连接两栋建筑,板下铺设石灰华地坪,内部部分区域去除楼板形成双层高空间,容纳会议厅和入口大厅。低层高区域设置玻璃围合的会议空间,面向前景花园,创造了灵活多样的交流场所。 材料与技术 主要采用混凝土、玻璃和石灰华。外立面使用印有2.4毫米铬点的玻璃面板,这些面板略微向天空倾斜,反射周围城市景观,创造出不断变化的光影效果。混凝土颜色与石灰华地坪相呼应,体现材料的一致性。 项目特色与启发 尼康株式会社横浜研究センター展示了工业建筑也能具备精致美学和人性化空间。SANAA通过巧妙的光线处理和材料运用,为研发环境注入了艺术品质,为工业区更新提供了创新范例。 设计团队 SANAA是由妹岛和世与西泽立卫创立的国际知名建筑事务所,以极简、透明和轻盈的设计风格著称,擅长通过精细的材料处理和空间组织创造独特的建筑体验。 本文来自 © SANAA, 发布于 © 建筑学院官方网站。 未经授权,禁止转载或摘编。 编辑版本版权归 © 建筑学院官方网站 所有, 设计、图纸及照片版权归设计方 © SANAA ↗ 所有。 查看作者在建筑学院发布的更多作品: SANAA @ 建筑学院官方网站 Nichia Corporation Yokohama Research CentreSANAA当代建筑横滨工业建筑研发建筑设计 SANAA事务所 & 设计师 下载原图 收藏 0 关于作者 SANAA事务所 & 设计师 关注私信 52 文章 0 评论 0 粉丝 凯林眼镜新总部大楼 / Kering Eyewear New Headquarters | SANAA 上一篇 2026-02-09 下午1:29 莫利波之家 / Morimoto House | SANAA 下一篇 2026-02-10 上午11:55 猜你喜欢 墨田北斋博物馆 / Sumida Hokusai Museum | SANAA 2026-03-15 公共建筑设计 Casa de Navidad / House in Navidad | Pezo Von Ellrichshausen 2026-02-05 住宅建筑设计 昆山博物馆 / Kunshan Museum | SANAA 2026-02-11 公共建筑设计 欧洲信息与文化图书馆 / BEIC – European Library of Information and Culture | SANAA 2026-03-08 住宅建筑设计 卢塞斯艺术学院 / Sint-Lucas School of Fine Arts | Xaveer de Geyter 2026-02-28 公共建筑设计 上海石库沟住宅 / Shochikucho House | SANAA 2026-02-23 住宅建筑设计 发表回复 请登录后评论...登录后才能评论 提交