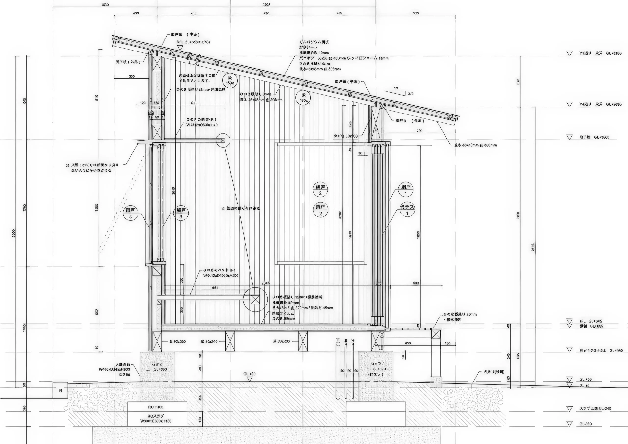
日本津市住宿计划 Inujima ‘Stay Project’ / Inujima Stay Project | SANAA SANAA • 2026-03-08 上午9:27 • 住宅建筑设计, 建筑设计, 独立住宅设计 日本津市住宿计划 Inujima ‘Stay Project’ 由 SANAA 建筑事务所设计,位于日本冈山县犬岛。项目包含两座度假小屋,通过改造传统民居与新建建筑相结合的方式,将艺术、自然与当地生活融为一体,为游客提供沉浸式的岛屿体验。 设计: SANAA 类型: 独立住宅设计 功能: 独立住宅 风格: 当代建筑 材料: 木材 玻璃 石材 尺度: 小型建筑 地点:冈山 时间: 2019年 项目概述 日本津市住宿计划 Inujima ‘Stay Project’ 位于日本冈山县犬岛,是一个小型度假住宿项目。项目包含两座独立小屋,其中一座为改造的传统坡屋顶民居,另一座为新建的抬升式建筑,均配有新建的浴室亭。设计于2019年完成。 设计理念 SANAA 建筑事务所以尊重岛屿独特环境为核心设计理念,将艺术、自然与当地生活无缝融合。设计回应了犬岛粗犷而精致的景观特征,通过透明的空间边界让建筑成为岛屿景观的有机组成部分。 空间与功能 两座小屋分散布置在现有村落中,通过大型开口与私人花园建立紧密联系。空间布局注重室内外流动,传统格栅门、防风暴百叶窗和藤编卷帘在保障隐私的同时,保持了与自然环境的光线、微风和气候的亲密接触。 材料与技术 项目采用当地传统建筑材料与现代工艺相结合的方式。改造部分保留了原有石井、当地石材铺面和石制家具,新建部分采用抬升地板和倾斜屋顶结构,体现了对传统建造智慧的当代诠释。 项目特色与启发 日本津市住宿计划 Inujima ‘Stay Project’ 展示了如何在保护传统村落肌理的同时,通过微妙介入创造新的空间体验。项目为小型度假建筑提供了可借鉴的设计范式,体现了 SANAA 对场地文脉的敏锐感知。 设计团队 SANAA 建筑事务所由妹岛和世与西泽立卫创立,以轻盈、透明的建筑语言著称。事务所在文化建筑、住宅和小型装置领域具有国际影响力,擅长通过简约的形式创造丰富的空间体验。 项目概述 日本津市住宿计划 Inujima ‘Stay Project’ 位于日本冈山县犬岛,是一个小型度假住宿项目。项目包含两座独立小屋,其中一座为改造的传统坡屋顶民居,另一座为新建的抬升式建筑,均配有新建的浴室亭。设计于2019年完成。 设计理念 SANAA 建筑事务所以尊重岛屿独特环境为核心设计理念,将艺术、自然与当地生活无缝融合。设计回应了犬岛粗犷而精致的景观特征,通过透明的空间边界让建筑成为岛屿景观的有机组成部分。 空间与功能 两座小屋分散布置在现有村落中,通过大型开口与私人花园建立紧密联系。空间布局注重室内外流动,传统格栅门、防风暴百叶窗和藤编卷帘在保障隐私的同时,保持了与自然环境的光线、微风和气候的亲密接触。 材料与技术 项目采用当地传统建筑材料与现代工艺相结合的方式。改造部分保留了原有石井、当地石材铺面和石制家具,新建部分采用抬升地板和倾斜屋顶结构,体现了对传统建造智慧的当代诠释。 项目特色与启发 日本津市住宿计划 Inujima ‘Stay Project’ 展示了如何在保护传统村落肌理的同时,通过微妙介入创造新的空间体验。项目为小型度假建筑提供了可借鉴的设计范式,体现了 SANAA 对场地文脉的敏锐感知。 设计团队 SANAA 建筑事务所由妹岛和世与西泽立卫创立,以轻盈、透明的建筑语言著称。事务所在文化建筑、住宅和小型装置领域具有国际影响力,擅长通过简约的形式创造丰富的空间体验。 本文来自 © SANAA, 发布于 © 建筑学院官方网站。 未经授权,禁止转载或摘编。 编辑版本版权归 © 建筑学院官方网站 所有, 设计、图纸及照片版权归设计方 © SANAA ↗ 所有。 查看作者在建筑学院发布的更多作品: SANAA @ 建筑学院官方网站 Inujima Stay ProjectSANAA度假小屋设计当代建筑犬岛建筑 SANAA事务所 & 设计师 下载原图 收藏 0 关于作者 SANAA事务所 & 设计师 关注私信 52 文章 0 评论 0 粉丝 Misima办公大楼 / Mishima Office Building | SANAA 上一篇 2026-03-06 上午9:21 犬岛项目 / Inujima Project | SANAA 下一篇 2026-03-08 上午9:27 猜你喜欢 日本女子大学学生食堂 / Student Cafeteria Japan Women’s University | SANAA 2026-03-06 公共建筑设计 科琳斯多杜罗葡萄酒庄园 / Colinas do Douro Winery | 德·莫拉建筑事务所 2026-03-20 工业建筑 如何用一个方案搞定两个建筑 2018-10-16 建筑设计 新图书馆,日本女子大学 / New Library, Japan Women’s University | SANAA 2026-02-15 公共建筑设计 欧洲信息与文化图书馆 / BEIC – European Library of Information and Culture | SANAA 2026-03-08 住宅建筑设计 凯林眼镜新总部大楼 / Kering Eyewear New Headquarters | SANAA 2026-02-09 公共建筑设计 发表回复 请登录后评论...登录后才能评论 提交