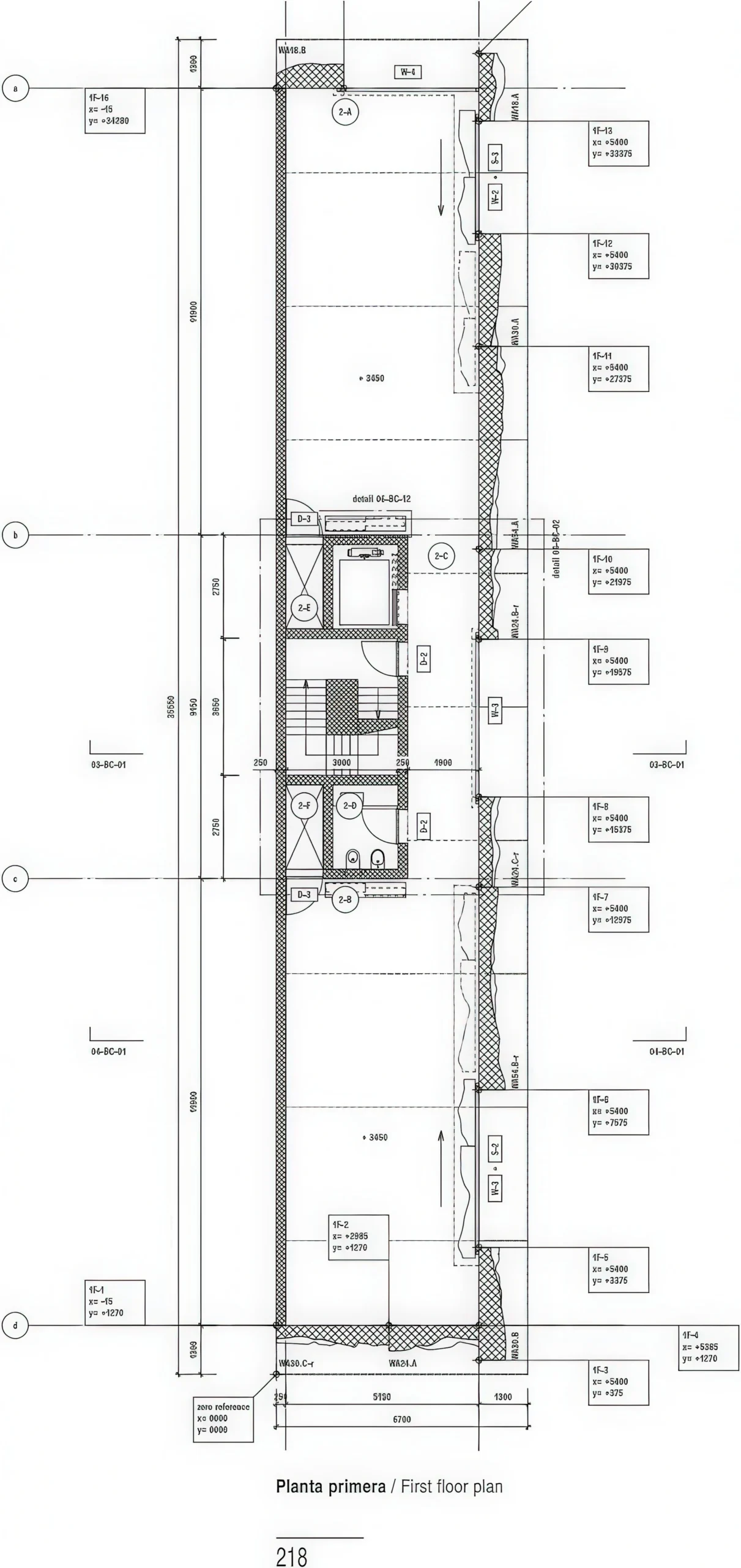
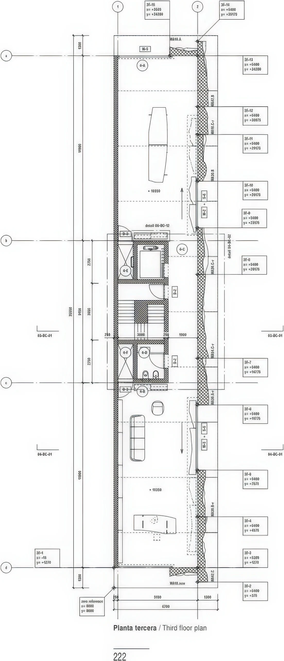
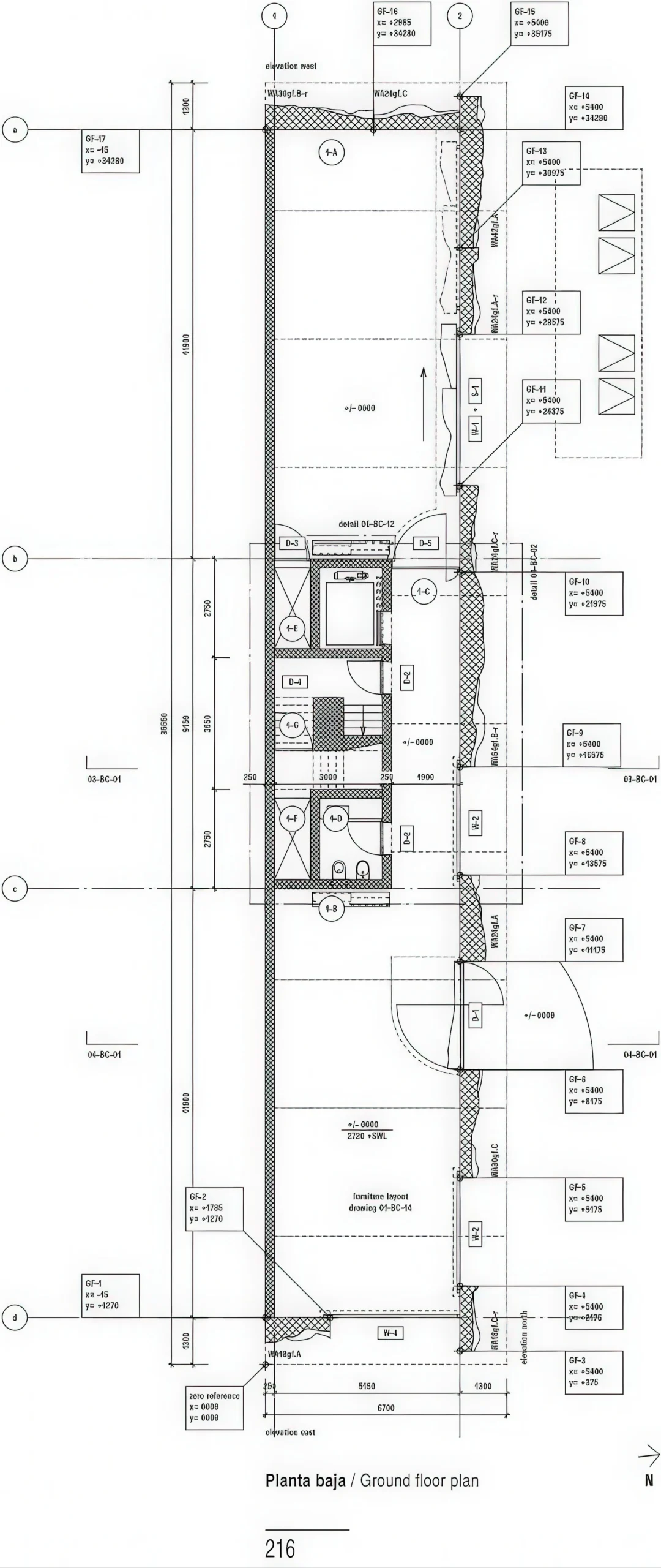
绿色角落大厦 / Green Corner Building | 安妮·霍尔特罗普|Anne Holtrop 安妮·霍尔特罗普|Anne Holtrop • 2026-03-11 上午10:07 • 公共建筑设计, 建筑设计, 文化建筑设计 绿色角落大厦由安妮·霍尔特罗普设计,位于巴林穆哈拉格,是一座独特的文化建筑。项目采用创新的沙铸工艺,通过混凝土墙体和铝制百叶窗的独特肌理,创造如地质切面般的建筑表皮,展现材料与工艺的完美结合。 设计: 安妮·霍尔特罗普|Anne Holtrop 类型: 文化建筑设计 功能: 文化中心 风格: 当代建筑 材料: 混凝土 金属板 尺度: 小型建筑 地点:穆哈拉格 时间: 2020年 项目概述 绿色角落大厦位于巴林穆哈拉格,是一座文化建筑,设计于2018年,建成于2020年。建筑采用独特的沙铸工艺,通过混凝土墙体和铝制构件创造独特的建筑表达。 设计理念 安妮·霍尔特罗普的设计理念源于对材料工艺的深度探索,通过沙铸工艺在建筑表面创造如地质切面般的肌理,将建造过程本身转化为建筑语言,回应场地特征与文化语境。 空间与功能 建筑平面由两个相同尺寸的房间和中间核心组成,采用浅进深布局,形成长主立面和短端立面。这种布局使建筑表皮成为主要空间元素,大型可移动百叶窗调节室内光线与视野。 材料与技术 项目采用创新的沙铸工艺,外墙为砂型铸造的结构墙单元,内部混凝土楼板采用相同工艺。铝制百叶窗和入口门同样采用砂铸工艺,形成内外呼应的材料语言。 项目特色与启发 绿色角落大厦展示了材料工艺与建筑表达的深度融合,为当代建筑提供了工艺创新的范例,对建筑师在材料探索和建造技术方面具有重要参考价值。 设计团队 安妮·霍尔特罗普建筑事务所以其对材料工艺的深入研究著称,擅长通过实验性建造方法创造独特的建筑表达,在绿色角落大厦项目中展现了工艺与建筑的完美融合。 项目概述 绿色角落大厦位于巴林穆哈拉格,是一座文化建筑,设计于2018年,建成于2020年。建筑采用独特的沙铸工艺,通过混凝土墙体和铝制构件创造独特的建筑表达。 设计理念 安妮·霍尔特罗普的设计理念源于对材料工艺的深度探索,通过沙铸工艺在建筑表面创造如地质切面般的肌理,将建造过程本身转化为建筑语言,回应场地特征与文化语境。 空间与功能 建筑平面由两个相同尺寸的房间和中间核心组成,采用浅进深布局,形成长主立面和短端立面。这种布局使建筑表皮成为主要空间元素,大型可移动百叶窗调节室内光线与视野。 材料与技术 项目采用创新的沙铸工艺,外墙为砂型铸造的结构墙单元,内部混凝土楼板采用相同工艺。铝制百叶窗和入口门同样采用砂铸工艺,形成内外呼应的材料语言。 项目特色与启发 绿色角落大厦展示了材料工艺与建筑表达的深度融合,为当代建筑提供了工艺创新的范例,对建筑师在材料探索和建造技术方面具有重要参考价值。 设计团队 安妮·霍尔特罗普建筑事务所以其对材料工艺的深入研究著称,擅长通过实验性建造方法创造独特的建筑表达,在绿色角落大厦项目中展现了工艺与建筑的完美融合。 本文来自 © 安妮·霍尔特罗普|Anne Holtrop, 发布于 © 建筑学院官方网站。 未经授权,禁止转载或摘编。 编辑版本版权归 © 建筑学院官方网站 所有, 设计、图纸及照片版权归设计方 © 安妮·霍尔特罗普|Anne Holtrop ↗ 所有。 查看作者在建筑学院发布的更多作品: 安妮·霍尔特罗普|Anne Holtrop @ 建筑学院官方网站 Green Corner Building安妮·霍尔特罗普文化建筑设计沙铸工艺建筑穆哈拉格建筑 安妮·霍尔特罗普|Anne Holtrop事务所 & 设计师 下载原图 收藏 0 关于作者 安妮·霍尔特罗普|Anne Holtrop事务所 & 设计师 关注私信 23 文章 0 评论 0 粉丝 安妮·霍尔特罗普(Anne Holtrop)作为备受瞩目的当代建筑师,其事务所Studio Anne Holtrop以对材料与空间的独特探索闻名。霍尔特罗普于2009年成立个人工作室,目前事务所活跃于巴林穆哈拉格与荷兰阿姆斯特丹。其代表作包括巴林国家展馆(2015米兰世博会)、穆哈拉格绿色角落建筑及西雅迪珍珠博物馆。他善于从地质与材料本质出发,通过创新的建造方式塑造极具诗意的建筑空间,曾荣获夏洛特·科勒奖(2007年)、雅科夫·切尔尼霍夫国际奖(2016年)及阿迦汗建筑奖(2019年)。 花园小屋 / Garden House | 安妮·霍尔特罗普|Anne Holtrop 上一篇 2026-03-11 上午9:57 曼萨中央邮政局 / Manama Central Post Office | 安妮·霍尔特罗普|Anne Holtrop 下一篇 2026-03-12 上午9:27 猜你喜欢 布达佩斯新国家美术馆 / New National Gallery Budapest | SANAA 2026-02-22 公共建筑设计 莫迪克城堡博物馆 / Museum Fort Vechten | 安妮·霍尔特罗普|Anne Holtrop 2026-03-12 公共建筑设计 天津生态城博物馆群 / Ecology and Planning Museums, Tianjin EcoCity | 霍尔 Steven Holl 2025-12-02 公共建筑设计 地形作屋 / Topography as House | 安妮·霍尔特罗普|Anne Holtrop 2026-03-10 概念建筑 地形作屋 / Topography as House | 安妮·霍尔特罗普|Anne Holtrop 2025-12-28 建筑师设计 希伯伦清真寺及文化中心 / Mosque and Cultural Centre, Heilbronn | 贝尔纳多·巴德尔|Bernardo Bader 2025-11-17 公共建筑设计 发表回复 请登录后评论...登录后才能评论 提交