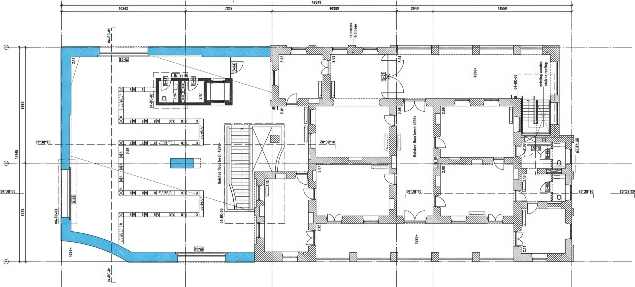
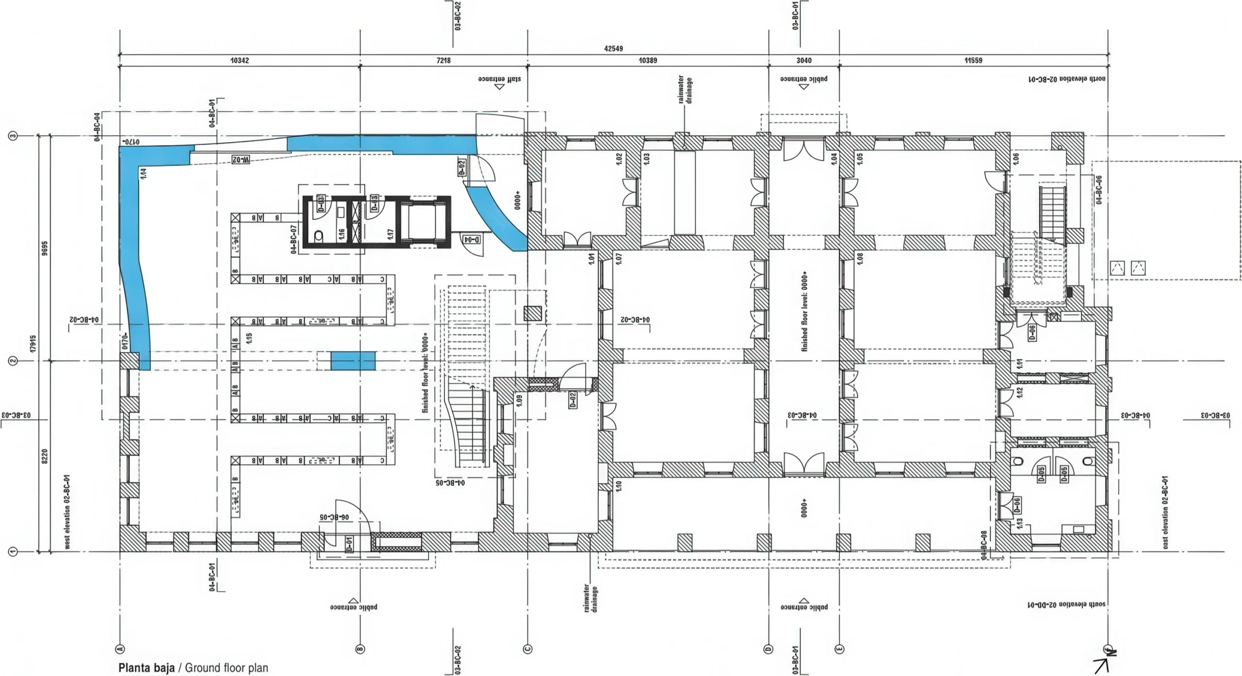
曼萨中央邮政局 / Manama Central Post Office | 安妮·霍尔特罗普|Anne Holtrop 安妮·霍尔特罗普|Anne Holtrop • 2026-03-12 上午9:27 • 公共建筑设计, 文化建筑设计 曼萨中央邮政局由安妮·霍尔特罗普设计,位于巴林首都麦纳麦,是对1937年建成的海关大楼进行的修复与扩建项目。设计通过新增白色手工锤击混凝土体量,以”切割”手法完成原有不完整建筑形态,展现历史层次与现代干预的对话。 设计: 安妮·霍尔特罗普|Anne Holtrop 类型: 文化建筑设计 功能: 政府机构 风格: 当代建筑 材料: 混凝土 尺度: 中型建筑 地点:麦纳麦 时间: 2020年 项目概述 曼萨中央邮政局位于巴林首都麦纳麦,原为1937年建成的海关大楼,经安妮·霍尔特罗普设计团队于2016-2020年间完成修复与扩建。项目在保留历史建筑核心结构基础上,新增白色混凝土体量,形成完整的邮政办公综合体。 设计理念 设计团队以”不完整完成”为核心理念,通过新增体量的刻意”切割”处理,保留建筑历史变迁痕迹。新建部分在体量关系上呼应原有80厘米厚墙体,同时在转角处留出空隙,展现不同时期建筑层次的叠加与对话。 空间与功能 项目包含两个历史体量(主楼与侧翼扩建)和一个新建第三体量。空间组织上,修复后的历史部分容纳主要邮政功能,新建体量提供补充办公空间。流线设计强调历史与现代空间的过渡,通过精心设置的开口建立视觉联系。 材料与技术 主要采用白色手工锤击混凝土,厚度与历史墙体一致的80厘米。材料选择既呼应原有建筑厚重质感,又通过现代施工工艺展现当代建筑语言。结构体系尊重原有承重墙系统,新建部分采用钢筋混凝土框架。 项目特色与启发 曼萨中央邮政局展示了历史建筑修复与当代介入的平衡艺术。安妮·霍尔特罗普的设计通过材料对话和体量处理,为文化遗产更新提供了创新范例,对城市历史街区更新具有重要参考价值。 设计团队 安妮·霍尔特罗普建筑事务所以材料研究和空间实验著称,擅长通过建筑语言探讨时间、物质性与场所记忆。事务所在文化建筑和历史建筑更新领域具有丰富经验,本项目体现了其对建筑历史层次与当代干预的深刻理解。 项目概述 曼萨中央邮政局位于巴林首都麦纳麦,原为1937年建成的海关大楼,经安妮·霍尔特罗普设计团队于2016-2020年间完成修复与扩建。项目在保留历史建筑核心结构基础上,新增白色混凝土体量,形成完整的邮政办公综合体。 设计理念 设计团队以”不完整完成”为核心理念,通过新增体量的刻意”切割”处理,保留建筑历史变迁痕迹。新建部分在体量关系上呼应原有80厘米厚墙体,同时在转角处留出空隙,展现不同时期建筑层次的叠加与对话。 空间与功能 项目包含两个历史体量(主楼与侧翼扩建)和一个新建第三体量。空间组织上,修复后的历史部分容纳主要邮政功能,新建体量提供补充办公空间。流线设计强调历史与现代空间的过渡,通过精心设置的开口建立视觉联系。 材料与技术 主要采用白色手工锤击混凝土,厚度与历史墙体一致的80厘米。材料选择既呼应原有建筑厚重质感,又通过现代施工工艺展现当代建筑语言。结构体系尊重原有承重墙系统,新建部分采用钢筋混凝土框架。 项目特色与启发 曼萨中央邮政局展示了历史建筑修复与当代介入的平衡艺术。安妮·霍尔特罗普的设计通过材料对话和体量处理,为文化遗产更新提供了创新范例,对城市历史街区更新具有重要参考价值。 设计团队 安妮·霍尔特罗普建筑事务所以材料研究和空间实验著称,擅长通过建筑语言探讨时间、物质性与场所记忆。事务所在文化建筑和历史建筑更新领域具有丰富经验,本项目体现了其对建筑历史层次与当代干预的深刻理解。 本文来自 © 安妮·霍尔特罗普|Anne Holtrop, 发布于 © 建筑学院官方网站。 未经授权,禁止转载或摘编。 编辑版本版权归 © 建筑学院官方网站 所有, 设计、图纸及照片版权归设计方 © 安妮·霍尔特罗普|Anne Holtrop ↗ 所有。 查看作者在建筑学院发布的更多作品: 安妮·霍尔特罗普|Anne Holtrop @ 建筑学院官方网站 manama-central-post-office历史建筑更新安妮·霍尔特罗普邮政建筑设计麦纳麦文化建筑 安妮·霍尔特罗普|Anne Holtrop事务所 & 设计师 下载原图 收藏 0 关于作者 安妮·霍尔特罗普|Anne Holtrop事务所 & 设计师 关注私信 23 文章 0 评论 0 粉丝 安妮·霍尔特罗普(Anne Holtrop)作为备受瞩目的当代建筑师,其事务所Studio Anne Holtrop以对材料与空间的独特探索闻名。霍尔特罗普于2009年成立个人工作室,目前事务所活跃于巴林穆哈拉格与荷兰阿姆斯特丹。其代表作包括巴林国家展馆(2015米兰世博会)、穆哈拉格绿色角落建筑及西雅迪珍珠博物馆。他善于从地质与材料本质出发,通过创新的建造方式塑造极具诗意的建筑空间,曾荣获夏洛特·科勒奖(2007年)、雅科夫·切尔尼霍夫国际奖(2016年)及阿迦汗建筑奖(2019年)。 绿色角落大厦 / Green Corner Building | 安妮·霍尔特罗普|Anne Holtrop 上一篇 2026-03-11 上午10:07 莫迪克城堡博物馆 / Museum Fort Vechten | 安妮·霍尔特罗普|Anne Holtrop 下一篇 2026-03-12 上午9:34 猜你喜欢 地形作屋 / Topography as House | 安妮·霍尔特罗普|Anne Holtrop 2026-03-10 概念建筑 公共空间谢赫艾伯罕中心 / Public Space Sheikh Ebrahim Center | 安妮·霍尔特罗普|Anne Holtrop 2026-03-11 公共空间设计 绿色角落大厦 / Green Corner Building | 安妮·霍尔特罗普|Anne Holtrop 2026-03-11 公共建筑设计 巴林王国国家馆 / National Pavilion of the Kingdom of Bahrain | 安妮·霍尔特罗普|Anne Holtrop 2025-12-21 公共建筑设计 石岐珍珠博物馆 / Siyadi Pearl Museum | 安妮·霍尔特罗普|Anne Holtrop 2026-01-07 公共建筑设计 福森豪恩的客人旅馆 / Guesthouse in Fürstenau | 吉翁·A·卡米纳达|Gion A. Caminada 4天前 商业与综合建筑 发表回复 请登录后评论...登录后才能评论 提交