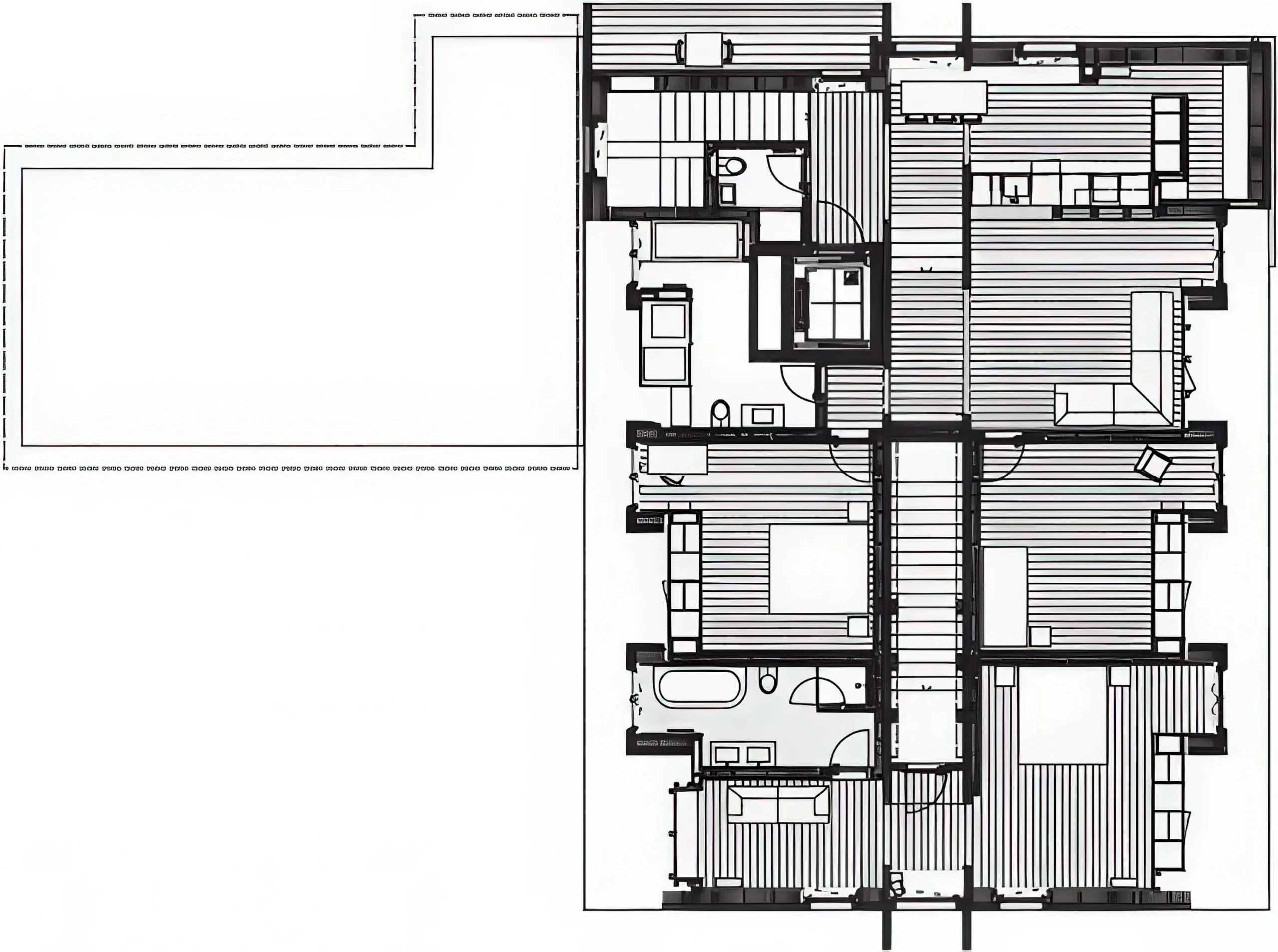
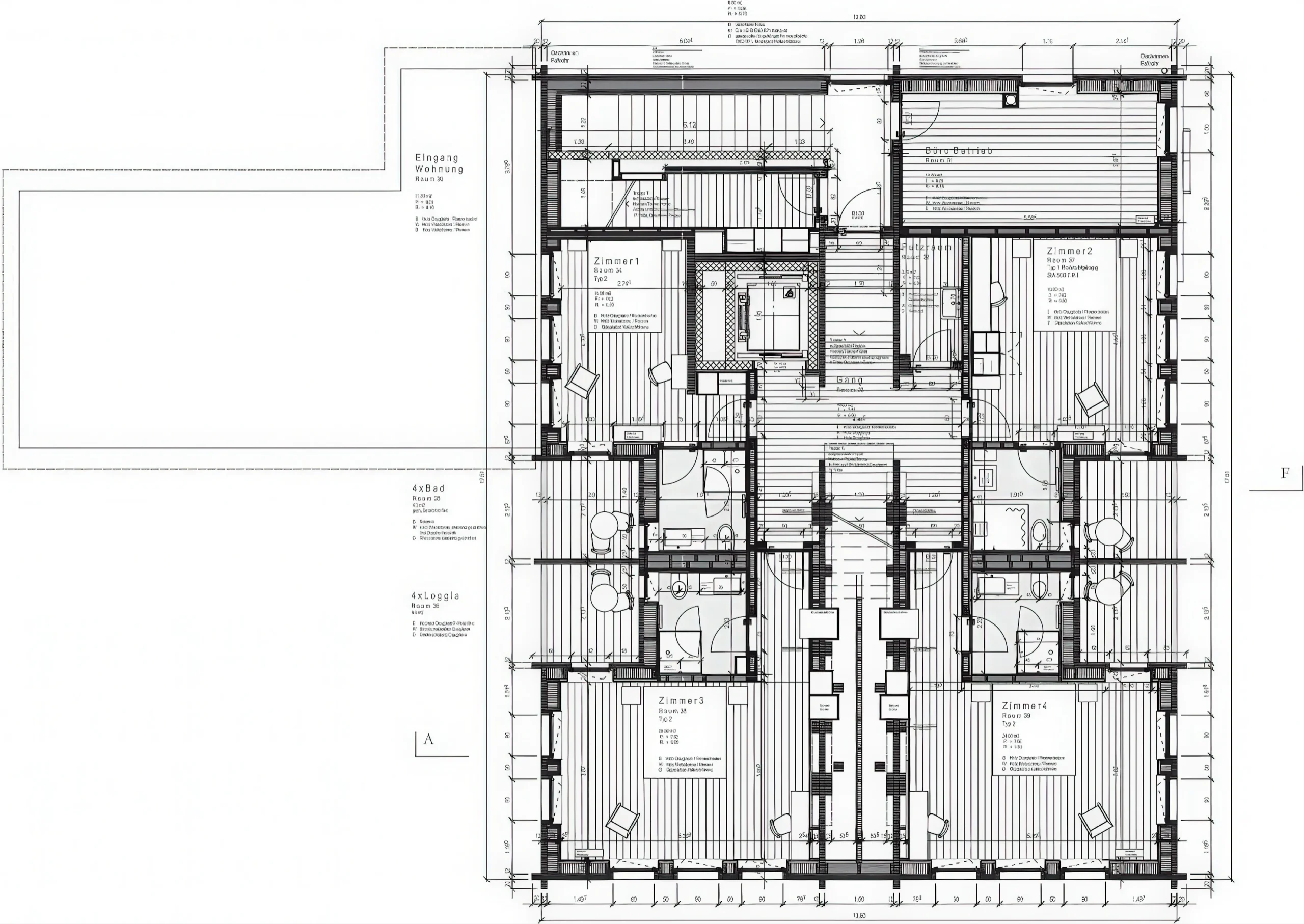
Obernau村酒店 / Guesthouse in Obernau | 吉翁·A·卡米纳达|Gion A. Caminada 吉翁·A·卡米纳达|Gion A Caminada • 2026-03-23 上午10:45 • 商业与综合建筑, 酒店建筑设计 Obernau村酒店由瑞士建筑师吉翁·A·卡米纳达设计,位于瑞士奥伯瑙的森林景观中。这座酒店建筑通过改造原有朝圣者石屋,融合当地建筑类型与多种功能需求,创造出独特的空间体验,特别是蓝色宴会厅成为连接餐厅与客房的过渡区域。 设计: 吉翁·A·卡米纳达|Gion A Caminada 类型: 酒店建筑设计 功能: 酒店 风格: 地域主义 材料: 木材 石材 尺度: 小型建筑 地点:奥伯瑙 时间: 2019年 项目概述 Obernau村酒店位于瑞士奥伯瑙的森林景观中,毗邻皮拉图斯山,是一座集住宿、餐饮和宴会功能于一体的酒店建筑。项目通过对原有朝圣者石屋的改造,保留了历史痕迹的同时注入现代功能,设计于2017年启动,2019年完工。 设计理念 吉翁·A·卡米纳达的设计理念源于对场地历史文脉的尊重与当代功能的融合。项目回应了中世纪晚期隐修院的历史背景,同时满足现代游客、徒步者和婚礼庆典等多元使用需求,在传统与现代之间建立平衡。 空间与功能 Obernau村酒店的空间组织清晰分层:底层设置餐厅与接待区,一层为标志性的蓝色宴会厅,上层分布客房区域。水平木墙结构与垂直花旗松柱结构相互叠加,既支撑楼层又界定空间,创造出流畅的功能过渡与独特的空间体验。 材料与技术 建筑主要采用木材、石材等传统材料,结合现代建造技术。木结构体系展现了精湛的工艺细节,石材基础保留了历史痕迹,整体构造体现了可持续的建筑理念,与周边森林环境和谐共生。 项目特色与启发 Obernau村酒店最突出的特色是蓝色宴会厅的空间处理,它作为垂直交通的过渡区域,创造了非凡的空间体验。项目展示了如何通过建筑改造在保留历史记忆的同时满足现代功能需求,为历史建筑更新提供了有价值的参考。 设计团队 吉翁·A·卡米纳达是瑞士著名建筑师,以其对传统建筑语言的现代表达而闻名。他的作品常常扎根于地方建筑传统,同时注入当代设计思维,在材料运用和空间营造方面具有独特见解。 项目概述 Obernau村酒店位于瑞士奥伯瑙的森林景观中,毗邻皮拉图斯山,是一座集住宿、餐饮和宴会功能于一体的酒店建筑。项目通过对原有朝圣者石屋的改造,保留了历史痕迹的同时注入现代功能,设计于2017年启动,2019年完工。 设计理念 吉翁·A·卡米纳达的设计理念源于对场地历史文脉的尊重与当代功能的融合。项目回应了中世纪晚期隐修院的历史背景,同时满足现代游客、徒步者和婚礼庆典等多元使用需求,在传统与现代之间建立平衡。 空间与功能 Obernau村酒店的空间组织清晰分层:底层设置餐厅与接待区,一层为标志性的蓝色宴会厅,上层分布客房区域。水平木墙结构与垂直花旗松柱结构相互叠加,既支撑楼层又界定空间,创造出流畅的功能过渡与独特的空间体验。 材料与技术 建筑主要采用木材、石材等传统材料,结合现代建造技术。木结构体系展现了精湛的工艺细节,石材基础保留了历史痕迹,整体构造体现了可持续的建筑理念,与周边森林环境和谐共生。 项目特色与启发 Obernau村酒店最突出的特色是蓝色宴会厅的空间处理,它作为垂直交通的过渡区域,创造了非凡的空间体验。项目展示了如何通过建筑改造在保留历史记忆的同时满足现代功能需求,为历史建筑更新提供了有价值的参考。 设计团队 吉翁·A·卡米纳达是瑞士著名建筑师,以其对传统建筑语言的现代表达而闻名。他的作品常常扎根于地方建筑传统,同时注入当代设计思维,在材料运用和空间营造方面具有独特见解。 本文来自 © 吉翁·A·卡米纳达|Gion A Caminada, 发布于 © 建筑学院官方网站。 未经授权,禁止转载或摘编。 编辑版本版权归 © 建筑学院官方网站 所有, 设计、图纸及照片版权归设计方 © 吉翁·A·卡米纳达|Gion A Caminada ↗ 所有。 查看作者在建筑学院发布的更多作品: 吉翁·A·卡米纳达|Gion A Caminada @ 建筑学院官方网站 guesthouse-obernau历史建筑改造木结构建筑瑞士建筑酒店建筑设计 吉翁·A·卡米纳达|Gion A Caminada事务所 & 设计师 下载原图 收藏 0 关于作者 吉翁·A·卡米纳达|Gion A Caminada事务所 & 设计师 关注私信 22 文章 0 评论 0 粉丝 瑞士建筑师吉翁·A·卡米纳达(Gion A. Caminada)以其对传统木结构的现代诠释与乡村建筑复兴而闻名。他的官方网站 theaficionados.com 系统展示其代表作、设计哲学及对乡土文化的深刻思考。访问该站可深入了解其如何将地方传统转化为当代可持续的建筑语言。 希尔根巴赫瑞斯建筑 / Rise Buildings in Hirzenbach | Roger Boltshauser 上一篇 2026-03-22 下午8:03 福森豪恩的客人旅馆 / Guesthouse in Fürstenau | 吉翁·A·卡米纳达|Gion A. Caminada 下一篇 2026-03-23 上午11:25 猜你喜欢 竞赛 | Timber Futures 国际创意设计竞赛(截至2025.10.26) 2025-08-27 建筑师设计 皇家咖啡馆酒店 Hotel Café Royal | 大卫·奇珀菲尔德建筑事务所|David Chipperfield 2025-11-08 商业与综合建筑 Sennaria 切奶工厂在德斯尼斯 / Cheese Factory in Disentis | 吉翁·A·卡米纳达|Gion A. Caminada 2026-01-07 工业建筑 兰登贝格豪斯剧院 Landenberghaus Theater | Karamuk Kuo 建筑事务所|Karamuk Kuo 2025-12-16 公共建筑设计 马术项目 Equestrian Project | 曼努埃尔·塞万提斯|Manuel Cervantes 2025-12-08 公共建筑设计 Sennaria 切奶工厂在德斯尼斯 / Cheese Factory in Disentis | 吉翁·A·卡米纳达|Gion A. Caminada 2026-03-26 工业建筑 发表回复 请登录后评论...登录后才能评论 提交