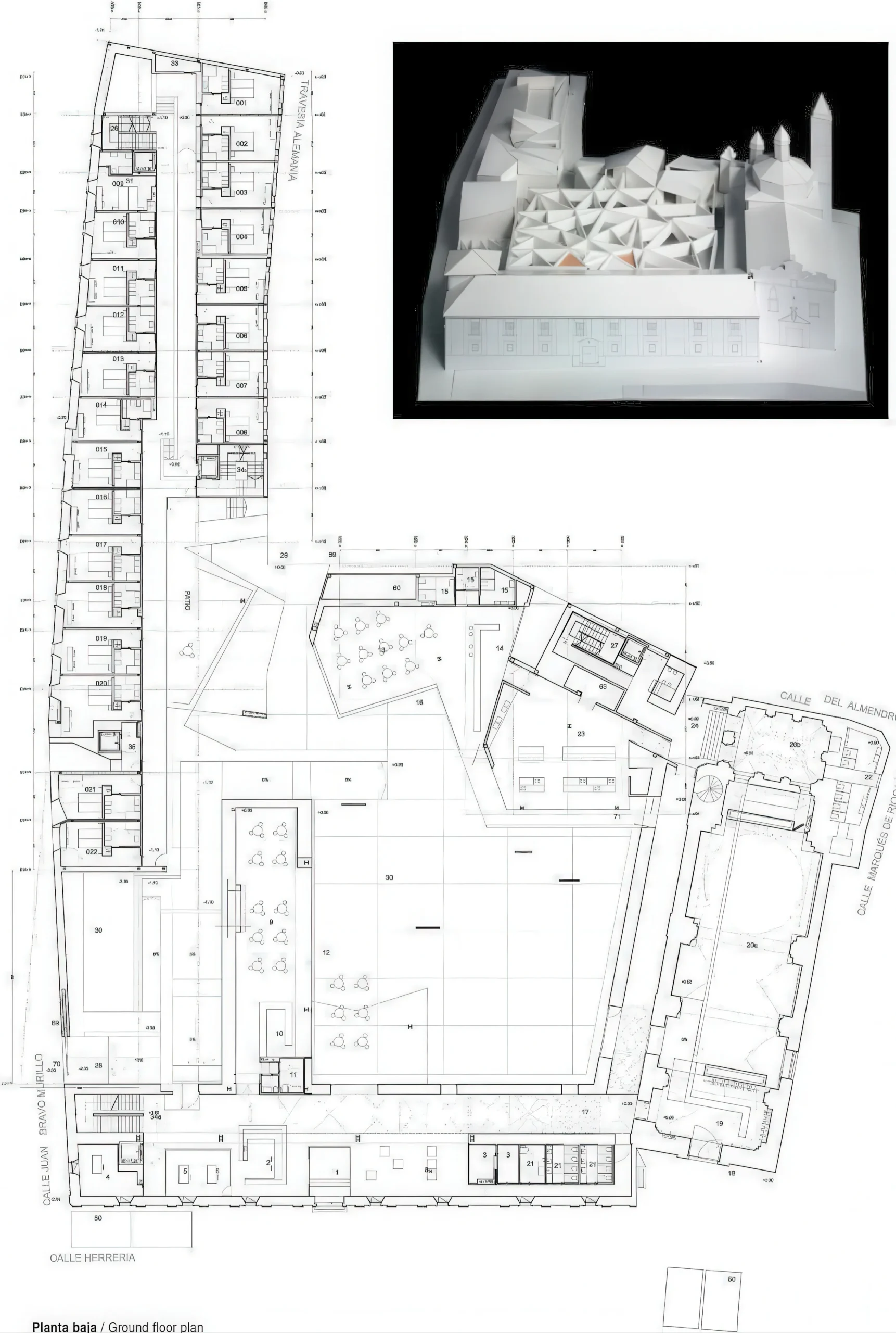
弗雷赫纳尔德拉谢拉酒店 / Hotel in Fregenal de la Sierra | +MGM 建筑师事务所|MGM MGM 建筑师事务所|MGM • 2026-04-27 上午9:27 • 商业与综合建筑, 酒店建筑设计 弗雷赫纳尔德拉谢拉酒店由+MGM建筑师事务所设计,位于西班牙弗雷赫纳尔德拉谢拉历史城区,是一座融合传统与现代的精品酒店。项目通过创新的”筛网”屋顶设计,将原有历史建筑与新建空间有机结合,创造出一个连接教堂、耶稣会学院和布拉沃·穆里略故居的文化综合体。 设计: MGM 建筑师事务所|MGM 类型: 酒店建筑设计 功能: 酒店 风格: 当代建筑 材料: 混凝土 玻璃 尺度: 中型建筑 地点:弗雷赫纳尔德拉谢拉 时间: 1970年 项目概述 弗雷赫纳尔德拉谢拉酒店位于西班牙埃斯特雷马杜拉地区的弗雷赫纳尔德拉谢拉镇,是一座集住宿、餐饮和活动功能于一体的文化酒店。项目通过对历史建筑群的改造更新,将原有庄园住宅、教堂和学院建筑整合为统一的酒店综合体,展现了+MGM建筑师事务所在历史建筑活化方面的专业能力。 设计理念 设计灵感源自弗雷赫纳尔德拉谢拉独特的建筑遗产特征,特别是历史庄园住宅中隐藏的庭院花园空间。项目旨在创造一个大尺度的过滤空间,连接场地内的三座重要历史建筑:教堂、耶稣会学院和19世纪经济学家布拉沃·穆里略的出生地。这种设计回应了城市肌理中建筑体量的紧凑性与内部空间丰富性之间的二元关系。 空间与功能 酒店的核心空间是一个由筛网式屋顶覆盖的中央区域,容纳了咖啡厅、餐厅和庆典厅等功能。这个空间巧妙地融合了原有的游戏场地、集会区域和历史果园,通过可变厚度的裸露混凝土肋梁结构,让植被从地面生长,同时过滤阳光和空气。流线设计充分考虑游客体验,将历史建筑与现代功能无缝衔接。 材料与技术 项目主要采用裸露混凝土作为结构材料,特别是中央区域的筛网屋顶由可变深度和宽度的混凝土肋梁构成。这种技术解决方案不仅支撑屋顶结构,还为植被提供了生长基础,同时创造了丰富的光影效果。材料选择尊重历史建筑的原有特征,同时引入现代建造技术确保建筑的耐久性和舒适性。 项目特色与启发 弗雷赫纳尔德拉谢拉酒店项目的独特之处在于其对历史城市肌理的敏感回应和创新性的空间整合策略。筛网屋顶的设计不仅解决了功能需求,更成为连接过去与现在的象征性元素。这个项目为历史城区内的建筑更新提供了有价值的参考,展示了如何通过现代设计语言激活文化遗产。 设计团队 +MGM建筑师事务所是一家专注于建筑与城市设计的西班牙事务所,在文化遗产保护与更新领域具有丰富经验。事务所擅长通过创新的设计策略回应复杂的历史环境,在尊重传统的同时引入当代建筑语言。他们在弗雷赫纳尔德拉谢拉酒店项目中展现了将历史建筑转化为现代功能的专业能力。 项目概述 弗雷赫纳尔德拉谢拉酒店位于西班牙埃斯特雷马杜拉地区的弗雷赫纳尔德拉谢拉镇,是一座集住宿、餐饮和活动功能于一体的文化酒店。项目通过对历史建筑群的改造更新,将原有庄园住宅、教堂和学院建筑整合为统一的酒店综合体,展现了+MGM建筑师事务所在历史建筑活化方面的专业能力。 设计理念 设计灵感源自弗雷赫纳尔德拉谢拉独特的建筑遗产特征,特别是历史庄园住宅中隐藏的庭院花园空间。项目旨在创造一个大尺度的过滤空间,连接场地内的三座重要历史建筑:教堂、耶稣会学院和19世纪经济学家布拉沃·穆里略的出生地。这种设计回应了城市肌理中建筑体量的紧凑性与内部空间丰富性之间的二元关系。 空间与功能 酒店的核心空间是一个由筛网式屋顶覆盖的中央区域,容纳了咖啡厅、餐厅和庆典厅等功能。这个空间巧妙地融合了原有的游戏场地、集会区域和历史果园,通过可变厚度的裸露混凝土肋梁结构,让植被从地面生长,同时过滤阳光和空气。流线设计充分考虑游客体验,将历史建筑与现代功能无缝衔接。 材料与技术 项目主要采用裸露混凝土作为结构材料,特别是中央区域的筛网屋顶由可变深度和宽度的混凝土肋梁构成。这种技术解决方案不仅支撑屋顶结构,还为植被提供了生长基础,同时创造了丰富的光影效果。材料选择尊重历史建筑的原有特征,同时引入现代建造技术确保建筑的耐久性和舒适性。 项目特色与启发 弗雷赫纳尔德拉谢拉酒店项目的独特之处在于其对历史城市肌理的敏感回应和创新性的空间整合策略。筛网屋顶的设计不仅解决了功能需求,更成为连接过去与现在的象征性元素。这个项目为历史城区内的建筑更新提供了有价值的参考,展示了如何通过现代设计语言激活文化遗产。 设计团队 +MGM建筑师事务所是一家专注于建筑与城市设计的西班牙事务所,在文化遗产保护与更新领域具有丰富经验。事务所擅长通过创新的设计策略回应复杂的历史环境,在尊重传统的同时引入当代建筑语言。他们在弗雷赫纳尔德拉谢拉酒店项目中展现了将历史建筑转化为现代功能的专业能力。 本文来自 © MGM 建筑师事务所|MGM, 发布于 © 建筑学院官方网站。 未经授权,禁止转载或摘编。 编辑版本版权归 © 建筑学院官方网站 所有, 设计、图纸及照片版权归设计方 © MGM 建筑师事务所|MGM ↗ 所有。 查看作者在建筑学院发布的更多作品: MGM 建筑师事务所|MGM @ 建筑学院官方网站 +MGM建筑师事务所Hotel in Fregenal de la Sierra历史建筑改造文化酒店设计西班牙酒店设计 MGM 建筑师事务所|MGM事务所 & 设计师 下载原图 收藏 0 关于作者 MGM 建筑师事务所|MGM事务所 & 设计师 关注私信 7 文章 0 评论 0 粉丝 保罗·史密斯商店前脸 | 6a 建筑事务所 上一篇 2026-04-24 下午6:41 港湾巨轮,坐拥海景:禹洲温德姆至尊豪庭大酒店 / 中国建筑科学研究院厦门分院 下一篇 2019-07-29 上午6:30 猜你喜欢 皇家咖啡馆酒店 Hotel Café Royal | 大卫·奇珀菲尔德建筑事务所|David Chipperfield 2025-11-08 商业与综合建筑 弗雷纳尔德萨米酒店 Hotel in Fregenal de la Sierra | MGM 建筑师事务所|MGM 2025-10-31 公共建筑设计 石岐珍珠博物馆 / Siyadi Pearl Museum | 安妮·霍尔特罗普|Anne Holtrop 2026-03-13 公共建筑设计 兰登贝格豪斯剧院 Landenberghaus Theater | Karamuk Kuo 建筑事务所|Karamuk Kuo 2025-12-16 公共建筑设计 奥利文扎旅店 Tourist Inn in Olivenza | 何塞·玛丽亚·桑切斯·加西亚|José María Sánchez García 2025-12-02 公共建筑设计 Obernau村酒店 / Guesthouse in Obernau | 吉翁·A·卡米纳达|Gion A. Caminada 2026-03-23 商业与综合建筑 发表回复 请登录后评论...登录后才能评论 提交