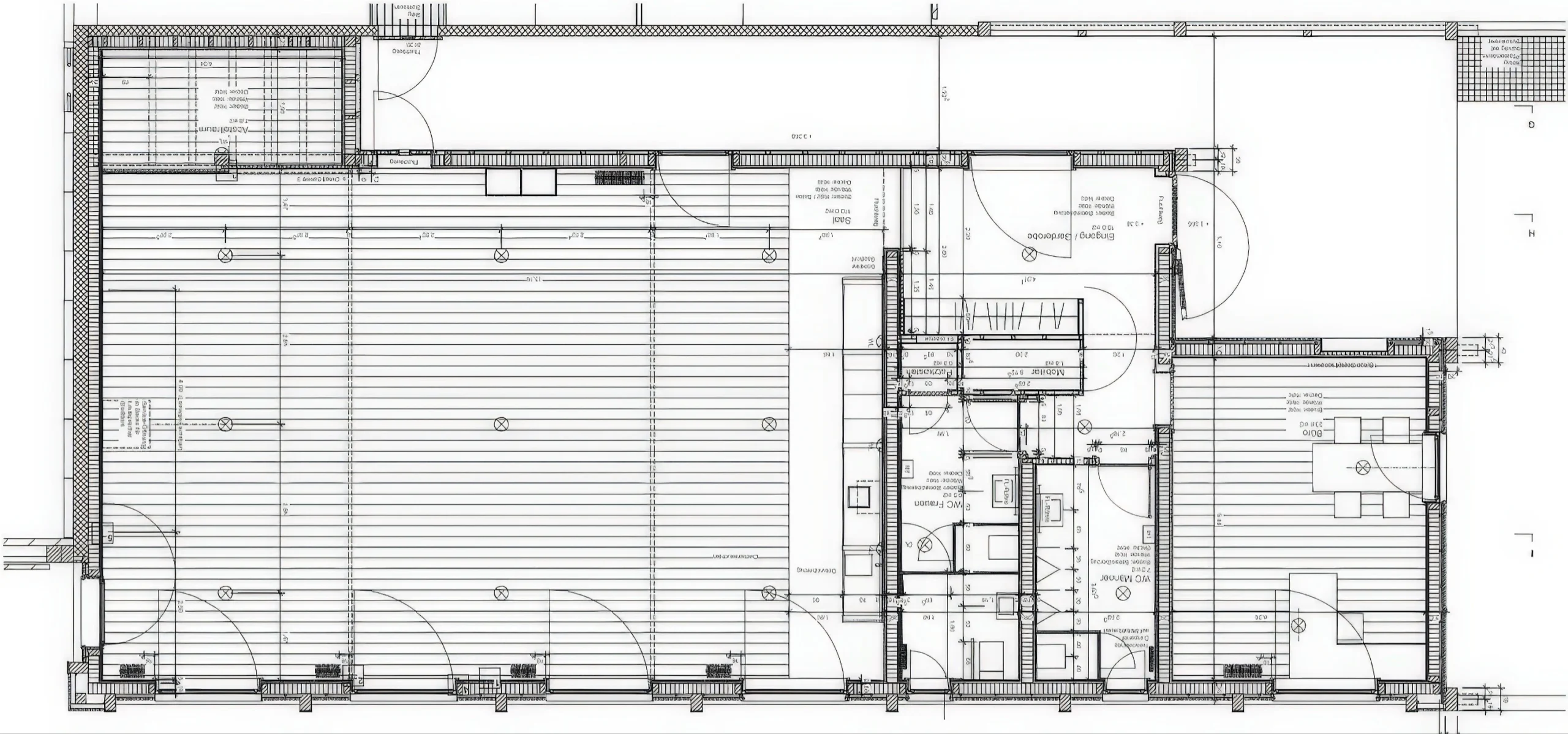
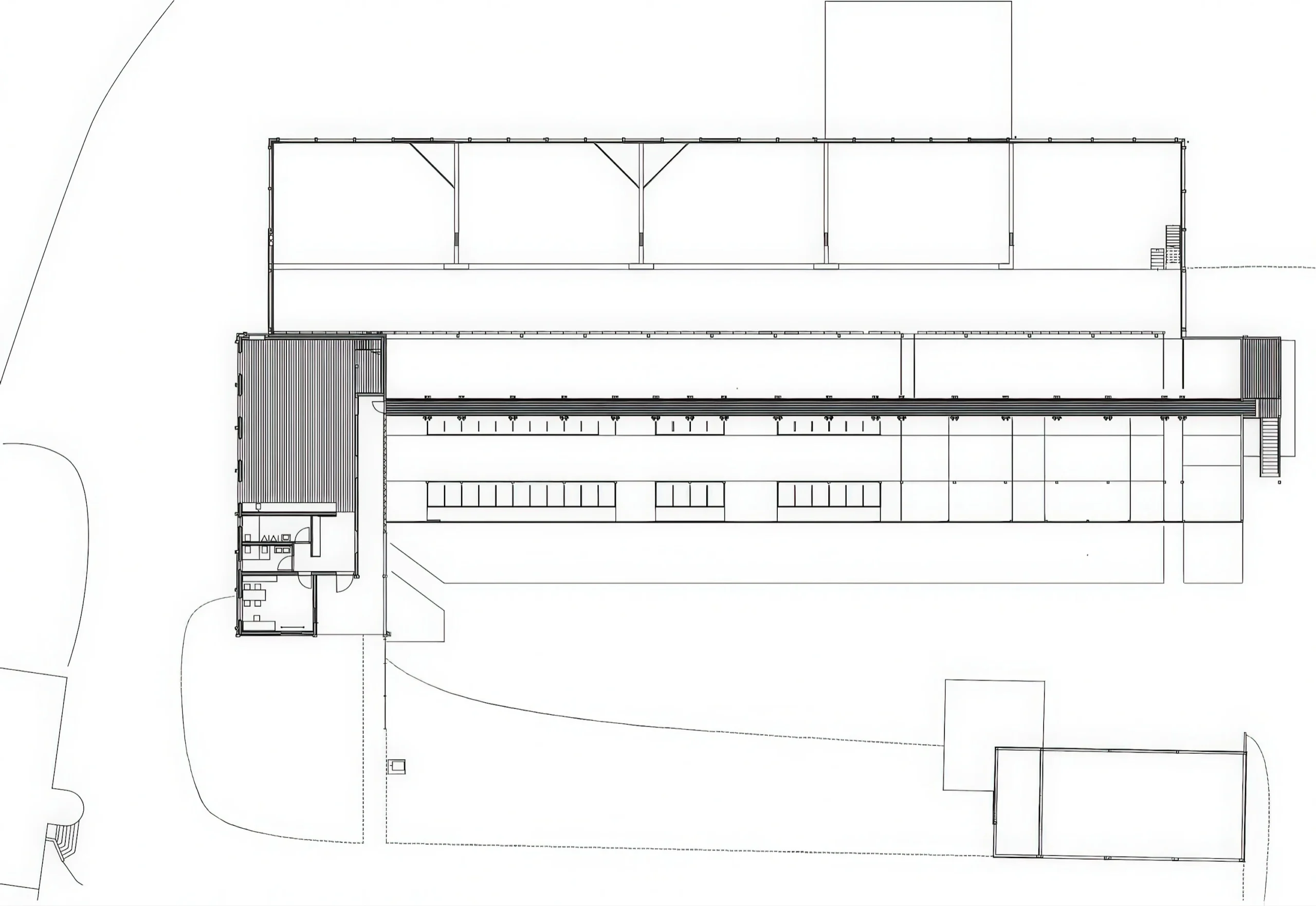
迪森尼斯修道院农场 / Disentis Monastery Farm | 吉翁·A·卡米纳达|Gion A. Caminada 吉翁·A·卡米纳达|Gion A Caminada • 2026-03-25 上午11:31 • 公共空间设计, 文化综合体 项目概述 迪森尼斯修道院农场位于瑞士迪森尼斯-穆斯特,是一座多功能农业建筑,包含动物饲养区、干草储藏空间及农业教育展示区。项目由吉翁·A·卡米纳达设计,于2007年至2009年间建成,采用全木结构体系,体现了当代农业建筑的创新实践。 设计理念 迪森尼斯修道院农场的设计旨在回应农业部门的政治诉求与生态复杂性,通过建筑空间促进公众对农业改革的理解。吉翁·A·卡米纳达将农场视为连接人与自然的教育场所,强调透明度与体验性,使访客能够直观感知农业活动的社会与环境意义。 空间与功能 农场分为三个主要区域:室外动物活动场、干草储藏库及面向农业新可能性的多功能空间。一条贯穿建筑的参观走道允许访客无干扰地观察动物行为,包括它们在畜舍内的活动、外出与休息。空间布局注重流线逻辑与视觉联系,强化了教育体验的连续性。 材料与技术 迪森尼斯修道院农场全部采用木材建造,体现了可持续建筑理念。木结构不仅适应了山地气候,还通过精确的工艺细节展现了材料的表现力。设计注重能源效率与生态兼容性,突出了农业建筑在资源循环与环境友好方面的创新。 项目特色与启发 迪森尼斯修道院农场以全木结构与教育导向的空间设计,重新定义了农业建筑的类型学。吉翁·A·卡米纳达通过该项目展示了建筑如何整合生态、经济与社会维度,为当代农业更新与文化传承提供了可借鉴的范例。 设计团队 吉翁·A·卡米纳达是一位瑞士建筑师,以其对地域建筑与现代木构的深入研究而知名。他的作品常融合传统工艺与当代技术,强调建筑与自然环境的对话,在住宅、文化与农业项目中展现了持续的设计创新。 设计: 吉翁·A·卡米纳达|Gion A Caminada 类型: 文化综合体 功能: 展览馆 风格: 当代建筑 材料: 木材 尺度: 中型建筑 地点:迪森尼斯-穆斯特 时间: 2009年 项目概述 迪森尼斯修道院农场位于瑞士迪森尼斯-穆斯特,是一座多功能农业建筑,包含动物饲养区、干草储藏空间及农业教育展示区。项目由吉翁·A·卡米纳达设计,于2007年至2009年间建成,采用全木结构体系,体现了当代农业建筑的创新实践。 设计理念 迪森尼斯修道院农场的设计旨在回应农业部门的政治诉求与生态复杂性,通过建筑空间促进公众对农业改革的理解。吉翁·A·卡米纳达将农场视为连接人与自然的教育场所,强调透明度与体验性,使访客能够直观感知农业活动的社会与环境意义。 空间与功能 农场分为三个主要区域:室外动物活动场、干草储藏库及面向农业新可能性的多功能空间。一条贯穿建筑的参观走道允许访客无干扰地观察动物行为,包括它们在畜舍内的活动、外出与休息。空间布局注重流线逻辑与视觉联系,强化了教育体验的连续性。 材料与技术 迪森尼斯修道院农场全部采用木材建造,体现了可持续建筑理念。木结构不仅适应了山地气候,还通过精确的工艺细节展现了材料的表现力。设计注重能源效率与生态兼容性,突出了农业建筑在资源循环与环境友好方面的创新。 项目特色与启发 迪森尼斯修道院农场以全木结构与教育导向的空间设计,重新定义了农业建筑的类型学。吉翁·A·卡米纳达通过该项目展示了建筑如何整合生态、经济与社会维度,为当代农业更新与文化传承提供了可借鉴的范例。 设计团队 吉翁·A·卡米纳达是一位瑞士建筑师,以其对地域建筑与现代木构的深入研究而知名。他的作品常融合传统工艺与当代技术,强调建筑与自然环境的对话,在住宅、文化与农业项目中展现了持续的设计创新。 项目概述 迪森尼斯修道院农场位于瑞士迪森尼斯-穆斯特,是一座多功能农业建筑,包含动物饲养区、干草储藏空间及农业教育展示区。项目由吉翁·A·卡米纳达设计,于2007年至2009年间建成,采用全木结构体系,体现了当代农业建筑的创新实践。 设计理念 迪森尼斯修道院农场的设计旨在回应农业部门的政治诉求与生态复杂性,通过建筑空间促进公众对农业改革的理解。吉翁·A·卡米纳达将农场视为连接人与自然的教育场所,强调透明度与体验性,使访客能够直观感知农业活动的社会与环境意义。 空间与功能 农场分为三个主要区域:室外动物活动场、干草储藏库及面向农业新可能性的多功能空间。一条贯穿建筑的参观走道允许访客无干扰地观察动物行为,包括它们在畜舍内的活动、外出与休息。空间布局注重流线逻辑与视觉联系,强化了教育体验的连续性。 材料与技术 迪森尼斯修道院农场全部采用木材建造,体现了可持续建筑理念。木结构不仅适应了山地气候,还通过精确的工艺细节展现了材料的表现力。设计注重能源效率与生态兼容性,突出了农业建筑在资源循环与环境友好方面的创新。 项目特色与启发 迪森尼斯修道院农场以全木结构与教育导向的空间设计,重新定义了农业建筑的类型学。吉翁·A·卡米纳达通过该项目展示了建筑如何整合生态、经济与社会维度,为当代农业更新与文化传承提供了可借鉴的范例。 设计团队 吉翁·A·卡米纳达是一位瑞士建筑师,以其对地域建筑与现代木构的深入研究而知名。他的作品常融合传统工艺与当代技术,强调建筑与自然环境的对话,在住宅、文化与农业项目中展现了持续的设计创新。 本文来自 © 吉翁·A·卡米纳达|Gion A Caminada, 发布于 © 建筑学院官方网站。 未经授权,禁止转载或摘编。 编辑版本版权归 © 建筑学院官方网站 所有, 设计、图纸及照片版权归设计方 © 吉翁·A·卡米纳达|Gion A Caminada ↗ 所有。 查看作者在建筑学院发布的更多作品: 吉翁·A·卡米纳达|Gion A Caminada @ 建筑学院官方网站 Disentis Monastery Farm农业建筑设计吉翁·A·卡米纳达木结构建筑瑞士农场建筑 吉翁·A·卡米纳达|Gion A Caminada事务所 & 设计师 下载原图 收藏 0 关于作者 吉翁·A·卡米纳达|Gion A Caminada事务所 & 设计师 关注私信 22 文章 0 评论 0 粉丝 瑞士建筑师吉翁·A·卡米纳达(Gion A. Caminada)以其对传统木结构的现代诠释与乡村建筑复兴而闻名。他的官方网站 theaficionados.com 系统展示其代表作、设计哲学及对乡土文化的深刻思考。访问该站可深入了解其如何将地方传统转化为当代可持续的建筑语言。 公共空间谢赫艾伯罕中心 / Public Space Sheikh Ebrahim Center | 安妮·霍尔特罗普|Anne Holtrop 上一篇 2026-03-11 上午9:50 XSING原生公园遮阳棚 / Canopies for Xingu Indigenous Park | Estúdio Gustúdio Gustavo Utrabo 下一篇 2026-03-31 上午10:00 猜你喜欢 Sennaria 切奶工厂在德斯尼斯 / Cheese Factory in Disentis | 吉翁·A·卡米纳达|Gion A. Caminada 2026-03-26 工业建筑 Tegia da Vaut – Domat的森林小屋 / Tegia da Vaut – Forest Hut in Domat | 吉翁·A·卡米纳达|Gion A. Caminada 2026-03-20 住宅建筑设计 Sennaria 切奶工厂在德斯尼斯 / Cheese Factory in Disentis | 吉翁·A·卡米纳达|Gion A. Caminada 2026-01-07 工业建筑 马术项目 Equestrian Project | 曼努埃尔·塞万提斯|Manuel Cervantes 2025-12-08 公共建筑设计 瓦拉兰斯住宅区 / Housing Complex in Valendas | 吉翁·A·卡米纳达|Gion A. Caminada 2026-03-29 住宅建筑设计 丹佛展馆 / Pavilion in Denver | Pezo Von Ellrichshausen 2026-03-28 公共建筑设计 发表回复 请登录后评论...登录后才能评论 提交