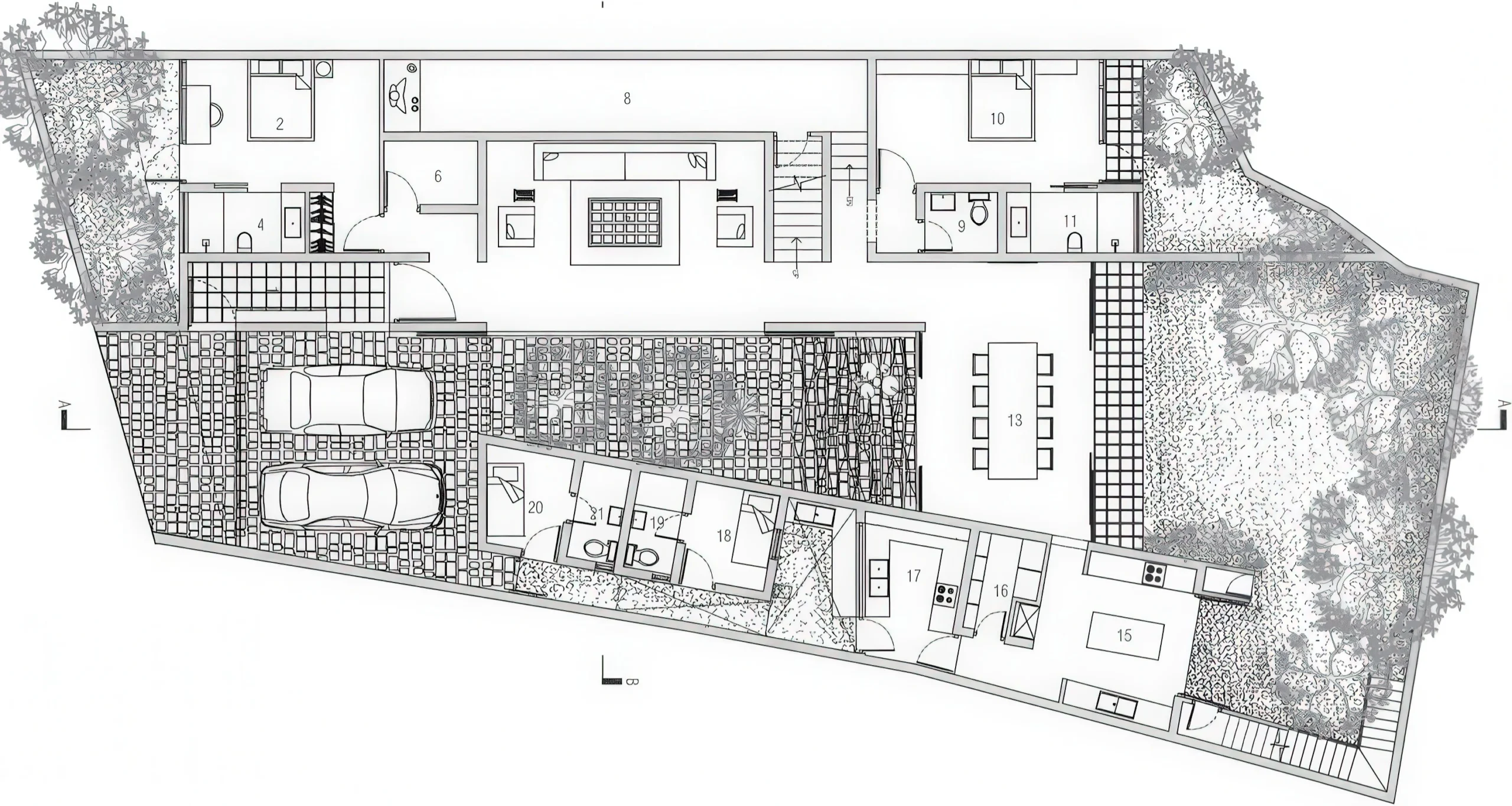
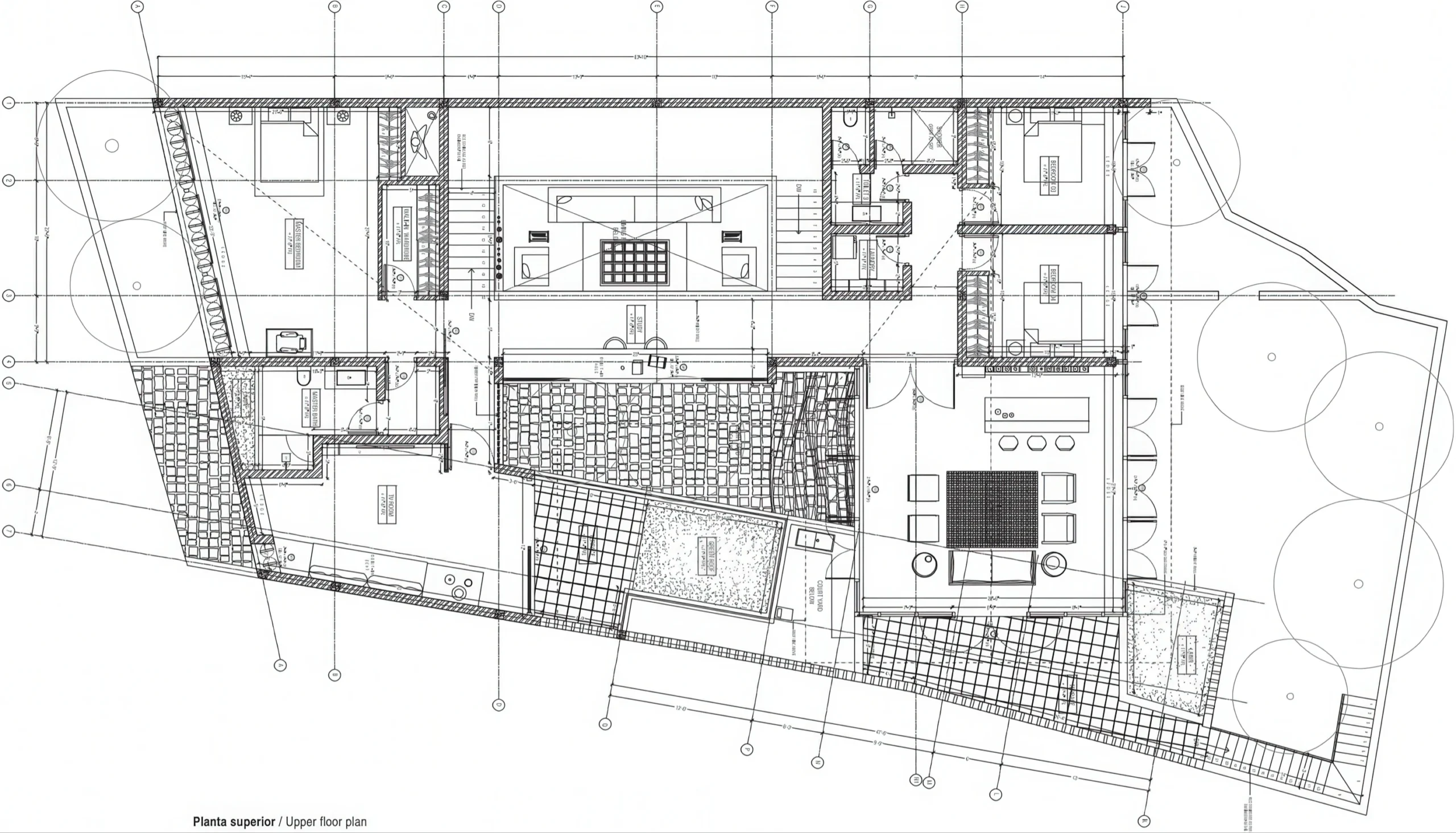
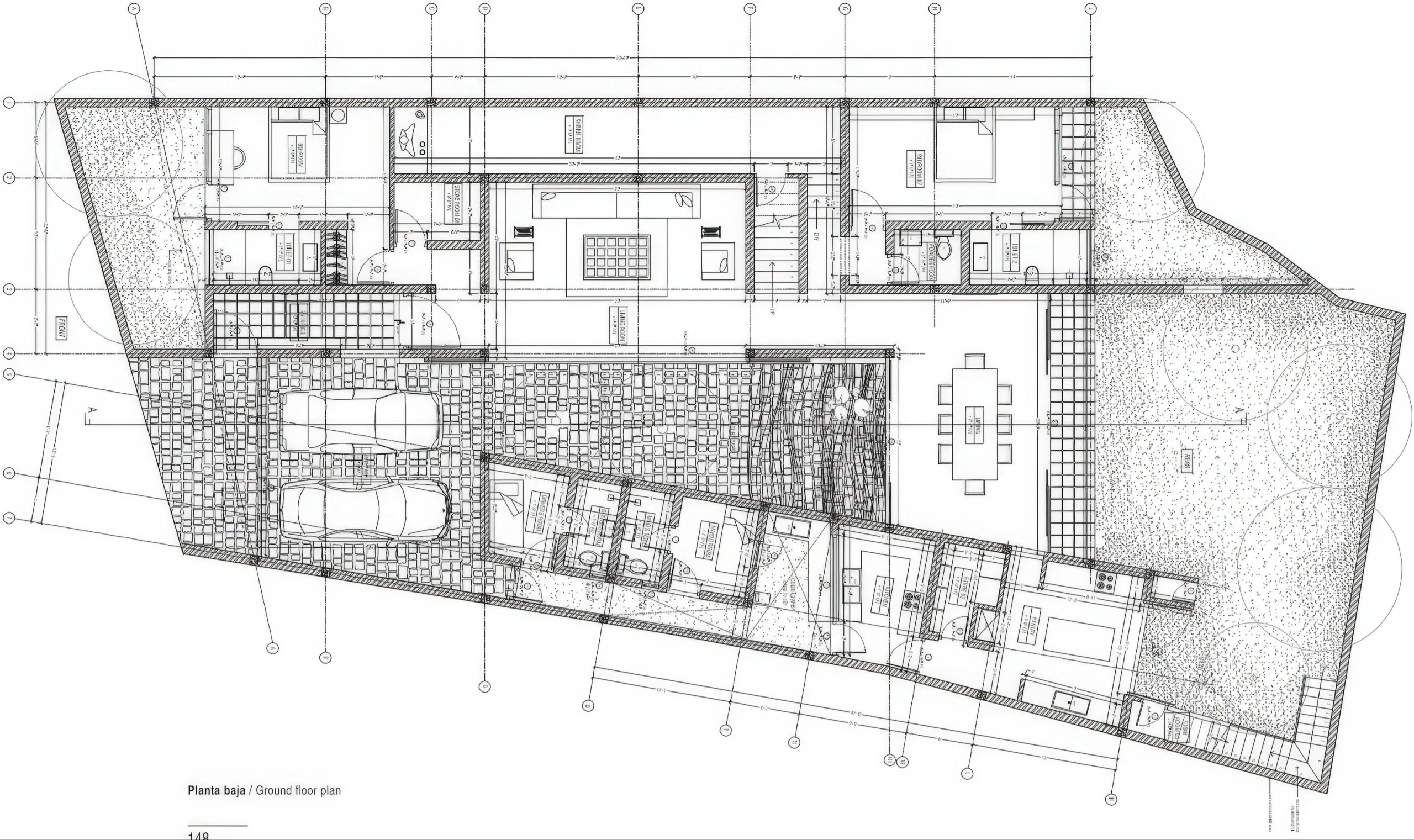
CASA ESPINAL / Spinal House | 帕琳达·坎南加拉|Palinda Kannangara 帕琳达·坎南加拉|Palinda Kannangara • 2026-04-12 下午6:44 • 住宅建筑设计, 建筑设计, 独立住宅设计 Spinal House 由帕琳达·坎南加拉设计,位于斯里兰卡芒特拉维尼亚的楔形地块,是一座内向型家庭住宅。设计灵感源自南印度传统建筑,以中央脊柱式庭院为核心组织空间,通过回收石材与砖砌艺术营造丰富的纹理体验,在密集城区中创造了一个与自然紧密连接的居住环境。 设计: 帕琳达·坎南加拉|Palinda Kannangara 类型: 独立住宅设计 功能: 独立住宅 风格: 地域主义 材料: 混凝土 木材 石材 砖材 尺度: 小型建筑 地点:芒特拉维尼亚 时间: 1970年 项目概述 Spinal House 位于斯里兰卡芒特拉维尼亚,是一座独立住宅,建于2015年至2017年间。项目占地为典型的楔形郊区地块,在密集的居住环境中通过内向型设计策略,构建了一个以中央庭院为核心的家庭生活空间。 设计理念 设计灵感来源于南印度寺庙城镇的街巷住宅,回应业主深厚的南印度文化根源。项目以中央开放式庭院作为空间脊柱,借鉴南印度传统住宅的组织方式,强调天空与自然在建筑内部的强烈存在感,在异国他乡重新连接居住者与文化根源。 空间与功能 Spinal House 通过中央脊柱式庭院将服务空间与起居、卧室区域明确分离。地面层布置客房与主要生活区,上层为家庭私密空间。流线设计注重视线的穿透与空间的对话,楼梯平台设置取景窗,连接不同功能区域的同时保持视觉联系。餐厅亭桥跨越庭院,增强了空间的流动性与体验层次。 材料与技术 项目大量使用回收材料,包括来自拆除茶庄和道路的回收铺路石构成庭院地面,砖砌艺术墙面借鉴南印度编织挂毯的图案。上层空间采用本地硬木地板与白色木板墙面,形成材料层级的清晰过渡。绿色屋顶技术与庭院微气候设计有效应对科伦坡的热带气候。 项目特色与启发 Spinal House 展示了如何在密集城区中通过内向型设计创造宁静的家庭绿洲。其文化回应性设计方法、材料回收策略与空间组织逻辑,为当代住宅设计提供了如何在现代语境中融合传统智慧与可持续实践的参考范例。 设计团队 帕琳达·坎南加拉是斯里兰卡知名建筑师,其作品以对场地、文化与材料的敏感回应著称。事务所专注于创造与自然环境对话的建筑,通过简约而富有诗意的设计语言,在有限的资源条件下实现高质量的空间体验。 项目概述 Spinal House 位于斯里兰卡芒特拉维尼亚,是一座独立住宅,建于2015年至2017年间。项目占地为典型的楔形郊区地块,在密集的居住环境中通过内向型设计策略,构建了一个以中央庭院为核心的家庭生活空间。 设计理念 设计灵感来源于南印度寺庙城镇的街巷住宅,回应业主深厚的南印度文化根源。项目以中央开放式庭院作为空间脊柱,借鉴南印度传统住宅的组织方式,强调天空与自然在建筑内部的强烈存在感,在异国他乡重新连接居住者与文化根源。 空间与功能 Spinal House 通过中央脊柱式庭院将服务空间与起居、卧室区域明确分离。地面层布置客房与主要生活区,上层为家庭私密空间。流线设计注重视线的穿透与空间的对话,楼梯平台设置取景窗,连接不同功能区域的同时保持视觉联系。餐厅亭桥跨越庭院,增强了空间的流动性与体验层次。 材料与技术 项目大量使用回收材料,包括来自拆除茶庄和道路的回收铺路石构成庭院地面,砖砌艺术墙面借鉴南印度编织挂毯的图案。上层空间采用本地硬木地板与白色木板墙面,形成材料层级的清晰过渡。绿色屋顶技术与庭院微气候设计有效应对科伦坡的热带气候。 项目特色与启发 Spinal House 展示了如何在密集城区中通过内向型设计创造宁静的家庭绿洲。其文化回应性设计方法、材料回收策略与空间组织逻辑,为当代住宅设计提供了如何在现代语境中融合传统智慧与可持续实践的参考范例。 设计团队 帕琳达·坎南加拉是斯里兰卡知名建筑师,其作品以对场地、文化与材料的敏感回应著称。事务所专注于创造与自然环境对话的建筑,通过简约而富有诗意的设计语言,在有限的资源条件下实现高质量的空间体验。 本文来自 © 帕琳达·坎南加拉|Palinda Kannangara, 发布于 © 建筑学院官方网站。 未经授权,禁止转载或摘编。 编辑版本版权归 © 建筑学院官方网站 所有, 设计、图纸及照片版权归设计方 © 帕琳达·坎南加拉|Palinda Kannangara ↗ 所有。 查看作者在建筑学院发布的更多作品: 帕琳达·坎南加拉|Palinda Kannangara @ 建筑学院官方网站 spinal-house帕琳达·坎南加拉独立住宅设计芒特拉维尼亚住宅 帕琳达·坎南加拉|Palinda Kannangara事务所 & 设计师 下载原图 收藏 0 关于作者 帕琳达·坎南加拉|Palinda Kannangara事务所 & 设计师 关注私信 21 文章 0 评论 0 粉丝 帕琳达·坎南加拉(Palinda Kannangara)是斯里兰卡最具影响力的当代建筑师之一,以其创新的热带现代主义设计而闻名。他的作品深刻诠释了建筑与自然、光线的对话,擅长运用本地材料与现代工艺,创造出既具私密性又开放于景观的空间。其官方网站 www.palindakannangara.com 全面展示了他的住宅、酒店与文化项目,是了解其设计哲学、完整作品集及所获国际奖项的重要窗口。 S House / S House | HArquitectes 上一篇 2026-04-11 下午9:20 32社交住宅于圣维泽德拉斯帕利戈 / 32 Social Dwellings in San Vicente del Raspeig | 阿尔弗雷多·帕亚|Alfredo Payá 下一篇 2026-04-13 上午9:35 猜你喜欢 朱法纳风力发电站工作人员居住楼 / Staff Quarters for Wind Power Plant in Jaffna | 帕琳达·坎南加拉|Palinda Kannangara 2025-12-28 住宅建筑设计 佛罗里达的房子 / House in Florida | Pezo Von Ellrichshausen 2026-03-28 住宅建筑设计 霍加根的房子 / House in Hovgarden | Arrhov Frick 2025-12-25 住宅建筑设计 花园小屋 / Garden House | 安妮·霍尔特罗普|Anne Holtrop 2025-12-20 住宅建筑设计 异域宅院 / Alien House | 阿尔弗雷多·帕亚|Alfredo Payá 2025-12-02 公共建筑设计 弗斯特纳布尔克的库伯尔之家 / Kübler House in Fürstenaubruck | 吉翁·A·卡米纳达|Gion A. Caminada 2025-12-28 住宅建筑设计 发表回复 请登录后评论...登录后才能评论 提交