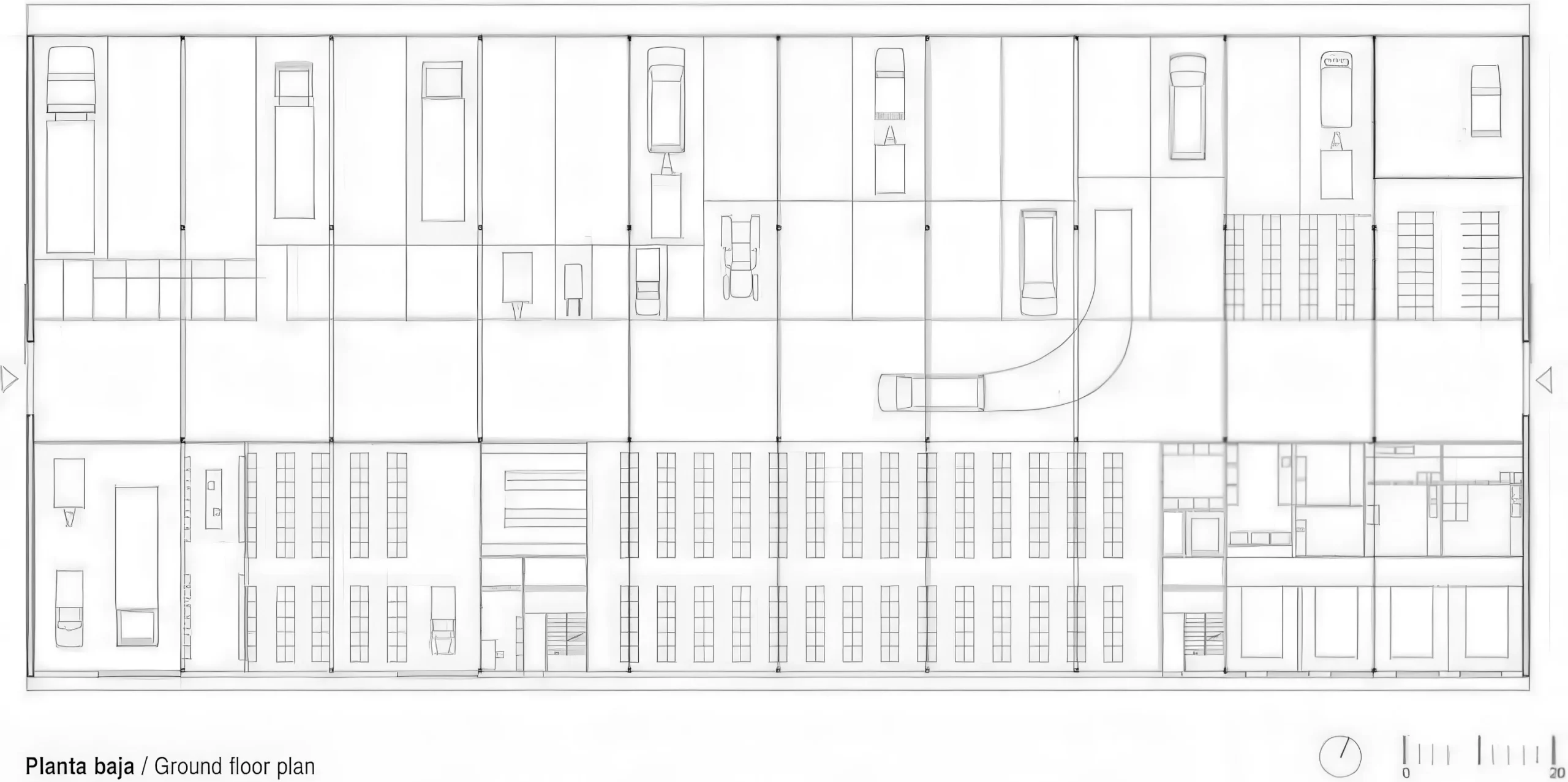
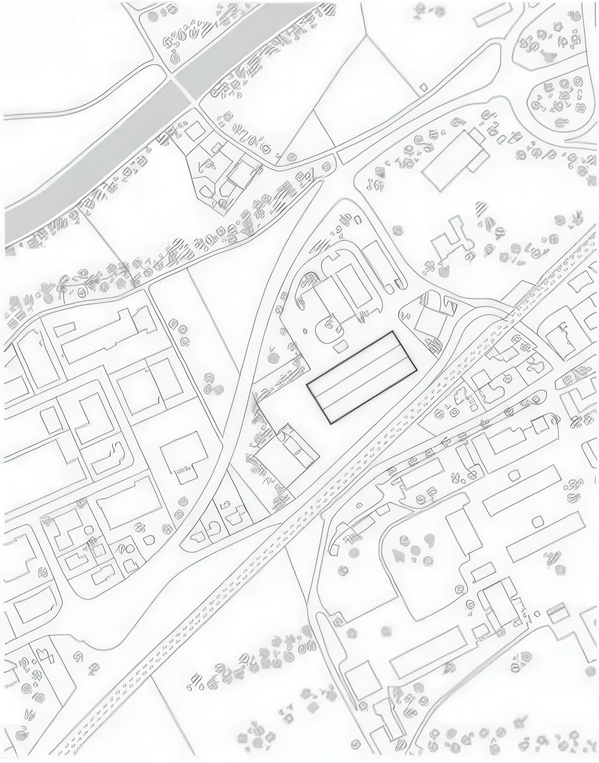
Bülach公共工程仓库 / Bülach Public Works Depot | Karamuk Kuo 建筑事务所 Karamuk Kuo 建筑事务所 • 2分钟前 • 工业建筑, 特殊建筑 Bülach公共工程仓库由Karamuk Kuo建筑事务所设计,位于瑞士Bülach市,是一个为公共工程部门提供车辆维护和设备存储的工业建筑。项目通过创新的锯齿形屋顶设计和双层空间组织,在有限预算内实现了功能性与空间体验的完美结合。 设计: Karamuk Kuo 建筑事务所 类型: 特殊建筑 功能: 独立住宅 风格: 当代建筑 材料: 混凝土 钢材 玻璃 尺度: 中型建筑 地点:Bülach 时间: 1970年 项目概述 Bülach公共工程仓库位于瑞士Bülach市,是一个工业建筑项目,主要为公共工程部门提供车辆维护和设备存储功能。该项目于2016年通过竞赛确定设计方案,建筑规模为中型工业建筑,体现了在有限预算下对工业建筑类型的创新思考。 设计理念 Karamuk Kuo建筑事务所以”经济性与表达性并存”为核心设计理念,在满足基本功能需求的同时,通过建筑语言赋予工业建筑独特的空间品质。设计巧妙地将锯齿形屋顶进行适度调整,创造出两个富有表现力的空间例外,实现了功能需求与建筑美学的平衡。 空间与功能 建筑空间组织基于大型机械的高效流通和停放需求,柱网间距由车辆转弯半径决定。项目提供两种关键空间体验:大展厅的线性空间与夹层的分层视野。底层完全开放时可延伸至外部进行维护工作,夹层设置员工办公室和休息区,既能俯瞰整个存储大厅,又能获得自然采光和上部视野。 材料与技术 建筑采用典型的锯齿形屋顶结构,通过轻微调整创造出独特的空间表达。前部将屋顶与立面融合形成悬挑体量,另一侧插入夹层空间。结构设计充分考虑工业建筑的功能需求,在保证经济性的同时实现了空间的多样性和灵活性。 项目特色与启发 Bülach公共工程仓库项目展示了如何在有限的预算条件下,通过巧妙的设计策略将普通的工业建筑提升为具有空间品质的建筑作品。该项目为类似的功能性建筑提供了设计参考,证明了经济性与建筑品质可以并行不悖。 设计团队 Karamuk Kuo建筑事务所是一家专注于建筑设计与研究的专业机构,以其对建筑类型学的深入研究和创新设计方法而闻名。事务所在本项目中将工业建筑的功能需求与空间体验完美结合,展现了其在建筑类型创新方面的专业能力。 项目概述 Bülach公共工程仓库位于瑞士Bülach市,是一个工业建筑项目,主要为公共工程部门提供车辆维护和设备存储功能。该项目于2016年通过竞赛确定设计方案,建筑规模为中型工业建筑,体现了在有限预算下对工业建筑类型的创新思考。 设计理念 Karamuk Kuo建筑事务所以”经济性与表达性并存”为核心设计理念,在满足基本功能需求的同时,通过建筑语言赋予工业建筑独特的空间品质。设计巧妙地将锯齿形屋顶进行适度调整,创造出两个富有表现力的空间例外,实现了功能需求与建筑美学的平衡。 空间与功能 建筑空间组织基于大型机械的高效流通和停放需求,柱网间距由车辆转弯半径决定。项目提供两种关键空间体验:大展厅的线性空间与夹层的分层视野。底层完全开放时可延伸至外部进行维护工作,夹层设置员工办公室和休息区,既能俯瞰整个存储大厅,又能获得自然采光和上部视野。 材料与技术 建筑采用典型的锯齿形屋顶结构,通过轻微调整创造出独特的空间表达。前部将屋顶与立面融合形成悬挑体量,另一侧插入夹层空间。结构设计充分考虑工业建筑的功能需求,在保证经济性的同时实现了空间的多样性和灵活性。 项目特色与启发 Bülach公共工程仓库项目展示了如何在有限的预算条件下,通过巧妙的设计策略将普通的工业建筑提升为具有空间品质的建筑作品。该项目为类似的功能性建筑提供了设计参考,证明了经济性与建筑品质可以并行不悖。 设计团队 Karamuk Kuo建筑事务所是一家专注于建筑设计与研究的专业机构,以其对建筑类型学的深入研究和创新设计方法而闻名。事务所在本项目中将工业建筑的功能需求与空间体验完美结合,展现了其在建筑类型创新方面的专业能力。 本文来自 © Karamuk Kuo 建筑事务所, 发布于 © 建筑学院官方网站。 未经授权,禁止转载或摘编。 编辑版本版权归 © 建筑学院官方网站 所有, 设计、图纸及照片版权归设计方 © Karamuk Kuo 建筑事务所 ↗ 所有。 查看作者在建筑学院发布的更多作品: Karamuk Kuo 建筑事务所 @ 建筑学院官方网站 Bülach Public Works DepotKaramuk Kuo工业建筑设计当代工业建筑瑞士工业建筑 Karamuk Kuo 建筑事务所事务所 & 设计师 下载原图 收藏 0 关于作者 Karamuk Kuo 建筑事务所事务所 & 设计师 关注私信 14 文章 0 评论 0 粉丝 阴影绘制 / Drawing the Shade | Estúdio Gustavo Utrabo 上一篇 2026-04-03 上午11:05 2019基准杯二等奖 | 用传统木拱桥工艺搭建水岸工艺馆 下一篇 2021-02-09 上午8:30 猜你喜欢 江南水陆工厂 / The Building on the Water Shilien Chemical Industrial Factory | 阿尔瓦罗·西扎 & 卡洛斯·卡斯塔涅拉 2026-03-04 工业建筑 新DTB运营大厦 / New DTB Operations Building | Roger Boltshauser 2026-02-06 工业建筑 兰登贝格豪斯剧院 Landenberghaus Theater | Karamuk Kuo 建筑事务所|Karamuk Kuo 2025-12-16 公共建筑设计 工厂建筑工厂大厦 / Factory Building Fabriken | Arrhov Frick 2025-12-23 工业建筑 国际体育科学研究所 International Sports Sciences Institute | Karamuk Kuo 建筑事务所|Karamuk Kuo 2025-10-26 公共建筑设计 江南水陆工厂 / The Building on the Water Shilien Chemical Industrial Factory | 阿尔瓦罗·西扎 & 卡洛斯·卡斯塔涅拉 2026-01-07 公共建筑设计 发表回复 请登录后评论...登录后才能评论 提交