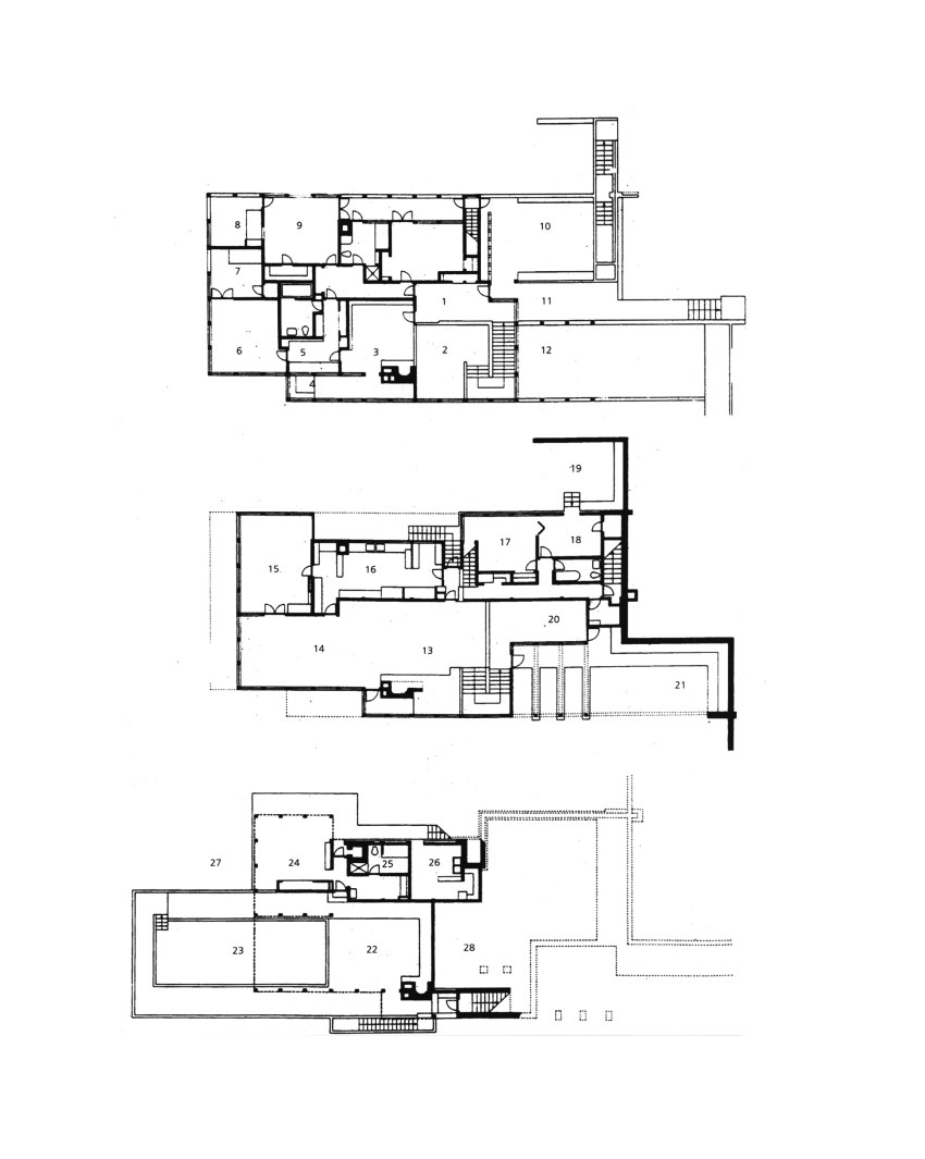
洛威尔住宅 / 理查德·诺伊特拉 建筑学院 • 2025-10-24 上午8:30 • 建筑设计 设计: 理查德·诺伊特拉 类型: 建筑设计 功能: 独立住宅 风格: 现代主义 材料: 尺度: 小型建筑 地点:美国 时间: 1970年 项目简介 洛威尔住宅(Lovell House)位于美国加利福尼亚州洛杉矶,由建筑师理查德·诺伊特拉设计,建于 1927 年至 1929 年。住宅面积 446 平方米,是现代主义建筑的经典之作,也是住宅钢结构建造的早期案例。 设计理念 该住宅的设计理念是健康、卫生和活力。诺伊特拉希望通过建筑表达他对现代建筑的理解,将建筑与居住者的生理和心理需求相结合,打造一个健康、高效且与环境相协调的居住空间。 空间与功能 洛威尔住宅采用垂直空间序列,每一层楼都具有不同的功能。较低楼层设有运动和娱乐区,上层楼则为起居和睡眠区。建筑内部的流线设计精妙,悬挂式外部楼梯强调了楼层之间的联系,又不会影响建筑的整体形态。 材料与技术 住宅采用钢框架结构,外墙覆盖混凝土和灰泥。建筑材料的选择简洁明快,强调表面、比例和节奏。大面积的玻璃窗和开放式露台模糊了室内外的界限,充分利用了南加州的宜人气候。 设计团队 理查德·诺伊特拉(Richard Neutra,1892-1970)是一位奥地利裔美国建筑师,对 20 世纪中期加州建筑风格的形成产生了重要影响。他深受欧洲现代主义的影响,师从阿道夫·洛斯和弗兰克·劳埃德·赖特,他的设计强调清晰、健康和环境响应性。他的作品融合了技术精度和心理生理因素,创造了兼顾健康和美学的住宅。他的代表作包括洛威尔住宅和考夫曼沙漠住宅。 项目简介 洛威尔住宅(Lovell House)位于美国加利福尼亚州洛杉矶,由建筑师理查德·诺伊特拉设计,建于 1927 年至 1929 年。住宅面积 446 平方米,是现代主义建筑的经典之作,也是住宅钢结构建造的早期案例。 设计理念 该住宅的设计理念是健康、卫生和活力。诺伊特拉希望通过建筑表达他对现代建筑的理解,将建筑与居住者的生理和心理需求相结合,打造一个健康、高效且与环境相协调的居住空间。 空间与功能 洛威尔住宅采用垂直空间序列,每一层楼都具有不同的功能。较低楼层设有运动和娱乐区,上层楼则为起居和睡眠区。建筑内部的流线设计精妙,悬挂式外部楼梯强调了楼层之间的联系,又不会影响建筑的整体形态。 材料与技术 住宅采用钢框架结构,外墙覆盖混凝土和灰泥。建筑材料的选择简洁明快,强调表面、比例和节奏。大面积的玻璃窗和开放式露台模糊了室内外的界限,充分利用了南加州的宜人气候。 设计团队 理查德·诺伊特拉(Richard Neutra,1892-1970)是一位奥地利裔美国建筑师,对 20 世纪中期加州建筑风格的形成产生了重要影响。他深受欧洲现代主义的影响,师从阿道夫·洛斯和弗兰克·劳埃德·赖特,他的设计强调清晰、健康和环境响应性。他的作品融合了技术精度和心理生理因素,创造了兼顾健康和美学的住宅。他的代表作包括洛威尔住宅和考夫曼沙漠住宅。 本文来自 © 建筑学院, 发布于 © 建筑学院官方网站。 未经授权,禁止转载或摘编。 编辑版本版权归 © 建筑学院官方网站 所有, 设计、图纸及照片版权归设计方 © 建筑学院 ↗ 所有。 查看作者在建筑学院发布的更多作品: 建筑学院 @ 建筑学院官方网站 Lovell HouseRichard Neutra住宅洛杉矶现代主义钢结构 建筑学院编辑 下载原图 收藏 0 关于作者 建筑学院编辑 关注私信 9.0K 文章 202 评论 12 粉丝 建筑学院(ArchCollege)是中国领先的建筑师移动垂直社区,成立于2012年,超过 70% 的年轻建筑师正在使用我们的产品。我们致力于通过建筑设计新媒体与在线教育平台,连接教育、行业与科技,为建筑师提供灵感与成长支持,陪伴并见证每一位青年建筑师的专业进阶与时代探索。 MK美术馆 MK Gallery | 6a 建筑事务所 上一篇 2025-10-23 下午1:38 Raven Row 当代艺术与展览中心 | 6a 建筑事务所 下一篇 2025-10-25 上午8:30 猜你喜欢 KAIT工作坊 Kait Workshops (Kait Workshops) KAIT Workshop | 石上纯也建筑事务所|Junya Ishigami 2025-12-03 公共建筑设计 为NEOM打造又一超现代滨海康乐之城 —— Norlana / 10 Design 2024-01-26 城市综合体 像植物一样光合作用——盛满阳光与绿意的越南公园住宅 2019-02-22 建筑设计 变废为宝,虚实结合的巴塞罗那廊屋 2017-08-31 住宅室内设计 知识之屋维拉维德 / Vila Verde House of Knowledge | 德·莫拉建筑事务所 2026-03-18 公共建筑设计 迎风观海,从家到太平洋只需步行 — 智利Ghat住宅 2018-07-04 独立住宅设计 发表回复 请登录后评论...登录后才能评论 提交