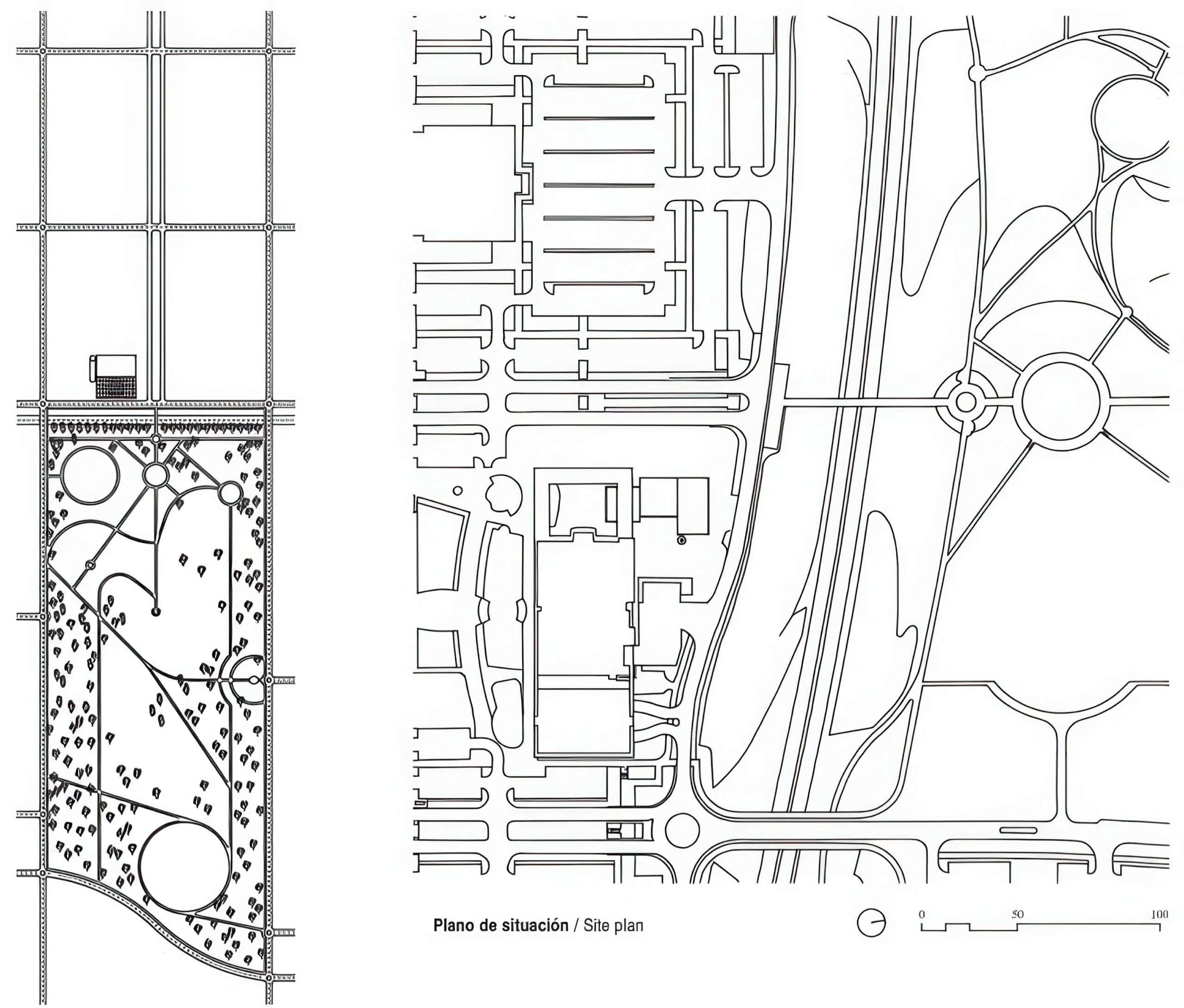
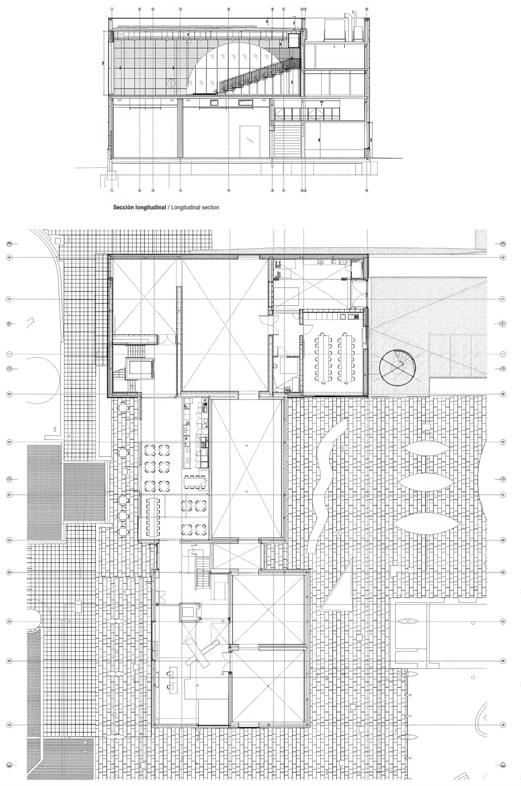
MK美术馆 MK Gallery | 6a 建筑事务所 6a 建筑事务所|6a architects • 2025-10-23 下午1:38 • 公共建筑设计, 建筑师设计, 建筑设计, 文化建筑设计 MK美术馆位于英国米尔顿凯恩斯市,是一座当代艺术展览建筑。项目由6a建筑事务所设计,采用不锈钢波纹板立面,通过圆形开窗巧妙连接城市与景观。新建翼楼包含展览空间、教育工作室和礼堂,延续了城市网格布局的现代主义传统。 设计: 6a 建筑事务所|6a architects 类型: 文化建筑设计 功能: 美术馆 风格: 当代建筑 材料: 钢材 玻璃 尺度: 中型建筑 地点:米尔顿凯恩斯 时间: 1970年 项目简介 MK美术馆位于英国米尔顿凯恩斯市,是一座文化建筑,建筑面积未公开,设计于21世纪初建成。 设计理念 设计团队以米尔顿凯恩斯的乌托邦城市规划为灵感,通过严谨的网格布局呼应城市肌理,不锈钢波纹板立面在反射与不透明间产生微妙变化,圆形开窗框景坎贝尔公园景观。 空间与功能 建筑采用轴向布局的展览空间,两端对齐的窗户呼应城市构图。新建矩形体量包含画廊空间、教育工作室及下层礼堂,形成简洁的功能组合。 材料与技术 项目采用波纹不锈钢板立面,抛光表面产生光影变化。结构延续高技派传统,体现现代建筑技术与可持续设计策略。 设计团队 6a建筑事务所是英国知名设计事务所,专注于文化建筑与城市更新项目,以细腻的材料运用和空间处理著称。 项目简介 MK美术馆位于英国米尔顿凯恩斯市,是一座文化建筑,建筑面积未公开,设计于21世纪初建成。 设计理念 设计团队以米尔顿凯恩斯的乌托邦城市规划为灵感,通过严谨的网格布局呼应城市肌理,不锈钢波纹板立面在反射与不透明间产生微妙变化,圆形开窗框景坎贝尔公园景观。 空间与功能 建筑采用轴向布局的展览空间,两端对齐的窗户呼应城市构图。新建矩形体量包含画廊空间、教育工作室及下层礼堂,形成简洁的功能组合。 材料与技术 项目采用波纹不锈钢板立面,抛光表面产生光影变化。结构延续高技派传统,体现现代建筑技术与可持续设计策略。 设计团队 6a建筑事务所是英国知名设计事务所,专注于文化建筑与城市更新项目,以细腻的材料运用和空间处理著称。 本文来自 © 6a 建筑事务所|6a architects, 发布于 © 建筑学院官方网站。 未经授权,禁止转载或摘编。 编辑版本版权归 © 建筑学院官方网站 所有, 设计、图纸及照片版权归设计方 © 6a 建筑事务所|6a architects ↗ 所有。 查看作者在建筑学院发布的更多作品: 6a 建筑事务所|6a architects @ 建筑学院官方网站 6a建筑事务所MK GalleryMK美术馆不锈钢波纹板文化建筑米尔顿凯恩斯网格布局美术馆 6a 建筑事务所|6a architects事务所 & 设计师 下载原图 收藏 0 关于作者 6a 建筑事务所|6a architects事务所 & 设计师 关注私信 35 文章 1 评论 0 粉丝 6a architects(6a建筑事务所)是英国知名的建筑设计团队,以其对文化、艺术及教育类建筑的深刻理解而闻名。他们的作品擅长运用精巧的材料与细致的构造,在历史与现代的对话中创造宁静而富有感染力的空间。其代表作包括South London Gallery、MK Gallery改造及剑桥大学校园建筑等。 布隆伯格学生活动中心 / BIG 上一篇 2025-10-23 上午10:24 洛威尔住宅 / 理查德·诺伊特拉 下一篇 2025-10-24 上午8:30 猜你喜欢 窑塔,砖工博物馆所在地 / Kiln Tower for the Brickworks Museum, Cham | Roger Boltshauser 2026-02-06 公共建筑设计 赫尔佐格&德梅隆新作|费城“下沉花园”式博物馆 2025-10-05 建筑设计 巴林王国国家馆 / National Pavilion of the Kingdom of Bahrain | 安妮·霍尔特罗普|Anne Holtrop 2025-12-21 公共建筑设计 北京有哪些好看的美术馆? 2018-11-06 好图分享 MK美术馆 / MK Gallery | 6a 建筑事务所 2026-04-18 公共建筑设计 上海新国际博览中心 A.F.A Shanghai / A.F.A. SHANGHAI | SANAA 2026-02-23 公共建筑设计 发表回复 请登录后评论...登录后才能评论 提交