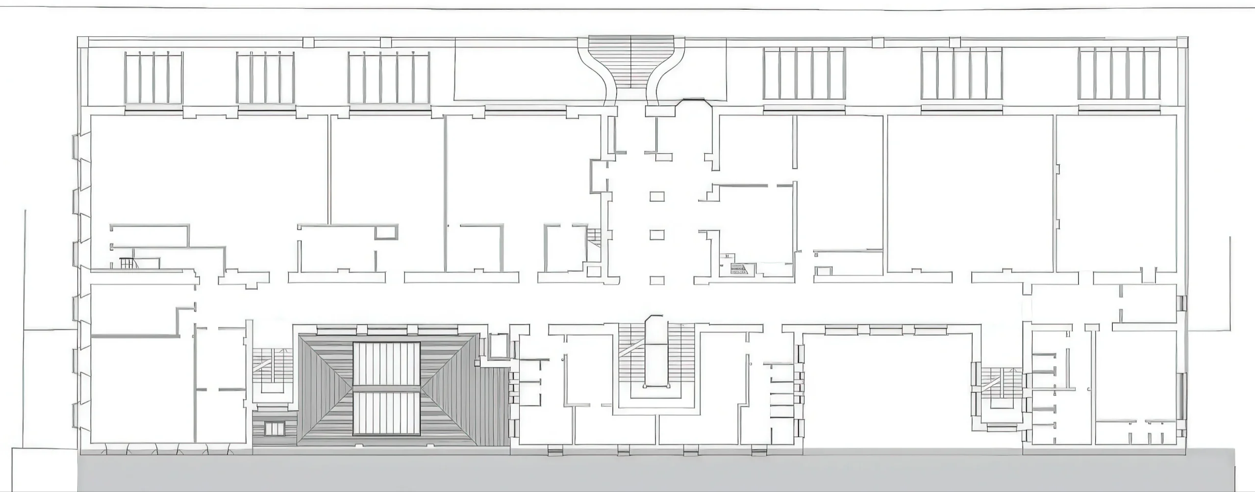
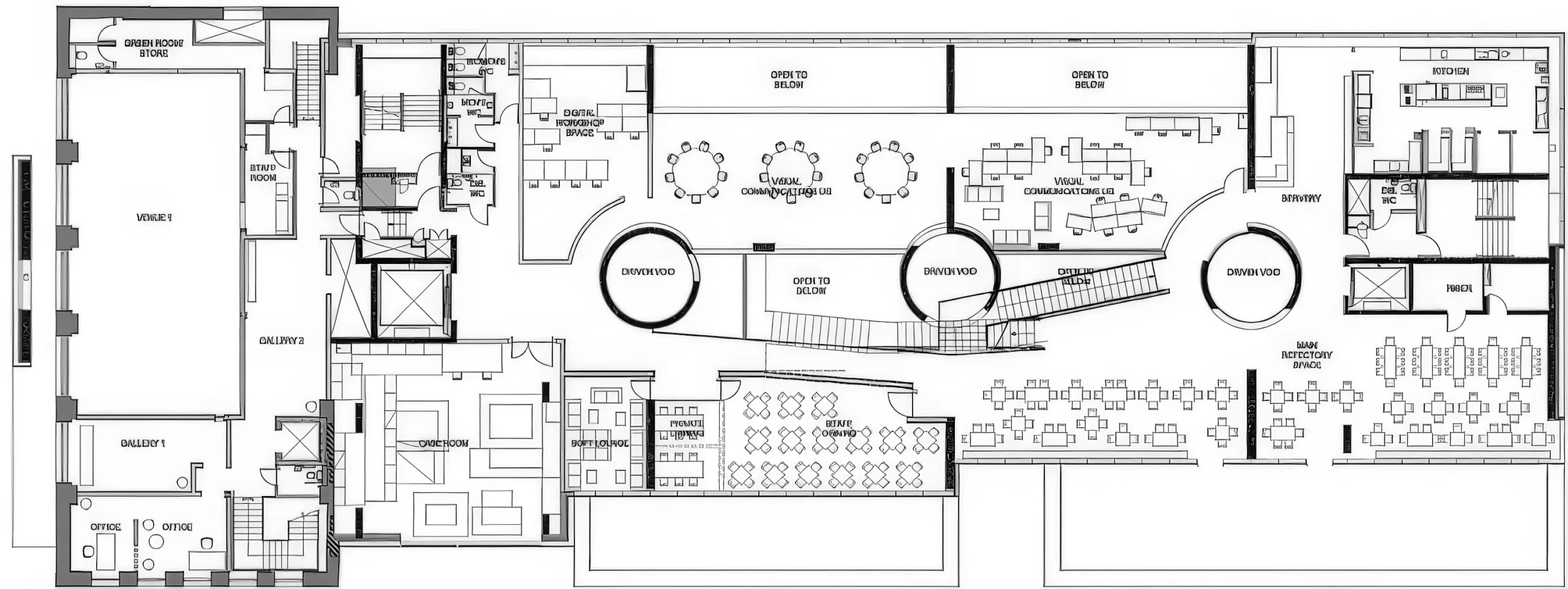
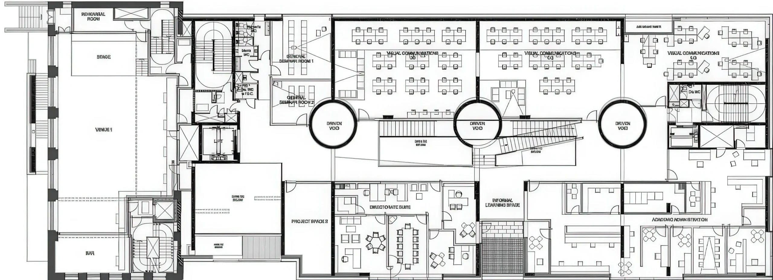
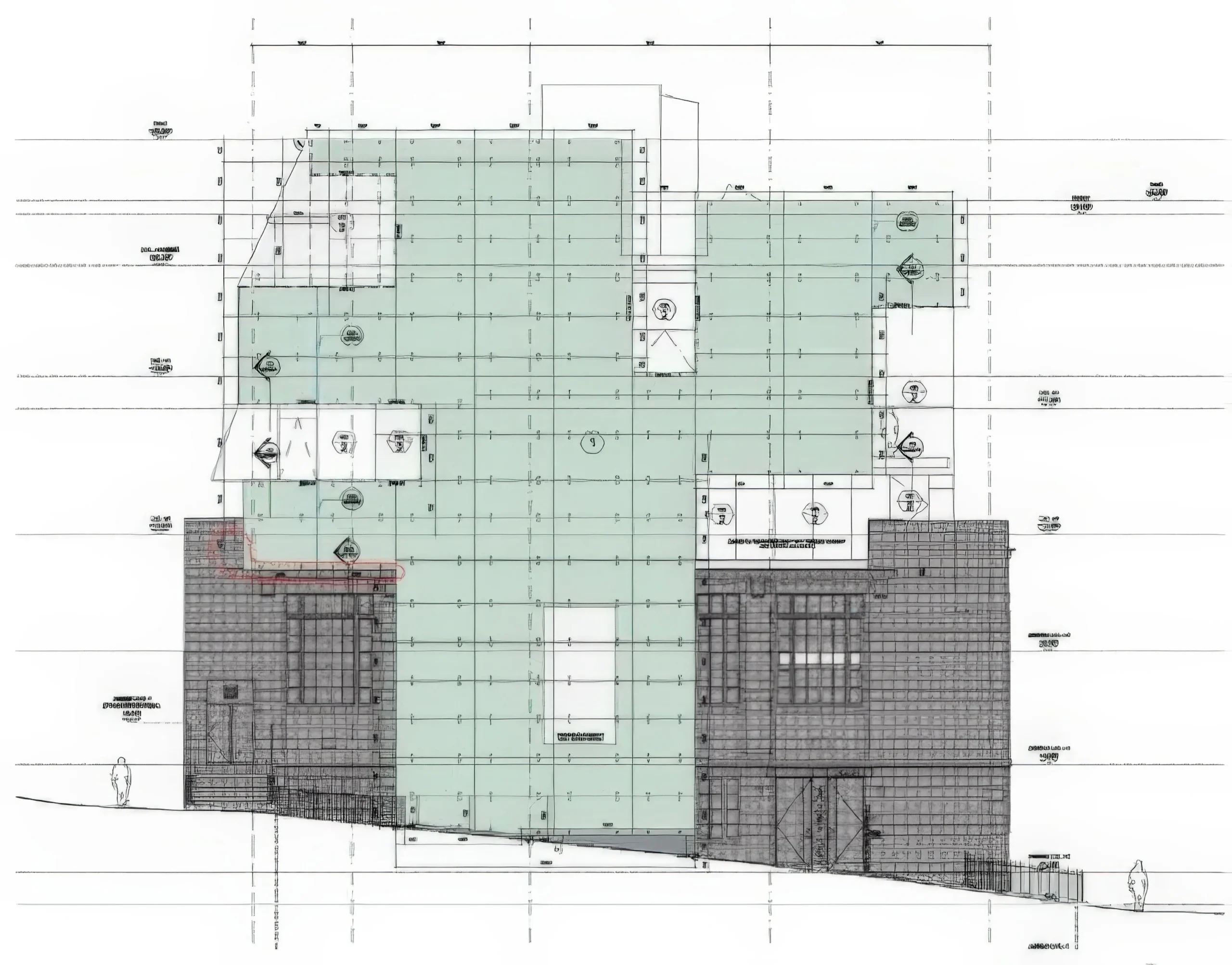
格拉斯哥美术学院 Reid 大楼 | Steven Holl 霍尔 | Steven Holl Architects • 2025-10-27 下午12:50 • 公共建筑设计, 建筑师设计, 建筑设计, 文化建筑设计 格拉斯哥美术学院 Reid 大楼是 Steven Holl 建筑事务所在苏格兰格拉斯哥设计的教育建筑,作为对查尔斯·雷尼·麦金托什1909年原艺术学院的补充。该项目采用半透明薄型材质,与麦金托什建筑的砖石结构形成对比,通过光线体块表达艺术学校活力,打造21世纪艺术教育新模式。 设计: 霍尔 | Steven Holl Architects 类型: 文化建筑设计 功能: 学校 风格: 当代建筑 材料: 混凝土 钢材 玻璃 尺度: 中型建筑 地点:苏格兰 时间: 2009年 项目简介 格拉斯哥美术学院 Reid 大楼位于苏格兰格拉斯哥,是一座教育建筑,设计于2009年,2014年建成,建筑面积未明确但属于中型教育设施。 设计理念 Steven Holl 以互补对比策略回应麦金托什历史建筑,创造共生关系。设计灵感来自麦金托什对光线处理的创新,采用光线导向空隙整合结构、空间与自然采光,体现21世纪艺术学校的现代性与历史延续性。 空间与功能 建筑以工作室为基本单元,北立面设置大型倾斜玻璃窗最大化高质量北向光线,南立面布置餐厅和办公室。连接回路贯穿建筑,连接门厅、展览空间、演讲厅、工作室和绿色露台,促进跨部门创意交流。 材料与技术 采用半透明薄型材料与砖石形成材质对比,光线导向空隙提供自然采光和垂直通风,减少空调需求。南立面景观廊道整合自然植被与石材,实现可持续水循环。 设计团队 Steven Holl Architects 是美国知名建筑事务所,以概念驱动设计和光线探索著称,作品涵盖文化、教育建筑,强调建筑与环境的整合。 项目简介 格拉斯哥美术学院 Reid 大楼位于苏格兰格拉斯哥,是一座教育建筑,设计于2009年,2014年建成,建筑面积未明确但属于中型教育设施。 设计理念 Steven Holl 以互补对比策略回应麦金托什历史建筑,创造共生关系。设计灵感来自麦金托什对光线处理的创新,采用光线导向空隙整合结构、空间与自然采光,体现21世纪艺术学校的现代性与历史延续性。 空间与功能 建筑以工作室为基本单元,北立面设置大型倾斜玻璃窗最大化高质量北向光线,南立面布置餐厅和办公室。连接回路贯穿建筑,连接门厅、展览空间、演讲厅、工作室和绿色露台,促进跨部门创意交流。 材料与技术 采用半透明薄型材料与砖石形成材质对比,光线导向空隙提供自然采光和垂直通风,减少空调需求。南立面景观廊道整合自然植被与石材,实现可持续水循环。 设计团队 Steven Holl Architects 是美国知名建筑事务所,以概念驱动设计和光线探索著称,作品涵盖文化、教育建筑,强调建筑与环境的整合。 本文来自 © 霍尔 | Steven Holl Architects, 发布于 © 建筑学院官方网站。 未经授权,禁止转载或摘编。 编辑版本版权归 © 建筑学院官方网站 所有, 设计、图纸及照片版权归设计方 © 霍尔 | Steven Holl Architects ↗ 所有。 查看作者在建筑学院发布的更多作品: 霍尔 | Steven Holl Architects @ 建筑学院官方网站 Steven Holl半透明材料教育建筑格拉斯哥格拉斯哥美术学院 霍尔 | Steven Holl Architects事务所 & 设计师 下载原图 收藏 0 关于作者 霍尔 | Steven Holl Architects事务所 & 设计师 关注私信 22 文章 0 评论 0 粉丝 史蒂文·霍尔建筑事务所(Steven Holl Architects)是一家国际知名的建筑设计公司,以光线与空间的创新运用著称。代表作品包括堪萨斯城艺术博物馆扩建与北京Linked Hybrid等。 迈阿密设计区 Miami Design District | MARKLEE 建筑事务所|MARKLEE 上一篇 2025-10-27 下午12:50 多夫幼儿园 Dorf Kindergarten | 贝尔纳多·巴德尔|Bernardo Bader 下一篇 2025-10-27 下午12:50 猜你喜欢 轻松可爱,宛如甜甜脆皮奶油冰淇淋:印度早教学校Kai 2020-06-03 建筑设计 市集化校园,瑞吉欧学校 / Andrés Jaque+Office for Political Innovation 2022-12-06 建筑设计 墨尔本大学生命科学系楼 2019-05-20 建筑设计 以玩耍为主题的幼儿园——KO幼儿园 / 日比野设计+Kids Design Labo 2019-09-10 建筑设计 北京市育英学校科学城学校 / 北京市建筑设计研究院 2023-10-12 建筑设计 中山大学珠海校区体育馆/BIAD华南设计中心 2021-07-05 体育建筑 发表回复 请登录后评论...登录后才能评论 提交