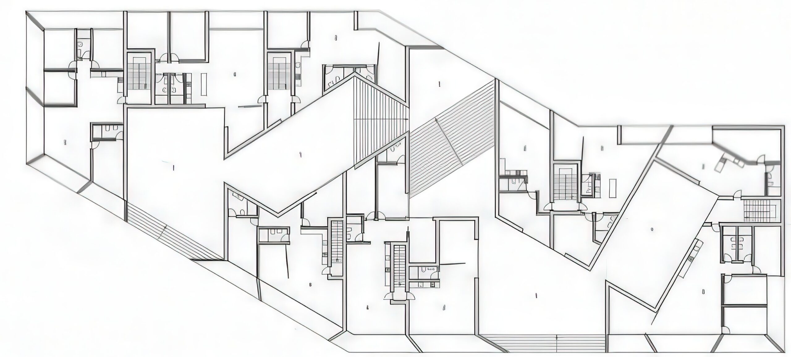
法院大楼 Court House | MARKLEE 建筑事务所 MARKLEE 建筑事务所|MARKLEE • 2025-10-28 上午8:50 • 建筑师设计, 建筑设计, 文化建筑设计 法院大楼 Court House 位于瑞士日内瓦,是一座现代主义住宅建筑。该项目由 MARKLEE 建筑事务所设计,2010年竞赛一等奖作品。设计通过从最大可建体量中雕刻出相互连接的庭院,创造独特的空间体验,挑战传统城市发展模式。 设计: MARKLEE 建筑事务所|MARKLEE 类型: 文化建筑设计 功能: 法院 风格: 现代主义 材料: 混凝土 钢材 玻璃 尺度: 中型建筑 地点:瑞士 时间: 2010年 项目简介 法院大楼 Court House 位于瑞士日内瓦,是一座现代住宅建筑,建筑面积未公开,设计于2010年竞赛中获一等奖。 设计理念 设计团队采用”减法”策略,从最大可建体量中雕刻出系列庭院,创造内外空间的丰富连接,颠覆传统城市开发的加法模式。 空间与功能 建筑包含16个住宅单元,每个单元因庭院雕刻而拥有独特布局。地下停车场连接铺砌庭院,形成类似中世纪街道的空间序列,包含楼梯、平台和广场。 材料与技术 建筑采用现代材料与技术,内部街道立面多为实体墙面,建筑外围则采用透明设计,设有私人阳台,享有湖景和公园景观。 设计团队 MARKLEE 建筑事务所专注于创新建筑设计,在住宅和公共建筑领域具有丰富经验,擅长通过独特空间策略重新定义建筑与环境的关系。 项目简介 法院大楼 Court House 位于瑞士日内瓦,是一座现代住宅建筑,建筑面积未公开,设计于2010年竞赛中获一等奖。 设计理念 设计团队采用”减法”策略,从最大可建体量中雕刻出系列庭院,创造内外空间的丰富连接,颠覆传统城市开发的加法模式。 空间与功能 建筑包含16个住宅单元,每个单元因庭院雕刻而拥有独特布局。地下停车场连接铺砌庭院,形成类似中世纪街道的空间序列,包含楼梯、平台和广场。 材料与技术 建筑采用现代材料与技术,内部街道立面多为实体墙面,建筑外围则采用透明设计,设有私人阳台,享有湖景和公园景观。 设计团队 MARKLEE 建筑事务所专注于创新建筑设计,在住宅和公共建筑领域具有丰富经验,擅长通过独特空间策略重新定义建筑与环境的关系。 本文来自 © MARKLEE 建筑事务所|MARKLEE, 发布于 © 建筑学院官方网站。 未经授权,禁止转载或摘编。 编辑版本版权归 © 建筑学院官方网站 所有, 设计、图纸及照片版权归设计方 © MARKLEE 建筑事务所|MARKLEE ↗ 所有。 查看作者在建筑学院发布的更多作品: MARKLEE 建筑事务所|MARKLEE @ 建筑学院官方网站 Court HouseMARKLEE建筑事务所住宅建筑日内瓦法院大楼 MARKLEE 建筑事务所|MARKLEE事务所 & 设计师 下载原图 收藏 0 关于作者 MARKLEE 建筑事务所|MARKLEE事务所 & 设计师 关注私信 17 文章 0 评论 0 粉丝 MARKLEE建筑事务所是一家致力于提供前瞻性建筑与空间解决方案的国际化团队。我们秉持“设计重塑体验”的理念,擅长将客户独特需求与场地文脉相结合,通过严谨的逻辑与创意构思,打造兼具现代美学、实用价值与可持续性的建筑作品。从概念到落地,MARKLEE为您提供专业化、个性化的全程设计服务,共创卓越空间。 南伦敦美术馆 South London Gallery | 6a 建筑事务所|6a architects 上一篇 2025-10-28 上午8:50 六个视角的楼阁 Pavilion of Six Views | 建筑事务所 MARKLEE 下一篇 2025-10-28 上午8:50 猜你喜欢 六个视角的楼阁 Pavilion of Six Views | 建筑事务所 MARKLEE 2025-10-28 公共建筑设计 克劳斯住房区块 / Kraus Housing Blocks | Arrhov Frick 建筑事务所 2026-01-22 住宅建筑设计 MX581公寓/HGR Arquitectos 2019-03-11 住宅建筑设计 Casa Demont / Casa Demont | MARKLEE 建筑事务所 2025-11-14 公共建筑设计 动感科幻,被几何解构而成的集合公寓 / METAFORM建筑师事务所 2019-01-22 住宅建筑设计 日式禅意,偶落于轻井泽密林中的四叶别墅 2019-01-11 住宅建筑设计 发表回复 请登录后评论...登录后才能评论 提交