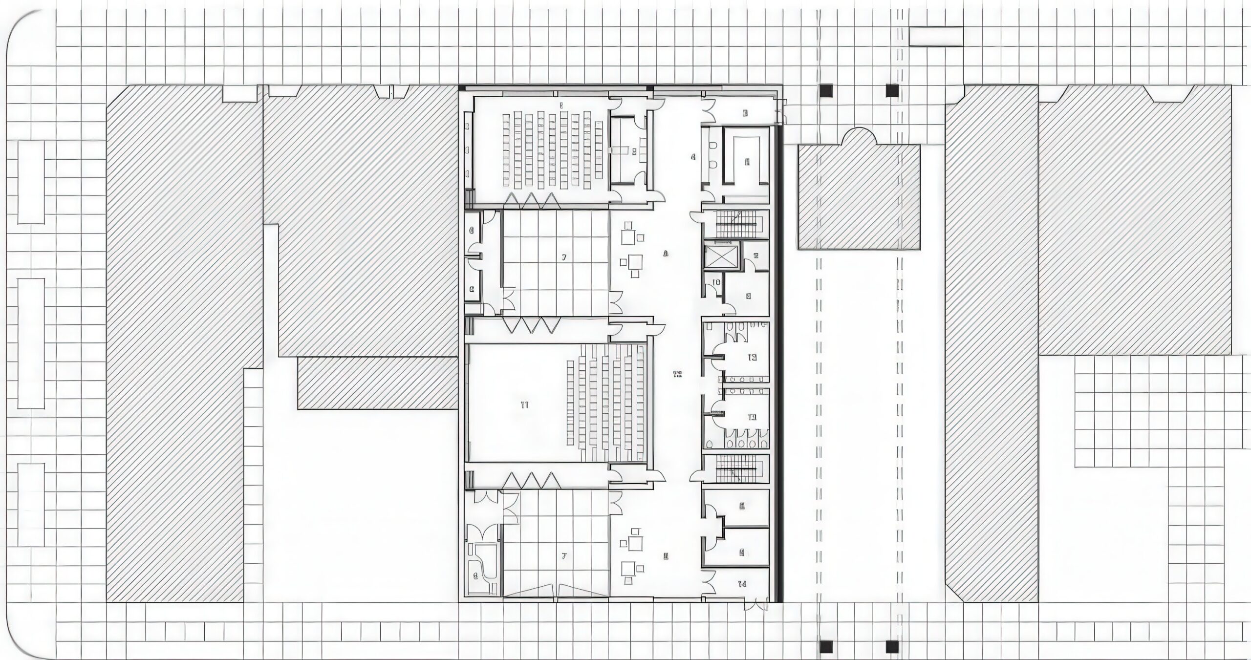
绿线艺术中心 / Green Line Arts Center | MARKLEE 建筑事务所 MARKLEE 建筑事务所|MARKLEE • 2025-11-13 下午12:50 • 公共建筑设计, 建筑师设计, 建筑设计, 文化建筑设计 绿线艺术中心由 MARKLEE 建筑事务所设计,位于芝加哥华盛顿公园社区,是一座集表演艺术、舞蹈、戏剧、电影和口语艺术于一体的文化建筑。该项目通过保留历史结构、整合回收材料与新建系统,创造出连接城市肌理的内街空间,展现当代文化建筑的开放性与适应性。 设计: MARKLEE 建筑事务所|MARKLEE 类型: 文化建筑设计 功能: 独立住宅 风格: 当代建筑 材料: 混凝土 玻璃 砖材 再生材料 尺度: 中型建筑 地点:芝加哥 时间: 2015年 项目概述 绿线艺术中心位于美国芝加哥华盛顿公园社区,是一座文化建筑,设计于2015年并荣获竞赛一等奖。该项目通过改造历史建筑,整合表演艺术空间,成为连接社区艺术区块的重要节点。 设计理念 MARKLEE 建筑事务所的设计理念强调建筑与城市肌理的融合,通过尺度、材质和透明度的处理,回应场地特征。设计保留历史立面,同时引入现代元素,创造出既尊重历史又面向未来的文化空间。 空间与功能 绿线艺术中心内部以南北向的内街为核心组织空间,连接两个主要入口,打破传统前后概念。功能布局包括电影院、黑匣子剧场、多功能空间、休息区及配套服务设施,支持从排练到演出的全过程艺术创作。 材料与技术 项目采用回收砖材、现有结构与新建系统相结合的材料策略。东立面保留并整合到分层空腔墙系统中,有效隔离邻近铁路的噪音,体现可持续设计与技术创新的平衡。 项目特色与启发 绿线艺术中心以其独特的内街组织和历史与现代的融合,为城市更新类文化建筑提供了范例。MARKLEE 建筑事务所在绿线艺术中心的设计中展示了如何通过建筑促进社区艺术生态的连续性。 设计团队 MARKLEE 建筑事务所是一家专注于文化建筑与城市更新的设计机构,以创新材料运用和空间策略著称。事务所在绿线艺术中心项目中展现了其对历史语境与当代需求的综合回应能力。 项目概述 绿线艺术中心位于美国芝加哥华盛顿公园社区,是一座文化建筑,设计于2015年并荣获竞赛一等奖。该项目通过改造历史建筑,整合表演艺术空间,成为连接社区艺术区块的重要节点。 设计理念 MARKLEE 建筑事务所的设计理念强调建筑与城市肌理的融合,通过尺度、材质和透明度的处理,回应场地特征。设计保留历史立面,同时引入现代元素,创造出既尊重历史又面向未来的文化空间。 空间与功能 绿线艺术中心内部以南北向的内街为核心组织空间,连接两个主要入口,打破传统前后概念。功能布局包括电影院、黑匣子剧场、多功能空间、休息区及配套服务设施,支持从排练到演出的全过程艺术创作。 材料与技术 项目采用回收砖材、现有结构与新建系统相结合的材料策略。东立面保留并整合到分层空腔墙系统中,有效隔离邻近铁路的噪音,体现可持续设计与技术创新的平衡。 项目特色与启发 绿线艺术中心以其独特的内街组织和历史与现代的融合,为城市更新类文化建筑提供了范例。MARKLEE 建筑事务所在绿线艺术中心的设计中展示了如何通过建筑促进社区艺术生态的连续性。 设计团队 MARKLEE 建筑事务所是一家专注于文化建筑与城市更新的设计机构,以创新材料运用和空间策略著称。事务所在绿线艺术中心项目中展现了其对历史语境与当代需求的综合回应能力。 本文来自 © MARKLEE 建筑事务所|MARKLEE, 发布于 © 建筑学院官方网站。 未经授权,禁止转载或摘编。 编辑版本版权归 © 建筑学院官方网站 所有, 设计、图纸及照片版权归设计方 © MARKLEE 建筑事务所|MARKLEE ↗ 所有。 查看作者在建筑学院发布的更多作品: MARKLEE 建筑事务所|MARKLEE @ 建筑学院官方网站 Green Line Arts CenterMARKLEE建筑事务所文化建筑芝加哥文化建筑 MARKLEE 建筑事务所|MARKLEE事务所 & 设计师 下载原图 收藏 0 关于作者 MARKLEE 建筑事务所|MARKLEE事务所 & 设计师 关注私信 17 文章 0 评论 0 粉丝 MARKLEE建筑事务所是一家致力于提供前瞻性建筑与空间解决方案的国际化团队。我们秉持“设计重塑体验”的理念,擅长将客户独特需求与场地文脉相结合,通过严谨的逻辑与创意构思,打造兼具现代美学、实用价值与可持续性的建筑作品。从概念到落地,MARKLEE为您提供专业化、个性化的全程设计服务,共创卓越空间。 悉尼中央公园 One Central Park, Sydney | 让·努维尔建筑事务所|Jean Nouvel 上一篇 2025-11-13 上午8:50 中国漫画与动画博物馆 / China Comic and Animation Museum | MVRDV 建筑事务所 下一篇 2025-11-14 上午8:50 猜你喜欢 沃尔特会议和文化中心 Würth Conference and Culture Centre | 大卫·奇珀菲尔德建筑事务所|David 2025-11-23 公共建筑设计 克罗洛克图书馆 / De Krook Library | RCR 建筑事务所|RCR Arquitectes 2025-11-15 公共建筑设计 诺贝尔中心 Nobel Center | 大卫·奇珀菲尔德建筑事务所|David Chipperfield 2025-11-13 公共建筑设计 Gramaxo基金会总部 / Gramaxo Foundation Headquarters | 阿尔瓦罗·西扎|Álvaro Siza 2026-03-02 公共建筑设计 重构斯德哥尔摩市图书馆项目 Restructuring Stockholm City Library | 卡鲁索·圣约翰建筑事务所|Caruso St John 2025-12-07 公共建筑设计 智利之家 Chile House | 建筑事务所 MARKLEE 2025-10-28 公共建筑设计 发表回复 请登录后评论...登录后才能评论 提交