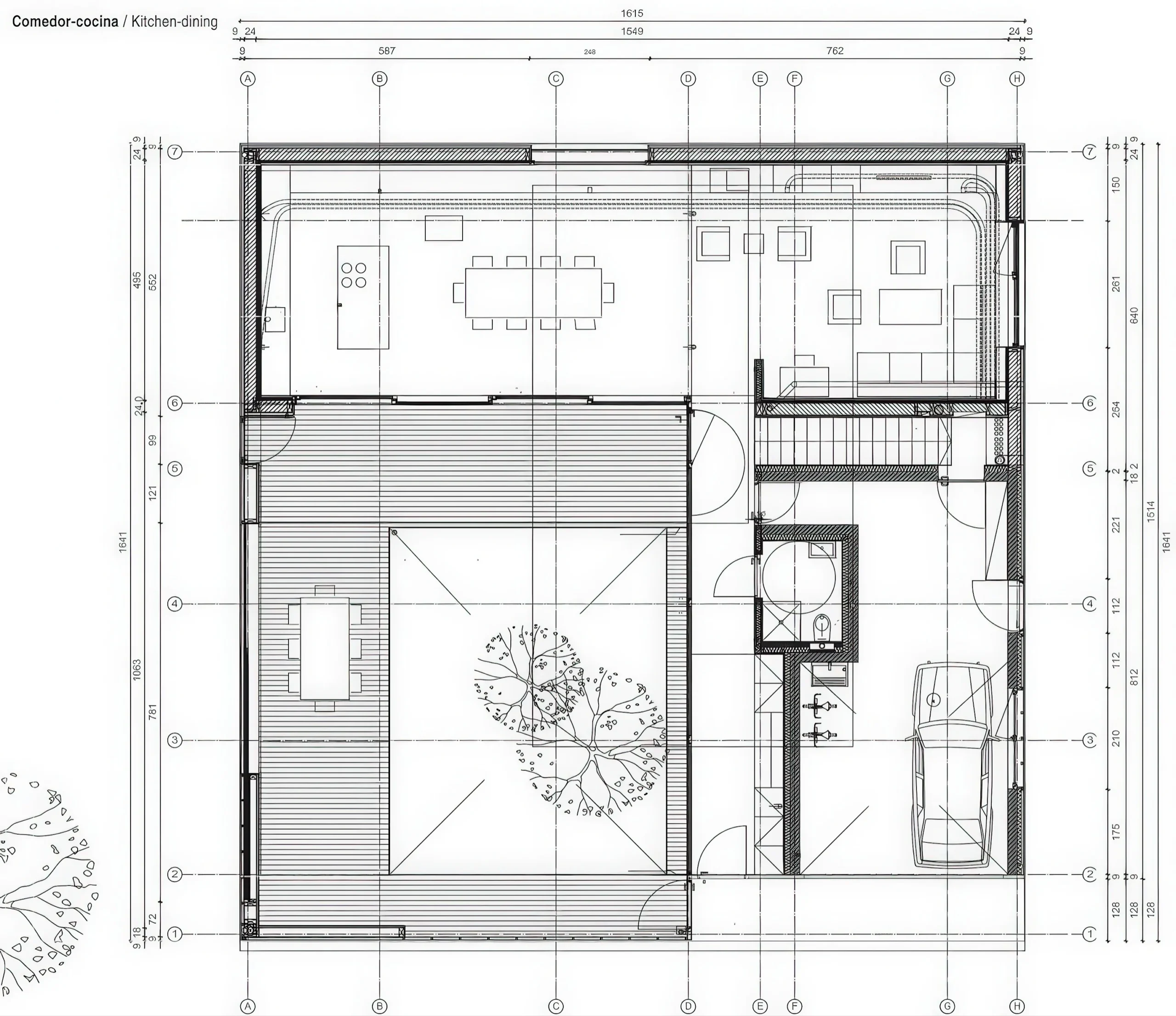
田舍屋,苏尔茨 House in the Field, Sulz | 贝尔纳多·巴德尔|Bernardo Bader 贝尔纳多·巴德尔|Bernardo Bader • 2025-10-28 下午12:50 • 公共建筑设计, 建筑师设计, 建筑设计, 文化建筑设计 田舍屋是贝尔纳多·巴德尔建筑事务所在奥地利福拉尔贝格州苏尔茨设计的独立住宅项目。这座庭院住宅通过封闭式庭院设计,在有限地块上创造了高品质生活空间。项目采用双坡屋顶基本形式,通过可移动百叶窗实现庭院与瑞士阿尔卑斯山景观的灵活互动,展现了现代主义与地域主义的完美融合。 设计: 贝尔纳多·巴德尔|Bernardo Bader 类型: 文化建筑设计 功能: 独立住宅 风格: 地域主义 材料: 木材 玻璃 金属板 尺度: 小型建筑 地点:奥地利 时间: 2009年 项目简介 田舍屋位于奥地利福拉尔贝格州苏尔茨市,是一座独立住宅建筑。项目建筑面积约200平方米,设计于2009年,建成于2010年。 设计理念 设计团队以创造高品质生活方式为核心目标,通过封闭式庭院屏蔽外部视线,在有限地块上实现私密居住体验。项目巧妙借鉴当地农舍建筑语汇,为莱茵河谷地区独栋住宅提供了创新解决方案。 空间与功能 建筑采用L形布局,底层设置起居区、厨房、餐厅及服务空间,上层布置卧室、浴室和工作区。中央庭院通过大型滑动窗与室内空间无缝连接,半覆盖的木制露台环绕草坪区域,中央种植树木,形成内外交融的空间序列。 材料与技术 项目采用木材作为主要建筑材料,包括木地板、木板饰面和白色漆面固定家具。建筑结构采用木框架系统,填充纤维素保温材料,屋顶使用铝制立缝屋面系统,体现了可持续建造理念。 设计团队 贝尔纳多·巴德尔建筑事务所是奥地利知名建筑设计工作室,专注于住宅建筑领域,以对地域文脉的深刻理解和现代建筑语言的创新运用而著称。 项目简介 田舍屋位于奥地利福拉尔贝格州苏尔茨市,是一座独立住宅建筑。项目建筑面积约200平方米,设计于2009年,建成于2010年。 设计理念 设计团队以创造高品质生活方式为核心目标,通过封闭式庭院屏蔽外部视线,在有限地块上实现私密居住体验。项目巧妙借鉴当地农舍建筑语汇,为莱茵河谷地区独栋住宅提供了创新解决方案。 空间与功能 建筑采用L形布局,底层设置起居区、厨房、餐厅及服务空间,上层布置卧室、浴室和工作区。中央庭院通过大型滑动窗与室内空间无缝连接,半覆盖的木制露台环绕草坪区域,中央种植树木,形成内外交融的空间序列。 材料与技术 项目采用木材作为主要建筑材料,包括木地板、木板饰面和白色漆面固定家具。建筑结构采用木框架系统,填充纤维素保温材料,屋顶使用铝制立缝屋面系统,体现了可持续建造理念。 设计团队 贝尔纳多·巴德尔建筑事务所是奥地利知名建筑设计工作室,专注于住宅建筑领域,以对地域文脉的深刻理解和现代建筑语言的创新运用而著称。 本文来自 © 贝尔纳多·巴德尔|Bernardo Bader, 发布于 © 建筑学院官方网站。 未经授权,禁止转载或摘编。 编辑版本版权归 © 建筑学院官方网站 所有, 设计、图纸及照片版权归设计方 © 贝尔纳多·巴德尔|Bernardo Bader ↗ 所有。 查看作者在建筑学院发布的更多作品: 贝尔纳多·巴德尔|Bernardo Bader @ 建筑学院官方网站 木材建筑独立住宅田舍屋苏尔茨贝尔纳多·巴德尔 贝尔纳多·巴德尔|Bernardo Bader事务所 & 设计师 下载原图 收藏 0 关于作者 贝尔纳多·巴德尔|Bernardo Bader事务所 & 设计师 关注私信 21 文章 0 评论 0 粉丝 贝尔纳多·巴德尔(Bernardo Bader)是一位出生于布雷根策瓦尔的奥地利建筑师-2。他于2003年创立自己的事务所,其作品深深植根于地域性,以精巧的细节和对自然与文化关系的独特诠释而闻名。巴德尔曾多次获奖,包括2007年青年建筑Weissenhof奖、2012年及2017年的Piranesi奖,并在2013年荣获著名的阿卡汗建筑奖。 丹麦摇滚博物馆 Danish Rock Museum | MVRDV 建筑事务所 上一篇 2025-10-28 下午12:50 帕拉尔德·奥洛韦迪大学讲座厅 Lecture Halls for Pablo de Olavide University | MGM 建筑师事务所 下一篇 2025-10-28 下午12:50 猜你喜欢 越南百叶窗住宅 / Limdim House Studio 2020-10-16 建筑设计 日本芦屋住宅 / Kazunori Fujimoto Architect & Associates 2019-10-23 建筑设计 一半明媚一半忧伤,将阳光绿植纳入诗意空间的日本住宅! 2018-09-02 建筑设计 谦卑内敛地表达存在,船长之家改造 2017-08-10 独立住宅设计 错层悬挑结构,Shimouma住宅 / I.R.A. 2023-06-05 建筑设计 拱窗围廊下营造室内庭院:越南 AD8 别墅 / Nemo Studio 2019-12-24 建筑设计 发表回复 请登录后评论...登录后才能评论 提交