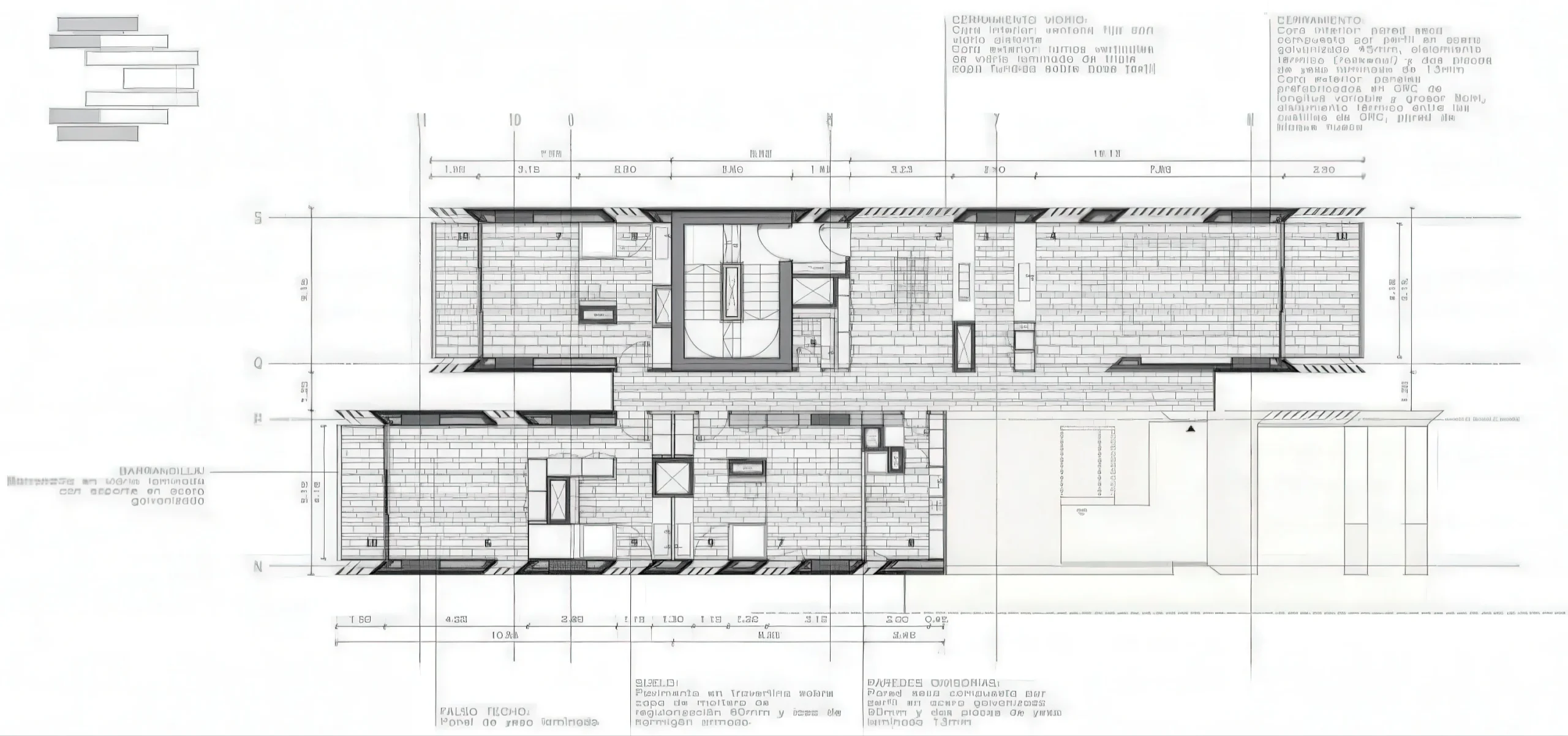
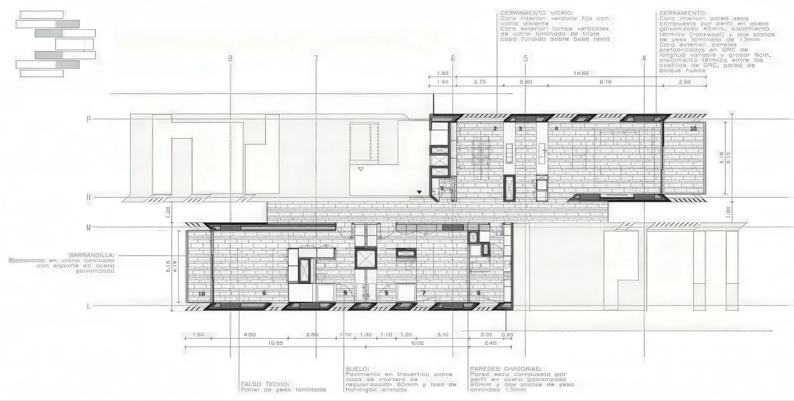
迪拜穆拉巴公寓楼 Muraba Residences in Dubai | RCR 建筑事务所|RCR Arquitectes RCR 建筑事务所|RCR Arquitectes • 2025-10-30 下午12:10 • 建筑设计 迪拜穆拉巴公寓楼是由RCR建筑事务所设计的豪华住宅综合体,位于迪拜朱美拉棕榈岛。项目采用Z形平面布局的狭长单元,白色外墙与纹理玻璃材质营造出简洁而富有活力的建筑形象。所有单元均面向大海,通过缝隙和空气间隙连接不同元素,巧妙平衡个体与集体的关系。 设计: RCR 建筑事务所|RCR Arquitectes 类型: 建筑设计 功能: 公寓住宅 风格: 现代主义 材料: 混凝土 玻璃 金属板 尺度: 中型建筑 地点:迪拜 时间: 2010年 项目简介 迪拜穆拉巴公寓楼位于阿联酋迪拜朱美拉棕榈岛,是一座高品质住宅综合体,建筑面积未公开,设计于2010年代。 设计理念 RCR建筑事务所通过Z形平面布局的狭长单元,创造出简洁而富有活力的建筑形态。设计强调个体单元与整体建筑的和谐统一,每个单元如船首般面向大海,通过精心设计的缝隙和空气间隙实现自然通风与视觉连接。 空间与功能 项目包含两卧室公寓、三卧室公寓和顶层复式等多种户型,配备健身房、水疗中心、接待区等公共设施。空间组织注重私密性与共享性的平衡,所有居住单元均享有海景视野。 材料与技术 建筑采用白色GRC预制板、纹理玻璃幕墙和铝复合板等材料,结合钢筋混凝土结构和干式墙体系统。垂直玻璃百叶提供遮阳功能,强化了建筑的可持续性能。 设计团队 RCR建筑事务所是西班牙著名建筑事务所,以极简主义设计和材料创新著称,曾获普利兹克建筑奖,擅长将地域特色与现代建筑语言相结合。 项目简介 迪拜穆拉巴公寓楼位于阿联酋迪拜朱美拉棕榈岛,是一座高品质住宅综合体,建筑面积未公开,设计于2010年代。 设计理念 RCR建筑事务所通过Z形平面布局的狭长单元,创造出简洁而富有活力的建筑形态。设计强调个体单元与整体建筑的和谐统一,每个单元如船首般面向大海,通过精心设计的缝隙和空气间隙实现自然通风与视觉连接。 空间与功能 项目包含两卧室公寓、三卧室公寓和顶层复式等多种户型,配备健身房、水疗中心、接待区等公共设施。空间组织注重私密性与共享性的平衡,所有居住单元均享有海景视野。 材料与技术 建筑采用白色GRC预制板、纹理玻璃幕墙和铝复合板等材料,结合钢筋混凝土结构和干式墙体系统。垂直玻璃百叶提供遮阳功能,强化了建筑的可持续性能。 设计团队 RCR建筑事务所是西班牙著名建筑事务所,以极简主义设计和材料创新著称,曾获普利兹克建筑奖,擅长将地域特色与现代建筑语言相结合。 本文来自 © RCR 建筑事务所|RCR Arquitectes, 发布于 © 建筑学院官方网站。 未经授权,禁止转载或摘编。 编辑版本版权归 © 建筑学院官方网站 所有, 设计、图纸及照片版权归设计方 © RCR 建筑事务所|RCR Arquitectes ↗ 所有。 查看作者在建筑学院发布的更多作品: RCR 建筑事务所|RCR Arquitectes @ 建筑学院官方网站 RCR 建筑事务所|RCR Arquitectes事务所 & 设计师 下载原图 收藏 0 关于作者 RCR 建筑事务所|RCR Arquitectes事务所 & 设计师 关注私信 14 文章 0 评论 0 粉丝 RCR建筑事务所由拉斐尔·阿兰达、卡莫·皮格姆和拉蒙·比拉尔塔于1988年在西班牙奥洛特创立。他们于2017年共同荣获普利兹克建筑奖,其作品以根植本土、心向世界而闻名。事务所擅长运用耐候钢、玻璃等现代材料,将建筑与自然景观深度融合,创造出充满诗意与永恒感的空间。其代表作包括法国苏拉吉博物馆、里拉剧院户外空间等。 城市混合,埃姆登 Urban Hybrid, Emmen | MVRDV 建筑事务所|MVRDV 上一篇 2025-10-30 下午12:10 室内游泳池在塔拉德尔 Indoor Pool in Taradell | RCR 建筑事务所|RCR Arquitectes 下一篇 2025-10-30 下午12:10 猜你喜欢 经验 | 作品集排版套路大全 2017-07-13 建筑设计 观照丨装配式建筑的诗意建造:浙江大学建筑设计研究院紫金院区 / 浙江大学建筑设计研究院 2021-12-03 建筑设计 Foster + Partners:地标建筑事务所描绘百年老港复兴蓝图 2018-12-22 建筑设计 埋于地下,却又向往光明 — 为死亡而生的大屠杀纪念馆 2018-07-30 文化建筑设计 住在艺术馆?宛若折纸的岩石住宅 2018-10-24 住宅建筑设计 山坡下的秘密基地:TTC Elite Ben Tre 幼儿园 / KIENTRUC O 2022-01-19 建筑设计 发表回复 请登录后评论...登录后才能评论 提交