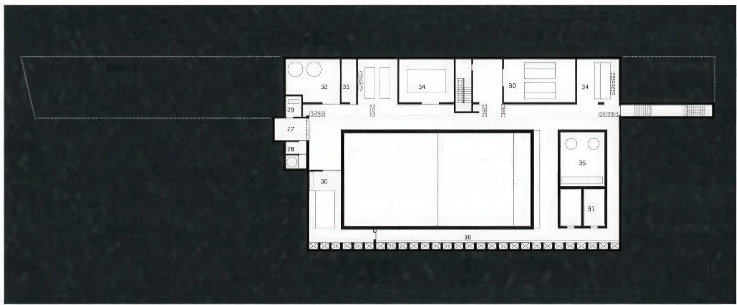
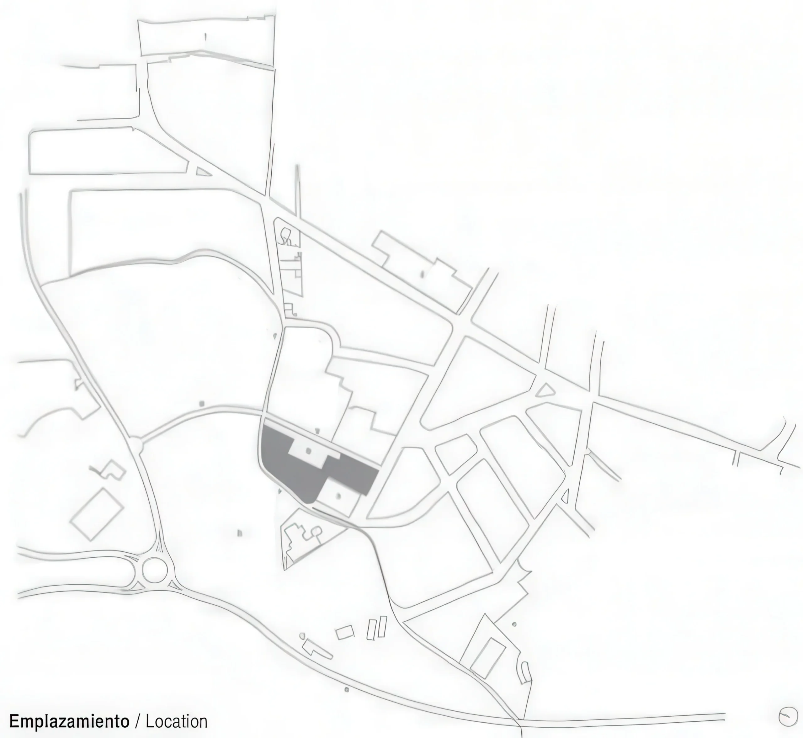
室内游泳池在塔拉德尔 Indoor Pool in Taradell | RCR 建筑事务所|RCR Arquitectes RCR 建筑事务所|RCR Arquitectes • 2025-10-30 下午12:10 • 公共建筑设计, 建筑师设计, 建筑设计, 文化建筑设计 RCR Arquitectes设计的塔拉德尔室内游泳池位于西班牙小镇体育区,巧妙利用地形创造独特空间体验。项目以低矮围墙界定边界,形成面向运动场的观景平台。垂直结构元素兼具承重与遮阳功能,更衣室置于围墙下方,水景反射模糊了节奏性柱廊的存在感,与周围松林形成和谐对话。 设计: RCR 建筑事务所|RCR Arquitectes 类型: 文化建筑设计 功能: 独立住宅 风格: 当代建筑 材料: 混凝土 钢材 玻璃 混合材料 尺度: 中型建筑 地点:西班牙 时间: 2011年 项目简介 塔拉德尔室内游泳池位于西班牙塔拉德尔小镇体育区,建筑面积约2000平方米,2011年设计建成。项目巧妙回应场地地形,为小镇提供现代化水上运动设施。 设计理念 RCR Arquitectes以地形为设计出发点,通过低矮围墙创造观景平台,垂直结构元素兼具功能与美学。建筑在两个标高间平衡,既保持街道视野通透,又为公园提供背景,体现与自然环境的和谐共生。 空间与功能 空间组织清晰分为主体泳池区、更衣区、健身区和设备区。20×12.5米主泳池与12.5×5米学习池满足不同需求,更衣室巧妙置于围墙下方,通过”脏脚走廊”实现干湿分区,确保使用流线高效合理。 材料与技术 采用RCR标志性的钢材与玻璃组合,12mm厚RCR型钢柱构成主要结构。双层自保护沥青防水层、PIR保温板等先进材料确保建筑性能。铝制格栅、搪瓷钢板等材料呼应工业美学,同时满足功能需求。 设计团队 RCR Arquitectes由Rafael Aranda、Carme Pigem和Ramon Vilalta于1988年创立,2017年获普利兹克建筑奖。事务所以对场地敏感的设计、材料创新和光影运用著称,作品深刻体现加泰罗尼亚地域特色。 项目简介 塔拉德尔室内游泳池位于西班牙塔拉德尔小镇体育区,建筑面积约2000平方米,2011年设计建成。项目巧妙回应场地地形,为小镇提供现代化水上运动设施。 设计理念 RCR Arquitectes以地形为设计出发点,通过低矮围墙创造观景平台,垂直结构元素兼具功能与美学。建筑在两个标高间平衡,既保持街道视野通透,又为公园提供背景,体现与自然环境的和谐共生。 空间与功能 空间组织清晰分为主体泳池区、更衣区、健身区和设备区。20×12.5米主泳池与12.5×5米学习池满足不同需求,更衣室巧妙置于围墙下方,通过”脏脚走廊”实现干湿分区,确保使用流线高效合理。 材料与技术 采用RCR标志性的钢材与玻璃组合,12mm厚RCR型钢柱构成主要结构。双层自保护沥青防水层、PIR保温板等先进材料确保建筑性能。铝制格栅、搪瓷钢板等材料呼应工业美学,同时满足功能需求。 设计团队 RCR Arquitectes由Rafael Aranda、Carme Pigem和Ramon Vilalta于1988年创立,2017年获普利兹克建筑奖。事务所以对场地敏感的设计、材料创新和光影运用著称,作品深刻体现加泰罗尼亚地域特色。 本文来自 © RCR 建筑事务所|RCR Arquitectes, 发布于 © 建筑学院官方网站。 未经授权,禁止转载或摘编。 编辑版本版权归 © 建筑学院官方网站 所有, 设计、图纸及照片版权归设计方 © RCR 建筑事务所|RCR Arquitectes ↗ 所有。 查看作者在建筑学院发布的更多作品: RCR 建筑事务所|RCR Arquitectes @ 建筑学院官方网站 RCR Arquitectes体育建筑塔拉德尔室内游泳池西班牙建筑钢结构 RCR 建筑事务所|RCR Arquitectes事务所 & 设计师 下载原图 收藏 0 关于作者 RCR 建筑事务所|RCR Arquitectes事务所 & 设计师 关注私信 14 文章 0 评论 0 粉丝 RCR建筑事务所由拉斐尔·阿兰达、卡莫·皮格姆和拉蒙·比拉尔塔于1988年在西班牙奥洛特创立。他们于2017年共同荣获普利兹克建筑奖,其作品以根植本土、心向世界而闻名。事务所擅长运用耐候钢、玻璃等现代材料,将建筑与自然景观深度融合,创造出充满诗意与永恒感的空间。其代表作包括法国苏拉吉博物馆、里拉剧院户外空间等。 迪拜穆拉巴公寓楼 Muraba Residences in Dubai | RCR 建筑事务所|RCR Arquitectes 上一篇 2025-10-30 下午12:10 芝加哥当代艺术博物馆 Museum of Contemporary Art Chicago | MARKLEE 建筑事务所|MARKLEE 下一篇 2025-10-31 上午12:35 猜你喜欢 勒哈弗多功能社会文化体育设施 Multifunction Sociocultural and Sports Facility, Le Havre | 布鲁瑟建筑事务所|Bruther 2025-11-24 公共建筑设计 电子工坊 | RCR Architects 2025-09-05 住宅建筑设计 阿尔盖河划馆 Rowing Pavilion in Alange | 何塞·玛丽亚·桑切斯·加西亚|José María Sánchez García 2025-11-30 公共建筑设计 RBC设计中心,蒙彼利埃 RBC Design Centre, Montpellier | 让·努维尔建筑事务所|Jean Nouvel 2025-12-03 公共建筑设计 男卡泽住宅 / Malecaze House | RCR 建筑事务所 2025-11-17 公共建筑设计 卡马之家和艾瓦哈之家 / Kama House and Alwah House | RCR 建筑事务所 2025-11-13 公共建筑设计 发表回复 请登录后评论...登录后才能评论 提交