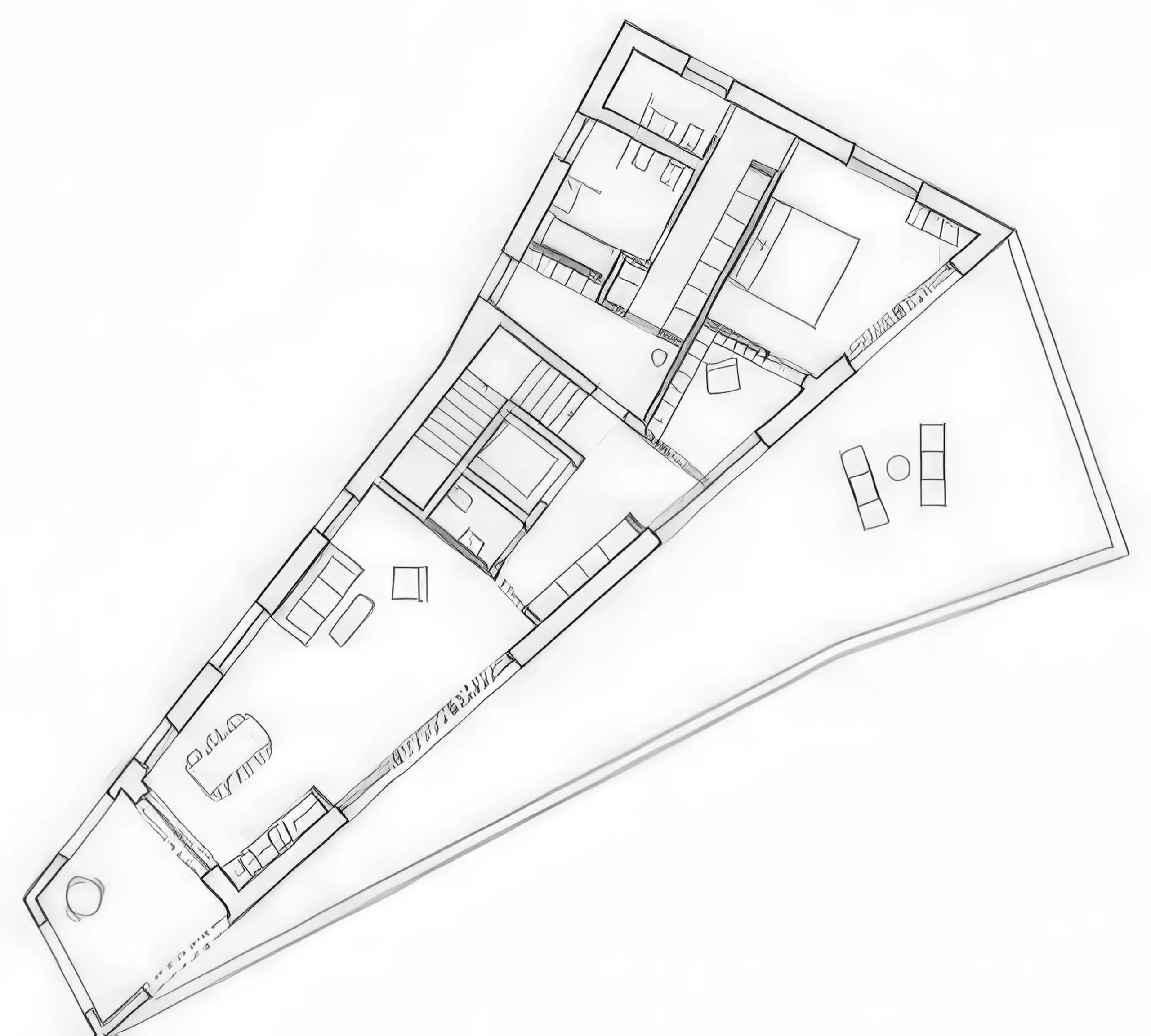
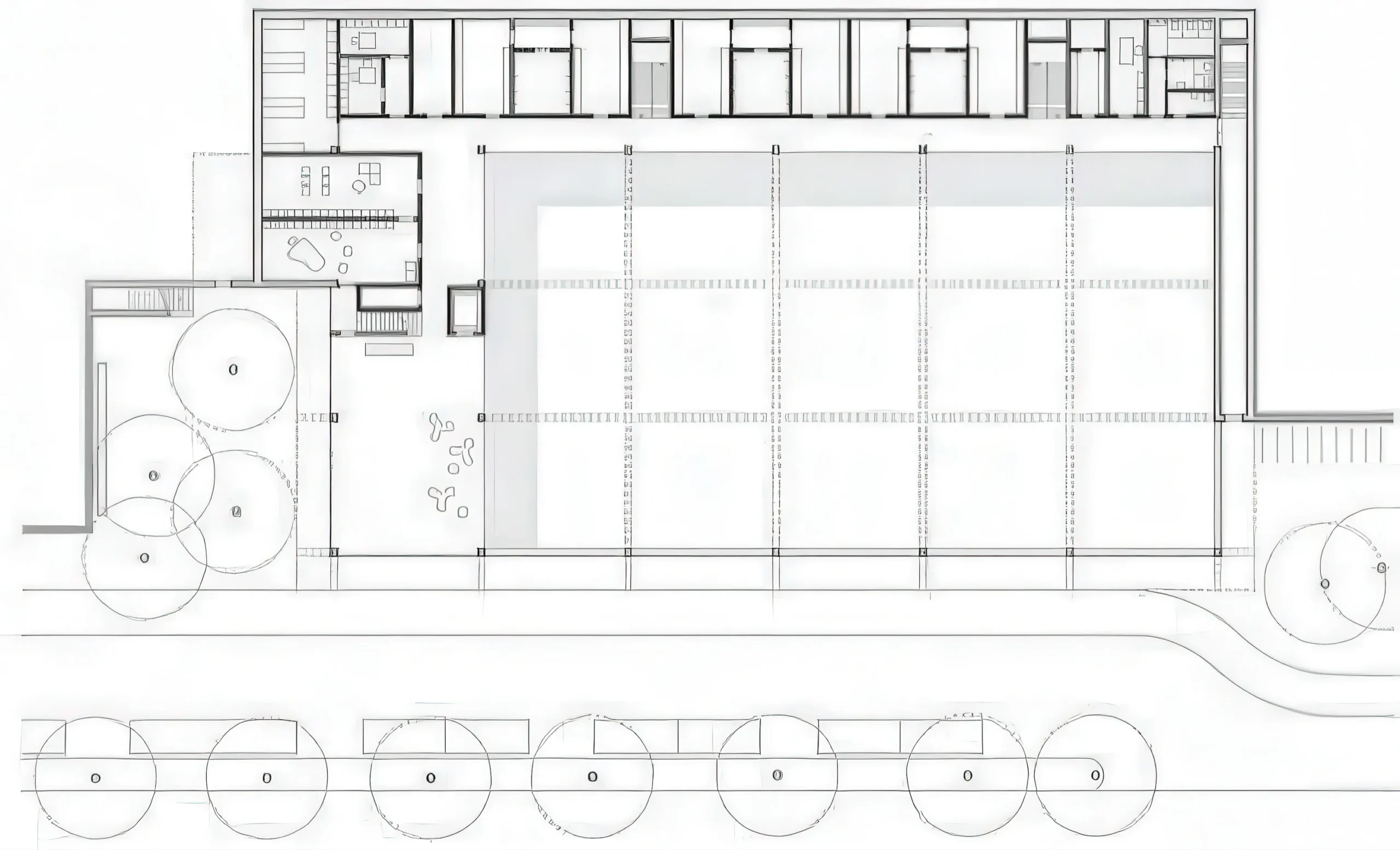
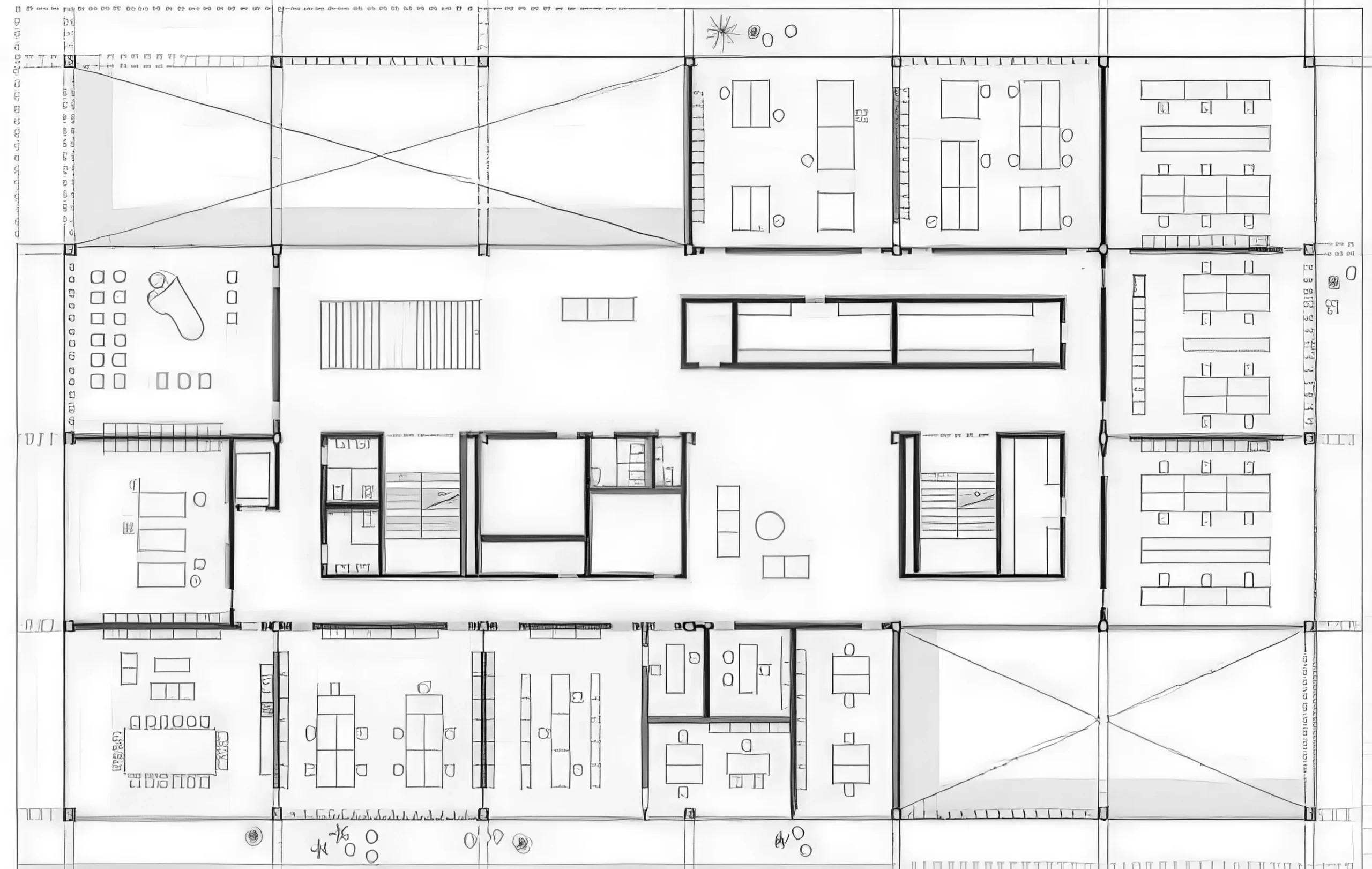
乌格韦斯特大街小学 Thurgauerstrasse Primary School | Karamuk Kuo 建筑事务所|Karamuk Kuo Karamuk Kuo 建筑事务所 • 2025-10-31 上午8:50 • 公共建筑设计, 建筑师设计, 建筑设计, 文化建筑设计 乌格韦斯特大街小学是位于瑞士苏黎世北部的一所教育建筑,由Karamuk Kuo建筑事务所于2017年设计。项目采用创新的垂直绿化系统,将18间教室组织成半自治集群,每个集群都配有大型户外露台。设计通过暴露混凝土结构和平台错位创造双高空间,实现了室内外学习的无缝衔接。 设计: Karamuk Kuo 建筑事务所 类型: 文化建筑设计 功能: 学校 风格: 当代建筑 材料: 混凝土 玻璃 砖材 金属板 尺度: 中型建筑 地点:瑞士 时间: 2017年 项目简介 乌格韦斯特大街小学位于瑞士苏黎世,是一所教育建筑项目,建筑面积约6000平方米,包含18间教室及图书馆、体育馆、餐厅等公共设施。该项目于2017年通过竞赛确定设计方案,采用5-6层建筑结构。 设计理念 设计团队重新思考了教室与环境的关系,借鉴开放式学校的理念,将学校构想为一系列模糊内外边界的平台。垂直绿化系统从二维的墙面绿化发展为三维的空中花园空间,每个教室集群都面向受垂直种植面保护的大型露台。 空间与功能 建筑采用单元式组织模式,将18间教室分成多个半自治集群。每个集群都配有专用户外教学露台,平台错位创造了入口和餐厅的双高空间。地面层设有音乐乐器博物馆,展示从大键琴到早期弦乐器的丰富收藏。 材料与技术 建筑采用暴露混凝土结构系统,体现了基础设施的坚固特性。砖材立面符合历史核心区的保护规定,金属窗细节则赋予建筑现代表达。垂直绿化系统不仅满足竞赛要求,更成为空间组织的核心要素。 设计团队 Karamuk Kuo建筑事务所是一家专注于建筑与城市设计的瑞士事务所,以其在教育建筑和创新空间解决方案方面的专业能力而闻名,擅长将功能性需求与独特的设计概念相结合。 项目简介 乌格韦斯特大街小学位于瑞士苏黎世,是一所教育建筑项目,建筑面积约6000平方米,包含18间教室及图书馆、体育馆、餐厅等公共设施。该项目于2017年通过竞赛确定设计方案,采用5-6层建筑结构。 设计理念 设计团队重新思考了教室与环境的关系,借鉴开放式学校的理念,将学校构想为一系列模糊内外边界的平台。垂直绿化系统从二维的墙面绿化发展为三维的空中花园空间,每个教室集群都面向受垂直种植面保护的大型露台。 空间与功能 建筑采用单元式组织模式,将18间教室分成多个半自治集群。每个集群都配有专用户外教学露台,平台错位创造了入口和餐厅的双高空间。地面层设有音乐乐器博物馆,展示从大键琴到早期弦乐器的丰富收藏。 材料与技术 建筑采用暴露混凝土结构系统,体现了基础设施的坚固特性。砖材立面符合历史核心区的保护规定,金属窗细节则赋予建筑现代表达。垂直绿化系统不仅满足竞赛要求,更成为空间组织的核心要素。 设计团队 Karamuk Kuo建筑事务所是一家专注于建筑与城市设计的瑞士事务所,以其在教育建筑和创新空间解决方案方面的专业能力而闻名,擅长将功能性需求与独特的设计概念相结合。 本文来自 © Karamuk Kuo 建筑事务所, 发布于 © 建筑学院官方网站。 未经授权,禁止转载或摘编。 编辑版本版权归 © 建筑学院官方网站 所有, 设计、图纸及照片版权归设计方 © Karamuk Kuo 建筑事务所 ↗ 所有。 查看作者在建筑学院发布的更多作品: Karamuk Kuo 建筑事务所 @ 建筑学院官方网站 Karamuk Kuo乌格韦斯特大街小学教育建筑混凝土结构苏黎世 Karamuk Kuo 建筑事务所事务所 & 设计师 下载原图 收藏 0 关于作者 Karamuk Kuo 建筑事务所事务所 & 设计师 关注私信 13 文章 0 评论 0 粉丝 芝加哥当代艺术博物馆 Museum of Contemporary Art Chicago | MARKLEE 建筑事务所|MARKLEE 上一篇 2025-10-31 上午12:35 金顶 The Golden Dome | AMID.cero9 建筑事务所|AMID.cero9 下一篇 2025-10-31 上午8:50 猜你喜欢 在屋顶上面尽情玩耍,到达想去的地方 — 新Brygge岛小学 2018-08-16 建筑设计 迷人而又童话般的幼儿园 / KIENTRUC O 2019-07-20 建筑设计 苏黎世艺术馆扩展项目 Kunsthaus Zurich Extension | 大卫·奇珀菲尔德建筑事务所|David Chipperfield 2025-11-18 公共建筑设计 江苏省南京市文齐路小学 / 荣朝晖工作室 2024-02-01 建筑设计 百廿相遇星辰瑶海——合肥一中东校区 / 浙江大学建筑设计研究院 2023-02-22 建筑设计 延安大学新校区规划设计 / 清华大学建筑设计研究院 2019-09-19 建筑设计 发表回复 请登录后评论...登录后才能评论 提交