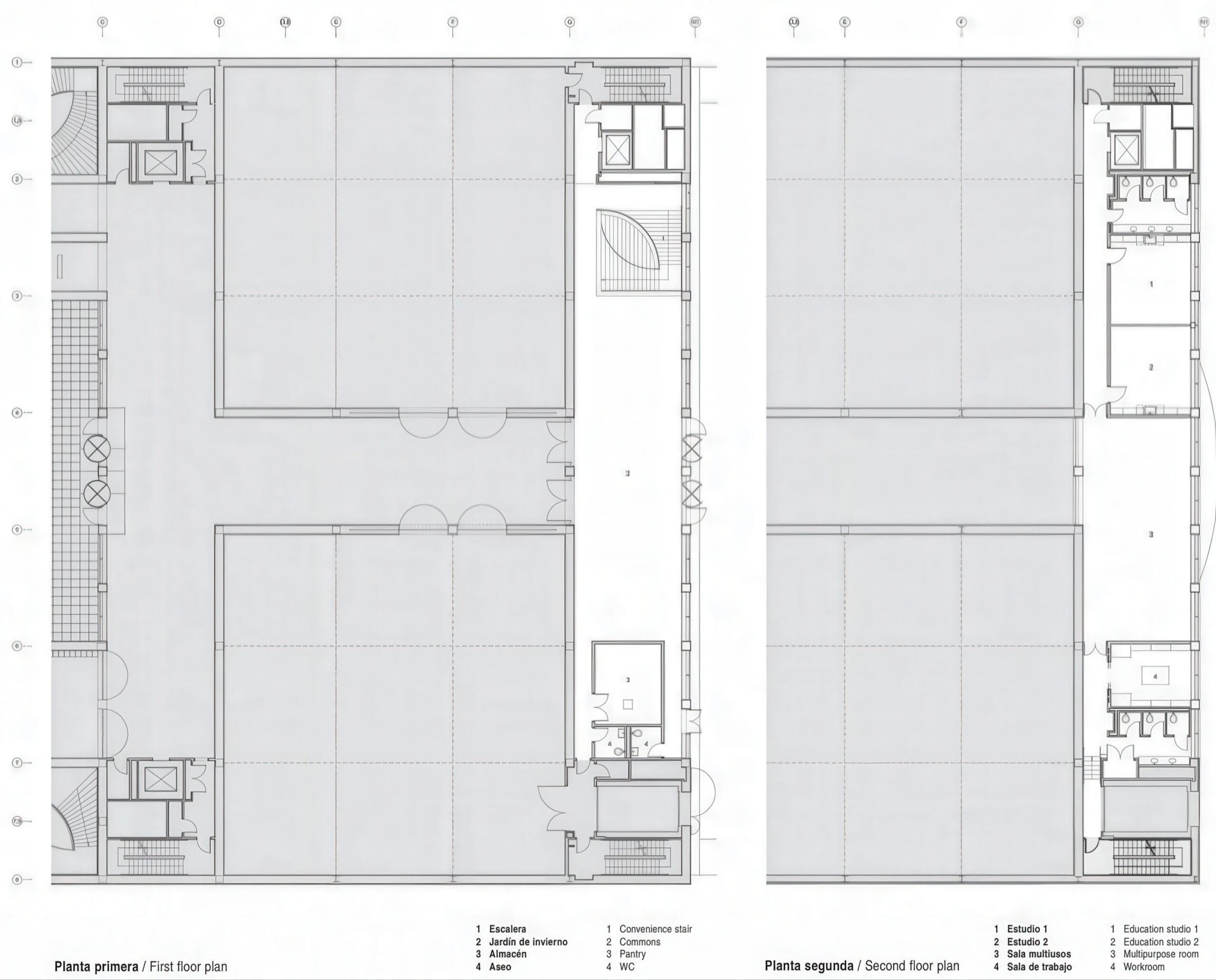
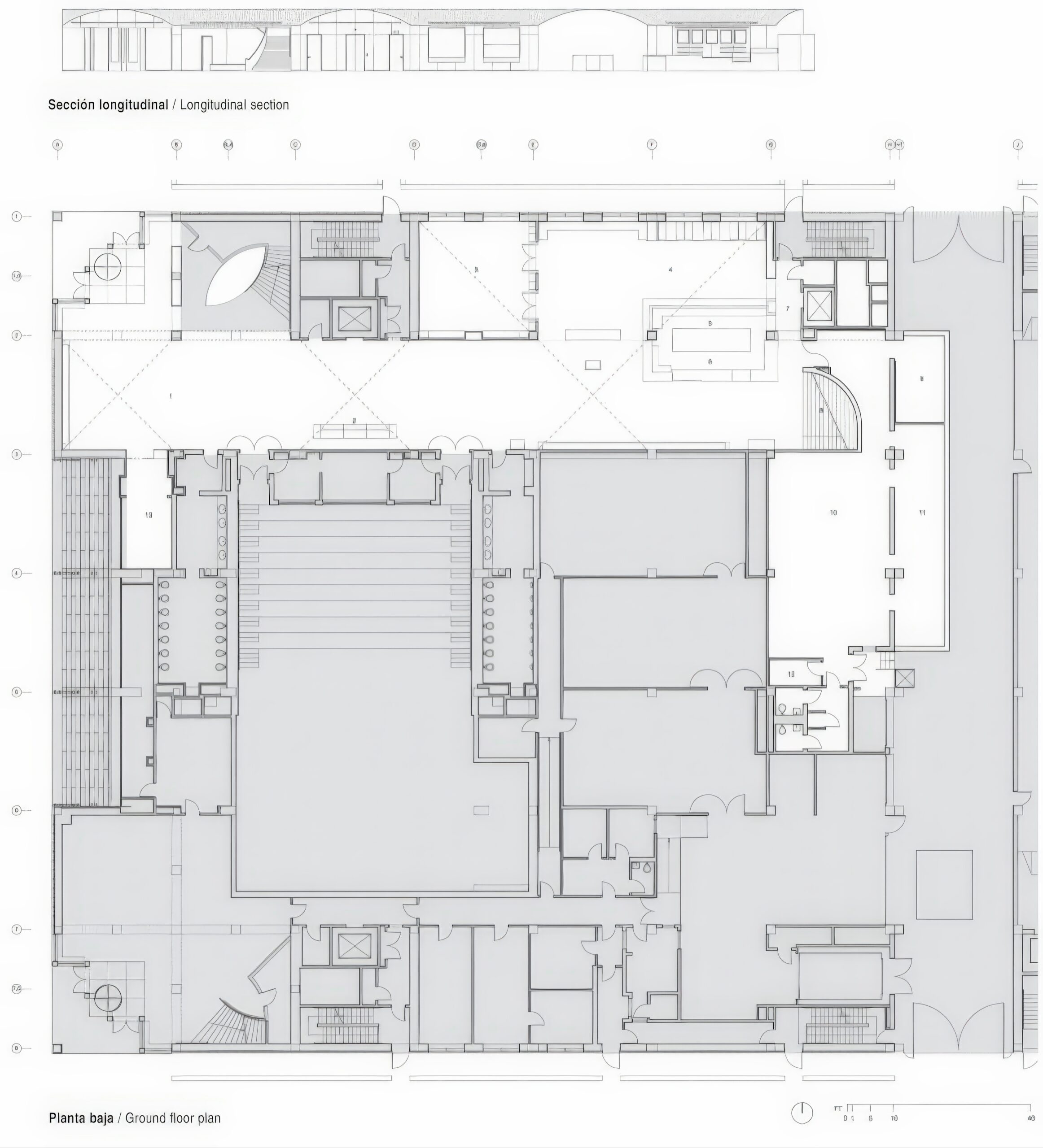
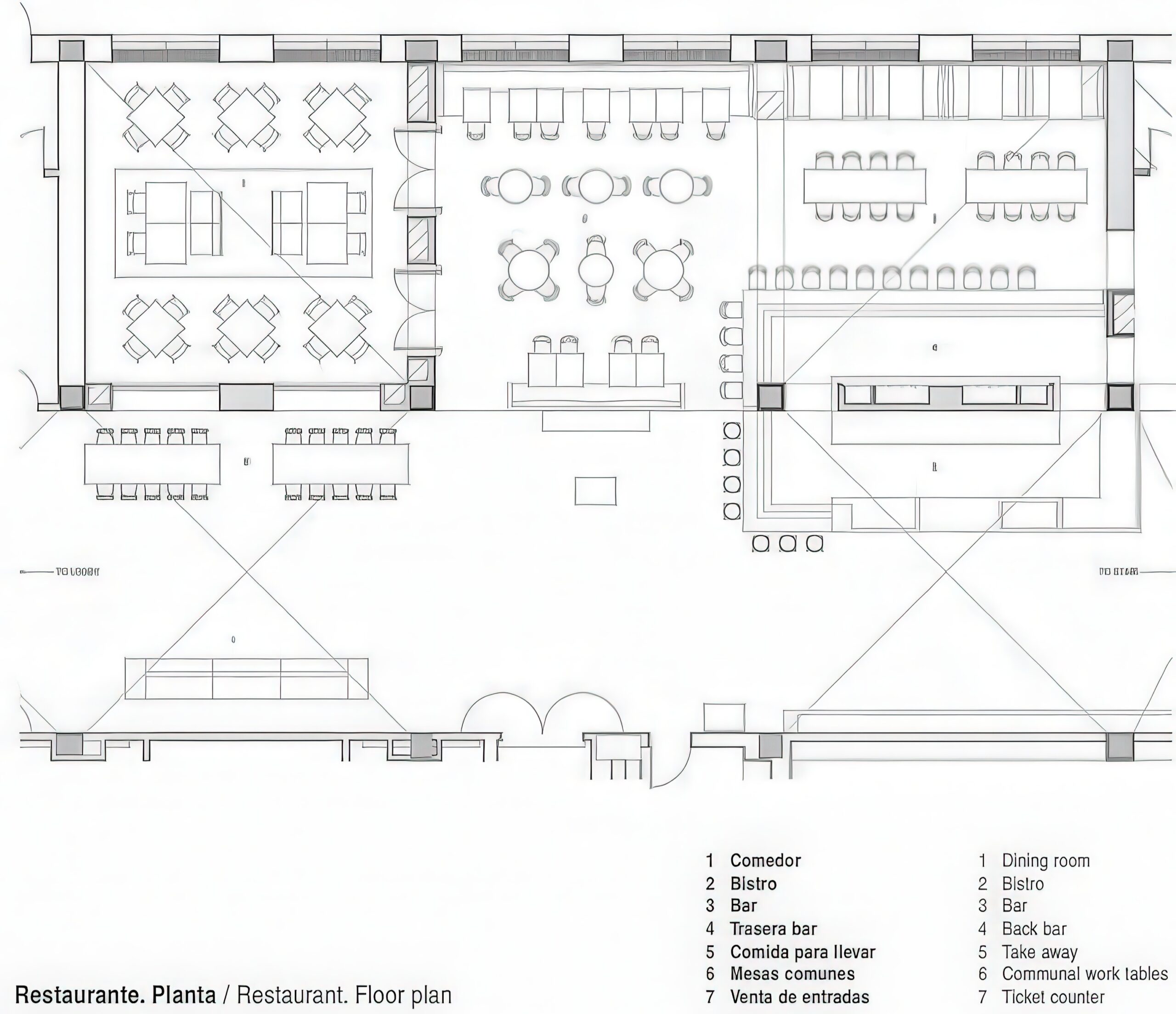
芝加哥当代艺术博物馆 Museum of Contemporary Art Chicago | MARKLEE 建筑事务所|MARKLEE MARKLEE 建筑事务所|MARKLEE • 2025-10-31 上午12:35 • 公共建筑设计, 建筑师设计, 建筑设计, 文化建筑设计 芝加哥当代艺术博物馆由MARKLEE建筑事务所设计,位于美国芝加哥市。该项目是对Josef Paul Kleihues设计的原博物馆建筑进行改造更新,通过强化建筑与城市的连接、整合标志性建筑元素,创造了一个更加灵活、开放且光线充足的艺术空间,实现了艺术家与公众的深度互动。 设计: MARKLEE 建筑事务所|MARKLEE 类型: 文化建筑设计 功能: 博物馆 风格: 当代建筑 材料: 混凝土 钢材 玻璃 尺度: 大型建筑 地点:芝加哥 时间: 1996年 项目简介 芝加哥当代艺术博物馆位于美国芝加哥市,是一座文化建筑。项目建筑面积未明确,设计团队MARKLEE建筑事务所于近期完成了该博物馆的改造更新工程。 设计理念 设计团队以强化博物馆与城市的连接为核心,通过多尺度分析重新定义博物馆身份。改造计划保留了原建筑的几何网格、船形楼梯和拱形天花板等标志性元素,同时引入新的艺术家与公众互动空间,创造更加灵活、开放的艺术环境。 空间与功能 改造后的博物馆设有新的室内街道、公共休息区和雕塑露台。空间组织强调连续性,通过楼梯连接各层公共区域,形成流畅的参观动线。功能分区包括展览空间、餐厅、酒吧、教室和会议空间,满足多样化的艺术活动需求。 材料与技术 设计延续了原建筑的结构网格系统,采用拱形天花板和大型方形窗户等元素。改造注重自然采光,通过楼梯设计将光线引入建筑底层,营造明亮通透的公共空间。 设计团队 MARKLEE建筑事务所是一家专注于文化建筑设计的知名事务所,在博物馆和艺术空间设计领域具有丰富经验,擅长通过创新设计策略实现建筑与城市的有机融合。 项目简介 芝加哥当代艺术博物馆位于美国芝加哥市,是一座文化建筑。项目建筑面积未明确,设计团队MARKLEE建筑事务所于近期完成了该博物馆的改造更新工程。 设计理念 设计团队以强化博物馆与城市的连接为核心,通过多尺度分析重新定义博物馆身份。改造计划保留了原建筑的几何网格、船形楼梯和拱形天花板等标志性元素,同时引入新的艺术家与公众互动空间,创造更加灵活、开放的艺术环境。 空间与功能 改造后的博物馆设有新的室内街道、公共休息区和雕塑露台。空间组织强调连续性,通过楼梯连接各层公共区域,形成流畅的参观动线。功能分区包括展览空间、餐厅、酒吧、教室和会议空间,满足多样化的艺术活动需求。 材料与技术 设计延续了原建筑的结构网格系统,采用拱形天花板和大型方形窗户等元素。改造注重自然采光,通过楼梯设计将光线引入建筑底层,营造明亮通透的公共空间。 设计团队 MARKLEE建筑事务所是一家专注于文化建筑设计的知名事务所,在博物馆和艺术空间设计领域具有丰富经验,擅长通过创新设计策略实现建筑与城市的有机融合。 本文来自 © MARKLEE 建筑事务所|MARKLEE, 发布于 © 建筑学院官方网站。 未经授权,禁止转载或摘编。 编辑版本版权归 © 建筑学院官方网站 所有, 设计、图纸及照片版权归设计方 © MARKLEE 建筑事务所|MARKLEE ↗ 所有。 查看作者在建筑学院发布的更多作品: MARKLEE 建筑事务所|MARKLEE @ 建筑学院官方网站 MARKLEE 建筑事务所|MARKLEE事务所 & 设计师 下载原图 收藏 0 关于作者 MARKLEE 建筑事务所|MARKLEE事务所 & 设计师 关注私信 17 文章 0 评论 0 粉丝 MARKLEE建筑事务所是一家致力于提供前瞻性建筑与空间解决方案的国际化团队。我们秉持“设计重塑体验”的理念,擅长将客户独特需求与场地文脉相结合,通过严谨的逻辑与创意构思,打造兼具现代美学、实用价值与可持续性的建筑作品。从概念到落地,MARKLEE为您提供专业化、个性化的全程设计服务,共创卓越空间。 室内游泳池在塔拉德尔 Indoor Pool in Taradell | RCR 建筑事务所|RCR Arquitectes 上一篇 2025-10-30 下午12:10 乌格韦斯特大街小学 Thurgauerstrasse Primary School | Karamuk Kuo 建筑事务所|Karamuk Kuo 下一篇 2025-10-31 上午8:50 猜你喜欢 为讽刺由开发商主导的方案,他们设计了这座“荒诞摩天楼” 2018-06-01 概念建筑 欧洲最大城市更新: 马德里查马丁车站 / UNStudio + b720 2022-12-28 公共建筑设计 矶崎新在中国,这些地方要成为新的建筑打卡胜地! 2019-03-07 建筑设计 诗意的栖居:沃尔特之家 / Ambrosi I Etchegaray 2019-10-21 建筑设计 山水间的“负空间”营造 :漓江文化旅游度假区塔山会馆 / UA尤安设计 2022-06-16 公共建筑设计 Sihaon咖啡厅与家庭婚礼空间 / SPACE CHA 2025-04-26 建筑设计 发表回复 请登录后评论...登录后才能评论 提交