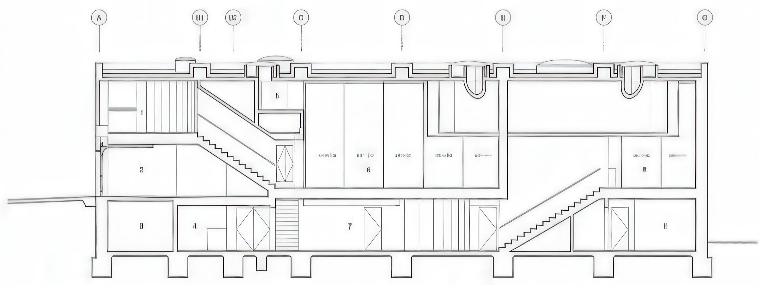
Porch House / Porch House | MARKLEE 建筑事务所 MARKLEE 建筑事务所|MARKLEE • 2025-11-02 下午12:50 • 公共建筑设计, 建筑师设计, 建筑设计, 文化建筑设计 Porch House 由 MARKLEE 建筑事务所设计,是一座位于陡峭草坡顶部的独立住宅,面向州立公园和海洋。建筑通过曲线挡土墙与场地自然融合,以混凝土柱廊和玻璃体量重新诠释传统门廊空间,创造内外交融的居住体验。 设计: MARKLEE 建筑事务所|MARKLEE 类型: 文化建筑设计 功能: 独立住宅 风格: 当代建筑 材料: 混凝土 木材 玻璃 尺度: 小型建筑 地点:美国 时间: 2018年 项目概述 Porch House 是一座独立住宅,位于陡峭草坡顶部,面向州立公园和海洋。建筑通过两个体量的组合,重新定义了住宅与自然环境的关系。 设计理念 设计灵感来源于美国传统门廊类型学,通过曲线挡土墙和混凝土柱廊,在私人 interior 与外部世界之间建立对话。建筑整体成为门廊,实现了内外空间的自然过渡。 空间与功能 Porch House 颠覆传统住宅布局,将公共生活空间置于上层,私人卧室位于下层。混凝土柱廊与玻璃体量之间的过渡空间成为核心体验区,水磨石和混凝土地面从室内延伸至室外。 材料与技术 建筑采用混凝土柱廊结构、玻璃幕墙和水磨石地面。热质量设计使住宅在大部分时间实现气候自主,天窗和大型窗墙系统优化自然采光。 项目特色与启发 Porch House 重新诠释了传统门廊空间,展示了如何通过建筑语言实现人与自然的和谐共生,为当代住宅设计提供了创新思路。 设计团队 MARKLEE 建筑事务所擅长通过简洁的建筑语言回应场地特征,在住宅设计中注重空间体验与环境的融合。 项目概述 Porch House 是一座独立住宅,位于陡峭草坡顶部,面向州立公园和海洋。建筑通过两个体量的组合,重新定义了住宅与自然环境的关系。 设计理念 设计灵感来源于美国传统门廊类型学,通过曲线挡土墙和混凝土柱廊,在私人 interior 与外部世界之间建立对话。建筑整体成为门廊,实现了内外空间的自然过渡。 空间与功能 Porch House 颠覆传统住宅布局,将公共生活空间置于上层,私人卧室位于下层。混凝土柱廊与玻璃体量之间的过渡空间成为核心体验区,水磨石和混凝土地面从室内延伸至室外。 材料与技术 建筑采用混凝土柱廊结构、玻璃幕墙和水磨石地面。热质量设计使住宅在大部分时间实现气候自主,天窗和大型窗墙系统优化自然采光。 项目特色与启发 Porch House 重新诠释了传统门廊空间,展示了如何通过建筑语言实现人与自然的和谐共生,为当代住宅设计提供了创新思路。 设计团队 MARKLEE 建筑事务所擅长通过简洁的建筑语言回应场地特征,在住宅设计中注重空间体验与环境的融合。 本文来自 © MARKLEE 建筑事务所|MARKLEE, 发布于 © 建筑学院官方网站。 未经授权,禁止转载或摘编。 编辑版本版权归 © 建筑学院官方网站 所有, 设计、图纸及照片版权归设计方 © MARKLEE 建筑事务所|MARKLEE ↗ 所有。 查看作者在建筑学院发布的更多作品: MARKLEE 建筑事务所|MARKLEE @ 建筑学院官方网站 Porch House独立住宅设计现代住宅门廊建筑 MARKLEE 建筑事务所|MARKLEE事务所 & 设计师 下载原图 收藏 0 关于作者 MARKLEE 建筑事务所|MARKLEE事务所 & 设计师 关注私信 17 文章 0 评论 0 粉丝 MARKLEE建筑事务所是一家致力于提供前瞻性建筑与空间解决方案的国际化团队。我们秉持“设计重塑体验”的理念,擅长将客户独特需求与场地文脉相结合,通过严谨的逻辑与创意构思,打造兼具现代美学、实用价值与可持续性的建筑作品。从概念到落地,MARKLEE为您提供专业化、个性化的全程设计服务,共创卓越空间。 李尔斯艺术中心 / Lewis Center for the Arts | 霍尔 Steven Holl 上一篇 2025-11-02 下午12:50 瑞士卢塞蒂体育中心与大厅 / Campus Ruetli Sports Hall | Karamuk Kuo 建筑事务所 下一篇 2025-11-03 上午8:50 猜你喜欢 山上的房子 House on a Hill | 谭姆与维德高德建筑事务所|Tham & Videgård 2025-11-07 公共建筑设计 马略阿的房子 / House in Maia | 阿尔瓦罗·西扎 & 安东尼奥·马杜雷拉 2025-12-17 住宅建筑设计 DDH房子扩建和翻新 / DDH HOUSE ENLARGEMENT AND RENOVATION | Taller Héctor Barroso 2026-02-21 住宅建筑设计 花园小屋 / Garden House | 安妮·霍尔特罗普|Anne Holtrop 2025-12-20 住宅建筑设计 Velamsund 住宅 / House in Velamsund | Arrhov Frick 2026-01-23 建筑设计 圣楚尔瓦住宅 House in Stürcherwald | 贝尔纳多·巴德尔|Bernardo Bader 2025-10-30 公共建筑设计 发表回复 请登录后评论...登录后才能评论 提交