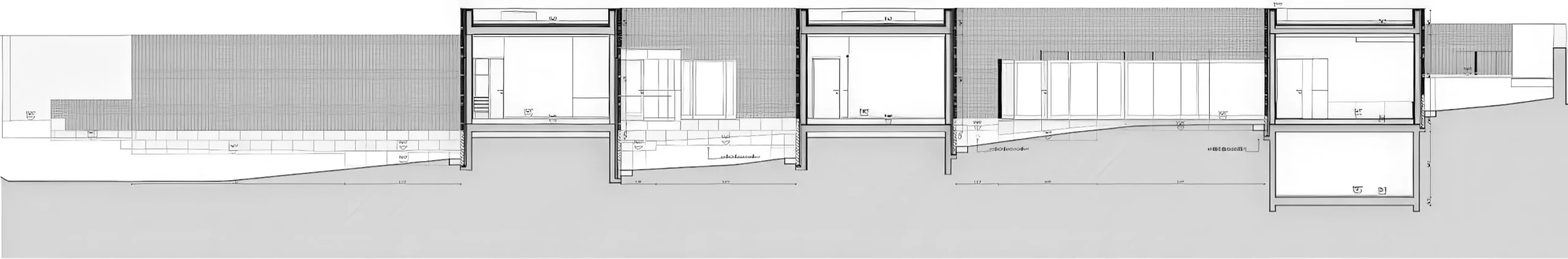
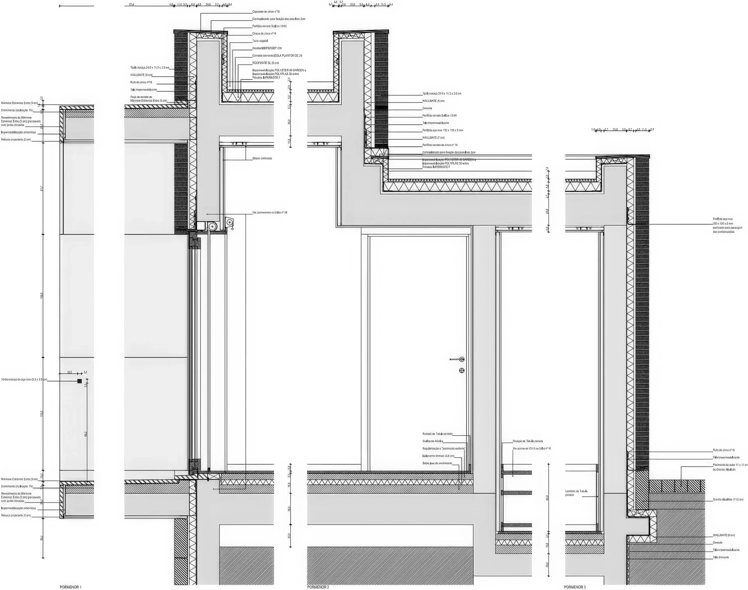
马略阿的房子 / House in Maia | 阿尔瓦罗·西扎 & 安东尼奥·马杜雷拉 阿尔瓦罗·西扎|Alvaro Siza • 2026-01-12 上午7:06 • 住宅建筑设计, 建筑设计, 独立住宅设计 马略阿的房子由葡萄牙建筑师阿尔瓦罗·西扎与安东尼奥·马杜雷拉合作设计,位于葡萄牙马略阿市,是一座高标准独立住宅。项目巧妙回应三角形场地与既有铁路平台,通过碎片化体量组织四间卧室、公共区域与室内泳池,在确保私密性的同时创造丰富的庭院空间体验。 设计: 阿尔瓦罗·西扎|Alvaro Siza 类型: 独立住宅设计 功能: 独立住宅 风格: 现代主义 材料: 混凝土 木材 石材 砖材 尺度: 中型建筑 地点:马略阿 时间: 1970年 项目概述 马略阿的房子位于葡萄牙马略阿市,是一座高标准独立住宅,占地面积5100平方米,总建筑面积689.77平方米。项目由阿尔瓦罗·西扎与安东尼奥·马杜雷拉合作设计,设计周期为2008年至2020年,包含四间卧室、公共区域和室内泳池等完善功能。 设计理念 设计团队充分回应场地特征,三角形地块与抬高的旧铁路平台成为设计出发点。阿尔瓦罗·西扎采用碎片化体量策略,通过三个垂直臂状体量组织空间,既确保了住宅私密性,又创造了多个内向庭院,形成建筑与环境的和谐对话。 空间与功能 建筑平面由东西向线性体量和三个南北向臂状体量构成。线性体量容纳车库、入口、厨房与服务区,三个臂状体量分别布置卧室、起居区和室内泳池。空间组织逻辑清晰,流线明确,通过庭院连接各功能区域,营造丰富的空间体验。 材料与技术 项目采用钢筋混凝土柱梁板结构,外墙为空心砖砌体,立面在花岗岩基座以上采用砖材饰面。建筑整体采用外保温系统避免热桥,木制门窗配备可调节遮阳装置,平屋顶覆以植被基质。室内采用木材或大理石地面,灰泥或大理石墙面,体现阿尔瓦罗·西扎一贯的材料精确性。 项目特色与启发 马略阿的房子展现了阿尔瓦罗·西扎对复杂地形的高超处理能力,通过碎片化体量策略巧妙平衡私密性与开放性。项目在可持续设计方面采用地热供暖系统和屋顶绿化,为当代住宅设计提供了地形适应性与环境友好性的重要参考。 设计团队 阿尔瓦罗·西扎是葡萄牙著名建筑师,普利兹克奖得主,以极简现代主义风格和对场地文脉的深刻理解著称。安东尼奥·马杜雷拉是其长期合作者,两人在多个项目中展现了卓越的设计协调能力,共同创造了这个地形回应性住宅的典范之作。 项目概述 马略阿的房子位于葡萄牙马略阿市,是一座高标准独立住宅,占地面积5100平方米,总建筑面积689.77平方米。项目由阿尔瓦罗·西扎与安东尼奥·马杜雷拉合作设计,设计周期为2008年至2020年,包含四间卧室、公共区域和室内泳池等完善功能。 设计理念 设计团队充分回应场地特征,三角形地块与抬高的旧铁路平台成为设计出发点。阿尔瓦罗·西扎采用碎片化体量策略,通过三个垂直臂状体量组织空间,既确保了住宅私密性,又创造了多个内向庭院,形成建筑与环境的和谐对话。 空间与功能 建筑平面由东西向线性体量和三个南北向臂状体量构成。线性体量容纳车库、入口、厨房与服务区,三个臂状体量分别布置卧室、起居区和室内泳池。空间组织逻辑清晰,流线明确,通过庭院连接各功能区域,营造丰富的空间体验。 材料与技术 项目采用钢筋混凝土柱梁板结构,外墙为空心砖砌体,立面在花岗岩基座以上采用砖材饰面。建筑整体采用外保温系统避免热桥,木制门窗配备可调节遮阳装置,平屋顶覆以植被基质。室内采用木材或大理石地面,灰泥或大理石墙面,体现阿尔瓦罗·西扎一贯的材料精确性。 项目特色与启发 马略阿的房子展现了阿尔瓦罗·西扎对复杂地形的高超处理能力,通过碎片化体量策略巧妙平衡私密性与开放性。项目在可持续设计方面采用地热供暖系统和屋顶绿化,为当代住宅设计提供了地形适应性与环境友好性的重要参考。 设计团队 阿尔瓦罗·西扎是葡萄牙著名建筑师,普利兹克奖得主,以极简现代主义风格和对场地文脉的深刻理解著称。安东尼奥·马杜雷拉是其长期合作者,两人在多个项目中展现了卓越的设计协调能力,共同创造了这个地形回应性住宅的典范之作。 本文来自 © 阿尔瓦罗·西扎|Alvaro Siza, 发布于 © 建筑学院官方网站。 未经授权,禁止转载或摘编。 编辑版本版权归 © 建筑学院官方网站 所有, 设计、图纸及照片版权归设计方 © 阿尔瓦罗·西扎|Alvaro Siza ↗ 所有。 查看作者在建筑学院发布的更多作品: 阿尔瓦罗·西扎|Alvaro Siza @ 建筑学院官方网站 house in maia独立住宅设计现代主义住宅葡萄牙住宅阿尔瓦罗·西扎 阿尔瓦罗·西扎|Alvaro Siza事务所 & 设计师 下载原图 收藏 0 关于作者 阿尔瓦罗·西扎|Alvaro Siza事务所 & 设计师 关注私信 36 文章 0 评论 1 粉丝 阿尔瓦罗·西扎(Álvaro Siza)是葡萄牙著名建筑师,1992年普利兹克奖得主。他以融合葡萄牙建筑传统与国际现代主义的“诗意现代主义”风格闻名,代表作包括勒萨德帕梅拉游泳池等。 Nadir Afonso Foundation / Nadir Afonso Foundation | 阿尔瓦罗·西扎|Álvaro Siza 上一篇 2026-01-11 下午10:22 青嶂,以唐伯虎为主题,自废墟中崛起 / Wutopia Lab 下一篇 2026-01-15 上午9:05 猜你喜欢 帕劳Solità岛Plegamans的住宅 / House in Palau Solità i Plegamans | HArquitectes 2026-02-12 住宅建筑设计 Casa de Navidad / House in Navidad | Pezo Von Ellrichshausen 2026-02-05 住宅建筑设计 克罗地亚兹戈尔单体住宅 / Single Family House in Zagreb | 德·莫拉|de Moura 2026-03-17 住宅建筑设计 奥斯特鲁姆的套房和别墅 / Suites and Villas, Estremoz | 阿尔瓦罗·西扎|Álvaro Siza 2025-12-15 商业与综合建筑 加拉尔特住宅小区 / Residential Complex in Gallarate | 阿尔瓦罗·西扎|Álvaro Siza 2025-12-21 住宅建筑设计 哥特式建筑 Geschinen / Girsberger House | 吉翁·A·卡米纳达|Gion A. Caminada 2025-12-22 住宅建筑设计 发表回复 请登录后评论...登录后才能评论 提交