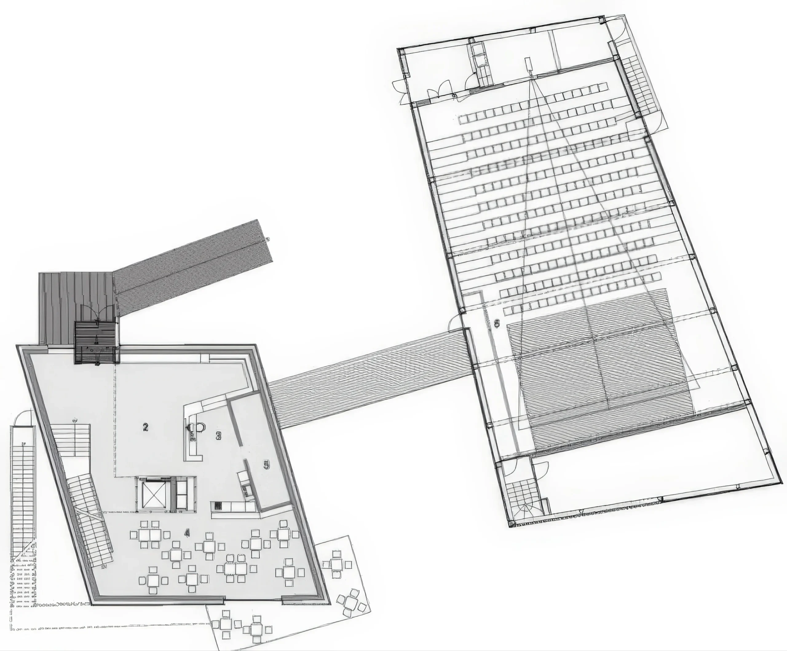
赫姆逊·克努特中心 / Knut Hamsun Center | 霍尔 Steven Holl 霍尔 | Steven Holl Architects • 2025-11-02 下午12:50 • 公共建筑设计, 建筑师设计, 建筑设计, 文化建筑设计 赫姆逊·克努特中心由霍尔 Steven Holl 设计,位于挪威哈马尔岛普雷斯特德的文化建筑,跨越北极圈。这座博物馆纪念诺贝尔文学奖得主克努特·汉姆生,以建筑语言诠释其文学精神,融合展览、图书馆与社区功能。 设计: 霍尔 | Steven Holl Architects 类型: 文化建筑设计 功能: 博物馆 风格: 当代建筑 材料: 混凝土 木材 玻璃 金属板 尺度: 小型建筑 地点:挪威 时间: 2009年 项目概述 赫姆逊·克努特中心是位于挪威哈马尔岛普雷斯特德的文化建筑,由霍尔 Steven Holl 设计,建筑面积约2,500平方米。项目包括展览区、图书馆、阅读室、咖啡厅和礼堂,设计于2009年建成,服务于博物馆与社区用途。 设计理念 设计灵感源自克努特·汉姆生文学中对人类心灵的探索,概念为“建筑如身体:无形力量的战场”。霍尔 Steven Holl 将建筑视为空间与光线的精神压缩,引用文本元素如“空提琴盒”露台和“卷袖擦黄窗”阳台,强化文学与建筑的对话。 空间与功能 赫姆逊·克努特中心的空间组织以中央电梯为核心脊柱,连接各功能区。流线设计利用自然地形,半地下通道连接主楼与礼堂,确保自然采光。展览与公共区域布局灵活,支持文化活动和社区互动,塑造沉浸式体验。 材料与技术 建筑采用黑色焦油木材外皮,呼应挪威中世纪木结构教堂;内部使用白色染色木板形混凝土和穿孔黄铜。可持续策略包括屋顶竹管参考传统草皮屋顶,以及精确计算日光角度,优化能源效率与室内光影效果。 项目特色与启发 赫姆逊·克努特中心以建筑诠释文学,展示霍尔 Steven Holl 在文化建筑中的创新。项目对建筑师和设计师在跨学科整合、地域响应及可持续实践方面提供参考,强调建筑作为叙事媒介的潜力。 设计团队 霍尔 Steven Holl 是美国知名建筑事务所,以概念驱动设计和光影实验著称。团队在赫姆逊·克努特中心项目中主导整体构思,体现其对文化语境与空间诗意的深入探索,代表作包括西蒙斯厅和纳尔逊·阿特金斯艺术博物馆扩建。 项目概述 赫姆逊·克努特中心是位于挪威哈马尔岛普雷斯特德的文化建筑,由霍尔 Steven Holl 设计,建筑面积约2,500平方米。项目包括展览区、图书馆、阅读室、咖啡厅和礼堂,设计于2009年建成,服务于博物馆与社区用途。 设计理念 设计灵感源自克努特·汉姆生文学中对人类心灵的探索,概念为“建筑如身体:无形力量的战场”。霍尔 Steven Holl 将建筑视为空间与光线的精神压缩,引用文本元素如“空提琴盒”露台和“卷袖擦黄窗”阳台,强化文学与建筑的对话。 空间与功能 赫姆逊·克努特中心的空间组织以中央电梯为核心脊柱,连接各功能区。流线设计利用自然地形,半地下通道连接主楼与礼堂,确保自然采光。展览与公共区域布局灵活,支持文化活动和社区互动,塑造沉浸式体验。 材料与技术 建筑采用黑色焦油木材外皮,呼应挪威中世纪木结构教堂;内部使用白色染色木板形混凝土和穿孔黄铜。可持续策略包括屋顶竹管参考传统草皮屋顶,以及精确计算日光角度,优化能源效率与室内光影效果。 项目特色与启发 赫姆逊·克努特中心以建筑诠释文学,展示霍尔 Steven Holl 在文化建筑中的创新。项目对建筑师和设计师在跨学科整合、地域响应及可持续实践方面提供参考,强调建筑作为叙事媒介的潜力。 设计团队 霍尔 Steven Holl 是美国知名建筑事务所,以概念驱动设计和光影实验著称。团队在赫姆逊·克努特中心项目中主导整体构思,体现其对文化语境与空间诗意的深入探索,代表作包括西蒙斯厅和纳尔逊·阿特金斯艺术博物馆扩建。 本文来自 © 霍尔 | Steven Holl Architects, 发布于 © 建筑学院官方网站。 未经授权,禁止转载或摘编。 编辑版本版权归 © 建筑学院官方网站 所有, 设计、图纸及照片版权归设计方 © 霍尔 | Steven Holl Architects ↗ 所有。 查看作者在建筑学院发布的更多作品: 霍尔 | Steven Holl Architects @ 建筑学院官方网站 Knut Hamsun Center挪威博物馆文化建筑霍尔 Steven Holl 霍尔 | Steven Holl Architects事务所 & 设计师 下载原图 收藏 0 关于作者 霍尔 | Steven Holl Architects事务所 & 设计师 关注私信 22 文章 0 评论 0 粉丝 史蒂文·霍尔建筑事务所(Steven Holl Architects)是一家国际知名的建筑设计公司,以光线与空间的创新运用著称。代表作品包括堪萨斯城艺术博物馆扩建与北京Linked Hybrid等。 Menil绘画学院 / Menil Drawing Institute | MARKLEE 建筑事务所 上一篇 2025-11-02 下午12:50 查伦城堡游客中心 / Chillon Castle Visitor Center | Karamuk Kuo 建筑事务所 下一篇 2025-11-02 下午12:50 猜你喜欢 即时与即物的艺术 — 台州当代美术馆 | 大舍建筑 2018-08-01 建筑设计 普利兹克奖大师包赞巴克先生中国首作落成:上音歌剧院 2019-10-30 公共建筑设计 有浪 | 扬州慢×新华书店 / Wutopia Lab 2019-08-07 公共建筑设计 华茂艺术教育博物馆 / 阿尔瓦罗·西扎 + 卡洛斯·卡斯塔涅拉 2020-11-26 公共建筑设计 洛桑州立美术馆,工业时代的碎片化记忆 / BAROZZI VEIGA 2019-06-22 公共建筑设计 飞蔦集 • 松阳陈家铺,浙江 / gad · line+ studio 2018-12-11 住宅建筑设计 发表回复 请登录后评论...登录后才能评论 提交