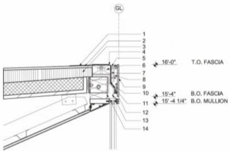
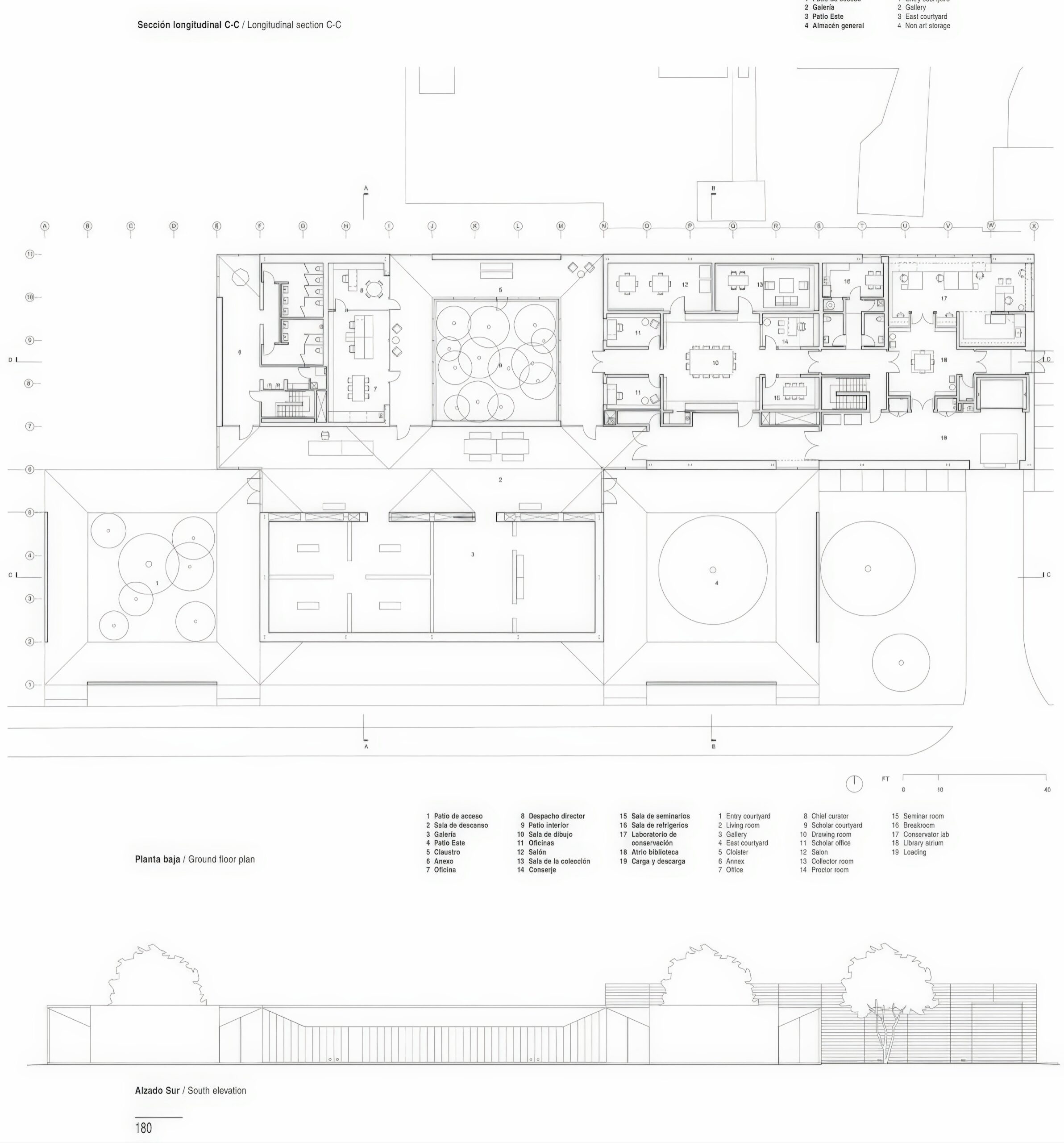
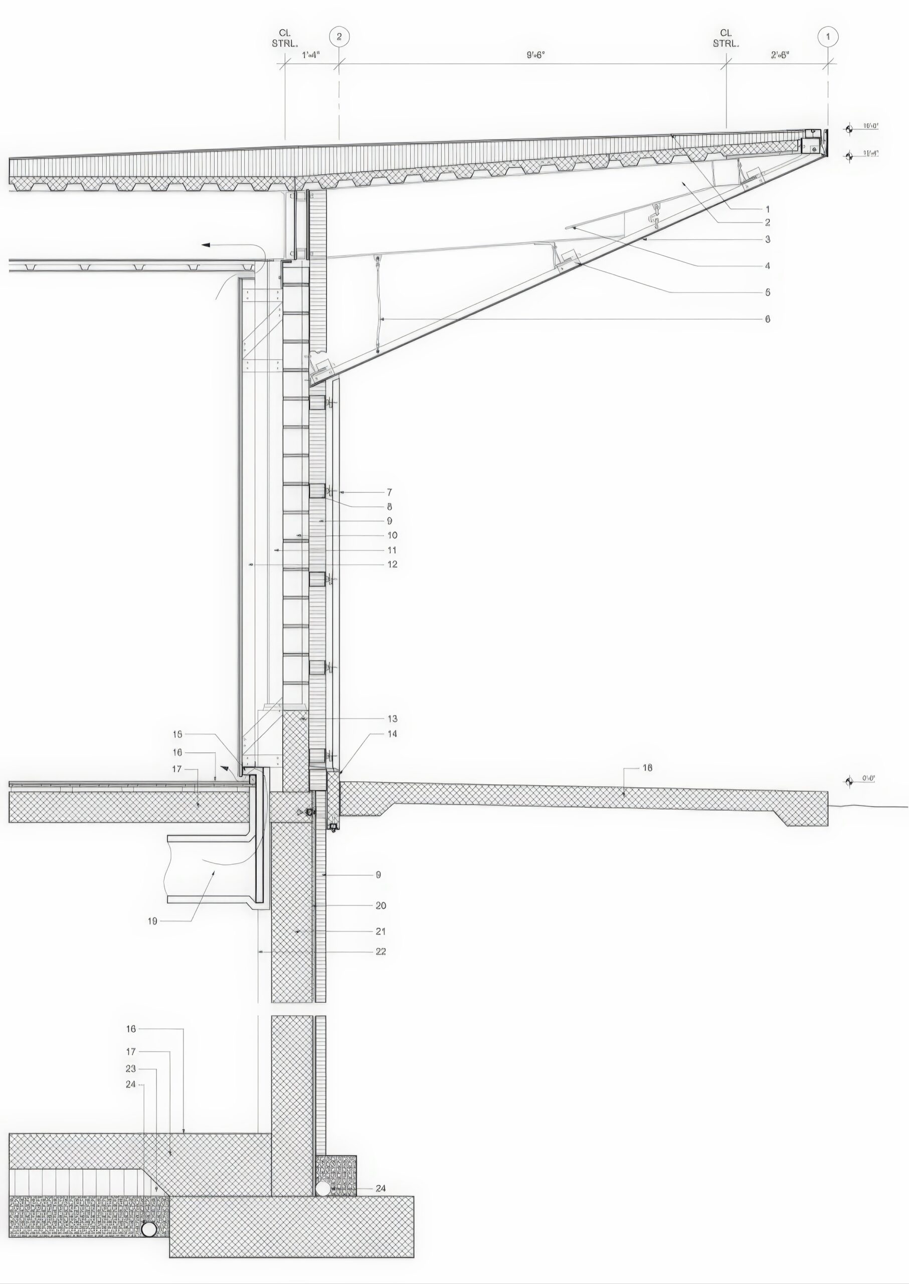
Menil绘画学院 / Menil Drawing Institute | MARKLEE 建筑事务所 MARKLEE 建筑事务所|MARKLEE • 2025-11-02 下午12:50 • 公共建筑设计, 建筑师设计, 建筑设计, 文化建筑设计 Menil绘画学院由MARKLEE建筑事务所设计,位于美国休斯顿Menil艺术园区内,是一座专门展示与研究绘画艺术的文化建筑。项目通过低矮延展的建筑体量与白色钢板屋顶,巧妙融合历史园区环境,创造亲密艺术体验空间。 设计: MARKLEE 建筑事务所|MARKLEE 类型: 文化建筑设计 功能: 博物馆 风格: 当代建筑 材料: 钢材 木材 玻璃 尺度: 小型建筑 地点:美国 时间: 2017年 项目概述 Menil绘画学院位于美国休斯顿Menil艺术园区中心,是一座专门用于绘画作品展示、研究与保护的文化建筑。项目占地12公顷,毗邻Cy Twombly展馆,设计采用低矮延展的建筑形态,与园区历史建筑群和谐共存。 设计理念 MARKLEE建筑事务所的设计理念源于对Menil园区亲密艺术体验传统的延续。通过白色钢板屋顶统合建筑体量,创造介于住宅尺度与博物馆尺度之间的建筑形态,既尊重历史环境又为未来发展预留空间。 空间与功能 Menil绘画学院采用村落式空间组织,各功能体量如展览画廊、绘画研究室、保护实验室、行政办公室等独立设置,通过庭院连接。中央休息厅作为核心枢纽,连接公共与私密区域,支持多种活动模式。 材料与技术 建筑采用白色钢板悬浮屋顶、深灰色雪松木板外墙与钢结构幕墙系统。设计特别关注光线控制,通过屋顶折叠面与侧窗引入柔和自然光,为光线敏感的绘画作品提供理想展示环境。 项目特色与启发 Menil绘画学院在建筑尺度、光线处理与空间组织上的创新,为文化建筑设计提供了新思路。项目展示了如何在历史环境中创造当代建筑,同时保持艺术体验的亲密性与直接性。 设计团队 MARKLEE建筑事务所是一家国际知名建筑设计机构,以文化建筑与艺术空间设计见长。事务所在Menil绘画学院项目中展现了其对建筑与环境关系的深刻理解,以及精致细腻的设计手法。 项目概述 Menil绘画学院位于美国休斯顿Menil艺术园区中心,是一座专门用于绘画作品展示、研究与保护的文化建筑。项目占地12公顷,毗邻Cy Twombly展馆,设计采用低矮延展的建筑形态,与园区历史建筑群和谐共存。 设计理念 MARKLEE建筑事务所的设计理念源于对Menil园区亲密艺术体验传统的延续。通过白色钢板屋顶统合建筑体量,创造介于住宅尺度与博物馆尺度之间的建筑形态,既尊重历史环境又为未来发展预留空间。 空间与功能 Menil绘画学院采用村落式空间组织,各功能体量如展览画廊、绘画研究室、保护实验室、行政办公室等独立设置,通过庭院连接。中央休息厅作为核心枢纽,连接公共与私密区域,支持多种活动模式。 材料与技术 建筑采用白色钢板悬浮屋顶、深灰色雪松木板外墙与钢结构幕墙系统。设计特别关注光线控制,通过屋顶折叠面与侧窗引入柔和自然光,为光线敏感的绘画作品提供理想展示环境。 项目特色与启发 Menil绘画学院在建筑尺度、光线处理与空间组织上的创新,为文化建筑设计提供了新思路。项目展示了如何在历史环境中创造当代建筑,同时保持艺术体验的亲密性与直接性。 设计团队 MARKLEE建筑事务所是一家国际知名建筑设计机构,以文化建筑与艺术空间设计见长。事务所在Menil绘画学院项目中展现了其对建筑与环境关系的深刻理解,以及精致细腻的设计手法。 本文来自 © MARKLEE 建筑事务所|MARKLEE, 发布于 © 建筑学院官方网站。 未经授权,禁止转载或摘编。 编辑版本版权归 © 建筑学院官方网站 所有, 设计、图纸及照片版权归设计方 © MARKLEE 建筑事务所|MARKLEE ↗ 所有。 查看作者在建筑学院发布的更多作品: MARKLEE 建筑事务所|MARKLEE @ 建筑学院官方网站 menil-drawing-institute休斯顿文化建筑绘画学院设计 MARKLEE 建筑事务所|MARKLEE事务所 & 设计师 下载原图 收藏 0 关于作者 MARKLEE 建筑事务所|MARKLEE事务所 & 设计师 关注私信 17 文章 0 评论 0 粉丝 MARKLEE建筑事务所是一家致力于提供前瞻性建筑与空间解决方案的国际化团队。我们秉持“设计重塑体验”的理念,擅长将客户独特需求与场地文脉相结合,通过严谨的逻辑与创意构思,打造兼具现代美学、实用价值与可持续性的建筑作品。从概念到落地,MARKLEE为您提供专业化、个性化的全程设计服务,共创卓越空间。 阿尔坎波查屋 / House in Alcobaça | 艾雷斯·马特乌斯建筑事务所 上一篇 2025-11-02 上午8:50 赫姆逊·克努特中心 / Knut Hamsun Center | 霍尔 Steven Holl 下一篇 2025-11-02 下午12:50 发表回复 请登录后评论...登录后才能评论 提交