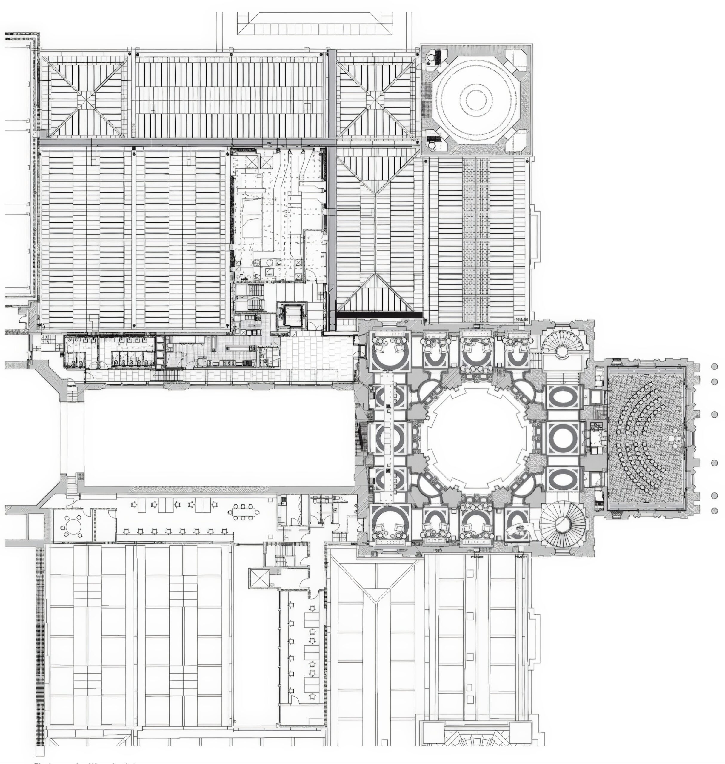
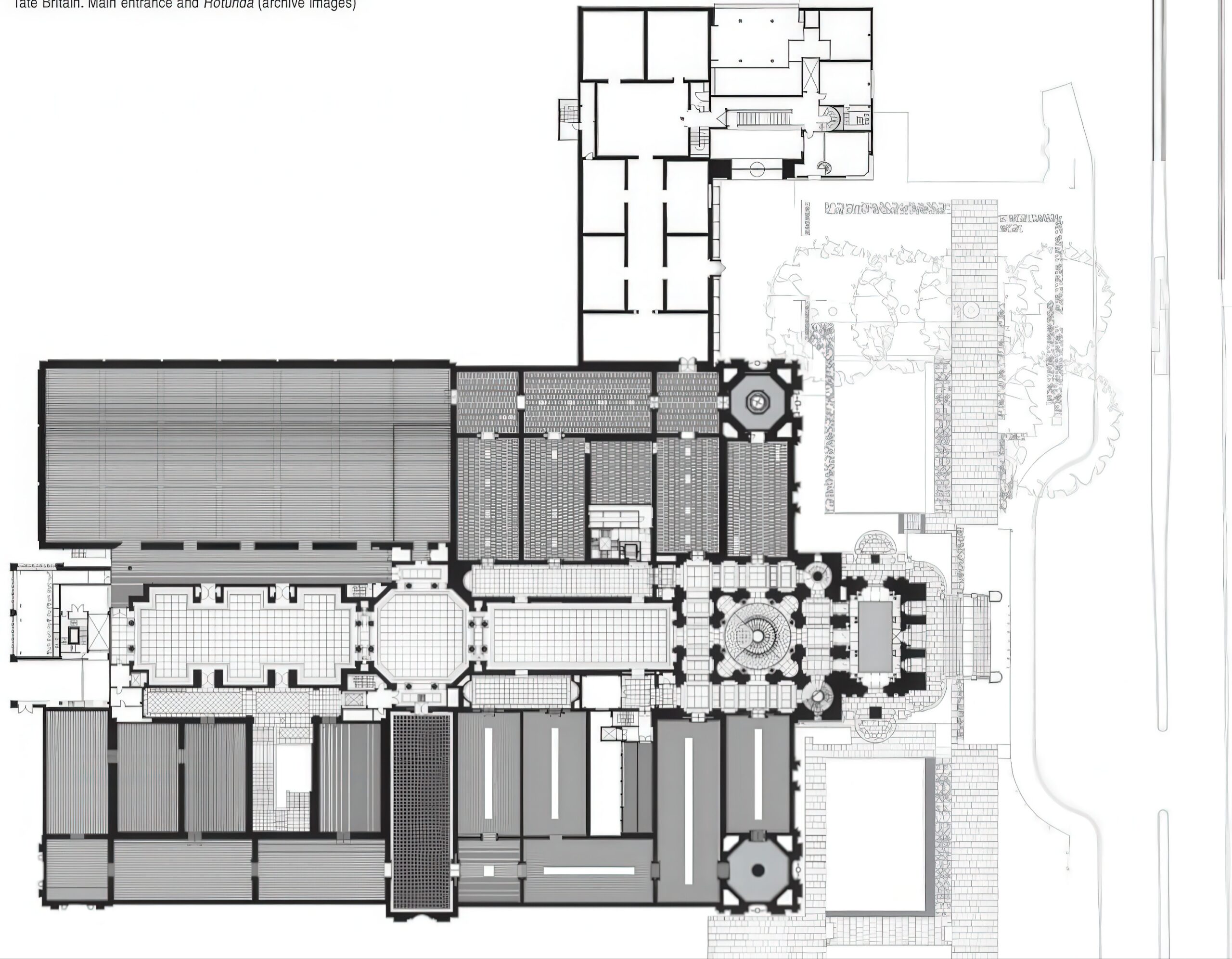
大英博物馆 Tate Britain | 卡鲁索·圣约翰建筑事务所|Caruso St John 卡鲁索·圣约翰建筑事务所|Caruso St John • 2025-11-05 下午12:50 • 公共建筑设计, 建筑师设计, 建筑设计, 文化建筑设计 大英博物馆Tate Britain位于英国伦敦,是重要的文化建筑设计项目。卡鲁索·圣约翰建筑事务所自2007年起负责该馆总体规划,分三阶段进行改造更新。第一阶段于2013年完成,重点修复历史展厅并改善环境控制系统,新增公共设施和垂直交通,实现了不同时期建筑风格的有机融合。 设计: 卡鲁索·圣约翰建筑事务所|Caruso St John 类型: 文化建筑设计 功能: 博物馆 风格: 当代建筑 材料: 混凝土 钢材 玻璃 石材 尺度: 大型建筑 地点:伦敦 时间: 2007年 项目简介 大英博物馆Tate Britain位于英国伦敦Millbank,是一座重要的文化建筑。项目始于2007年,第一阶段于2013年完成,涉及现有建筑的全面改造和功能升级。 设计理念 设计团队采用复杂而多层次的手法,尊重建筑原有的爱德华巴洛克、1930年代新古典主义和1970年代功能主义风格。新介入元素与历史语境和谐共存,旨在修复历代改造造成的割裂感,创造更加丰富统一的整体。 空间与功能 项目围绕Milbank入口处的圆形大厅重新组织流线,在三个公共楼层开辟新的交通空间,增设楼梯和电梯连接所有楼层。上层新建会员区可俯瞰泰晤士河,下层咖啡厅连接新露台和草坪,提升了公共使用体验。 材料与技术 在历史保护区域内整合可持续环境控制系统,修复东南象限最古老的展厅,将现代技术巧妙融入历史建筑肌理,实现节能与保护的平衡。 设计团队 卡鲁索·圣约翰建筑事务所是英国知名建筑事务所,擅长文化建筑改造与更新,以对历史建筑的细腻处理和现代介入著称。 项目简介 大英博物馆Tate Britain位于英国伦敦Millbank,是一座重要的文化建筑。项目始于2007年,第一阶段于2013年完成,涉及现有建筑的全面改造和功能升级。 设计理念 设计团队采用复杂而多层次的手法,尊重建筑原有的爱德华巴洛克、1930年代新古典主义和1970年代功能主义风格。新介入元素与历史语境和谐共存,旨在修复历代改造造成的割裂感,创造更加丰富统一的整体。 空间与功能 项目围绕Milbank入口处的圆形大厅重新组织流线,在三个公共楼层开辟新的交通空间,增设楼梯和电梯连接所有楼层。上层新建会员区可俯瞰泰晤士河,下层咖啡厅连接新露台和草坪,提升了公共使用体验。 材料与技术 在历史保护区域内整合可持续环境控制系统,修复东南象限最古老的展厅,将现代技术巧妙融入历史建筑肌理,实现节能与保护的平衡。 设计团队 卡鲁索·圣约翰建筑事务所是英国知名建筑事务所,擅长文化建筑改造与更新,以对历史建筑的细腻处理和现代介入著称。 本文来自 © 卡鲁索·圣约翰建筑事务所|Caruso St John, 发布于 © 建筑学院官方网站。 未经授权,禁止转载或摘编。 编辑版本版权归 © 建筑学院官方网站 所有, 设计、图纸及照片版权归设计方 © 卡鲁索·圣约翰建筑事务所|Caruso St John ↗ 所有。 查看作者在建筑学院发布的更多作品: 卡鲁索·圣约翰建筑事务所|Caruso St John @ 建筑学院官方网站 caruso st johnTate Britain伦敦建筑改造文化建筑 卡鲁索·圣约翰建筑事务所|Caruso St John事务所 & 设计师 下载原图 收藏 0 关于作者 卡鲁索·圣约翰建筑事务所|Caruso St John事务所 & 设计师 关注私信 12 文章 0 评论 0 粉丝 卡鲁索·圣约翰建筑事务所(Caruso St John)是成立于1990年的英国知名建筑事务所,由亚当·卡鲁索(Adam Caruso)和彼得·圣约翰(Peter St John)合伙创立。该事务所以其深刻的概念思考、对历史文脉的尊重及精湛的材料运用而闻名于世,致力于创造“可随岁月流转缓慢感知的、拥有情感内容的建筑”。其代表作——伦敦纽波特街美术馆(Newport Street Gallery)曾荣获2016年英国斯特林建筑奖,砖屋(Brick House)和沃尔索尔新艺术画廊等项目也曾入围该奖项。 尼安德特人博物馆 / Neanderthal Museum | 布兰德胡伯建筑事务所|Brandlhuber 上一篇 2025-11-05 下午12:50 镜像,风景的补白 / 地方工作室 下一篇 2025-11-05 下午8:13 猜你喜欢 从宣纸,笔墨,印章中提炼出沭阳美术馆 2018-07-10 公共建筑设计 利物浦歌剧院 Liverpool Philharmonic Hall | 卡鲁索·圣约翰建筑事务所|Caruso St John 2天前 公共建筑设计 南昌市八一公园梁书美术馆改造/XAA建筑事务所 2021-05-26 建筑设计 旧城新馆-安康图书馆改造 / UUA建筑师事务所 2020-11-02 建筑设计 卡普兰诺图书馆 / Patkau Architects + Group2 2021-09-14 建筑设计 将三个不同姿态的院子植入建筑,形成了一个隔而不绝的独立世界 — 丰盈·耕石艺术馆 2018-08-20 建筑设计 发表回复 请登录后评论...登录后才能评论 提交