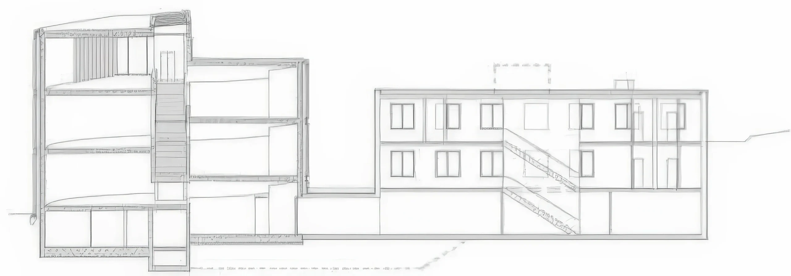
尼安德特人博物馆 / Neanderthal Museum | 布兰德胡伯建筑事务所|Brandlhuber 布兰德胡伯建筑事务所|Brandlhuber • 2025-11-05 下午12:50 • 公共建筑设计, 建筑师设计, 建筑设计, 文化建筑设计 尼安德特人博物馆由布兰德胡伯建筑事务所设计,位于德国杜塞尔多夫附近,是一座专注于人类进化主题的文化建筑。该博物馆通过螺旋式展览空间组织参观流线,巧妙结合历史叙事与建筑体验,展现当代博物馆设计的创新理念。 设计: 布兰德胡伯建筑事务所|Brandlhuber 类型: 文化建筑设计 功能: 博物馆 风格: 当代建筑 材料: 混凝土 钢材 玻璃 尺度: 中型建筑 地点:杜塞尔多夫 时间: 1996年 项目概述 尼安德特人博物馆位于德国杜塞尔多夫附近,是一座专注于人类进化主题的文化建筑。项目建筑面积约1000平方米,设计团队通过螺旋式空间组织回应了历史展览序列的需求,建筑于1996年建成开放。 设计理念 布兰德胡伯建筑事务所以“无尽螺旋”为核心概念,将人类进化历程与建筑空间体验完美结合。设计灵感来源于尼安德特人的发现历史,通过螺旋形展览路径象征人类发展的连续性,创造沉浸式的参观体验。 空间与功能 尼安德特人博物馆的空间组织以螺旋上升的展览流线为主导,从地下室的史前时代开始,逐层上升至顶层的现代人类展示。顶层设有咖啡厅、餐厅和大型观景窗,可欣赏周边森林景观。建筑还设置了线性楼梯和电梯等辅助流线,提供多样化的参观节奏。 材料与技术 建筑外立面采用U型玻璃幕墙,形成水平条纹的半透明反射效果。内部结构以裸露混凝土为主,对角线贯穿建筑的空心体量整合了主要功能系统,包括中央楼梯、消防通道、通风系统和结构加固,体现了功能与形式的统一。 项目特色与启发 尼安德特人博物馆以其独特的螺旋空间组织和材料对比而著称,为文化建筑提供了新的设计范式。布兰德胡伯建筑事务所在本项目中的创新实践,对博物馆设计和历史主题建筑具有重要的参考价值。 设计团队 布兰德胡伯建筑事务所是德国知名的建筑设计团队,以概念清晰、形式简洁的设计风格著称。事务所在文化建筑和公共空间设计领域具有丰富经验,尼安德特人博物馆是其代表作品之一。 项目概述 尼安德特人博物馆位于德国杜塞尔多夫附近,是一座专注于人类进化主题的文化建筑。项目建筑面积约1000平方米,设计团队通过螺旋式空间组织回应了历史展览序列的需求,建筑于1996年建成开放。 设计理念 布兰德胡伯建筑事务所以“无尽螺旋”为核心概念,将人类进化历程与建筑空间体验完美结合。设计灵感来源于尼安德特人的发现历史,通过螺旋形展览路径象征人类发展的连续性,创造沉浸式的参观体验。 空间与功能 尼安德特人博物馆的空间组织以螺旋上升的展览流线为主导,从地下室的史前时代开始,逐层上升至顶层的现代人类展示。顶层设有咖啡厅、餐厅和大型观景窗,可欣赏周边森林景观。建筑还设置了线性楼梯和电梯等辅助流线,提供多样化的参观节奏。 材料与技术 建筑外立面采用U型玻璃幕墙,形成水平条纹的半透明反射效果。内部结构以裸露混凝土为主,对角线贯穿建筑的空心体量整合了主要功能系统,包括中央楼梯、消防通道、通风系统和结构加固,体现了功能与形式的统一。 项目特色与启发 尼安德特人博物馆以其独特的螺旋空间组织和材料对比而著称,为文化建筑提供了新的设计范式。布兰德胡伯建筑事务所在本项目中的创新实践,对博物馆设计和历史主题建筑具有重要的参考价值。 设计团队 布兰德胡伯建筑事务所是德国知名的建筑设计团队,以概念清晰、形式简洁的设计风格著称。事务所在文化建筑和公共空间设计领域具有丰富经验,尼安德特人博物馆是其代表作品之一。 本文来自 © 布兰德胡伯建筑事务所|Brandlhuber, 发布于 © 建筑学院官方网站。 未经授权,禁止转载或摘编。 编辑版本版权归 © 建筑学院官方网站 所有, 设计、图纸及照片版权归设计方 © 布兰德胡伯建筑事务所|Brandlhuber ↗ 所有。 查看作者在建筑学院发布的更多作品: 布兰德胡伯建筑事务所|Brandlhuber @ 建筑学院官方网站 Neanderthal Museum博物馆设计布兰德胡伯建筑事务所文化建筑 布兰德胡伯建筑事务所|Brandlhuber事务所 & 设计师 下载原图 收藏 0 关于作者 布兰德胡伯建筑事务所|Brandlhuber事务所 & 设计师 关注私信 8 文章 0 评论 0 粉丝 布兰德胡伯建筑事务所(Brandlhuber+)由阿尔诺·布兰德胡伯(Arno Brandlhuber)于2006年在柏林创立。事务所以其协作性、研究驱动的实践而闻名,工作涵盖建筑、研究项目、展览、出版物及政治介入。其标志性项目“Antivilla”(由废弃内衣工厂改造而成)体现了其对现有建筑改造、可持续性及成本效益的独特探索,并擅长运用混凝土等材料创造灵活、开放的空间。 爱茉莉太平洋总部 Amorepacific Headquarters | 大卫·奇珀菲尔德建筑事务所|David Chipperfield 上一篇 2025-11-05 下午12:50 大英博物馆 Tate Britain | 卡鲁索·圣约翰建筑事务所|Caruso St John 下一篇 2025-11-05 下午12:50 猜你喜欢 回溯五千年前的人类文明:台南史前博物馆 / 姚仁喜 | 大元建筑工场 2019-08-11 建筑设计 塞尔维亚爱乐音乐厅 / AL_A 联合体 2023-03-22 公共建筑设计 盒子套盒子,一次工业仓库的文化新生 2018-02-06 文化建筑设计 Snøhetta新作:依山就势,绵延起伏的博尔扎诺新博物馆园区 2019-03-04 建筑设计 顾正红纪念馆扩建 / 上海中森止境设计工作室 2021-07-31 公共建筑设计 深圳红树林湿地博物馆竞赛入围方案 / 局内建筑+普罗建筑+柏涛景观 2020-12-31 建筑设计 发表回复 请登录后评论...登录后才能评论 提交