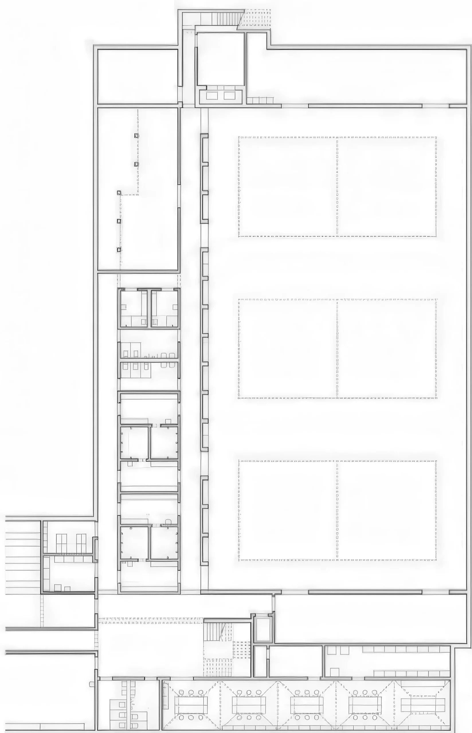
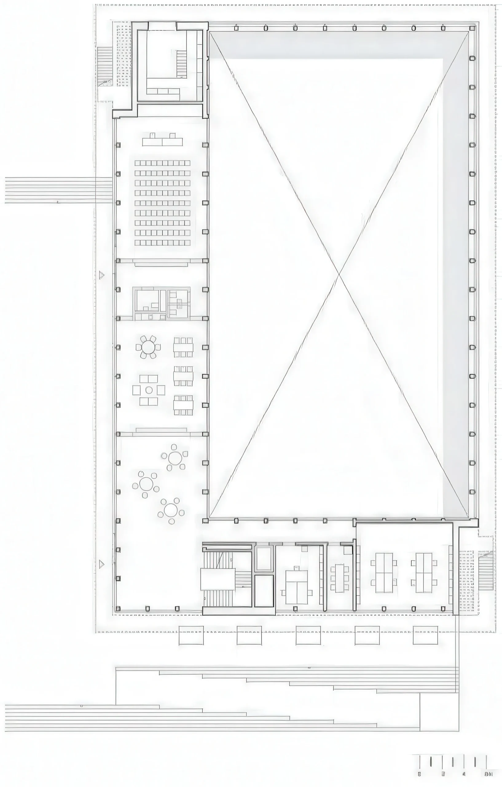
Weiden 中学 / Weiden Secondary School | Karamuk Kuo 建筑事务所 Karamuk Kuo 建筑事务所 • 2025-11-07 下午12:50 • 公共建筑设计, 建筑师设计, 建筑设计, 文化建筑设计 Weiden 中学由 Karamuk Kuo 建筑事务所在瑞士设计,通过紧凑的垂直布局将24间教室堆叠在半地下体育馆之上,既保留了校园的公园氛围,又为分散的建筑群建立了清晰的集体身份。该项目展现了在资源经济下的空间回收与丰富体验的平衡。 设计: Karamuk Kuo 建筑事务所 类型: 文化建筑设计 功能: 体育馆 风格: 当代建筑 材料: 混凝土 钢材 玻璃 尺度: 中型建筑 地点:瑞士 时间: 2013年 项目概述 Weiden 中学位于瑞士,是一座教育建筑扩建项目,由 Karamuk Kuo 建筑事务所于2013年竞赛获胜后设计。项目在原校园基础上新增24间教室、双层体育馆、集会厅及行政空间,通过垂直堆叠策略在有限场地内实现功能整合,同时维护校园的绿色环境特征。 设计理念 设计核心在于以最小化环境影响回应场地特征,通过单一体量集中布置功能,既避免破坏校园公园般的氛围,又为原有松散建筑群引入必要的层次感。新建 Weiden 中学成为整个校园的逻辑锚点,明确界定开放空间边界,并将原有基座转化为真正的中央广场。 空间与功能 地面层布置公共空间如门厅、集会厅和教师休息室,环绕双层体育馆形成视觉交流与功能互动。上层教室围绕中央大厅布置,通过四个庭院软性划分空间,创造从私密阅读角落到集体聚会区域的序列体验。教室采用连续排列方式,可实现灵活配对使用。 材料与技术 建筑基础采用混凝土结构,上部两层教室使用木材以减轻重量。暴露的梁结构形成韵律感,从混凝土体育馆延伸至木结构教室,外部阳台环廊使教室可直接通往室外,同时解放室内消防规范限制,实现中央大厅的灵活使用。 项目特色与启发 Weiden 中学项目展示了如何在紧凑布局中赢得空间品质,将通常隐藏的体育馆转变为校园生活中心。其未明确编程的中央大厅成为适应未来教学变化的弹性空间,为教育建筑设计提供了资源优化与空间体验并重的创新范式。 设计团队 Karamuk Kuo 建筑事务所是一家专注于建筑与城市设计的瑞士事务所,以对场地文脉的敏锐回应和建构逻辑的清晰表达著称。事务所在教育建筑、文化设施等领域拥有丰富经验,Weiden 中学项目体现了其将程序需求转化为丰富空间体验的设计能力。 项目概述 Weiden 中学位于瑞士,是一座教育建筑扩建项目,由 Karamuk Kuo 建筑事务所于2013年竞赛获胜后设计。项目在原校园基础上新增24间教室、双层体育馆、集会厅及行政空间,通过垂直堆叠策略在有限场地内实现功能整合,同时维护校园的绿色环境特征。 设计理念 设计核心在于以最小化环境影响回应场地特征,通过单一体量集中布置功能,既避免破坏校园公园般的氛围,又为原有松散建筑群引入必要的层次感。新建 Weiden 中学成为整个校园的逻辑锚点,明确界定开放空间边界,并将原有基座转化为真正的中央广场。 空间与功能 地面层布置公共空间如门厅、集会厅和教师休息室,环绕双层体育馆形成视觉交流与功能互动。上层教室围绕中央大厅布置,通过四个庭院软性划分空间,创造从私密阅读角落到集体聚会区域的序列体验。教室采用连续排列方式,可实现灵活配对使用。 材料与技术 建筑基础采用混凝土结构,上部两层教室使用木材以减轻重量。暴露的梁结构形成韵律感,从混凝土体育馆延伸至木结构教室,外部阳台环廊使教室可直接通往室外,同时解放室内消防规范限制,实现中央大厅的灵活使用。 项目特色与启发 Weiden 中学项目展示了如何在紧凑布局中赢得空间品质,将通常隐藏的体育馆转变为校园生活中心。其未明确编程的中央大厅成为适应未来教学变化的弹性空间,为教育建筑设计提供了资源优化与空间体验并重的创新范式。 设计团队 Karamuk Kuo 建筑事务所是一家专注于建筑与城市设计的瑞士事务所,以对场地文脉的敏锐回应和建构逻辑的清晰表达著称。事务所在教育建筑、文化设施等领域拥有丰富经验,Weiden 中学项目体现了其将程序需求转化为丰富空间体验的设计能力。 本文来自 © Karamuk Kuo 建筑事务所, 发布于 © 建筑学院官方网站。 未经授权,禁止转载或摘编。 编辑版本版权归 © 建筑学院官方网站 所有, 设计、图纸及照片版权归设计方 © Karamuk Kuo 建筑事务所 ↗ 所有。 查看作者在建筑学院发布的更多作品: Karamuk Kuo 建筑事务所 @ 建筑学院官方网站 Weiden Secondary School教育建筑设计校园扩建瑞士学校建筑 Karamuk Kuo 建筑事务所事务所 & 设计师 下载原图 收藏 0 关于作者 Karamuk Kuo 建筑事务所事务所 & 设计师 关注私信 17 文章 0 评论 0 粉丝 杭州音乐博物馆 / Hangzhou Music Museum | 霍尔 Steven Holl 上一篇 2025-11-07 下午12:50 斯普林贝希特尔大厦 / Spreitenbach Town Hall | Karamuk Kuo 建筑事务所 下一篇 2025-11-07 下午12:50 猜你喜欢 波哥尼大学城市校园 / Bocconi University Urban Campus | SANAA 2026-03-15 公共建筑设计 陶土展馆 / Clay Pavilion in Oaxaca | 阿尔瓦罗·西扎|Álvaro Siza 2026-03-05 公共建筑设计 Vila Nova da Barquinha学校 / School in Vila Nova da Barquinha | 艾雷斯·马特乌斯建筑事务所|Aires Mateus 2025-11-16 公共建筑设计 舞与文本设计学院的扩展,伯尔尼 / Extension for the School of Dance and Textile Design, Bern | 巴罗齐与维加建筑事务所|Barozzi Veiga 2025-11-14 公共建筑设计 特鲁尼建筑学院 / Architecture Faculty in Tournai | 艾雷斯·马特乌斯建筑事务所 2025-11-14 公共建筑设计 哥本哈根大学新建建筑 New Buildings for the University of Gothenburg | 谭姆与维德高德建筑事务所|Tham & Videgård 2025-11-09 公共建筑设计 发表回复 请登录后评论...登录后才能评论 提交