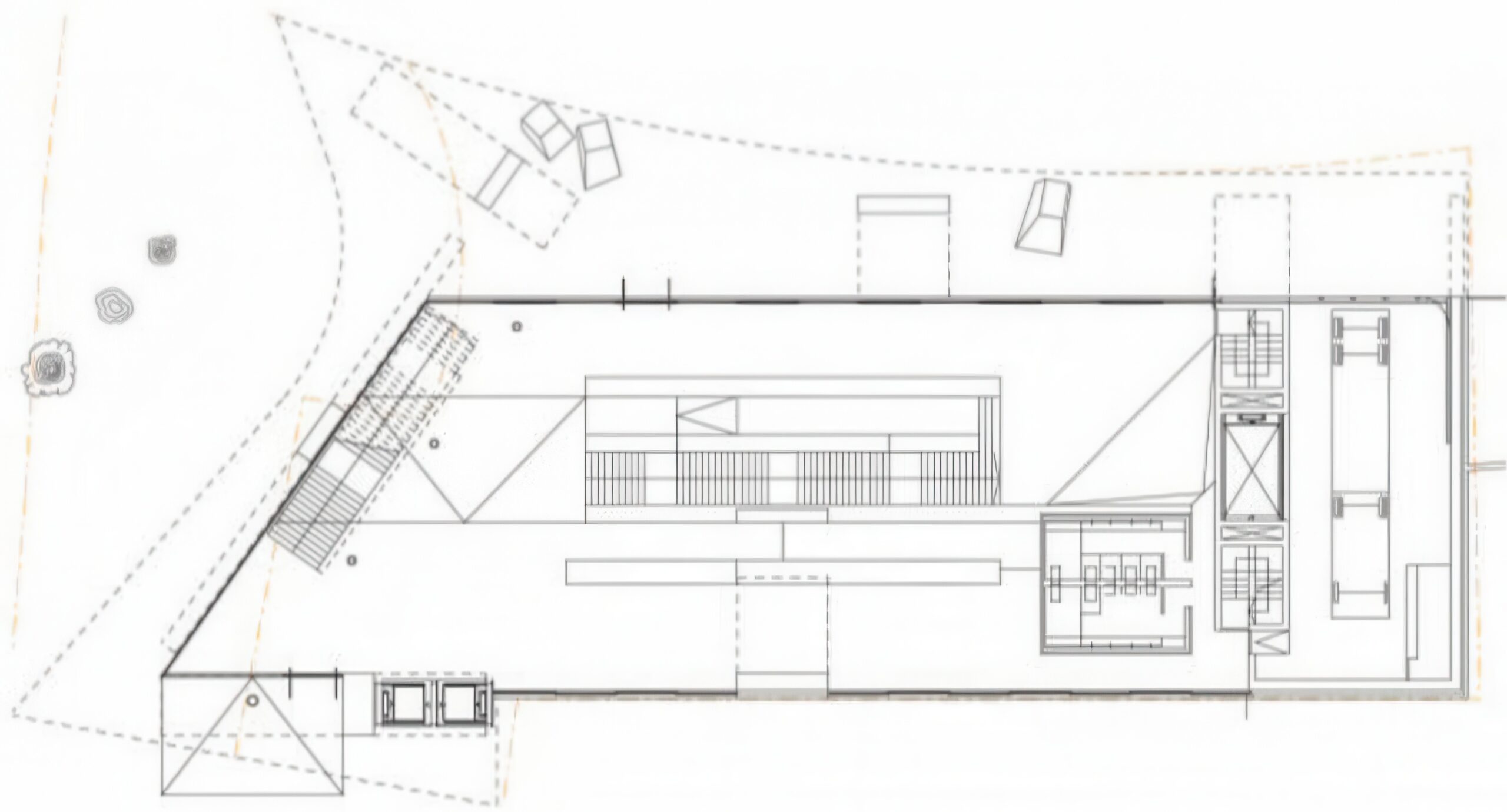
贝耶勒基金会 Beyeler Foundation | 斯米里扬·拉迪奇|Smiljan Radić 斯米里扬·拉迪奇|Smiljan Radić • 2025-11-07 下午12:50 • 公共建筑设计, 建筑师设计, 建筑设计, 文化建筑设计 贝耶勒基金会博物馆扩建项目由斯米里扬·拉迪奇设计,位于瑞士巴塞尔。该项目采用独特的“木屋置于巨桌”概念,创造了一个连接城市与乡村景观的边界空间。设计通过硬质石材广场连接两个公园,将自然景观延伸至建筑内部,营造宁静而富有情感的艺术体验空间。 设计: 斯米里扬·拉迪奇|Smiljan Radić 类型: 文化建筑设计 功能: 独立住宅 风格: 现代主义 材料: 钢材 木材 玻璃 石材 尺度: 中型建筑 地点:瑞士 时间: 2023年 项目简介 贝耶勒基金会博物馆扩建项目位于瑞士巴塞尔,是一座文化建筑扩建工程。项目占地面积约2000平方米,设计于2023年,旨在扩展原有博物馆的展览与公共功能。 设计理念 斯米里扬·拉迪奇以“巨桌上的木屋”为核心理念,创造了一个既沉默又平静的建筑形态。设计延续了伦佐·皮亚诺原馆的自然融合策略,通过移除场地现有建筑,建立新的空间连续性,强化建筑与周边景观的情感连接。 空间与功能 建筑首层设置开放式广场,连接Iselin-Weber公园与Brower公园。空间组织注重行人流线的连续性,内部展厅与外部景观形成自然延伸。James Turrell的Skyspace艺术装置融入绿化区域,增强了空间的艺术体验。 材料与技术 项目采用层压木材、钢材和本地石材等材料。结构系统结合钢梁与木构架,玻璃幕墙系统采用防反射双层玻璃。可持续策略包括保留现有树木、增加同种树种,以及使用热绝缘和隔音材料。 设计团队 斯米里扬·拉迪奇是智利知名建筑师,以其独特的雕塑性建筑语言和对材料的大胆运用著称。他的作品常探索建筑与自然景观的关系,在文化建筑领域具有重要影响力。 项目简介 贝耶勒基金会博物馆扩建项目位于瑞士巴塞尔,是一座文化建筑扩建工程。项目占地面积约2000平方米,设计于2023年,旨在扩展原有博物馆的展览与公共功能。 设计理念 斯米里扬·拉迪奇以“巨桌上的木屋”为核心理念,创造了一个既沉默又平静的建筑形态。设计延续了伦佐·皮亚诺原馆的自然融合策略,通过移除场地现有建筑,建立新的空间连续性,强化建筑与周边景观的情感连接。 空间与功能 建筑首层设置开放式广场,连接Iselin-Weber公园与Brower公园。空间组织注重行人流线的连续性,内部展厅与外部景观形成自然延伸。James Turrell的Skyspace艺术装置融入绿化区域,增强了空间的艺术体验。 材料与技术 项目采用层压木材、钢材和本地石材等材料。结构系统结合钢梁与木构架,玻璃幕墙系统采用防反射双层玻璃。可持续策略包括保留现有树木、增加同种树种,以及使用热绝缘和隔音材料。 设计团队 斯米里扬·拉迪奇是智利知名建筑师,以其独特的雕塑性建筑语言和对材料的大胆运用著称。他的作品常探索建筑与自然景观的关系,在文化建筑领域具有重要影响力。 本文来自 © 斯米里扬·拉迪奇|Smiljan Radić, 发布于 © 建筑学院官方网站。 未经授权,禁止转载或摘编。 编辑版本版权归 © 建筑学院官方网站 所有, 设计、图纸及照片版权归设计方 © 斯米里扬·拉迪奇|Smiljan Radić ↗ 所有。 查看作者在建筑学院发布的更多作品: 斯米里扬·拉迪奇|Smiljan Radić @ 建筑学院官方网站 博物馆扩建巴塞尔斯米里扬·拉迪奇木材结构贝耶勒基金会 斯米里扬·拉迪奇|Smiljan Radić事务所 & 设计师 下载原图 收藏 0 关于作者 斯米里扬·拉迪奇|Smiljan Radić事务所 & 设计师 关注私信 19 文章 0 评论 0 粉丝 斯米里扬·拉迪奇(Smiljan Radić)是智利最具代表性的当代建筑师之一,以其独特的形式探索、材料创新及与自然环境的深刻对话而闻名。他1965年生于圣地亚哥,毕业于智利天主教大学,1995年创立个人事务所。拉迪克的作品多聚焦于中小型建筑,擅长通过手工生产与非工业材料展现建筑的"脆弱性"与临时感。其最广为人知的作品是2014年为伦敦蛇形画廊设计的展馆,被形容为"栖息于新石器时代遗址的外星太空舱"。其他重要项目包括Mestizo餐厅、VIK酒庄及铜屋二号等,其设计常融入巨石、粗糙混凝土等元素,在景观中创造既原始又诗意的空间体验。 斯普林贝希特尔大厦 / Spreitenbach Town Hall | Karamuk Kuo 建筑事务所 上一篇 2025-11-07 下午12:50 西安国际足球中心 / 扎哈事务所新作 下一篇 2025-11-07 下午10:54 猜你喜欢 圣地亚哥广播塔 Antenna Tower Santiago | 斯米里扬·拉迪奇|Smiljan Radić 2025-11-04 建筑设计 哥伦比亚艺术 Columbian Art | 斯米里扬·拉迪奇|Smiljan Radić 2025-12-08 公共建筑设计 物理花园3实验室楼 ‘Physic Garden 3’Laboratory Building | 德莫拉建筑事务所|De Mora 2025-11-24 公共建筑设计 8分钟克莱内尔 Pavilion 8 Minutes… Celiné Pavilion | 斯米里扬·拉迪奇|Smiljan Radić 2025-11-28 公共建筑设计 麦昆阿历山大系列项目 Alexander McQueen Project | 斯米里扬·拉迪奇|Smiljan Radić 2025-12-11 室内设计 俄罗斯项目 Russo Project | 斯米里扬·拉迪奇|Smiljan Radić 2025-11-29 公共建筑设计 发表回复 请登录后评论...登录后才能评论 提交