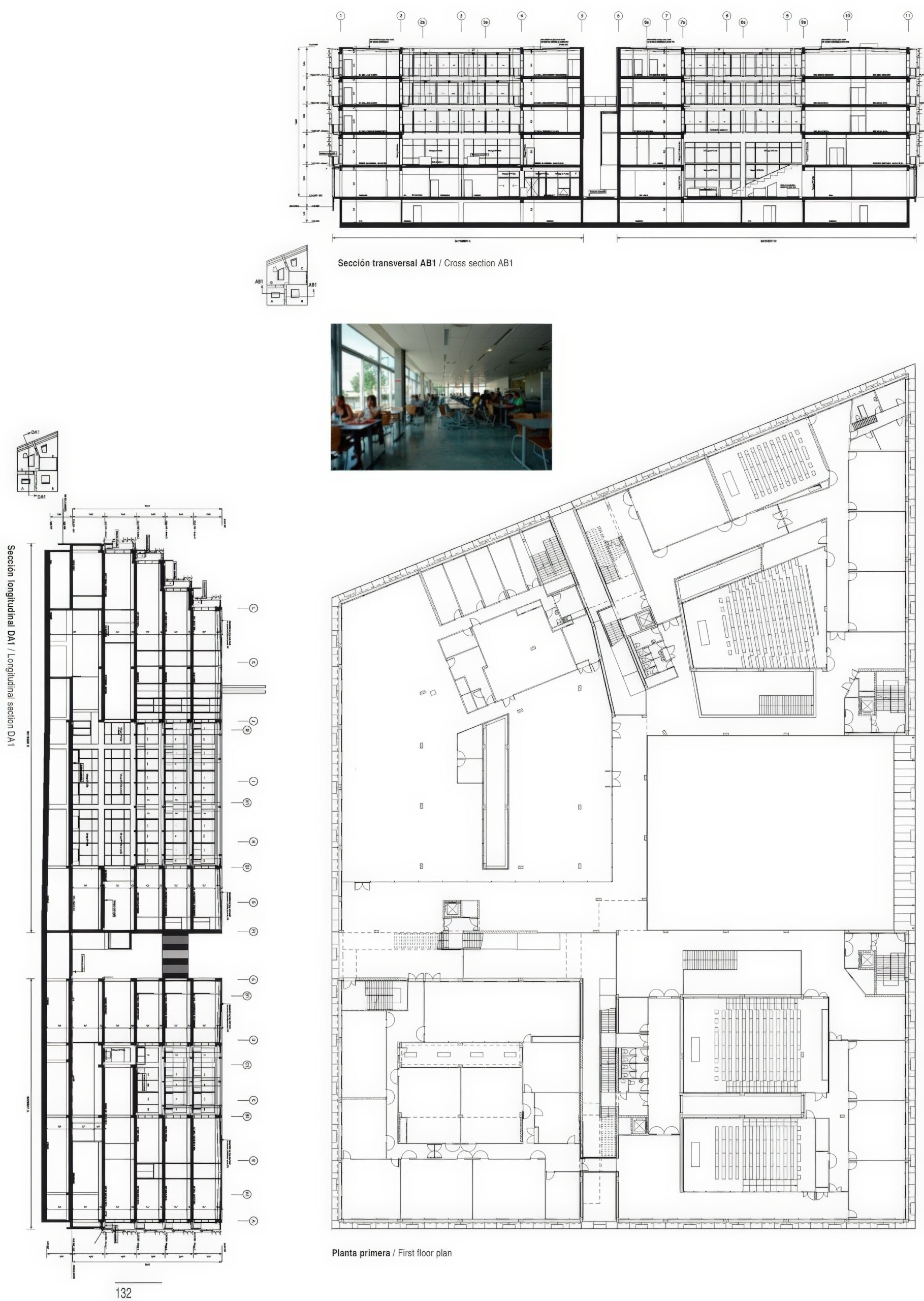
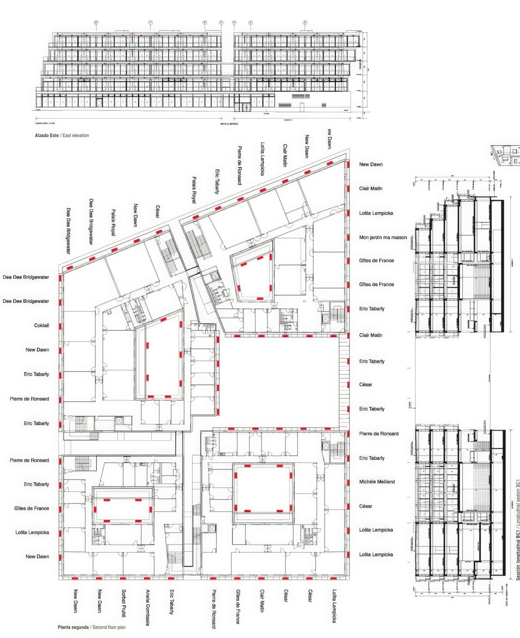
巴伦西亚管理科学大学 Management Science University, Bourdeaux | 拉卡东与瓦萨尔建筑师事务所|Lacaton & Vassal 拉卡东与瓦萨尔建筑师事务所|Lacaton & Vassal • 2025-11-10 上午8:50 • 公共建筑设计, 建筑师设计, 建筑设计, 文化建筑设计 巴伦西亚管理科学大学位于法国波尔多,由拉卡东与瓦萨尔建筑师事务所设计。该项目由四栋教育建筑组成,围绕中央广场布局,采用预制混凝土结构和全玻璃幕墙。设计通过外部遮阳系统和环绕阳台的玫瑰种植,实现了热舒适性与空间诗意的完美结合。 设计: 拉卡东与瓦萨尔建筑师事务所|Lacaton & Vassal 类型: 文化建筑设计 功能: 学校 风格: 当代建筑 材料: 混凝土 钢材 玻璃 尺度: 中型建筑 地点:法国 时间: 2013年 项目简介 巴伦西亚管理科学大学位于法国波尔多,是一座教育建筑综合体,由四栋建筑组成,围绕中央广场布局。项目采用系统化的城市肌理设计,建筑面积规模适中,设计建成于当代。 设计理念 设计团队以”密集城市岛”为概念,在发展中城区构建系统化的建筑群。核心策略是通过灵活的预制结构体系和精密的被动式设计,实现经济性与舒适性的平衡,同时以玫瑰种植阳台营造诗意空间体验。 空间与功能 四栋建筑围绕中央广场组织,设有内部通道和多层庭院。地面层和一层设置公共服务和餐厅,二层及以上为各大学部门。环绕建筑的阳台不仅提供休憩空间,还便于玻璃清洁和玫瑰种植。 材料与技术 结构采用预制清水混凝土构件(柱、梁、大板),形成经济灵活的建筑系统。外立面为全玻璃幕墙,配合外部可调节遮阳装置,有效控制室内热环境。阳台设置自动灌溉的玫瑰种植系统。 设计团队 拉卡东与瓦萨尔建筑师事务所以经济实用主义和人性化设计著称,专注于社会住宅和教育建筑领域,擅长通过创新构造和被动式设计策略实现高品质低成本建筑。 项目简介 巴伦西亚管理科学大学位于法国波尔多,是一座教育建筑综合体,由四栋建筑组成,围绕中央广场布局。项目采用系统化的城市肌理设计,建筑面积规模适中,设计建成于当代。 设计理念 设计团队以”密集城市岛”为概念,在发展中城区构建系统化的建筑群。核心策略是通过灵活的预制结构体系和精密的被动式设计,实现经济性与舒适性的平衡,同时以玫瑰种植阳台营造诗意空间体验。 空间与功能 四栋建筑围绕中央广场组织,设有内部通道和多层庭院。地面层和一层设置公共服务和餐厅,二层及以上为各大学部门。环绕建筑的阳台不仅提供休憩空间,还便于玻璃清洁和玫瑰种植。 材料与技术 结构采用预制清水混凝土构件(柱、梁、大板),形成经济灵活的建筑系统。外立面为全玻璃幕墙,配合外部可调节遮阳装置,有效控制室内热环境。阳台设置自动灌溉的玫瑰种植系统。 设计团队 拉卡东与瓦萨尔建筑师事务所以经济实用主义和人性化设计著称,专注于社会住宅和教育建筑领域,擅长通过创新构造和被动式设计策略实现高品质低成本建筑。 本文来自 © 拉卡东与瓦萨尔建筑师事务所|Lacaton & Vassal, 发布于 © 建筑学院官方网站。 未经授权,禁止转载或摘编。 编辑版本版权归 © 建筑学院官方网站 所有, 设计、图纸及照片版权归设计方 © 拉卡东与瓦萨尔建筑师事务所|Lacaton & Vassal ↗ 所有。 查看作者在建筑学院发布的更多作品: 拉卡东与瓦萨尔建筑师事务所|Lacaton & Vassal @ 建筑学院官方网站 巴伦西亚管理科学大学拉卡东与瓦萨尔教育建筑波尔多预制混凝土 拉卡东与瓦萨尔建筑师事务所|Lacaton & Vassal事务所 & 设计师 下载原图 收藏 0 关于作者 拉卡东与瓦萨尔建筑师事务所|Lacaton & Vassal事务所 & 设计师 关注私信 7 文章 0 评论 0 粉丝 拉卡东与瓦萨尔建筑师事务所由安妮·拉卡东与让-菲利普·瓦萨尔于1987年在巴黎创立,是2021年普利兹克建筑奖获得者。他们以“永不拆毁”为核心原则,擅长通过改造与增建,赋予旧建筑(尤其是社会住宅)新生,并以其低成本、可持续的策略,运用经济生态材料(如温室技术的聚碳酸酯面板)为空间引入充裕的光线与自由使用的可能性。其代表作包括波尔多大公园区住宅改造(获2019年密斯·凡·德罗奖)及巴黎东京宫改造。 蓬皮奥购物中心修复项目 Renovation of Galeries Lafayette, Pau | 布鲁瑟建筑事务所|Bruther 上一篇 2025-11-10 上午8:50 胡夫金字塔 | 经典建筑 下一篇 2025-11-10 下午2:45 猜你喜欢 旋转45度,校园食堂与媒体中心 / wulf architekten 2022-05-05 建筑设计 苏州科技城天佑实验小学及幼儿园 / BAU 2021-09-10 建筑设计 23套住宅,特龙卡 23 Housing Units, Trignac | 拉卡东与瓦萨尔建筑师事务所|Lacaton & Vassal 2025-11-12 公共建筑设计 江苏省南京市文齐路小学 / 荣朝晖工作室 2024-02-01 建筑设计 开园即满园 ,位于云南蒙自,满载梦想的“纸飞机幼儿园”终于起航了! 2021-03-12 建筑设计 昆山杜克大学二期校园 / Perkins&Will 2023-08-17 建筑设计 发表回复 请登录后评论...登录后才能评论 提交