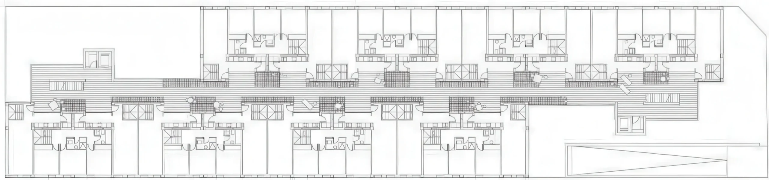
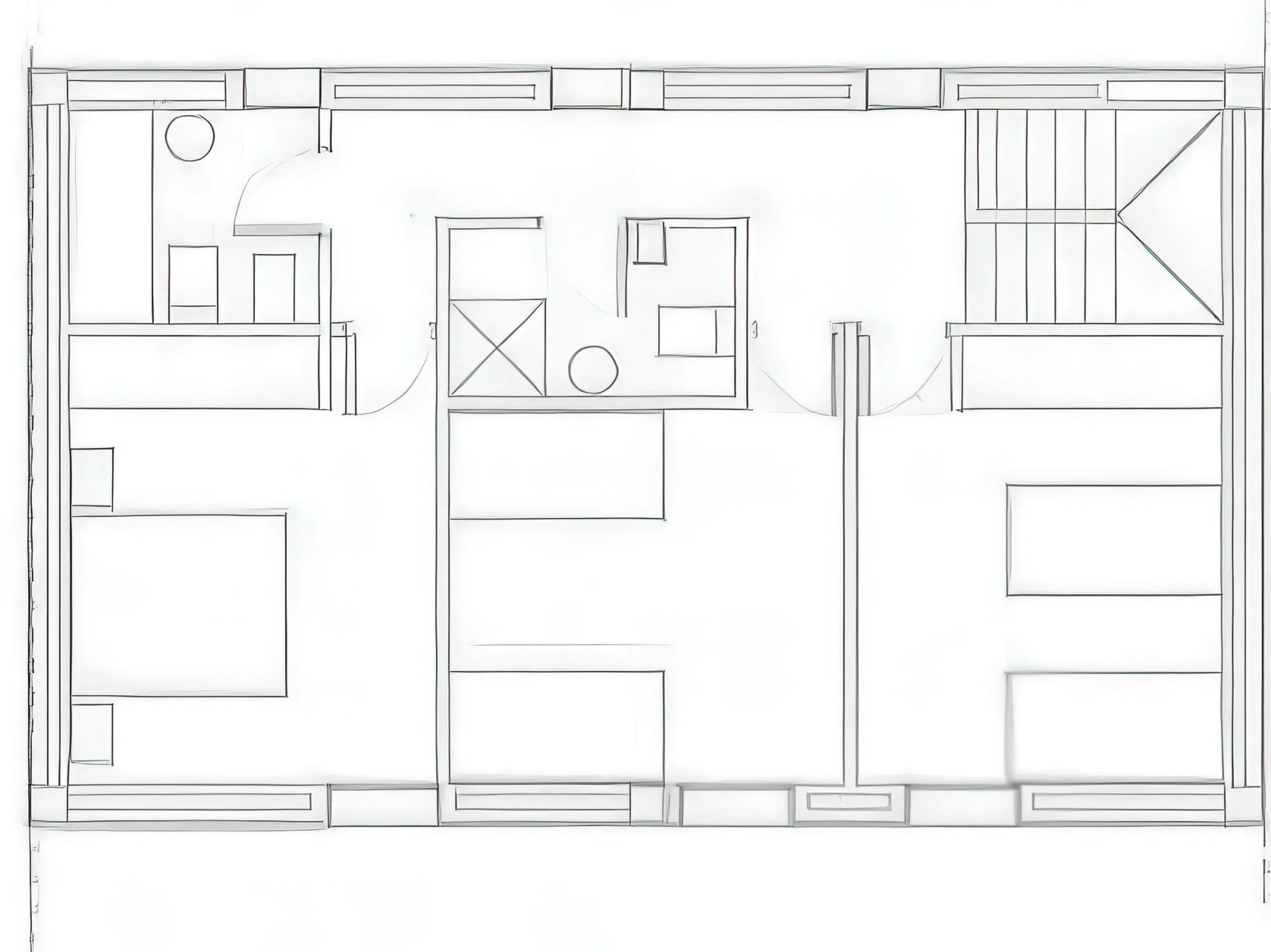
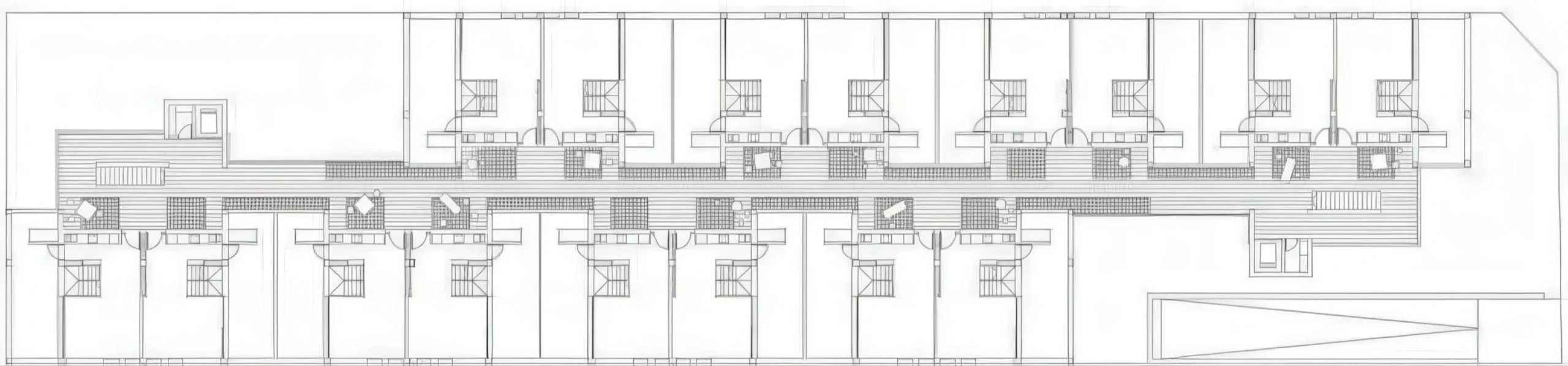
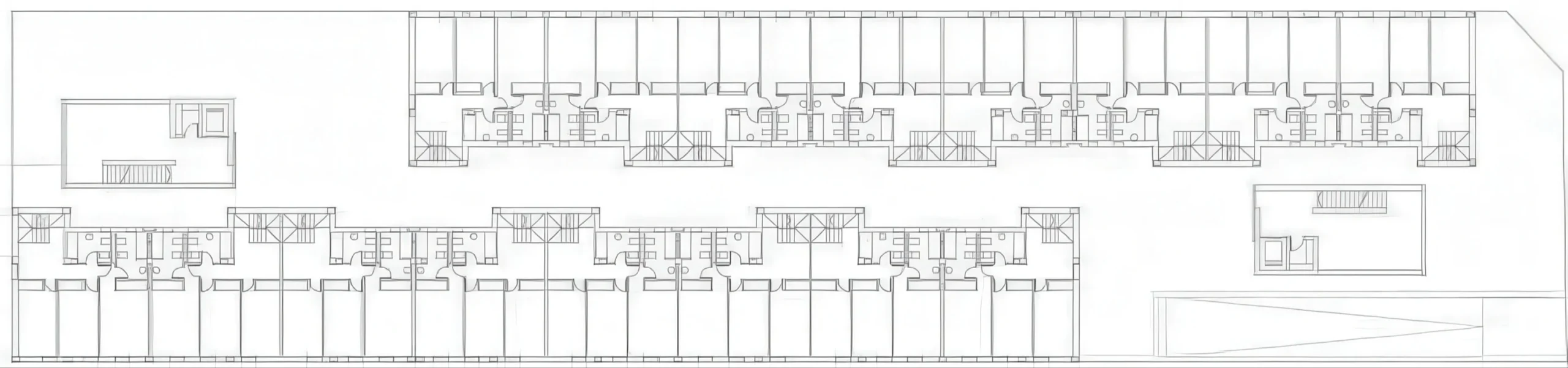
32社交住宅于圣维泽德拉斯帕利戈 / 32 Social Dwellings in San Vicente del Raspeig | 阿尔弗雷多·帕亚|Alfredo Payá 阿尔弗雷多·帕亚|Alfredo Payá • 2025-11-13 上午8:50 • 公共建筑设计, 建筑师设计, 建筑设计, 文化建筑设计 32社交住宅于圣维泽德拉斯帕利戈由阿尔弗雷多·帕亚设计,位于西班牙阿利坎特圣维森特-德尔拉斯佩格,是一个社会住宅项目。该项目通过两个平行体块的错位布局,创造了丰富的公共空间与私人住宅的平衡,体现了地中海生活方式的集体空间理念。 设计: 阿尔弗雷多·帕亚|Alfredo Payá 类型: 文化建筑设计 功能: 公寓住宅 风格: 当代建筑 材料: 混凝土 钢材 玻璃 尺度: 中型建筑 地点:阿利坎特 时间: 2012年 项目概述 32社交住宅于圣维泽德拉斯帕利戈位于西班牙阿利坎特圣维森特-德尔拉斯佩格,是一个社会住宅项目,由阿尔弗雷多·帕亚设计。项目包含32套住宅单元,设计于2003年,建成于2012年,通过创新的空间组织回应了社会住宅的集体需求。 设计理念 阿尔弗雷多·帕亚的设计理念聚焦于创造活跃的集体空间,强化街道与住宅之间的联系。项目避免将建筑视为孤立物体,而是作为城市肌理的自然延伸,通过共享空间促进邻里互动与社会交流,体现了地中海文化中庭院、廊道等情感空间的价值。 空间与功能 32社交住宅项目由两个平行体块通过连接空间相互错动构成,形成了地面层广场与抬升的覆盖街道。所有住宅均为双层复式布局,日间空间位于入口层,卧室交替布置于上下层。每户均享有自然采光与交叉通风,并通过抬升街道扩展了户外活动区域。 材料与技术 项目采用混凝土结构体系,结合当地建筑材料,注重可持续性与环境性能。建筑外立面采用格栅遮阳系统,优化了地中海气候下的热舒适性,同时通过紧凑布局减少了能源消耗。 项目特色与启发 32社交住宅于圣维泽德拉斯帕利戈通过创新的空间堆叠策略,将一半住宅置于屋顶层形成庭院住宅,其余沿覆盖街道布置。这种设计不仅最大化利用场地,更为社会住宅提供了集体空间与私人领域的平衡模式,对当代高密度住宅设计具有重要参考价值。 设计团队 阿尔弗雷多·帕亚是一位专注于社会住宅与城市更新的西班牙建筑师,其作品强调建筑与城市的融合,关注集体空间与社区互动。在本项目中,他通过精心的空间组织与材料选择,实现了社会住宅的功能性与情感价值的统一。 项目概述 32社交住宅于圣维泽德拉斯帕利戈位于西班牙阿利坎特圣维森特-德尔拉斯佩格,是一个社会住宅项目,由阿尔弗雷多·帕亚设计。项目包含32套住宅单元,设计于2003年,建成于2012年,通过创新的空间组织回应了社会住宅的集体需求。 设计理念 阿尔弗雷多·帕亚的设计理念聚焦于创造活跃的集体空间,强化街道与住宅之间的联系。项目避免将建筑视为孤立物体,而是作为城市肌理的自然延伸,通过共享空间促进邻里互动与社会交流,体现了地中海文化中庭院、廊道等情感空间的价值。 空间与功能 32社交住宅项目由两个平行体块通过连接空间相互错动构成,形成了地面层广场与抬升的覆盖街道。所有住宅均为双层复式布局,日间空间位于入口层,卧室交替布置于上下层。每户均享有自然采光与交叉通风,并通过抬升街道扩展了户外活动区域。 材料与技术 项目采用混凝土结构体系,结合当地建筑材料,注重可持续性与环境性能。建筑外立面采用格栅遮阳系统,优化了地中海气候下的热舒适性,同时通过紧凑布局减少了能源消耗。 项目特色与启发 32社交住宅于圣维泽德拉斯帕利戈通过创新的空间堆叠策略,将一半住宅置于屋顶层形成庭院住宅,其余沿覆盖街道布置。这种设计不仅最大化利用场地,更为社会住宅提供了集体空间与私人领域的平衡模式,对当代高密度住宅设计具有重要参考价值。 设计团队 阿尔弗雷多·帕亚是一位专注于社会住宅与城市更新的西班牙建筑师,其作品强调建筑与城市的融合,关注集体空间与社区互动。在本项目中,他通过精心的空间组织与材料选择,实现了社会住宅的功能性与情感价值的统一。 本文来自 © 阿尔弗雷多·帕亚|Alfredo Payá, 发布于 © 建筑学院官方网站。 未经授权,禁止转载或摘编。 编辑版本版权归 © 建筑学院官方网站 所有, 设计、图纸及照片版权归设计方 © 阿尔弗雷多·帕亚|Alfredo Payá ↗ 所有。 查看作者在建筑学院发布的更多作品: 阿尔弗雷多·帕亚|Alfredo Payá @ 建筑学院官方网站 32 Social Dwellings in San Vicente del Raspeig社会住宅设计阿利坎特住宅阿尔弗雷多·帕亚 阿尔弗雷多·帕亚|Alfredo Payá事务所 & 设计师 下载原图 收藏 0 关于作者 阿尔弗雷多·帕亚|Alfredo Payá事务所 & 设计师 关注私信 18 文章 0 评论 0 粉丝 阿尔弗雷多·帕亚(Alfredo Payá)是西班牙知名建筑师,1988年在阿利坎特成立工作室,后于2005年创立noame 29事务所。其作品深植于地中海地域文脉,强调消除公共与私有、室内与室外之间的界限。帕亚秉持“设计建筑使它像一座山”而非“设计一座像山的建筑”的深层概念性理念,避免表面隐喻。他注重建筑的物质一致性而非具体材料选择,代表作包括迈格莫山住宅、阿里坎特大学博物馆及32间公共住宅等,融合环境、气候与功能,展现其将建筑延伸至周边环境的独特哲学。 水网编织的未来聚落 | CROX闊合 上一篇 2025-11-12 下午12:59 Embres-et-Castelmaure 的酒窖 Wine Cellar in Embres et Castelmaure | 拉卡东与瓦萨尔建筑师事务所|Lacaton & Vassal 下一篇 2025-11-13 下午12:50 猜你喜欢 CASA EN EL MAIGMÓ / House on Mount Maigmó | 阿尔弗雷多·帕亚|Alfredo Payá 2026-04-13 住宅建筑设计 弗拉门卡尔海滩中学 / ‘Playa Flamenca’ Secondary School | 阿尔弗雷多·帕亚|Alfredo Payá 2026-04-13 公共建筑设计 异域宅院 / Alien House | 阿尔弗雷多·帕亚|Alfredo Payá 2026-04-14 住宅建筑设计 弗拉门卡尔海滩中学 / ‘Playa Flamenca’ Secondary School | 阿尔弗雷多·帕亚|Alfredo Payá 2025-11-11 公共建筑设计 新经济学家协会办公室装修工程 Renovations for New Economists’ Guild Offices | 阿尔弗雷多·帕亚|Alfredo Payá 2025-12-06 公共建筑设计 23套住宅,特龙卡 23 Housing Units, Trignac | 拉卡东与瓦萨尔建筑师事务所|Lacaton & Vassal 2025-11-12 公共建筑设计 发表回复 请登录后评论...登录后才能评论 提交