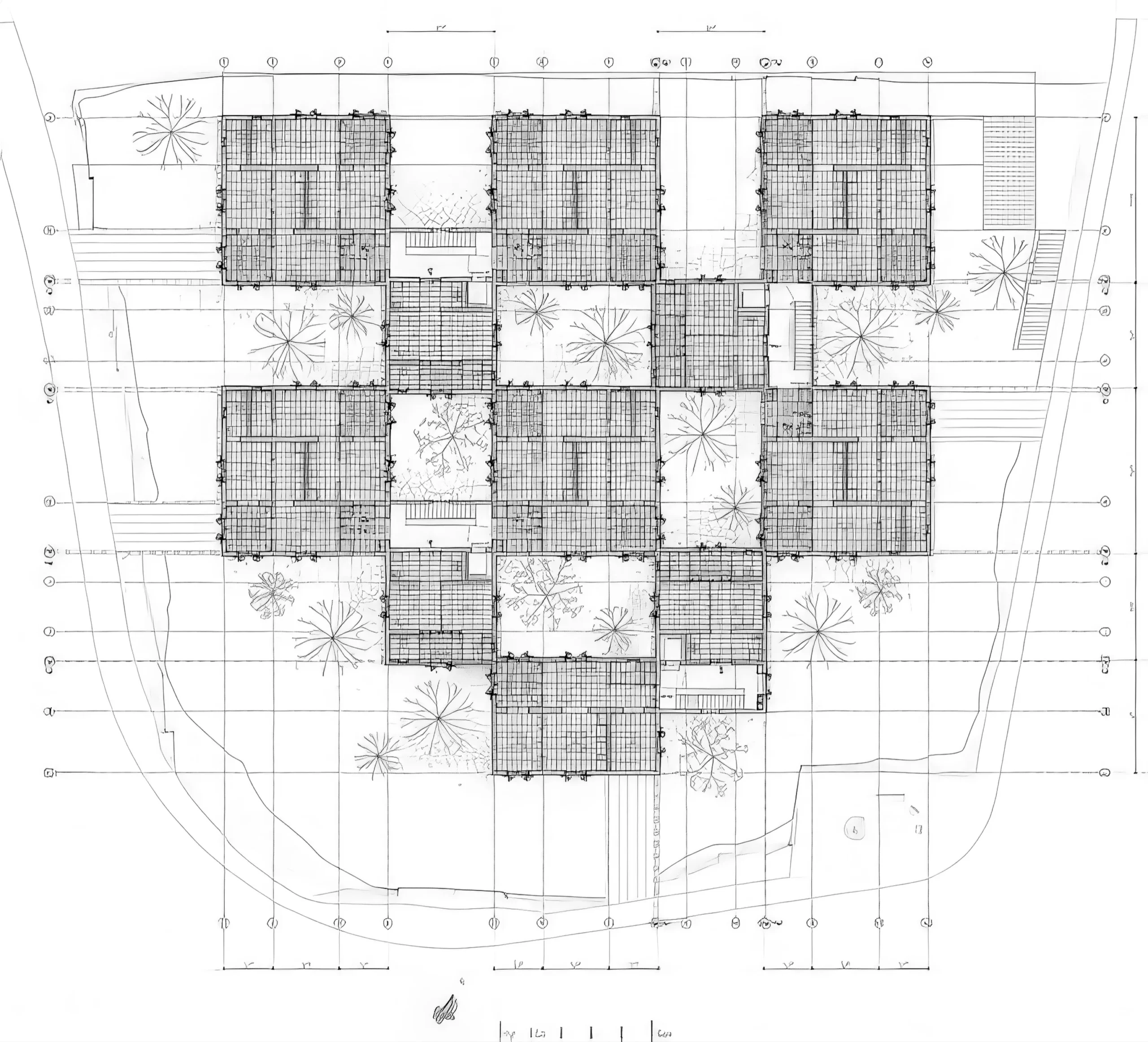
人类的尺度 / La Medida Humana | STEPHEN BATES STEPHEN BATES • 2026-01-09 下午2:46 • 住宅建筑设计, 建筑设计 《人类的尺度》是STEPHEN BATES对巴利阿里住房研究所(IBAVI)社会住房项目的深度研究,聚焦于西班牙巴利阿里群岛的社会住宅设计。该项目通过运用当地石材、海草等天然材料,探索了基于地域文化与环境可持续性的建筑策略,展现了如何将传统建造智慧与现代环境目标相结合的创新实践。 设计: STEPHEN BATES 类型: 建筑设计 功能: 保障性住房 风格: 当代建筑 材料: 木材 石材 玻璃纤维复合材料 尺度: 中型建筑 地点:巴利阿里群岛 时间: 2019年 项目概述 《人类的尺度》是STEPHEN BATES对巴利阿里住房研究所(IBAVI)在西班牙巴利阿里群岛开展的社会住宅项目的系统性研究。该项目涵盖多个住宅单元设计,致力于通过地域材料与建造传统实现环境可持续与社会包容的目标。 设计理念 设计团队以批判性地域主义为核心理念,从当地 vernacular 建筑传统中汲取灵感,强调建筑应根植于场所的历史、文化与地理特征。STEPHEN BATES 指出,IBAVI 的项目并非怀旧,而是以现代视角重新诠释地方智慧,回应全球气候与住房危机。 空间与功能 项目空间组织多采用平行墙体与三米模数,部分方案通过错动创造丰富的空间阈值与动线变化。例如在Guillem Martí i Coll住宅中,八角形中心房间与放射状布局打破了线性空间逻辑,赋予居住单元更强的个性与流动性。 材料与技术 项目大量使用本地材料,包括Marés砂岩砌块、干燥海草(Posidonia oceanica)保温层、石灰混凝土等,显著降低了碳足迹。同时,IBAVI对砌体构造、预制混凝土、木结构等系统进行实证研究,推动建造过程的去碳化与技术在地化。 项目特色与启发 《人类的尺度》展示了社会住宅如何通过材料选择、空间品质与环境策略,同时实现生态可持续与社会认同。STEPHEN BATES 的研究为全球保障性住房提供了重要参考,证明建筑可以既是地方的,也是前瞻的。 设计团队 STEPHEN BATES 是Sergison Bates Architects联合创始人,长期从事城市主义与住宅设计教学与实践。他在本文中系统梳理了IBAVI的设计哲学与实践成果,强调建筑在环境、文化与技术交织中的社会责任。 项目概述 《人类的尺度》是STEPHEN BATES对巴利阿里住房研究所(IBAVI)在西班牙巴利阿里群岛开展的社会住宅项目的系统性研究。该项目涵盖多个住宅单元设计,致力于通过地域材料与建造传统实现环境可持续与社会包容的目标。 设计理念 设计团队以批判性地域主义为核心理念,从当地 vernacular 建筑传统中汲取灵感,强调建筑应根植于场所的历史、文化与地理特征。STEPHEN BATES 指出,IBAVI 的项目并非怀旧,而是以现代视角重新诠释地方智慧,回应全球气候与住房危机。 空间与功能 项目空间组织多采用平行墙体与三米模数,部分方案通过错动创造丰富的空间阈值与动线变化。例如在Guillem Martí i Coll住宅中,八角形中心房间与放射状布局打破了线性空间逻辑,赋予居住单元更强的个性与流动性。 材料与技术 项目大量使用本地材料,包括Marés砂岩砌块、干燥海草(Posidonia oceanica)保温层、石灰混凝土等,显著降低了碳足迹。同时,IBAVI对砌体构造、预制混凝土、木结构等系统进行实证研究,推动建造过程的去碳化与技术在地化。 项目特色与启发 《人类的尺度》展示了社会住宅如何通过材料选择、空间品质与环境策略,同时实现生态可持续与社会认同。STEPHEN BATES 的研究为全球保障性住房提供了重要参考,证明建筑可以既是地方的,也是前瞻的。 设计团队 STEPHEN BATES 是Sergison Bates Architects联合创始人,长期从事城市主义与住宅设计教学与实践。他在本文中系统梳理了IBAVI的设计哲学与实践成果,强调建筑在环境、文化与技术交织中的社会责任。 本文来自 © STEPHEN BATES, 发布于 © 建筑学院官方网站。 未经授权,禁止转载或摘编。 编辑版本版权归 © 建筑学院官方网站 所有, 设计、图纸及照片版权归设计方 © STEPHEN BATES ↗ 所有。 查看作者在建筑学院发布的更多作品: STEPHEN BATES @ 建筑学院官方网站 IBAVILa Medida Humana巴利阿里群岛建筑社会住宅设计 STEPHEN BATES事务所 & 设计师 下载原图 收藏 0 关于作者 STEPHEN BATES事务所 & 设计师 关注私信 1 文章 0 评论 0 粉丝 Stephen Bate是英国著名建筑师与家具设计师,以其极致简约、细节精准且富有工艺感的设计而著称。他的作品涵盖高端私人住宅、小型商业空间及定制家具,擅长通过材料、光影与比例塑造静谧而永恒的空间氛围。访问官网stephenbate.com,探索其融合现代美学与精湛技艺的完整作品集。 鲍夫德尔欧洲大道 Baufeld F Europaallee / Baufeld F Europaallee | Roger Boltshauser 上一篇 2026-01-09 下午1:20 万科中心 / Vanke Center | 斯蒂文·霍尔建筑师事务所 下一篇 2026-01-10 下午6:37 猜你喜欢 波特苏雷社会住房 Porto Seguro Social Housing | 克里斯蒂安·凯雷兹|Christian Kerez 2025-12-01 公共建筑设计 60个社会住宅,梅里纳克 60 Social Dwellings, Merignac | 布鲁瑟建筑事务所|Bruther 2025-11-24 公共建筑设计 加瓦市社会住房项目 / Social Housing in Gavá | HArquitectes 2026-01-05 住宅建筑设计 43 VPP Brotad sn / 43 Social Housing Units Brotad sn | OFICI ARQUITECTURA 2026-01-20 住宅建筑设计 巴利阿里群岛6 VPP Ses Veles / 6 Social Housing Units. Ses Veles | FORTUNY + ALVENTOSA MORELL ARQUITECTES巴利阿里群岛 2026-01-19 公寓住宅设计 32社交住宅于圣维泽德拉斯帕利戈 / 32 Social Dwellings in San Vicente del Raspeig | 阿尔弗雷多·帕亚|Alfredo Payá 4天前 住宅建筑设计 发表回复 请登录后评论...登录后才能评论 提交