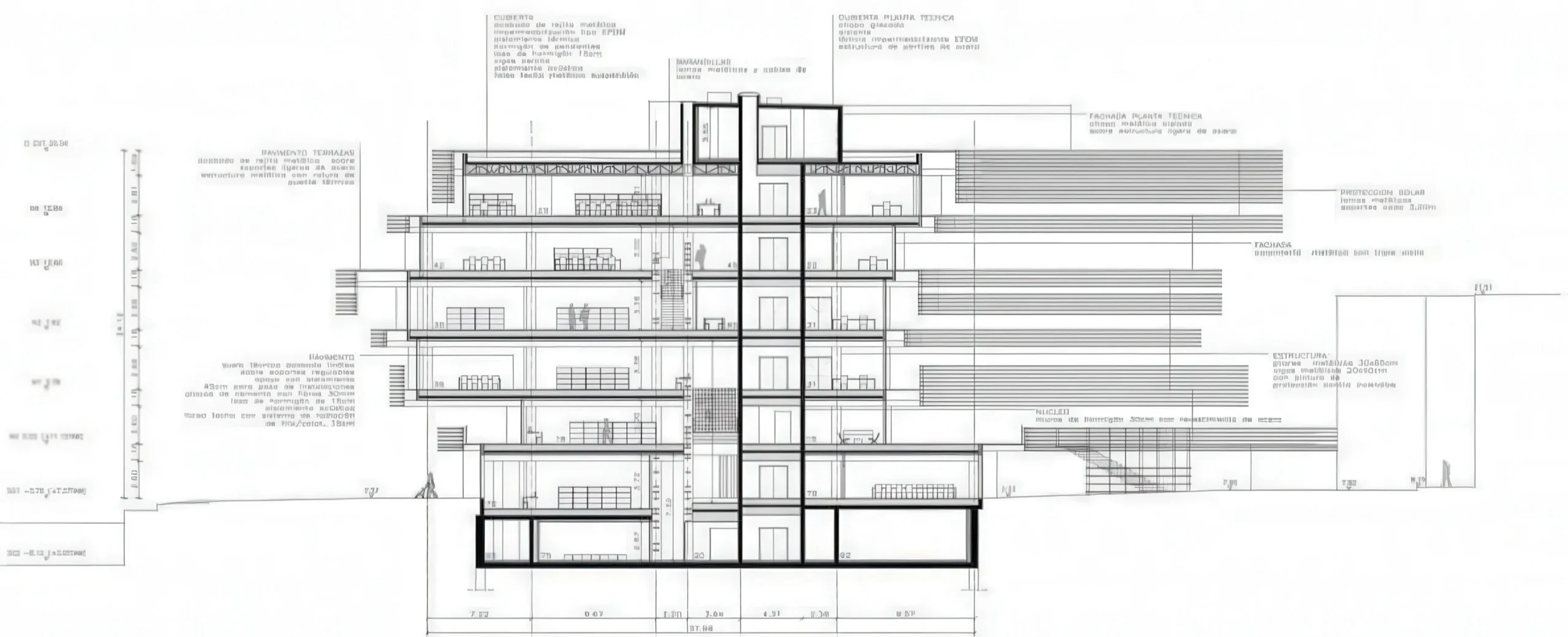
克罗洛克图书馆 / De Krook Library | RCR 建筑事务所|RCR Arquitectes RCR 建筑事务所|RCR Arquitectes • 2025-11-15 上午8:50 • 公共建筑设计, 建筑师设计, 建筑设计, 文化建筑设计 克罗洛克图书馆由RCR建筑事务所设计,位于比利时根特市,是一座集图书馆、新媒体中心、儿童青少年活动空间于一体的文化教育建筑。项目巧妙回应城市运河地形,通过多层次公共空间与流线组织,创造丰富的垂直与水平连接体验。 设计: RCR 建筑事务所|RCR Arquitectes 类型: 文化建筑设计 功能: 图书馆 风格: 当代建筑 材料: 混凝土 钢材 玻璃 金属板 尺度: 微型建筑与装置 地点:根特 时间: 2009年 项目概述 克罗洛克图书馆(De Krook Library)位于比利时根特市,是一座综合性文化教育建筑,包含图书馆、新媒体中心、多功能教室、儿童青少年活动区等功能。项目由RCR建筑事务所设计,建筑面积规模宏大,建成年份为近期。 设计理念 RCR建筑事务所以根特城市运河(Krook)为设计灵感,回应场地特有的双重标高特征——运河水面与城市桥梁。建筑形体追随运河流动轨迹,通过扭转与错动创造动态空间关系,强化建筑与城市脉络的连接。 空间与功能 克罗洛克图书馆以双层高度的中央广场为核心,组织垂直交通与水平流线。各楼层功能明确:地下层为儿童图书馆,地面层设置主入口广场与咖啡厅,上层分布知识图书馆、文化图书馆及大学办公区。空间通过开放式布局、阅读阶梯与观景平台,营造多样化的学习与交流场所。 材料与技术 建筑主要采用钢材、混凝土与玻璃,外立面以青铜色铝合金百叶为特色,兼顾遮阳与立面韵律。结构体系清晰,采用钢柱、钢梁与混凝土楼板,配合金属格栅地面、可调节技术地板等细节,体现高完成度的建造品质。 项目特色与启发 克罗洛克图书馆展示了文化建筑如何整合复杂功能、呼应城市文脉,并通过灵活的空间组织促进公共互动。RCR建筑事务所在本项目中的设计策略,为当代教育文化类建筑提供了空间整合与地形回应的参考范例。 设计团队 RCR建筑事务所(RCR Arquitectes)由Rafael Aranda、Carme Pigem与Ramon Vilalta于1988年创立,以对场地、材料与光线的敏锐感知著称,作品涵盖文化、教育、公共建筑等多个领域,曾获普利兹克建筑奖等国际荣誉。 项目概述 克罗洛克图书馆(De Krook Library)位于比利时根特市,是一座综合性文化教育建筑,包含图书馆、新媒体中心、多功能教室、儿童青少年活动区等功能。项目由RCR建筑事务所设计,建筑面积规模宏大,建成年份为近期。 设计理念 RCR建筑事务所以根特城市运河(Krook)为设计灵感,回应场地特有的双重标高特征——运河水面与城市桥梁。建筑形体追随运河流动轨迹,通过扭转与错动创造动态空间关系,强化建筑与城市脉络的连接。 空间与功能 克罗洛克图书馆以双层高度的中央广场为核心,组织垂直交通与水平流线。各楼层功能明确:地下层为儿童图书馆,地面层设置主入口广场与咖啡厅,上层分布知识图书馆、文化图书馆及大学办公区。空间通过开放式布局、阅读阶梯与观景平台,营造多样化的学习与交流场所。 材料与技术 建筑主要采用钢材、混凝土与玻璃,外立面以青铜色铝合金百叶为特色,兼顾遮阳与立面韵律。结构体系清晰,采用钢柱、钢梁与混凝土楼板,配合金属格栅地面、可调节技术地板等细节,体现高完成度的建造品质。 项目特色与启发 克罗洛克图书馆展示了文化建筑如何整合复杂功能、呼应城市文脉,并通过灵活的空间组织促进公共互动。RCR建筑事务所在本项目中的设计策略,为当代教育文化类建筑提供了空间整合与地形回应的参考范例。 设计团队 RCR建筑事务所(RCR Arquitectes)由Rafael Aranda、Carme Pigem与Ramon Vilalta于1988年创立,以对场地、材料与光线的敏锐感知著称,作品涵盖文化、教育、公共建筑等多个领域,曾获普利兹克建筑奖等国际荣誉。 本文来自 © RCR 建筑事务所|RCR Arquitectes, 发布于 © 建筑学院官方网站。 未经授权,禁止转载或摘编。 编辑版本版权归 © 建筑学院官方网站 所有, 设计、图纸及照片版权归设计方 © RCR 建筑事务所|RCR Arquitectes ↗ 所有。 查看作者在建筑学院发布的更多作品: RCR 建筑事务所|RCR Arquitectes @ 建筑学院官方网站 De Krook LibraryRCR Arquitectes文化建筑根特文化建筑 RCR 建筑事务所|RCR Arquitectes事务所 & 设计师 下载原图 收藏 0 关于作者 RCR 建筑事务所|RCR Arquitectes事务所 & 设计师 关注私信 14 文章 0 评论 0 粉丝 RCR建筑事务所由拉斐尔·阿兰达、卡莫·皮格姆和拉蒙·比拉尔塔于1988年在西班牙奥洛特创立。他们于2017年共同荣获普利兹克建筑奖,其作品以根植本土、心向世界而闻名。事务所擅长运用耐候钢、玻璃等现代材料,将建筑与自然景观深度融合,创造出充满诗意与永恒感的空间。其代表作包括法国苏拉吉博物馆、里拉剧院户外空间等。 CASA EN FONTINHA / House in Fontinha | 艾雷斯·马特乌斯建筑事务所|Aires Mateus 上一篇 2025-11-14 下午12:50 土胚房 / Hut House | MARKLEE 建筑事务所 下一篇 2025-11-15 下午12:50 猜你喜欢 生物区域剧院 Bío Regional Theatre | 斯米里扬·拉迪奇|Smiljan Radić 2025-12-10 公共建筑设计 欧洲信息与文化图书馆 / BEIC – European Library of Information and Culture | SANAA 2026-03-08 住宅建筑设计 灵魂矿工博物馆 / Soulages Museum | RCR 建筑事务所 2025-11-15 公共建筑设计 艺术烹饪中心 / La Cuisine Art Centre | RCR 建筑事务所 2025-11-19 公共建筑设计 诺贝尔中心 Nobel Center | 大卫·奇珀菲尔德建筑事务所|David Chipperfield 2025-11-13 公共建筑设计 曼彻斯特科学与工业博物馆特别展览馆 Special Exhibition Gallery,Museum of Science and Industry, Manchester | 卡莫迪·格罗克建筑事务所|Carmody Groarke 2025-11-27 公共建筑设计 发表回复 请登录后评论...登录后才能评论 提交