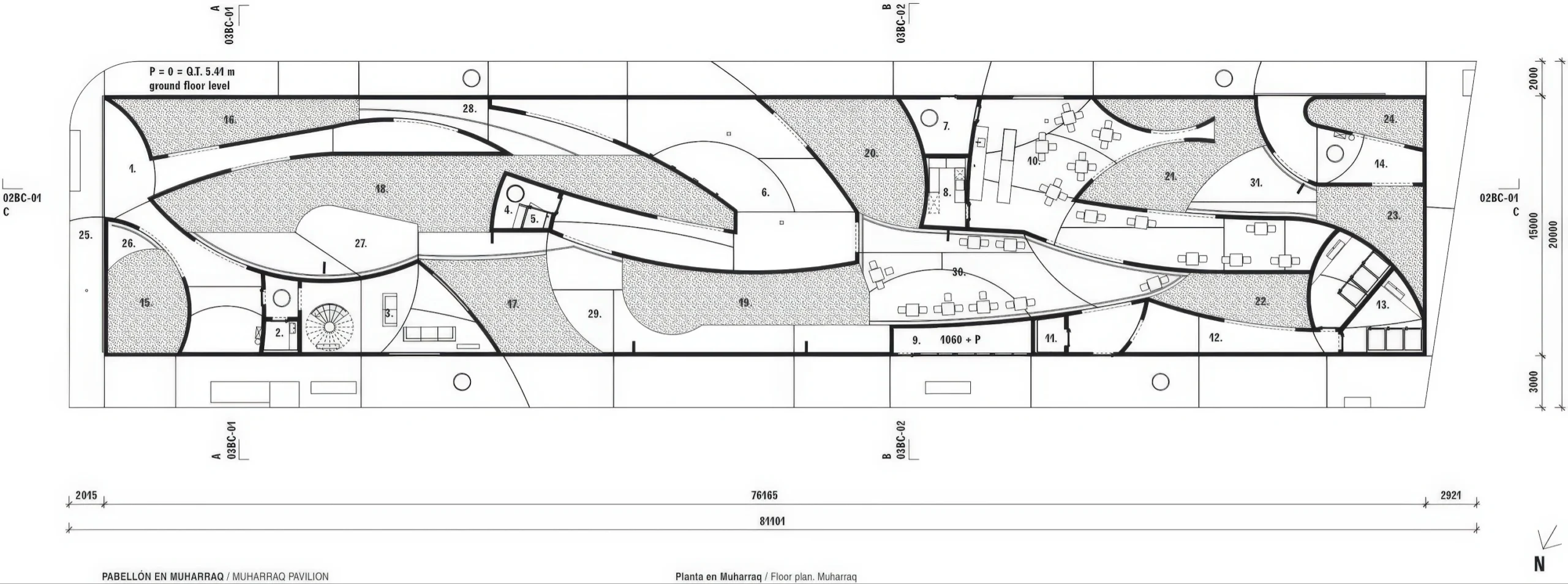
巴林王国国家馆 / National Pavilion of the Kingdom of Bahrain | 安妮·霍尔特罗普|Anne Holtrop 安妮·霍尔特罗普|Anne Holtrop • 2025-12-21 下午9:43 • 公共建筑设计, 建筑师, 建筑设计, 文化建筑设计 巴林王国国家馆由安妮·霍尔特罗普设计,最初为2015年米兰世博会建造,后迁至巴林穆哈拉格。该项目以抽象几何图形为基础,通过350个独特的预制混凝土构件组成,展现了巴林悠久的农业文化遗产与迪尔蒙文明传统。 设计: 安妮·霍尔特罗普|Anne Holtrop 类型: 文化建筑设计 功能: 文化中心 风格: 当代建筑 材料: 混凝土 金属板 尺度: 中型建筑 地点:穆哈拉格 时间: 2015年 项目概述 巴林王国国家馆最初为2015年米兰世博会设计建造,后于2016年迁至巴林穆哈拉格历史城区。这座文化建筑占地约2000平方米,采用预制混凝土构件组装,展现了巴林作为”伊甸园”和”百万椰枣树之地”的神话传统。 设计理念 设计灵感源自巴林迪尔蒙时期的巴巴尔神庙(公元前2500年),采用纯粹的几何图形语言——仅由圆弧段和直线构成抽象绘图。这种形式既不对应具体物象,又能精确定义多样空间,体现了建筑与文化遗产的深层对话。 空间与功能 巴林王国国家馆组织十个特色果园,分别种植无花果、香蕉、芒果等果树,确保在六个月展期内持续结果。空间布局通过几何图形生成墙体、地面、屋顶和步道,形成内外交融的游览体验,同时容纳展览区、VIP区域、咖啡厅等功能空间。 材料与技术 建筑全部采用预制白色混凝土元素,350个构件各具独特形态。创新采用干式接缝组装技术,构件相互堆叠并通过黄铜配件固定,实现了建筑的完全可拆卸与异地重建,体现了可持续设计理念。 项目特色与启发 巴林王国国家馆的独特之处在于其完整的可迁移性设计,从米兰世博会到巴林历史城区的成功搬迁,为临时建筑的永续利用提供了典范。项目将古代文明遗产转化为当代建筑语言,展示了文化传承与技术创新融合的可能性。 设计团队 安妮·霍尔特罗普是一位以实验性方法著称的建筑师,其工作室专注于材料研究和空间体验。团队在巴林王国国家馆项目中展现了将抽象几何概念转化为具体建筑元素的卓越能力,通过预制混凝土技术实现了复杂的空间构想。 项目概述 巴林王国国家馆最初为2015年米兰世博会设计建造,后于2016年迁至巴林穆哈拉格历史城区。这座文化建筑占地约2000平方米,采用预制混凝土构件组装,展现了巴林作为”伊甸园”和”百万椰枣树之地”的神话传统。 设计理念 设计灵感源自巴林迪尔蒙时期的巴巴尔神庙(公元前2500年),采用纯粹的几何图形语言——仅由圆弧段和直线构成抽象绘图。这种形式既不对应具体物象,又能精确定义多样空间,体现了建筑与文化遗产的深层对话。 空间与功能 巴林王国国家馆组织十个特色果园,分别种植无花果、香蕉、芒果等果树,确保在六个月展期内持续结果。空间布局通过几何图形生成墙体、地面、屋顶和步道,形成内外交融的游览体验,同时容纳展览区、VIP区域、咖啡厅等功能空间。 材料与技术 建筑全部采用预制白色混凝土元素,350个构件各具独特形态。创新采用干式接缝组装技术,构件相互堆叠并通过黄铜配件固定,实现了建筑的完全可拆卸与异地重建,体现了可持续设计理念。 项目特色与启发 巴林王国国家馆的独特之处在于其完整的可迁移性设计,从米兰世博会到巴林历史城区的成功搬迁,为临时建筑的永续利用提供了典范。项目将古代文明遗产转化为当代建筑语言,展示了文化传承与技术创新融合的可能性。 设计团队 安妮·霍尔特罗普是一位以实验性方法著称的建筑师,其工作室专注于材料研究和空间体验。团队在巴林王国国家馆项目中展现了将抽象几何概念转化为具体建筑元素的卓越能力,通过预制混凝土技术实现了复杂的空间构想。 本文来自 © 安妮·霍尔特罗普|Anne Holtrop, 发布于 © 建筑学院官方网站。 未经授权,禁止转载或摘编。 编辑版本版权归 © 建筑学院官方网站 所有, 设计、图纸及照片版权归设计方 © 安妮·霍尔特罗普|Anne Holtrop ↗ 所有。 查看作者在建筑学院发布的更多作品: 安妮·霍尔特罗普|Anne Holtrop @ 建筑学院官方网站 National Pavilion of the Kingdom of Bahrain安妮·霍尔特罗普文化建筑穆哈拉格建筑 安妮·霍尔特罗普|Anne Holtrop事务所 & 设计师 下载原图 收藏 0 关于作者 安妮·霍尔特罗普|Anne Holtrop事务所 & 设计师 关注私信 23 文章 0 评论 0 粉丝 安妮·霍尔特罗普(Anne Holtrop)作为备受瞩目的当代建筑师,其事务所Studio Anne Holtrop以对材料与空间的独特探索闻名。霍尔特罗普于2009年成立个人工作室,目前事务所活跃于巴林穆哈拉格与荷兰阿姆斯特丹。其代表作包括巴林国家展馆(2015米兰世博会)、穆哈拉格绿色角落建筑及西雅迪珍珠博物馆。他善于从地质与材料本质出发,通过创新的建造方式塑造极具诗意的建筑空间,曾荣获夏洛特·科勒奖(2007年)、雅科夫·切尔尼霍夫国际奖(2016年)及阿迦汗建筑奖(2019年)。 加拉尔特住宅小区 / Residential Complex in Gallarate | 阿尔瓦罗·西扎|Álvaro Siza 上一篇 2025-12-21 下午9:29 Celosía 社会住房公寓 / Celosía Social Housing Apartments | MVRDV + Blanca Lleó Arquitectos 下一篇 2025-12-21 下午10:07 猜你喜欢 罗马窑炉发现空间 / Roman Kiln Discovery Space in Vilassar de Dalt | 托尼·希罗内斯|Toni Gironès 2025-11-12 公共建筑设计 莫迪克城堡博物馆 / Museum Fort Vechten | 安妮·霍尔特罗普|Anne Holtrop 2026-01-05 公共建筑设计 斯克茨恩歌剧院 / Philharmonic Hall In Szczecin | 巴罗齐与维加建筑事务所 1天前 公共建筑设计 公共空间谢赫艾伯罕中心 / Public Space Sheikh Ebrahim Center | 安妮·霍尔特罗普|Anne Holtrop 2025-12-24 公共建筑设计 Haddon Baptist Church巴士站 / Bus Stop for Haddon Baptist Church | 安妮·霍尔特罗普|Anne Holtrop 2026-01-04 交通建筑 马可拉比亚之家橱窗 / Shop Windows for Maison Margiela Hankyu | 安妮·霍尔特罗普|Anne Holtrop 2025-12-12 商业空间设计 发表回复 请登录后评论...登录后才能评论 提交