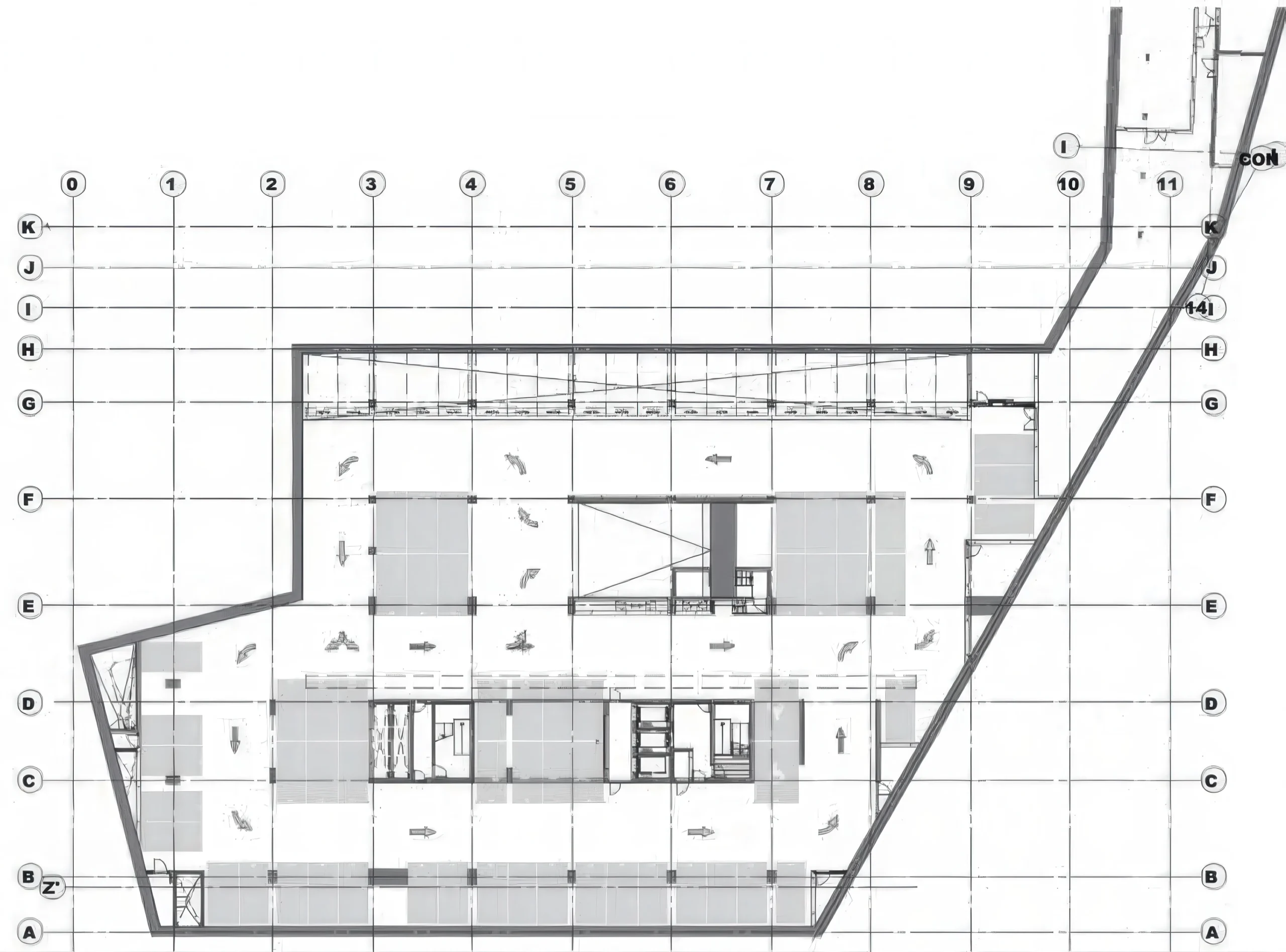
Baltyk Tower / Baltyk Tower | MVRDV 建筑事务所 MVRDV • 2025-11-15 下午12:50 • 公共建筑设计, 建筑师设计, 建筑设计, 文化建筑设计 Baltyk Tower 由 MVRDV 建筑事务所设计,位于波兰波兹南市,是一座集办公、商业、餐饮和酒店功能于一体的城市综合体。建筑通过独特的体量设计和立面处理,回应场地限制并创造丰富的空间体验。 设计: MVRDV 类型: 文化建筑设计 功能: 城市综合体 风格: 当代建筑 材料: 混凝土 玻璃 玻璃纤维复合材料 尺度: 大型建筑 地点:波兹南 时间: 2023年 项目概述 Baltyk Tower 位于波兰波兹南市的 Rondo Kaponiera 重要交通枢纽,毗邻中央火车站和机场道路。这座总建筑面积 25,000 平方米的建筑包含 12,000 平方米办公空间、750 平方米全景餐厅、1,350 平方米商业空间及三层地下停车场,设计年份未明确。 设计理念 Baltyk Tower 的设计理念源于对场地规范限制的创造性回应。建筑体量遵循最大容积和高度限制,形成从不同角度观看呈现完全不同形态的独特外观。南侧通过层叠式露台设计,为使用者提供丰富的室外空间。 空间与功能 Baltyk Tower 的空间组织体现了功能复合性。办公区域深度控制在 7 米以内,确保充足的自然采光。商业空间布置在建筑基座,全景餐厅和单间酒店位于上部,地下设置三层停车场,各功能区域通过垂直交通高效连接。 材料与技术 建筑立面采用落地玻璃幕墙结合玻璃纤维混凝土竖向百叶的系统。这种设计在减轻太阳辐射影响的同时,保持了面向城市和动物园的广阔视野。材料选择兼顾了建筑性能与美学表达。 项目特色与启发 Baltyk Tower 展示了 MVRDV 在城市高密度环境下处理复杂功能与场地限制的创新方法。其独特的形态处理和立面技术为类似的城市更新项目提供了有价值的参考,体现了当代建筑在功能整合与环境响应方面的探索。 设计团队 MVRDV 建筑事务所是荷兰知名建筑设计团队,以创新性和研究驱动的设计方法著称。事务所在城市设计、建筑与景观领域拥有丰富经验,其作品以对当代城市问题的独特回应而备受关注。 项目概述 Baltyk Tower 位于波兰波兹南市的 Rondo Kaponiera 重要交通枢纽,毗邻中央火车站和机场道路。这座总建筑面积 25,000 平方米的建筑包含 12,000 平方米办公空间、750 平方米全景餐厅、1,350 平方米商业空间及三层地下停车场,设计年份未明确。 设计理念 Baltyk Tower 的设计理念源于对场地规范限制的创造性回应。建筑体量遵循最大容积和高度限制,形成从不同角度观看呈现完全不同形态的独特外观。南侧通过层叠式露台设计,为使用者提供丰富的室外空间。 空间与功能 Baltyk Tower 的空间组织体现了功能复合性。办公区域深度控制在 7 米以内,确保充足的自然采光。商业空间布置在建筑基座,全景餐厅和单间酒店位于上部,地下设置三层停车场,各功能区域通过垂直交通高效连接。 材料与技术 建筑立面采用落地玻璃幕墙结合玻璃纤维混凝土竖向百叶的系统。这种设计在减轻太阳辐射影响的同时,保持了面向城市和动物园的广阔视野。材料选择兼顾了建筑性能与美学表达。 项目特色与启发 Baltyk Tower 展示了 MVRDV 在城市高密度环境下处理复杂功能与场地限制的创新方法。其独特的形态处理和立面技术为类似的城市更新项目提供了有价值的参考,体现了当代建筑在功能整合与环境响应方面的探索。 设计团队 MVRDV 建筑事务所是荷兰知名建筑设计团队,以创新性和研究驱动的设计方法著称。事务所在城市设计、建筑与景观领域拥有丰富经验,其作品以对当代城市问题的独特回应而备受关注。 本文来自 © MVRDV, 发布于 © 建筑学院官方网站。 未经授权,禁止转载或摘编。 编辑版本版权归 © 建筑学院官方网站 所有, 设计、图纸及照片版权归设计方 © MVRDV ↗ 所有。 查看作者在建筑学院发布的更多作品: MVRDV @ 建筑学院官方网站 Baltyk TowerMVRDV建筑事务所城市综合体设计波兹南建筑 MVRDV事务所 & 设计师 下载原图 收藏 0 关于作者 MVRDV事务所 & 设计师 关注私信 17 文章 0 评论 0 粉丝 克罗洛克图书馆 / De Krook Library | RCR 建筑事务所|RCR Arquitectes 上一篇 2025-11-15 上午8:50 伯格曼中心基金会 Bergman Center Foundation | 谭姆与维德高德建筑事务所|Tham & Videgård 下一篇 2025-11-16 上午8:50 猜你喜欢 中国漫画与动画博物馆 / China Comic and Animation Museum | MVRDV 建筑事务所 2025-11-14 公共建筑设计 切割孔隙块 / Sliced Porosity Block | 霍尔 Steven Holl 1小时前 公共建筑设计 发表回复 请登录后评论...登录后才能评论 提交